桐安里(营销中心)官方网站-桐安里销售中心(售楼处)-桐安里欢迎您-电话地址-价格-户型-小区环境-楼盘详情-桐安里交房时间-周边配套-桐安里售楼处电话
扫描到手机,新闻随时看
扫一扫,用手机看文章
更加方便分享给朋友
✅桐安里售楼处电话:400-8854-706✅︎✅︎✅
✅杨浦滨江「桐安里」营销中心热线400-8854-706(官方预约看房热线)
最新消息,总价2700万起!杨浦滨江「桐安里」将推70套约185-305㎡风貌别墅,样板间已开放!附线上预约通道!
众所周知,上海的顶层规划设计,四字足以概括——一江一河!
黄浦江和苏州河,它们一纵一横,是上海这座城市的骨架,也是灵魂。尤其是黄浦江畔,一直是上海对话世界的窗口,也是2035规划的世界会客厅。
所以无论是过去、现在还是未来,任何一套滨江板块的住宅都是令人仰望的存在,是城市菁英们身份与地位的象征,是人生资产无可替代的压舱石!✅桐安里售楼处电话:400-8854-706✅︎✅︎✅
✅杨浦滨江「桐安里」营销中心热线400-8854-706(官方预约看房热线)
✅桐安里售楼处电话:400-8854-706✅︎✅︎✅
✅杨浦滨江「桐安里」营销中心热线400-8854-706(官方预约看房热线)
项目地址:杨浦区惠民路777弄
总户数:70户可售商品房
建筑层数:2-4层
产品类型:里弄风貌别墅
产品面积:联排-185/235/305平 叠加-185平
交付标准:联排毛坯+简装装修
产权年限:70年
容积率:约1.35
✅桐安里售楼处电话:400-8854-706✅︎✅︎✅
✅杨浦滨江「桐安里」营销中心热线400-8854-706(官方预约看房热线)
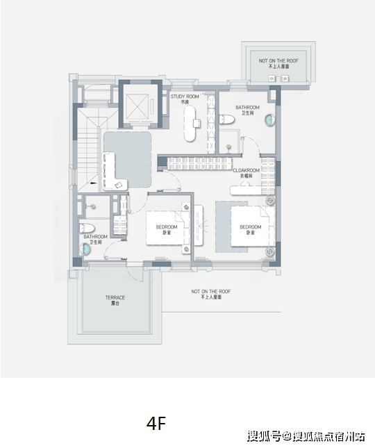
户型图赏鉴



✅桐安里售楼处电话:400-8854-706✅︎✅︎✅
✅杨浦滨江「桐安里」营销中心热线400-8854-706(官方预约看房热线)
✅桐安里售楼处电话:400-8854-706✅︎✅︎✅
✅杨浦滨江「桐安里」营销中心热线400-8854-706(官方预约看房热线)
✅桐安里售楼处电话:400-8854-706✅︎✅︎✅
✅杨浦滨江「桐安里」营销中心热线400-8854-706(官方预约看房热线)
俗话说:人生有别,以墅为界。如果有得选,谁又不想圆梦墅居呢?
相比城心的高层和超高层产品,桐安里的风貌联排产品在居住的各个层面都是碾压!
✅桐安里售楼处电话:400-8854-706✅︎✅︎✅
✅杨浦滨江「桐安里」营销中心热线400-8854-706(官方预约看房热线)
我们以项目主力的建面约235㎡户型来对比:
首先,有天有地有院子是每个中国人藏在骨子的浪漫!桐安里的风貌联排联排直接独门独户,上下五层顶天立地,门前庭院则为孩子提供了一方亲近大自然的私密场所,也击中了养宠人士的心趴。
其次,相比城心大平层“一层不变”的生活,桐安里的联排别墅生活情境更立体,更个性化,更私密,更适配大家族多代人居住。
同时别墅户型的面宽、采光、收纳、通透、得房率等都做到尽善尽美,让家里的每一位成员都有更舒适的起居环境。
土拍回顾及规划
2023年11月,招商&海门国资委拿下平凉社区01B4-04地块(平凉街道19街坊)历史风貌保护项目。

项目为住宅用地,总用地面积月12666.4平方米,容积率1.35,地上计容建筑面积为17099.64 平方米,地下建筑面积为25900平方米。 整个地块为肌理保护范围,历史建筑保护更新规模不小于1.47万㎡,均为需要保留的历史建筑(一般)。

✅桐安里售楼处电话:400-8854-706✅︎✅︎✅
✅杨浦滨江「桐安里」营销中心热线400-8854-706(官方预约看房热线)
根据设计方案显示,项目拟建15幢风貌别墅,地块东南侧为3层的公租房,总户数约70套,主要以四联排为主,辅以8套总高4四的叠墅。项目机动车入口设在南北两侧的惠民路和济宁路上。
社区:新复古主义下的四大融合重译,重新定义风貌别墅的人居新高度
不得不承认,招商又进化了!
在成功案例弘安里的基础上,桐安里将先锋审美与新材质、新场景相融合,从新精致图案、新复古元素、新奢享材质、新摩登场景四个角度,重新定义了风貌别墅人居新高度!
01、新精致图案
在建筑风格上,项目运用了4大新精致图案,从拱券图案、砖石拼花再到引入了文艺复兴建筑经典手法——刻槽技术,打造建筑装饰带,运用石库门椭圆造型元素,打造前沿建筑符号!
02、新复古元素
深入看细节,你会发现项目高颜值的6大新复古元素。包括Artdeco复古式窗套、现代石材抹角、典雅山花样式、墀头屋檐一体化设计、经典仿木百叶、石库门专属地砖符号等,用先锋表达回应在地文化。
03、新奢享材质
石材是海派建筑的标志,桐安里对于这种昂贵用材当然不会吝啬!
项目采用天然石材和现代工艺相结合的手法,水景池底则选用意大利进口奢石金钻,大门选用风貌复古红洞石材。
墙面采用传统手工砖,有青红两种类型。垂花席纹的拼砖,手工捶打的铜门等也彰显了项目的匠人本质!
04、新摩登场景
场景方面,项目借鉴经典英国梧桐浓荫道,在复原街巷尺度的同时,焕新街道风貌品质,再现百年上海的摩登气质。
过街门楼是经典石库门与海派生活场景的重要代表,项目通过2种不同样式的过街门楼,延续了原市房现代简洁、过街楼装饰艺术风格特征以及连续界面等特点,不仅让归家更富有层次感,更凸显着海派生活场景的摩登魅力。
✅桐安里售楼处电话:400-8854-706✅︎✅︎✅
✅杨浦滨江「桐安里」营销中心热线400-8854-706(官方预约看房热线)
项目沿街立面参考原地块建筑风貌,采用扇形圆滑的转角形态,辅以明显的竖线条线脚装饰,按照地形特征“削”出弧度,巧妙设计出立面弧度,形成手风琴样式立面,打造出令人印象深刻的浪漫场景。
项目通过一楼家庭庭院,二楼星空露台,三楼罗密欧阳台,复原经典的三段式设计规制,还原出武康路罗密欧阳台的经典邬达克式摩登场景。
✅桐安里售楼处电话:400-8854-706✅︎✅︎✅
✅杨浦滨江「桐安里」营销中心热线400-8854-706(官方预约看房热线)
值得一提的还有,在仅70套作品的社区,项目居然还原了邵洵美的“花厅”,将百年历史文脉与新时代海派特质融合,结合复古式旋转楼梯设计,从层次感、艺术感、观赏性等维度打造出一个了既复古又摩登的会所。
会所内则涵盖健身房+冥想空间+桑拿区+棋牌室等功能。为业主的社交提供场所,为业主的日常休闲提供服务!
✅桐安里售楼处电话:400-8854-706✅︎✅︎✅
✅杨浦滨江「桐安里」营销中心热线400-8854-706(官方预约看房热线)
交通方面:距离18号线平凉路站直线距离约400M、12号线江浦公园站直线距离约500M,通过换乘可实现6站抵达陆家嘴、5站抵达外滩、3站直达北外滩。
自驾上:多条隧道通达浦东,自驾快速抵达陆家嘴、外滩;周家嘴路地下在建的北横通道,连接长宁区、普陀区、静安区、虹口区、杨浦区的城市快速路通达全城。
商业方面:项目周边有百联滨江购物中心、东方渔人码头国际中心、LCM置汇旭辉广场、北外滩来福士等,醇熟商圈范围,繁华在此汇集。
生态休闲:杨浦滨江沿岸,平凉公园、江浦公园、杨浦公园、波阳公园、复兴岛公园,享受都芯自然佳境。

✅桐安里售楼处电话:400-8854-706✅︎✅︎✅
✅杨浦滨江「桐安里」营销中心热线400-8854-706(官方预约看房热线)
医疗方面:项目周边有复旦大学附属妇产科医院(三甲)、上海交通大学附属新华医院(三甲)、上海市第一康复医院、杨浦区中医院、杨浦区中心医院、上海市浦东新区公利医院,近享无忧医疗配套。

✅桐安里售楼处电话:400-8854-706✅︎✅︎✅
✅杨浦滨江「桐安里」营销中心热线400-8854-706(官方预约看房热线)
声明:本文由入驻焦点开放平台的作者撰写,除焦点官方账号外,观点仅代表作者本人,不代表焦点立场。
