华润外滩瑞府(售楼处)官方网站-华润外滩瑞府销售中心(营销中心)-华润外滩瑞府楼盘欢迎您-小区环境-户型-价格-地址-楼盘详情-周边配套-售楼处电话-交房时间
扫描到手机,新闻随时看
扫一扫,用手机看文章
更加方便分享给朋友


GOA大象设计担纲建筑设计;渡边 智昭 负责会所和架空层设计 ,他是 2023 AD 100 中国最具影响力建筑和室内设计师,代表作翠湖天地、汤臣一品;TROP操刀艺文景观设计; 室内由 W.DESIGN无间设计、 李益中精琢...
这支曾塑造多个城市封面的大师团队,聚集在外滩瑞府,共筑外滩新一代标杆住宅。

作为华润置地产品线的皇冠明珠,「瑞系」自诞生便以钻石级选址标准划定豪宅基因。
从深圳湾的 “春笋”旁到北京长安街畔,每一座瑞府都占据着核心城市最核心的地段。
此次外滩瑞府落子外滩1公里核心圈,正是华润对「战略稀缺性」的极致践行: 非核心不选,非未来不立。
这也是华润置地那么多年来在上海的首座“瑞系”。
由此,便有了“风貌→幕墙→冠冕”的立体生长美学立面,风貌底盘+秩序感极强的通透立面,昭示性极强!

尤为瞩目的是,建筑立面采用的大面积通透玻璃幕墙设计, 它如同一幅流动的巨幕画框,不仅最大限度引光入室,更实现了 “移步易景、框景成画”的建筑美学。
室内外空间界限被温柔消弭,无论是社区内的精致园林、活力场景,还是远方的都市天际线,都成为生活中触手可及、瞬息变幻的风景。
风雨连廊及印象派花园双重归家 体系重新定义顶豪生活仪式 ,社区大门以约50米长典雅精致市政延展面宣告不凡气度!先锋艺文迎宾区 仪式感十足!这便是一场城市精英到生活艺术家的精神转场。
社区核心以约3000㎡沉浸式中央公园重构自然与生活的边界,这里不仅是满足全龄社交、商务会客与儿童探索的多功能活力场域,更以精心雕琢的轻度假美学,让每一次归家都成为步入度假胜地的仪式。当暮色浸染天际线,漫步于绿意环抱的公园小径,耳畔是潺潺水声与孩童欢笑,疲惫顷刻消融于草木芬芳与柔风暖光之中。
让人眼前一亮的是,景观设计更以印象派艺术史诗为灵感,独创六大主题花园,将传世名作解构为可游可赏的立体生态空间!有梵高的星空水苑、莫奈的睡莲水湾、马奈的日光草坪、塔贝尔的社交花园、雷阿诺的缤纷花园以及调色板儿童乐园……
每一处花园皆以自然为画布、生活为颜料,原生乔木与艺术草甸形成柔韧界面,流线型步道如画笔游走其间,这不再只是社区绿地,而是一座生长中的露天艺术馆,让印象派的浪漫主义在每一天的晨曦暮霭中鲜活重生。
还有约150米风雨连廊设计,连通所有楼栋,移步易景。看似简单的设计,解决了高频生活痛点,从“实用配置”升维为居住尊严与人文关怀的象征,让日常通勤成为享受,让社区在风雨中依然温暖有序,实现归家更从容~
值得注意的是, 公区的每个角落都值得驻足欣赏,无处不在体现设计师的超绝审美,步入社区的每一帧都是视觉享受~
社区打造了恒温泳池会所, 以优雅流畅的线条融入天际视野,不仅是为业主提供专业级畅游体验的运动场所,更成为静享私密时光的水境。
匠心营造的架空层空间同样具备国际化品味,打造了更容易停留的空间:一处是融合艺术格调与舒适氛围的多功能泛会客厅,为邻里社交、商务洽谈或静谧阅读提供优雅场域;另一处则配备了前沿科技的智能健身空间,满足业主全天候、多元化的健康管理需求。

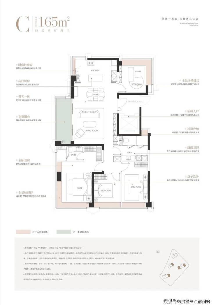
官宣户型图独家首发:
建面约124㎡3房:





建面约165㎡4房:
拥 独立入户空间 ,私密入户。
同样近乎等面宽的卧室尺度 , 让每个家庭成员都能拥有独立且舒适的休憩领地,三卧朝南的布局,让阳光成为所有人的平等馈赠,没有谁要为“主次”牺牲采光权。
而“大”还体现在公共空间的开阔,岛台厨房、餐厅、客厅与阳台动线流畅,二胎共同玩耍也绰绰有余。
约270°视野的贯穿更是锦上添花,主卧、北向次卧、厨房的约270°转角飘窗,让每个空间里的人都能平权地拥抱城市景致。☑️华润外滩瑞府售楼处电话:400-8377-020☑️
主卧套房的L型衣帽间与卫生间,公卫四分离设计,在保证“大”尺度的同时,更让每个人的生活需求都被妥帖照顾。
显然,外滩瑞府户型深谙豪宅之道:“大” 不是盲目堆砌面积,而是让每个空间都有足够的舒展度;“平权” 不是口号,而是通过面宽、采光、视野的均等分配,让家 庭里的每一个人,都能在空间里找到被尊重的舒适。这正是华润置地深入研读豪宅客群需求后,交出的完美答卷——在这里,大空间与平权生活,从来不是选择题。
另外,让我留下深刻印 象的是样板间展现的高级定制设计语言。
不同于市面上门是门,框是框,墙是墙,看房时“五颜六色”。外滩瑞府室内采用一体化设计语言,实现空间、色彩与材质的协调统一。比如
✔入户门原创设计,外面深色木纹,里面浅色云母,和玄关柜、大理石地砖很搭配。
✔大理石地砖铺装工艺 近乎看不出拼接缝、浑然一体。
✔卫生间地面和墙面整体性也非常强,奢石台面的纹路和岩板墙面和协调。

建面约165㎡样板间实景图,以实际交付为准
装修上配备国际一线品牌,尤其厨房由嘉格纳领衔,配备灶具、吸油烟机、洗碗机、冰箱蒸烤箱。
更多细节大家可以去现场了解。
建面约165㎡样板间实景图,以实际交付为准










均价比1公里外的绿城地王低约5万/㎡
定价比下游板块还划算,安全垫太厚
当下购买新房,购房者往往不求涨幅过大,更看重品质超前和稳健保值,从这一点来说,外滩瑞府“安全垫”实在太厚了!
首先,它是难得的与周边存在巨大价格差的新房项目。
外滩瑞府离外滩更近,绿城地王位于北外滩,两者直线距离不过约1公里,但新房差价或4-5万/㎡。您认为品质差不多的情况下,未来差价有这么大?
此外,外滩瑞府甚至比下游的邮电新村站周边新房还便宜约1.8万/㎡,更不用说与杨浦相比了,对下游板块简直是降维打击。☑️华润外滩瑞府售楼处电话:400-8377-020☑️
与平行区域新房有4-5万/㎡差价,比下游区域还划算,显然外滩瑞府是对抗未来市场风险能力更强的选择!

其次,在距离外滩1公里范围内,楼盘单价普遍达20万/㎡,只有外滩瑞府给出14.78万/㎡的上车机会。
以外白渡桥为中心,外滩瑞府是1公里半径内,内环改善型买家最后的上车机会,其他楼盘几乎都是顶豪级价格。
第三,独特的风貌底盘 远比千篇一律的现代建筑更有穿透力,也让其在市场波动中拥有更稳健的价值根基。
新天地为何跑出独立行情,和石库门重生有很大关系。
外滩瑞府与其有相似逻辑,“风貌”的复合底盘,构建起多重壁垒:
其一,历史风貌的不可再生性,形成天然的市场稀缺;
其二,新旧业态的碰撞融合,创造出独特的体验溢价;
过程方案示意图,以实际交付为准
其三,城市记忆的情感联结,让项目跳出单纯的居住或商业属性,成为可触摸的文化地标 。
其四,从西向东连接起安康苑、弘安里、静安里、外滩瑞府等风貌建筑, 一个亿级TOP级圈层也悄然确立。
此外,外滩瑞府在保留风貌建筑的同时,规划植入文化艺术分馆、精品咖啡工坊、黑胶唱片店等“高级烟火气”业态,让老上海的“弄堂温度”与国际生活方式碰撞出新火花。
第四,外滩瑞府客群广泛且资产上限极高。
因为占位“世界级黄金三角”,并拥有超强通达性,外滩瑞府所链接的是全上海的高净值人群。
✔轨交:近10号线四川北路站,2站南京东路,5站新天地,可换乘2/12号线,便捷直达陆家嘴。同时毗邻海伦路站,4/10/19号线(在建)交汇,可便捷去往内环各重要节点。
✔自驾: 从项目出发,通过新建路隧道可直达陆家嘴;通过 吴淞路-外滩隧道 联通黄浦核心。
因此据了解,不少工作在黄浦、徐汇、陆家嘴等核心区域的精英人士都将目光投向了这里。其客群并非局限于区域内的改善群体,而是辐射到整个上海的财富圈层。这种广泛且高端的客群基础,赋予了项目更加强劲的未来潜力,也让其在市场中更具竞争力。


用顶豪手法打造
华润置地上海最顶级的产品
☑️华润外滩瑞府售楼处电话:400-8377-020☑️
作为华润置地落子上海的巅峰之作,外滩瑞府以顶豪级品质,在设计与规划中注入定制化元素和艺术质感,每一处细节皆彰显对精英生活的深刻理解。
1、全球奢华设计天团,顶豪级定制化基因
建筑:GOA大象设计(代表作杭州桃花源)以“垂直历史”理念重构海派风貌美学;
公区:渡边智昭(翠湖天地、汤臣一品主创)亲制架空层与会所,植入艺术策展空间;
景观:泰国TROP事务所融合江南水系与爵士乐律动,打造“声景共生”庭院;
室内:吴滨(无间设计)与李益中联袂,以安缦酒店美学定制精装系统;

因此,你能欣赏到罕见“ 风貌→幕墙→冠冕 ” 的立体生长美学。
高层基座溯源石库门建筑精髓,复刻经典拱券符号;中段以通透玻璃幕墙搭配流线型金属线条,营造国际前沿的现代质感;顶部“冠冕”造型,进一步升华昭示性。
声明:本文由入驻焦点开放平台的作者撰写,除焦点官方账号外,观点仅代表作者本人,不代表焦点立场。
