项目基本信息
项目名称招商时代潮派 备案名星誉铭庭 开发商招商蛇口 产权性质及年限住宅-70年 户型及面积高层:建面89㎡(3-2-1)【379-460万左右】高层:建面99㎡(3-2-2)【420-524万左右】高层:建面125㎡(4-2-2)【554-672万左右】 单价区间高层:4.2-5.2万 总价区间高层:379-672万左右 交付标准装修(中央空调+地暖+新风) 得房率约73%-78% 绿化率35% 容积率2.0 物业费高层:4.8元/㎡/月 总层高高层14-18F 单层层高高层:14层为3米;18层2.95米 总栋数一期20栋 总户数14-01地块1246户 梯户比14层为一梯两户;18层为两梯四户及三梯六户
☑️☑️招商时代潮派售楼处电话:400-8377-020☑️☑️
拿地时间2024年1月10日 预计交付时间一期预计2026年11月30日 车位配比1:1.09
编辑

☑️☑️招商时代潮派售楼处电话:400-8377-020☑️☑️
品质标杆 森屿度假社区
【招商时代潮派】以国际酒店为灵感,打造平行世界的高品质生活方式。
编辑

☑️☑️招商时代潮派售楼处电话:400-8377-020☑️☑️
效果示意图,仅供参考
颜值立面,沉淀历久弥新的惊艳
【招商时代潮派】汲取极简主义的精髓,运用简约线条精心塑造建筑的轻盈感与未来感。项目特别设计了鎏金穹顶,以其独特的艺术魅力为城市天际线勾勒出一道历久弥新的美学符号,彰显了项目的品质与品味。
编辑

☑️☑️招商时代潮派售楼处电话:400-8377-020☑️☑️
效果示意图,仅供参考
在建筑的转角处,项目巧妙地运用了弧形元素,不仅柔化了建筑的立面形态,更增强了整体空间的流动感与韵律美,使建筑在保持简约风格的同时,又不失优雅与和谐。
编辑

☑️☑️招商时代潮派售楼处电话:400-8377-020☑️☑️
效果示意图,仅供参考
三重归家,匠心高定生活礼仪
在归家仪式感方面,招商时代潮派精心规划三重归家动线。
编辑

☑️☑️招商时代潮派售楼处电话:400-8377-020☑️☑️
效果示意图,仅供参考
社区主入口设计酒店式环岛归家,辅以活力四溢的涌泉水景,营造出更尊崇的归家仪式感,让业主在归家的瞬间感受到尊贵与温馨。
入户门厅以弧形悬浮顶棚为特色,为业主带来柔和温润的归家关怀,让归家的每一步都充满舒适与惬意。
编辑

☑️☑️招商时代潮派售楼处电话:400-8377-020☑️☑️
效果示意图,仅供参考
此外,项目还设有地上地下双精装大堂,地下车库电梯直达,为业主提供便捷高效的出行体验,同时也彰显了极尽礼宾仪式的尊贵品质。
编辑

效果示意图,仅供参考
多元景观,自然森系生活体验
项目充分融合多元化的景观元素,内外呼应巧妙构筑了:迎宾门庭、连绵水苑、潮玩乐园、光影艺廊、冥想绿境、休闲会客、景观入户等多维并蓄的高颜值景观组团,让业主享受兼具现代美学与自然森系特色的度假式居所。
编辑

☑️☑️招商时代潮派售楼处电话:400-8377-020☑️☑️
效果示意图,仅供参考
四大架空层,自家楼下的泛会所
招商时代潮派在社区内部精心布局了多个架空层区域,涵盖休闲会客、社交洽谈、儿童娱乐及阅读室四大核心功能模块,为业主带来适合全龄段的社交空间,营造更加温馨和谐的生活氛围。
编辑

效果示意图,仅供参考
产品方面,【招商时代潮派】 本次推出的 8#、9# 建面约103-127㎡全龄改善三房,另 2# 、 3# 、 10# 还有少量91-101 ㎡清退房源,不论是奢阔尺度、还是”三阳台”“ 双套房““高得房率”……都是在市面上十分”抗打“的极有品质。松江百平方米改善三房难得出现的产品,正在认购中。
编辑

☑️☑️招商时代潮派售楼处电话:400-8377-020☑️☑️
效果示意图,仅供参考
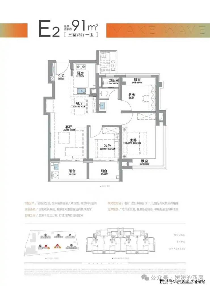
项目最新户型图▼
编辑

☑️☑️招商时代潮派售楼处电话:400-8377-020☑️☑️
编辑

☑️☑️招商时代潮派售楼处电话:400-8377-020☑️☑️
9号线松江泗泾「招商时代潮派东屿」约91-127㎡三房,均价5.27万/㎡ 总价419万起!线上预约看房享团购优惠
媛媛的新房已关注
分享点赞在看已同步到看一看写下你的评论
视频详情
“南向双阳台+南北双飘窗”,构筑真3房户型!
先来看南次卧:
编辑

☑️☑️招商时代潮派售楼处电话:400-8377-020☑️☑️
这个卧室里放下了一张双人床、一个梳妆台、阳台上还能放休闲座椅和小茶几。
妥妥的“建面约100㎡以上户型的主卧级尺度”。
其次,南向主卧:
编辑

☑️☑️招商时代潮派售楼处电话:400-8377-020☑️☑️
整个主卧尺度感是非常宽绰的,加上飘窗带来的视野延展以及收纳空间,居住舒适度拉满。
如果是边套的主卧,还会有一个约270°的转角飘窗,尺度感和实用性更上一层楼。
编辑

☑️☑️招商时代潮派售楼处电话:400-8377-020☑️☑️
再来看北次卧:
编辑

虽然样板间做了一个书房,但如果是爸妈偶尔来住一样,或者做一个儿童房,也是绰绰有余的。
这样一个低总价、高实用性的产品,却保证了业主所有的生活需求。给了业主一个真正一步到位上车TOD真3房的机会,真的是性价比很高。
S墙设计,释放厨房空间,小户型也能放下双开门冰箱!
市场上绝大多数建面约91㎡的3房户型,小厨房+单开门冰箱是标配。对于一生爱囤货的中国人来说,如此格局只能说“需要忍受”。
为此,招商·时代潮派|东屿设计了一面S墙,可以放下一个超大的双开门冰箱。
编辑

☑️☑️招商时代潮派售楼处电话:400-8377-020☑️☑️
同时把原本冰箱的空间都留给了厨房,让业主有更多的空间进行烹饪。
编辑

☑️☑️招商时代潮派售楼处电话:400-8377-020☑️☑️
说完户型,我们再来看一下项目的精装和收纳:
招商·时代潮派|东屿的收纳,几乎是做到了极致。
首先是厨房:
9号线泗泾站旁,招商泗泾TOD项目—— 【招商时代潮派】二期二批次开盘热卖中!
编辑

☑️☑️招商时代潮派售楼处电话:400-8377-020☑️☑️
用一座超能级TOD作☑️☑️招商时代潮派售楼处电话:400-8377-020☑️☑️ 答西上海新中芯!
编辑

☑️☑️招商时代潮派售楼处电话:400-8377-020☑️☑️
城市,对于未来的探索从未停止,一个建筑,一条地铁,一座商业,乃至一条街巷总是或多或少缺乏对于理想生活的想象,时代需要更大规模的践行,而TOD的到来,完美解决了这一问题。
编辑

面对“五大新城”以及泗泾2035规划大型特色轨交TOD的战略背书, 【招商时代潮派】以新一代TOD4.0集约式复合开发,打造西上海卓越城市进程的战略支点,产城融合高品质发展样板支点, 构建15分钟生活圈的区域支点一座领潮时代的TOD大城呼之欲出。
编辑

☑️☑️招商时代潮派售楼处电话:400-8377-020☑️☑️
阅遍世界各大顶级TOD的【招商时代潮派】,这一次站在巨人的肩膀上,汲取了日本南町田与西九龙TOD的开发模式,跨越TOD1.0车站模式、TOD2.0站楼一体化、TOD3.0的站城一体化, 打造站、城、人一体化的TOD4.0模式带来一场城市界面的迭新与生活方式的焕新!
编辑

一座TOD“微缩之城”
一处理想生活新地标
编辑

☑️☑️招商时代潮派售楼处电话:400-8377-020☑️☑️
项目加推建面约103-127m²3-4房
过会均价52743元/m²,总价约483万起
前期少量建面约91-99m²3房
过会均价50756元/m²,总价420万起!
编辑

☑️☑️招商时代潮派售楼处电话:400-8377-020☑️☑️
☑️☑️招商时代潮派售楼处电话:400-8377-020☑️☑️
即可预约 莅临品鉴
预约后请耐心等待案场销售联系
目前仅接待预约客
编辑

☑️☑️招商时代潮派售楼处电话:400-8377-020☑️☑️
编辑

☑️☑️招商时代潮派售楼处电话:400-8377-020☑️☑️
户型图赏鉴
编辑

编辑

☑️☑️招商时代潮派售楼处电话:400-8377-020☑️☑️
“南向双阳台+南北双飘窗”,构筑真3房户型!
先来看南次卧:
编辑

这个卧室里放下了一张双人床、一个梳妆台、阳台上还能放休闲座椅和小茶几。
妥妥的“建面约100㎡以上户型的主卧级尺度”。
其次,南向主卧:
编辑

☑️☑️招商时代潮派售楼处电话:400-8377-020☑️☑️
整个主卧尺度感是非常宽绰的,加上飘窗带来的视野延展以及收纳空间,居住舒适度拉满。
如果是边套的主卧,还会有一个约270°的转角飘窗,尺度感和实用性更上一层楼。
编辑

☑️☑️招商时代潮派售楼处电话:400-8377-020☑️☑️
再来看北次卧:
编辑

☑️☑️招商时代潮派售楼处电话:400-8377-020☑️☑️
虽然样板间做了一个书房,但如果是爸妈偶尔来住一样,或者做一个儿童房,也是绰绰有余的。
这样一个低总价、高实用性的产品,却保证了业主所有的生活需求。给了业主一个真正一步到位上车TOD真3房的机会,真的是性价比很高。
S墙设计,释放厨房空间,小户型也能放下双开门冰箱!
市场上绝大多数建面约91㎡的3房户型,小厨房+单开门冰箱是标配。对于一生爱囤货的中国人来说,如此格局只能说“需要忍受”。
为此,招商·时代潮派|东屿设计了一面S墙,可以放下一个超大的双开门冰箱。
编辑

☑️☑️招商时代潮派售楼处电话:400-8377-020☑️☑️
同时把原本冰箱的空间都留给了厨房,让业主有更多的空间进行烹饪。
编辑

说完户型,我们再来看一下项目的精装和收纳:
招商·时代潮派|东屿的收纳,几乎是做到了极致。
首先是厨房:
编辑

☑️☑️招商时代潮派售楼处电话:400-8377-020☑️☑️
不管是小碗、大碗还是其他特殊餐具,都有不同的大小规格的抽屉可供整齐的摆放。让整个厨房的空间,得到充分的“扩容”。
满足业主对于烹饪、收纳的所有需求。
其次还有玄关部分:
编辑

玄关收纳更精细,每个格子的规划都很贴近生活,随手物件、女主人的高靴、扫地机器人等都有各自安置空间。
同时玄关柜底部也特意做了镂空,可以摆放拖鞋、换洗的鞋子、摆放扫地机器人等都很实用。
卫生间收纳也是相当出色:
编辑

☑️☑️招商时代潮派售楼处电话:400-8377-020☑️☑️
尤其是卫生间的镜柜,使用了内外双镜,并且内部的收纳空间相当丰富,小到女主人的发箍、面膜、口红、香水,大到吹风机都有适合的位置。
并且,还配备了一个美妆冰箱,可以收纳昂贵、需要冷藏的化妆品等。
另外,项目在整个居住空间设计了更实用的壁龛,包括卫生间、厨房等。
在同样的空间内,构造出了更多的收纳空间,这就是匠心,这就是招商对于人居更深层次的思考。
编辑

☑️☑️招商时代潮派售楼处电话:400-8377-020☑️☑️
建面约103㎡户型,堪称市场上的“颠覆者”。
除了标准的 三开间朝南之外,项目还采用了S墙设计,释放了厨房空间,让小户型也能放下门冰箱。
值得一提的是,该户型做到了 “南向双阳台+南北双飘窗”的设计,在实用性上超越了市场上许多同面积段的产品。
约7.7米的双阳台,超大横厅,如此尺度感在市面上一般只会出现在建面约120㎡以上的户型中,而招商在建面约103㎡户型中就能实现!
另外,南向双阳台的设计意味着,业主可根据自己的喜好灵活打造全龄空间。
比如,你可以将次卧与阳台联通,从而达到“双主卧”的效果;如果你想生活更丰富,可以将两个南向阳台打通,超大尺度观景阳台,室外风景一览无遗。
编辑

编辑

☑️☑️招商时代潮派售楼处电话:400-8377-020☑️☑️
建面约127㎡的改善户型将私密与舒适的完美融合,畅享无限拓展生活空间。
首先一进门,映入眼帘的并非开阔的客厅,而是一个精心设计的玄关,这一巧妙设计,充分保障了居住的私密性。
超大横厅设计和南北次卧均连接阳台的设计,为客厅的拓展提供了得天独厚的条件。
一是可以将客厅与次卧进行打通,进一步扩大客厅的面积,打造一个更加宽敞舒适的休闲空间。
在这个拓展后的客厅中,你可以设置一个家庭影院,与家人一起享受精彩的影视盛宴;也可以打造一个健身区,满足自己的运动需求。
编辑

二是将南北次卧与阳台相链接的设计,为卧室的拓展提供了更多的可能。
你可以在阳台上设置一个小型的工作区或学习区,对于有孩子的家庭来说,还可以在阳台上设置一个儿童游乐区,让孩子在这里尽情玩耍。
编辑

☑️☑️招商时代潮派售楼处电话:400-8377-020☑️☑️
而这种人性化的设计,充分考虑了中国家庭的生活习惯,提升了居住的舒适度。
最后,在精装层面,项目走的依旧是高奢范:
松下或 日立或 东芝或 三菱或同等品牌的空调地暖两联机;
百朗或同等品牌的新风系统;
方太或同等品牌的 燃气灶+油烟机+洗碗机;
主卫科勒或TOTO或同等品牌的台盆、台盆龙头;
高仪或科勒或同等品牌(仅主卫或单卫户型配置)的智能马桶、恒温花洒等国际高定装标在招商·时代潮派|东屿中聚首,确保业主后期使用体验。
整个项目的精装品质和收纳设计真的是超配般的存在。
土拍回顾及规划
2024年1月10日,经过56路竞价,最终 招商以52.5亿摘下松江区泗泾镇SJS20005单元14-01、16-02、17-07号地块,地块位于9号线泗泾站北侧,出让面积129624.71㎡, 房地联动价51100元/㎡。
14-01、16-02、17-07号地块位置示意图
编辑

☑️☑️招商时代潮派售楼处电话:400-8377-020☑️☑️
招商泗泾项目由3幅子地块组成, 根据土地转让合同要求显示,规划住宅套数下限1756套,装标2500元/m²(集采价)
14-01号地块东至横港公路,南至横港河,西至外婆泾路,北至恒泽路。
16-02号地块东至横港公路,南至泗陈公路,西至外婆泾路,北至泗安路(规划)。
17-07号地块东至洞泾港,南至泗陈公路,西至横港公路,北至横港河。
编辑

根据设计方案显示, 14-01地块拟建12幢14F小高层,4幢17-18F高层,3幢5F多层,1幢层高18F的保障房。
编辑

☑️☑️招商时代潮派售楼处电话:400-8377-020☑️☑️
17-07地块:占地面积约2.76万方,总建筑面积约10.96万方,容积率2.5, 拟建6栋18F高层住宅、1栋18F保障房、1栋14F酒店、3栋2-3F商业以及若干配套用房!
编辑

编辑

☑️☑️招商时代潮派售楼处电话:400-8377-020☑️☑️
社区方面,项目本次推出的是17-07地块:
这个社区有几点重点,帮大家拎一下:
占位上:整个社区的北侧与东侧双面环水、西侧是商业,不止有繁华的城市街景,更有滨水风光,光这个社区的占位和天赋,就已经足够出色。
编辑

立面上:整体立面风格以现代为主,使用 香槟色铝板的框与线组合设计,搭配转角处的弧形元素,使造型更丰富的同时,给人更亲和的立面感受。
编辑

☑️☑️招商时代潮派售楼处电话:400-8377-020☑️☑️
归家仪式上:社区主入口借鉴了高定酒店式的入口氛围。
顶部采用 香槟金色的斜角造型铝板,搭配手工打磨的星空顶及氛围灯,地面铺设仿石砖,墙面基调则借鉴了华尔道夫酒店的浅米黄色系大理石,并配以精致的礼仪灯设计。
不管是用料、颜值、审美力,都展现出了星级酒店式的尊贵归家仪式感。
编辑

编辑

☑️☑️招商时代潮派售楼处电话:400-8377-020☑️☑️
同时,入户大堂立面造型延续了 主立面的框与线结合,飘顶弧形雨棚,组成高定入户大堂,增加入户仪式感。
编辑

景观方面,整个社区景观结构通过精心规划的 “一带一街一堂一核四园多户多庭”空间构架,使得自然与艺术完美融合。
这里有 “艺术家乐园”为主题的儿童乐园;有会客花园 “芳瑶馥郁”、阅读空间 “林屿花意”、森系空间 ”悦然氧吧“等。
编辑

☑️☑️招商时代潮派售楼处电话:400-8377-020☑️☑️
编辑

编辑

☑️☑️招商时代潮派售楼处电话:400-8377-020☑️☑️
总结一下, 在上海约420万起的市场中,招商·时代潮派|东屿就是一个地段、通勤、户型、精装、颜值、审美、生活方式都全维度都领先的六边形战士。
买到TA,就是选中了这个市场内的“正确答案”!
生活配套
交通方面:项目紧邻9号线泗泾站,9号线一直是泗泾的一张“王牌”,这条轨交为泗泾带来了3站七宝,9站徐家汇的巨大通勤优势。未来松江还会有12号线西延伸,对于泗泾人民来说,轨交出行十分便利。
编辑

☑️☑️招商时代潮派售楼处电话:400-8377-020☑️☑️
另外,泗泾拥有四横四纵的立体交通路网:G50沪渝高速连接内环,直达市中心;泗陈公路连接七宝和漕河泾;沈砖公路连接沪闵路高架直达徐家汇;G60沪昆高速连接徐浦大桥,直达浦东。
编辑

商业方面,项目本身除了打造19万平方的TOD综合体之外,还有三湘商业广场、保利悦活荟、金地方邻等商业。
编辑

☑️☑️招商时代潮派售楼处电话:400-8377-020☑️☑️
教育方面,周边还有上师大附属松江实验学校、泗泾小学、泗泾第十幼儿园等优质教育资源。
编辑

医疗方面,泗泾医院现正在积极创建二级甲等综合性医院中,计划建成第二批上海市区域医疗中心。
编辑

☑️☑️招商时代潮派售楼处电话:400-8377-020☑️☑️
绿化方面,泗泾有着总长约9.03千米的泗泾塘,贯穿整个片区。还有约5.4万平方米的泗滨绿地。(以上数据来源,百度百科)