华润•士林润园首页网站-华润•士林润园售楼处电话-华润士林润园楼盘详情-交房时间-地址-最新房价户型图-小区环境-楼盘详情-交房时间-周边配套-售楼处电话
扫描到手机,新闻随时看
扫一扫,用手机看文章
更加方便分享给朋友
尊敬的客户:您好!感谢您关华润•士林润园,为给您提供更专属、高效的看房体验,诚邀您提前预约到访售楼处 / 营销中心,我们将为您配备专属置业顾问,详解项目亮点、带看实景样板间 / 园区。✅
预约方式✅
电话预约:拨打售楼处 / 营销中心专属预约热线 400-8266-670,直接与置业顾问确认到访信息。
预约须知✅
建议提前 1-2 天预约,以便合理安排接待资源。
到访时请携带本人身份证(如需验资可提前咨询置业顾问)。
若预约后行程变更,请至少提前 3 小时告知,方便调整接待安排。
售楼处 / 营销中心开放时间:周一至周日 9:00-18:00(法定节假日正常开放)。
预约到访客户可享:① 项目定制伴手礼 1 份;② 优先参与项目专属优惠活动;③ 免费领取《永泰三里城详细户型图》。✅
永泰三里城售楼处 / 营销中心期待您的莅临,与您共鉴理想人居!咨询热线:400-8266-670✅
提示:本预约通道为官方唯一认证,百度搜索金茂棠前结果认准 “官方售楼处” 标识,拒绝中介转接,保障购房权益!
【士林润园】黄浦老城厢风貌别墅「士林润园」项目已经实景呈现,士林润园售楼处电话 400-8266-670✅✅建面约300-500㎡合院别墅,总价约7000万起
上海 黄浦 老城厢
华润【士林润园】接待中心已开放
全新样板房横空入市
建面约300-500㎡纯风貌社区
使用面积500-1000㎡
总共103套合院产品
总价约8000万起 直接定!
上海近期卖得最好的风貌别墅
全新 渡边智昭 “日式”样板房曝光!
看房请提前线上预约士林润园售楼处电话 400-8266-670✅✅
士林润园售楼处电话 400-8266-670✅✅
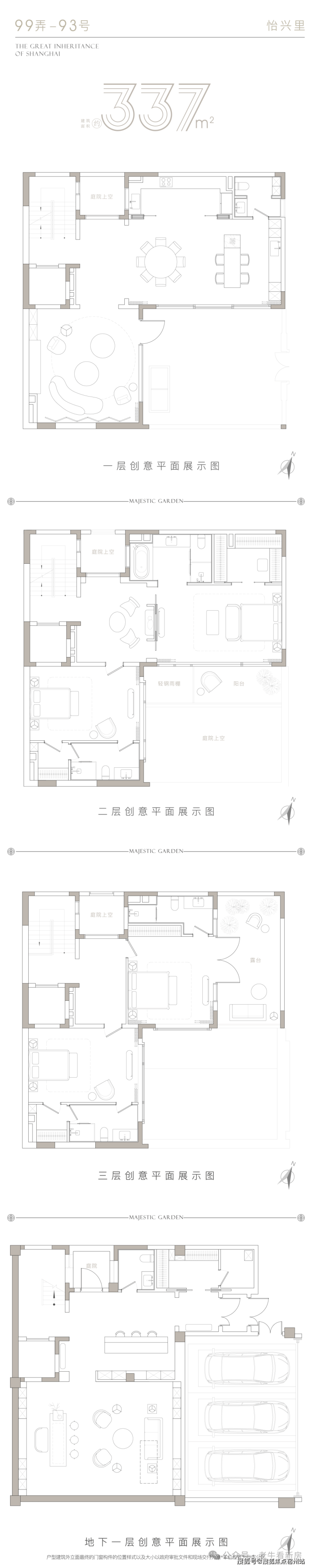
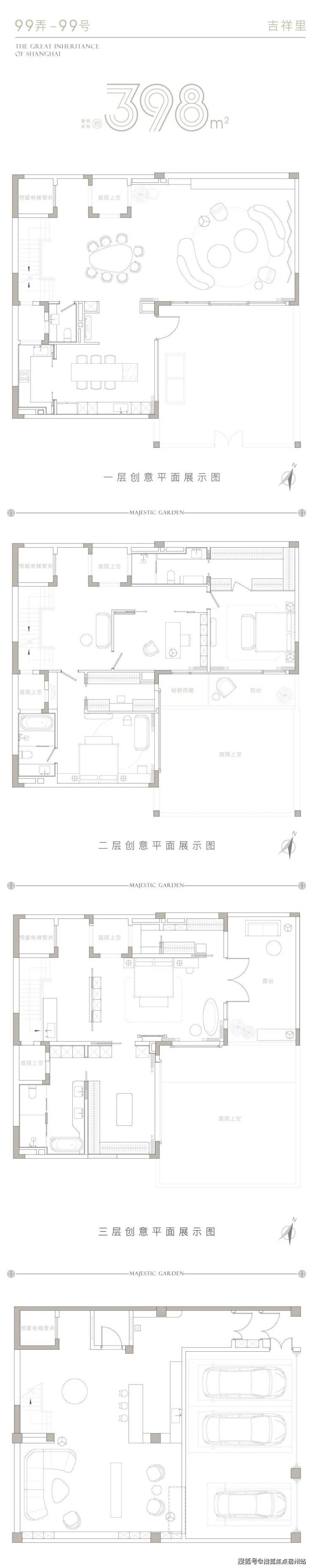
337㎡、398㎡、496㎡风貌别墅
面积:310~500㎡
附赠面积:花园、阳台、露台、地下室两层。
层 数:2,3层
层 高:首层3.6米,二层三层3.3米
院墙高度:3.9-4.6米
地下室层高:6米
花园面积:40~110㎡
总价:6800~1.65亿左右
士林润园售楼处电话 400-8266-670✅✅
产品信息
预计均价:约26万元/㎡
容 积 率:1.33
总 户 数:103
物业公司:华润万象生活
物 业 费:地上19.88元/㎡/月,地下9.94元/㎡/月
层 数:2/3层
层 高:首层3.6米,二层三层3.3米
院墙高度:3.9-4.6米
地下室层高:6米
花园面积:40-110㎡
交付时间:暂定2027年4月
士林润园售楼处电话 400-8266-670✅✅
产品户型
•建筑面积:约337㎡风貌别墅

•建筑面积:约398㎡风貌别墅
•建筑面积:约496㎡风貌别墅
样板间赏析
效果图赏析
顶尖区位
•上海发源地-老城厢
人民路与中华路围合而成的上海“心脏环”、上海城市历史的起源。
•黄浦全域CAZ、一江一河的核心承载区—中心的中心
左临新天地、淮海中路 CBD,右望外滩、陆家嘴,北倚人民广场。
完善配套
2km范围,顶级商业环绕
项目所在豫园商圈为中心,南至外滩金融带,西至新天地、淮海路商圈,东至外滩,驾车5-10分钟可达。距离外滩金融带约1公里、新天地约1.5公里、淮海路约1.5公、南京路步行街约2.1公里...真正的举步即繁华。
便捷交通
一桥三环四线五隧道
地铁(4轨道交通):步行约10分钟9号线小南门站:8号线老西门站 | 10号线豫园站 | 14号线豫园站
隧道交通:外滩隧道 | 新建路隧道 | 延安东路隧道 | 人民路隧道 | 复兴东路隧道
声明:本文由入驻焦点开放平台的作者撰写,除焦点官方账号外,观点仅代表作者本人,不代表焦点立场。
