在上海,能同时拥有「风貌稀缺」「滨江近距」「纯墅低密」三重标签的项目,屈指可数。
「越秀·外滩樾」——外滩源1.2公里内的纯风貌别墅社区,以约1.3容积率的低密尺度、49栋独栋格局,重塑塔尖人群的滨江风貌生活方式。
这不仅是一处住所,更是一种关于上海风貌与现代隐奢生活的再定义。
☑️☑️越秀外滩樾售楼处电话:400-8377-020☑️☑️
编辑

☑️☑️越秀外滩樾售楼处电话:400-8377-020☑️☑️
🏡 项目基础信息
项目名称:越秀·外滩樾
项目类型:纯风貌别墅
开发商:越秀地产(上海漕樾经济发展有限公司)
物业公司:越秀商管
交付时间:预计2026年底
交付标准:毛坯
总户数:共49栋(48栋可售)
占地面积:约1.08万㎡
建筑面积:约1.4万㎡(地上)
容积率:约1.3
层数:地上3层,地下2层
地下层高:B1约6.15m,B2约3.9m
车位配比:约2.75
物业费:约26.8元/㎡
均价:约23万元/㎡
总价区间:约4500万–9000万元
☑️☑️越秀外滩樾售楼处电话:400-8377-020☑️☑️
项目亮点:距外滩源约1.2公里,内环滨江稀缺新建风貌别墅
编辑

☑️☑️越秀外滩樾售楼处电话:400-8377-020☑️☑️
01
编辑

☑️☑️越秀外滩樾售楼处电话:400-8377-020☑️☑️
北外滩|世界级的上海新封面
越秀·外滩樾,坐落于上海北外滩板块——与外滩、陆家嘴并称为“黄金三角”的核心区域。
作为上海新一轮全球化的城市封面,这里将以 2座陆家嘴的商务体量、 新天地2.0生活圈重塑上海中心的世界级能级。
总开发体量:约840万方
摩天集群:480米浦西第一高楼 + 19栋摩天大楼
金融企业:2100+家,总资产管理规模超8万亿元
航运产业:4500+家航运企业汇聚
贸易总部:2500+家全球贸易企业入驻
科技能级:129家高新技术企业、113家科技小巨人
(数据来源:上海市规划局《北外滩地区控制性详细规划》)
编辑

☑️☑️越秀外滩樾售楼处电话:400-8377-020☑️☑️
02
编辑

☑️☑️越秀外滩樾售楼处电话:400-8377-020☑️☑️
三维立体交通|一桥连三地,一隧抵两岸
约360米 新建路隧道 → 快速直达陆家嘴CBD
约670米 外滩隧道 → 直通外滩及老码头
约150米 北横通道 → 连接虹桥枢纽、全城无界
约2.4公里 大连路隧道 → 直抵世纪大道与八百伴商圈
轨交便利:地铁4/10号线海伦路站约850米,12号线国际客运中心站约500米
编辑

☑️☑️越秀外滩樾售楼处电话:400-8377-020☑️☑️
03
编辑

☑️☑️越秀外滩樾售楼处电话:400-8377-020☑️☑️
繁华商圈环伺|三公里内尽揽顶奢资源
北外滩商圈:约500米
外滩商圈:约1000米
陆家嘴商圈:约1500米
瑞虹商圈:约900米
同时近距白玉兰广场、瑞虹新城太阳宫、北外滩来福士等高端商业地标,
集购物、餐饮、文化、娱乐、艺术于一体, 奢享浦西的顶级国际生活圈。
编辑

☑️☑️越秀外滩樾售楼处电话:400-8377-020☑️☑️
04
编辑

自然与人文|一江一河间的艺术生态
距离 北外滩滨江绿地仅约800米
可眺望陆家嘴天际线
周边环绕 四川北路公园、和平公园、鲁迅公园等多重绿意
绿地高低起伏,形成“依山傍水”的层次景观,通透、流动、轻快的城市画卷
编辑

☑️☑️越秀外滩樾售楼处电话:400-8377-020☑️☑️
05
编辑

教育与医疗|塔尖家庭的全龄配套
教育资源(约1公里范围内)
东余杭路第一小学、第二中心小学、四川北路第一小学(重点)
继光高级中学、澄衷中学(区重点)
华东师范大学一附中、市重点高中上海外国语大学附属外国语学校东校
医疗资源(3公里范围内)
新华医院(儿科)
复旦大学附属妇产医院(妇产科)
上海市第一人民医院(重症)
上海东方医院(血管外科)
编辑

☑️☑️越秀外滩樾售楼处电话:400-8377-020☑️☑️
06
编辑

风貌建筑 × 东方美学
百年前的海派工艺被重译于当代,构筑“风貌之上”的豪宅标本。
清水红砖 × 八种非遗拼接工艺
装饰窗楣 × 同源张爱玲故居
弧形韵线 × 邬达克式建筑曲线
岩石山墙 × 巴洛克与东方融合之美
编辑

☑️☑️越秀外滩樾售楼处电话:400-8377-020☑️☑️
07
编辑

☑️☑️越秀外滩樾售楼处电话:400-8377-020☑️☑️
大师共筑 · 东方人居典范
程绍正韬 × 李玮珉
东方美学与现代简约的双大师合作,
从人本主义出发,以“风貌的当代表达”打造别墅新语境。
巷弄新生:双拼、三拼天地私享
美学新生:远东第一豪宅立面再现
材质新生:百年红砖、窑变砖、幻彩奢石定制
空间新生:私宴厅、泛会所、艺术会客厅
编辑

☑️☑️越秀外滩樾售楼处电话:400-8377-020☑️☑️
🏞 山水庭院 · 天光泳池
山水庭院:借鉴足立美术馆造园手法,移石入境、借光造景
天光泳池:以罗马会场为原型,融合古典与山水诗意,
实现“人在画中游”的静谧境界
编辑

🏢 国匠越秀 · 与上海共卓越
42载越秀地产,中国第一代商品房缔造者,千亿级综合开发集团。
曾打造广州国际金融中心、二沙岛豪宅群等地标作品。
2024中国房企综合实力TOP9(数据来源:亿翰智库)
编辑

08
编辑

项目总结|风貌之上 世界堂前
建面约238–338㎡ 海派院墅
三里外滩,立传别墅
让风貌,成为家族传承的开端。
编辑

☑️☑️越秀外滩樾售楼处电话:400-8377-020☑️☑️
编辑

☑️☑️越秀外滩樾售楼处电话:400-8377-020☑️☑️
编辑

编辑

☑️☑️越秀外滩樾售楼处电话:400-8377-020☑️☑️
编辑

编辑

编辑

☑️☑️越秀外滩樾售楼处电话:400-8377-020☑️☑️
编辑

编辑

【项目名称】越秀·外滩樾
【开发商】上海漕越经济发展有限公司
【项目位置】上海市·虹口区·梧州路235弄
【项目类别】70年产权住宅
【项目类型】风貌别墅
【可售户数】项目共计49栋(仅48栋可售)
【容积率】约1.3
【传奇的1.5公里 启航外滩百年世界史】
项目所在地北外滩,是百年前上海的发源地。作为上海开埠后第一座码头的诞生地,北外滩率先“开眼看世界”,海纳万国文化风潮,众多此后影响中国的创举在此诞生,是上海最早的“十里洋场”。
编辑

☑️☑️越秀外滩樾售楼处电话:400-8377-020☑️☑️
【上海新封面】黄金三角顶序规划
北外滩,与外滩、陆家嘴并称为上海的“黄金三角”。将以2座陆家嘴的商务体量规划,新天地2.0生活圈打造,成为上海跃升世界舞台的“中心发力”新引擎。
编辑

☑️☑️越秀外滩樾售楼处电话:400-8377-020☑️☑️
【经济中心】全球化核心腹地
北外滩总开发面积约840万方,自陆家嘴之后上海最大开发区域,未来将聚焦资产管理、金融科技、绿色航运等上游产业,打造“运作全球的总部城”。
编辑

☑️☑️越秀外滩樾售楼处电话:400-8377-020☑️☑️
【地标中心】世界仰止的高度
北外滩将建设480米高的浦西第一高楼——上海北外滩中心,未来将携19栋摩天大楼集群共筑上海崭新天际线。
编辑

【极核中心】顶奢商业新地标
约1.5KM内拥享北外滩商圈、外滩商圈、陆家嘴商圈,华贸奢侈品品牌之家、白玉兰广场等潮奢集萃,未来上海顶奢商业新地标,举步间繁华尽拥。
编辑

☑️☑️越秀外滩樾售楼处电话:400-8377-020☑️☑️
【交通中枢】无界畅行世界
约360米新建路隧道(直线距离),快速直达陆家嘴CBD;
约670米外滩隧道(直线距离),直达外滩金融商业街以及老码头;
约150米北横通道(直线距离)贯通全城,快速通达虹桥机场/虹桥火车站;
约2.4公里大连路隧道(直线距离),直达浦东东方路、世纪大道、八百伴商业圈。
编辑

教育资源方面:2km内就有 虹口区第二中心小学、 华东师大一附中实验小学、 华东师大一附初中等优质配套。*施教区及就学政策以教育部门规划为准
编辑

☑️☑️越秀外滩樾售楼处电话:400-8377-020☑️☑️
生活医疗方面:地块紧邻 上海第一人民医院(三甲),1km左右就有集购物、餐饮、娱乐休闲、办公及服务式公寓为一体的综合商业体——瑞虹天地,商业面积55万方,包括太阳宫、月亮湾、星星堂、瑞虹坊四个部分。
编辑

编辑

编辑

☑️☑️越秀外滩樾售楼处电话:400-8377-020☑️☑️
编辑

编辑

☑️☑️越秀外滩樾售楼处电话:400-8377-020☑️☑️
编辑

☑️☑️越秀外滩樾售楼处电话:400-8377-020☑️☑️
编辑

编辑

☑️☑️越秀外滩樾售楼处电话:400-8377-020☑️☑️
编辑

编辑

☑️☑️越秀外滩樾售楼处电话:400-8377-020☑️☑️
编辑

编辑

☑️☑️越秀外滩樾售楼处电话:400-8377-020☑️☑️
编辑

☑️☑️越秀外滩樾售楼处电话:400-8377-020☑️☑️
236.26平方A户型
编辑

☑️☑️越秀外滩樾售楼处电话:400-8377-020☑️☑️
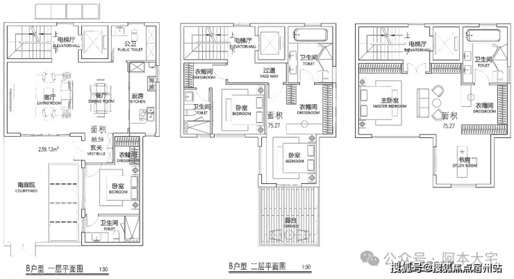
239.13平方B户型
编辑

250.89平方B-3户型
编辑

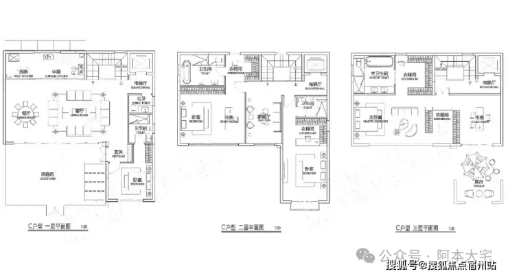
C户型
编辑

☑️☑️越秀外滩樾售楼处电话:400-8377-020☑️☑️
291.42平方D户型
编辑

小区创意来源
编辑

☑️☑️越秀外滩樾售楼处电话:400-8377-020☑️☑️
编辑

☑️☑️越秀外滩樾售楼处电话:400-8377-020☑️☑️
【42载越秀 | 千亿级开发商 与上海共卓越】
国内资产规模最大的地方驻港企业——越秀集团
42载国匠越秀 千亿级开发商——越秀地产
中国第一代商品房缔造者
2024中国房企综合实力TOP7
(信息来源:亿翰智库)
编辑

☑️☑️越秀外滩樾售楼处电话:400-8377-020☑️☑️
•一城中轴 半壁越秀:打造广州地标IFC、城建大厦、维多利广场、越秀金融大厦、财富广场、市长大厦、广州环贸中心(ICC)等诸多重量级作品。
•全球地标打造者:广州国际金融中心(IFC)高约440.75米,建成之时为全球10大超高层建筑之一,获得国际建筑界奥斯卡“英国菜伯金奖”。(此外,中国仅北京“鸟巢”和上海世博会英国馆荣获该奖项。)
•豪宅基因始终传承:打造“广州第一富人区”二沙岛,屹立广州顶豪之列,整个二沙岛9个项目,有7个项目都是越秀开发,其中越秀宏城花园单价25万-40万/㎡,总价1-6亿,一房难求。
编辑

☑️☑️越秀外滩樾售楼处电话:400-8377-020☑️☑️