「越秀·外滩樾」
内环内虹口北外滩
外滩仅1公里/陆家嘴1.5公里
建面约238/305/318/338㎡风貌别墅
仅48套房源可售 总价约4500万起
样板房提前线上预约
☑️☑️越秀外滩樾售楼处电话:400-8377-020☑️☑️
☑️☑️越秀外滩樾售楼处电话:400-8377-020☑️☑️

☑️☑️越秀外滩樾售楼处电话:400-8377-020☑️☑️
在顶豪圈层有一句话: 所谓家族的行宫,一定是要根植于土地之上的别墅!
如果说外滩代表了上海的过去,陆家嘴代表了上海的当下, 那么北外滩就代表了上海的未来。而 【越秀外滩樾】 就是将代表上海城市繁华的黄金三角,整个装进了自己的步行圈。

☑️☑️越秀外滩樾售楼处电话:400-8377-020☑️☑️
效果图
中国人对家族的情怀,亘古未变,而一套别墅,也早已成为家族意识传承的重要载体,同时担当着家族的荣耀。占位北外滩核心地段的越秀·外滩樾正是为49个传奇家族准备的行宫!
当然,除了地段和业态本身, 【越秀·外滩樾】 的收藏价值还来源于其注重居住舒适度的设计与无与伦比的尊崇服务。

☑️☑️越秀外滩樾售楼处电话:400-8377-020☑️☑️
效果图
最新消息: 虹口北外滩,低密风貌别墅临港越秀北外滩,项目定名【越秀外滩樾】样板房已开放预约!
项目基础信息
【项目名称】 越秀·外滩樾
【开发商】 上海漕越经济发展有限公司
【项目位置】 上海市·虹口区·梧州路
【项目类别】 70年产权住宅
【项目类型】 风貌别墅
【可售户数】 48套
【容积率】 约1.3

☑️☑️越秀外滩樾售楼处电话:400-8377-020☑️☑️

百年前的高端工艺元素的经典转译,让海派造诣世纪传承,于历史和未来之间收藏百年上海。

清水红砖:百年前先进舶来品代表,10种以上拼接工艺铺陈
装饰窗楣:同源中共二大会址、张爱玲故居,装饰主义经典元素
弧形韵线:邬达克式的建筑曲线,同源远东第一豪宅的优雅轮廓
海派山墙:带肩仿观音兜,中西文化融合的典藏之美

☑️☑️越秀外滩樾售楼处电话:400-8377-020☑️☑️
【越秀·外滩樾】是世界知名大师汇聚一堂的灵感结晶,比如项目的设计总顾问邀请了 程绍正韬 。他是 建筑室内设计之东方主义集大成者 ,致力于东方文化的坚守与创新,打破惯常的职业思维,将生活方式化作一种哲学态度,融入空间设计,让设计不止于作品,再比如项目还邀请了城市文化大师 李玮珉 。

程绍正韬,集文人、工业家、艺术家、设计师、哲学家、修行者身份于一身,建筑室内设计之东方主义集大成者,致力于东方文化的坚守与创新。他打破惯常的职业思维,将生活方式化作一种哲学态度,融入空间设计,让设计不止于作品。

☑️☑️越秀外滩樾售楼处电话:400-8377-020☑️☑️
李玮珉,撑起中国豪宅设计半壁江山,擅长为城市塑造文化符号建筑作品。他的作品更多用极简的方式来表明态度,崇尚简而高效的现代生活方式。庄重的建筑语汇,适时注入艺术、自然与美学,让空间充满想象力。

大师操刀,必然不同凡响。
首先项目承袭了百年前的高端工艺元素,让海派传承得以延续。 将清砖立柱、古典门头、岩石山墙等经典海派建筑风貌转译和突破 ,更适配现代人居审美,于历史和未来之间收藏百年上海底蕴!

☑️☑️越秀外滩樾售楼处电话:400-8377-020☑️☑️
其次,项目超越了以往风貌建筑的尺度感,创新了风貌规制,带来了 城心难得的双拼、三拼别墅! 大窗墙比大南向开间保证了极高的舒适度。 大面积运用奢石的外立面,则把名门望族的尊贵身份和非凡气度体现的淋漓尽致!

效果图
巷弄新生:跨越风貌豪宅正统,打造双拼、三拼、多联排别墅的天地私享
建筑新生:创新风貌规制,致微而筑的建筑腔调赏新
美学新生:转译远东第一豪宅立面美学,收藏名门望族生活
材质新生:百年红砖、釉面砖、印度进口幻彩红奢石运用,型制家族传承

☑️☑️越秀外滩樾售楼处电话:400-8377-020☑️☑️
最后,项目社区配置的三处会所、泛会所空间合计约2500㎡,包含私宴厅、恒温泳池、私人运动空间等内容,提供酒店级高奢服务!

【越秀·外滩樾】项目将呈现48套低密风貌里弄住宅,建筑面积约238-338㎡户型。 户型图过程稿如下(过程稿仅供参考,最终以实际为准)。

建面约236.25㎡A户型▼

☑️☑️越秀外滩樾售楼处电话:400-8377-020☑️☑️
建面239.13㎡B户型 ▼

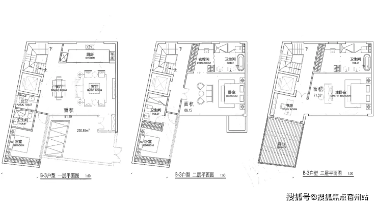
建面250.89㎡B-3户型▼

C户型 ▼

☑️☑️越秀外滩樾售楼处电话:400-8377-020☑️☑️
建面291.42㎡D户型 ▼

样板房 :

☑️☑️越秀外滩樾售楼处电话:400-8377-020☑️☑️

☑️☑️越秀外滩樾售楼处电话:400-8377-020☑️☑️



☑️☑️越秀外滩樾售楼处电话:400-8377-020☑️☑️


☑️☑️越秀外滩樾售楼处电话:400-8377-020☑️☑️
【41载越秀 | 千亿级开发商 与上海共卓越 】
国内资产规模最大的地方驻港企业之一越秀集团
41载国匠越秀 千亿级开发商——越秀地产
中国第一代商品房缔造者
已进驻30多个核心城市
开发了300多个大型住宅和50多个大型商业物业
2024中国房企综合实力TOP9
(信息来源:亿翰智库)

☑️☑️越秀外滩樾售楼处电话:400-8377-020☑️☑️
项目区位配套
【越秀·外滩樾】 项目地块四至范围, 东至:梧州路,隔壁是中皇广场;西至:hk270B-02,隔壁就是1933老场坊;南至:周家嘴路 北至:柘皋路。

【一座码头 启航外滩百年世界史】
项目所在地北外滩,是百年前上海的“下海”地。作为上海开埠后第一座码头的诞生地,北外滩率先“开眼看世界”,海纳万国文化风潮,众多此后影响中国的创举在此诞生,是上海最早的“ 十里洋场 ”
(*示意图,图片来源于网络)

☑️☑️越秀外滩樾售楼处电话:400-8377-020☑️☑️
【一江一河 再立世界上海新传】
傲立“一江一河”交汇处(直线距离约1.1KM),未来将打造成为彰显上海城市核心竞争力的黄金水岸和具有国际影响力的世界级城市会客厅,出入之间,相逢城市高阶未来
(*示意图,图片来源于网络)

【北外滩 面向世界的上海新封面】
北外滩,与外滩、陆家嘴并称为上海的“黄金三角”。将以2座陆家嘴的商务体量规划,新天地2.0生活圈打造,成为上海跃升世界舞台的“中心发力”新引擎
(*示意图,图片来源于网络)

【中央商务区 未来上海腾飞引擎】
区域能级: 总开发面积约840万方,40栋甲级写字楼城市地标:480米浦西第一高楼,19栋摩天大楼集群金融产业:2100+家金融企业赋能,资产管理规模超8万亿元,位居全市第一航运格局:4500+家航运企业集聚(上港集团、中远海运等),打造国际航运中心全球贸易:2500+家贸易企业入驻(摩亚方舟、银联商务等)新兴产业:129家新增高新技术企业,113家市区科技小巨人企业(数据来源:上海市规划局《北外滩地区控制性详细规划》)
(*示意图,图片来源于网络)

☑️☑️越秀外滩樾售楼处电话:400-8377-020☑️☑️
距离外滩商圈仅约1公里
项目所在地北外滩,是百年前上海的“下海”地。作为上海开埠后第一座码头的诞生地,北外滩率先“开眼看世界”,海纳万国文化风潮,众多此后影响中国的创举在此诞生,是上海最早的“十里洋场”。
示意图,图片来源于网络

轨道交通方面: 项目位于虹口区嘉兴路街道,距离 地铁4、10、19号线换乘站海伦路站约600米 ,交通十分便捷。

☑️☑️越秀外滩樾售楼处电话:400-8377-020☑️☑️
交通路网示意图,仅供参考

4号线海伦路站
商业配套方面: 项目约2公里内,多元繁华构筑封面商业圈:北外滩商圈直线距离约500米,外滩商圈直线距离约1000米,陆家嘴商圈直线距离约1500米,瑞虹商圈直线距离约900米。

教育资源方面: 2km内就有 虹口区第二中心小学 、 华东师大一附中实验小学 、 华东师大一附初中 等优质配套。*施教区及就学政策以教育部门规划为准
示意图,图片来源于网络

☑️☑️越秀外滩樾售楼处电话:400-8377-020☑️☑️
生态资源方面:2.5公里 北外滩滨江绿地(约800m直达) , 四川北路公园 、 和平公园 、 鲁迅公园 3大公园环伺,于滨江和城市低密绿芯之间,肇启当代诗意生活传序。
示意图,图片来源于网络

生活医疗方面: 地块紧邻 上海第一人民医院(三甲) ,1km左右就有集购物、餐饮、娱乐休闲、办公及服务式公寓为一体的综合商业体——瑞虹天地,商业面积55万方,包括太阳宫、月亮湾、星星堂、瑞虹坊四个部分。

☑️☑️越秀外滩樾售楼处电话:400-8377-020☑️☑️
图源网络,仅供参考
地块西侧的1933老场坊,早前是上海工部局宰牲场;而如今,成为了众多文艺青年打卡拍照的必游胜地。此次也要求保留工部局旧址建面约1800㎡。

基础信息
【项目名称】越秀·外滩樾
【开发商】上海漕越经济发展有限公司
【项目位置】上海市·虹口区·梧州路235弄
【项目类别】70年产权住宅
【项目类型】风貌别墅
【可售户数】项目共计49栋(仅48栋可售)
【容积率】约1.3
【北外滩 面向世界的上海新封面】
北外滩,与外滩、陆家嘴并称为上海的“黄金三角”。将以2座陆家嘴的商务体量规划,新天地2.0生活圈打造,成为上海跃升世界舞台的“中心发力”新引擎。上海2.0时代

☑️☑️越秀外滩樾售楼处电话:400-8377-020☑️☑️

金融产业:2100+家金融企业赋能,资产管理规模超8万亿元,位居全市第一
航运格局:4500+家航运企业集聚(上港集团、中远海运等),打造国际航运中心
全球贸易:2500+家贸易企业入驻(摩亚方舟、银联商务等)
新兴产业:129家新增高新技术企业,113家市区科技小巨人企业
(数据来源:上海市规划局《北外滩地区控制性详细规划》)

☑️☑️越秀外滩樾售楼处电话:400-8377-020☑️☑️
【立体交通|无界畅达世界擎动城市脉搏】
约360米新建路隧道(直线距离),快速直达陆家嘴CBD;
约670米外滩隧道(直线距离),直达外滩金融商业街以及老码头;
约150米北横通道(直线距离)贯通全城,快速通达虹桥机场/虹桥火车站;
约2.4公里大连路隧道(直线距离),直达浦东东方路、世纪大道、八百伴商业圈。

☑️☑️越秀外滩樾售楼处电话:400-8377-020☑️☑️
【核心商圈|高阶商业配套 国际摩登领潮】
商业配套方面项目约2公里内,多元繁华构筑封面商业圈
• 北外滩商圈直线距离约500米
• 外滩商圈直线距离约1000米
• 陆家嘴商圈直线距离约1500米
• 瑞虹商圈直线距离约900米

越秀不止是对建筑的传承,更是对百年上海文明的传颂和致敬
百年前的高端工艺元素的经典转译,让海派造诣世纪传承,于历史和未来之间收藏百年上海。

☑️☑️越秀外滩樾售楼处电话:400-8377-020☑️☑️

• 清水红砖:百年前先进舶来品代表,8种非遗拼接工艺铺陈
• 装饰窗楣:同源中共二大会址、张爱玲故居,装饰主义经典元素
• 弧形韵线:邬达克式的建筑曲线,同源远东第一豪宅的优雅轮廓
• 岩石山墙:巴洛克式带肩观音兜,中西文化融合的典藏之美

☑️☑️越秀外滩樾售楼处电话:400-8377-020☑️☑️
程绍正韬,集文人、工业家、艺术家、设计师、哲学家、修行者身份于一身,建筑室内设计之东方主义集大成者,致力于东方文化的坚守与创新。他打破惯常的职业思维,将生活方式化作一种哲学态度,融入空间设计,让设计不止于作品。

李玮珉,撑起中国豪宅设计半壁江山,擅长为城市塑造文化符号建筑作品。他的作品更多用极简的方式来表明态度,崇尚简而高效的现代生活方式。庄重的建筑语汇,适时注入艺术、自然与美学,让空间充满想象力。
与国内大师合筑,从人本主义设计思路出发,用源自东方的设计理念真正理解风貌,理解当代生活方式诉求 ,为影响下一个百年。

☑️☑️越秀外滩樾售楼处电话:400-8377-020☑️☑️

• 巷弄新生:跨越风貌豪宅正统,打造双拼、三拼别墅的天地私享
• 建筑新生:创新风貌规制,致微而筑的建筑
腔调赏新
• 美学新生:转译远东第一豪宅立面美学,收藏名门望族生活
• 材质新生:百年红砖、窑变砖、印度洋幻彩奢石运用,定制家族排场
2500m2生活艺术空间 无界融合之美
“让空间回到质朴宁静的状态,那是可以自在欢喜地面对一切可能的地方。”三大空间,无处不在艺术藏品。匠造会客空间、泛会所、私宴厅等私享场域,让生活理想于此自在蔓延

☑️☑️越秀外滩樾售楼处电话:400-8377-020☑️☑️
泳池| 遨游画境,潜心之所
游泳池以罗马会场泳池为灵感,汲取《观瀑图》的山水意境,将古典与现代完美融合。池畔以大理石铺就,线条优雅如古罗马建筑的恢弘气势,而池中水波粼粼,光影交错间,水幕如瀑,营造出“人在画中游”的诗意境界。

☑️☑️越秀外滩樾售楼处电话:400-8377-020☑️☑️

☑️☑️越秀外滩樾售楼处电话:400-8377-020☑️☑️
山水庭院 | 山间光感,天地织境
山水庭院汲取《足立美术馆》的造境手法,以老石皮、百年古木原样搬运,重现山间岁月的自然痕迹,与庭院中的光影交织,仿佛将山间的自然采光与静谧之感搬入城市。阳光透过树梢洒落,石皮上的纹理在光影中若隐若现,宛如一幅流动的自然山水画卷。
【42载越秀|千亿级开发商 与上海共卓越】
国内资产规模最大的地方驻港企业越秀集团
42载国匠越秀 千亿级开发商—越秀地产中国第一代商品房缔造者
已进驻30多个核心城市
开发了300多个大型住宅和50多个大型商业物业
2024中国房企综合实力TOP9

全球地标打造者:广州国际金融中心高约
440.75米,建成之时为全球10大超高层建筑之一,获得国际建筑界奥斯卡〝英国菜伯金奖”。(此外,中国仅北京“乌巢”和上海世博会英国馆荣获该奖项。)
豪宅基因始终传承:打造“广州第一富人区”二沙岛,屹立广州顶豪之列,整个二沙岛9个项目,有7个项目都是越秀开发,其中越秀宏城花园单价25万-40万/m’,总价1-6亿,一房难求。


☑️☑️越秀外滩樾售楼处电话:400-8377-020☑️☑️
虹口北外滩 低密风貌别墅
越秀地产& 临港集团 联合打造
「越秀·外滩樾」
建面约238-338㎡ 海派院墅
户型:238/305/318/338
总价约4000-9000万
目前“样板间”开放中
——·恭迎品鉴·——

项目傲立“一江一河”交汇处(直线距离约1.1KM),未来将打造成为彰显上海城市核心竞争力的黄金水岸和具有国际影响力的世界级城市会客厅,出入之间,相逢城市高阶未来。
☑️☑️越秀外滩樾售楼处电话:400-8377-020☑️☑️

☑️☑️越秀外滩樾售楼处电话:400-8377-020☑️☑️
以往风貌别墅中,出于保护建筑外立面规则,窗墙比带来的采光面小是一个很大的硬伤。
但在越秀·外滩樾,展现给我们的是则是 大窗墙比、大开间、大尺度!

☑️☑️越秀外滩樾售楼处电话:400-8377-020☑️☑️
外墙上交错排布的除了红砖与幻彩红奢石,还有更具光泽度的釉面砖;奢侈品店门头常用的陶砖,也被用在了越秀·外滩樾的外立面。每一款砖,都可以衍生出十余种做法,光是陶砖便有四种颜色、187种形制。这些砖块不是贴上去的,而是用了龙骨砌筑,它的整体成本甚至比石材还要昂贵。

☑️☑️越秀外滩樾售楼处电话:400-8377-020☑️☑️
这里的山石墙选自深山的原石 ,是具有丰富经验的匠人手工钻凿;
这里选用的子母松也是从松林中精心选取,符合山水中庭尺度且姿态优美的树株 ;
这里还遍布了与“山”景呼应、自地面叠层的垂瀑和水景 ······

☑️☑️越秀外滩樾售楼处电话:400-8377-020☑️☑️


☑️☑️越秀外滩樾售楼处电话:400-8377-020☑️☑️
堂前会客 ,营造了满满的社区入户的仪式感,通过红色陶砖与红洞石以及大面落地玻璃营造出了层次丰富的艺术立面。营造业主在家庭空间以外进行接待交往的处所。


☑️☑️越秀外滩樾售楼处电话:400-8377-020☑️☑️
从 定制的转角曲面玻璃墙,到全落地玻璃窗,每一个细节都在 把自然光线无限拉进室内!


复刻百年前的高端工艺元素,让海派造诣世纪传承。清砖立柱、古典门头、封闭门窗、岩石山墙等经典海派建筑风貌转译,于历史和未来之间收藏百年上海。

☑️☑️越秀外滩樾售楼处电话:400-8377-020☑️☑️
为了使我们在稀缺的地段营造稀缺的资源,把生活的想象现实化, 越秀·外滩樾还在会所引 “山水入园” 。在空间有限的情况下,进行垂直空间的挖掘,营造了 坡道景观、山水庭院和会所 。

☑️☑️越秀外滩樾售楼处电话:400-8377-020☑️☑️


☑️☑️越秀外滩樾售楼处电话:400-8377-020☑️☑️