华润华发·时代之城 (售楼处) 首页 - 时代之城销售中心 - 环境 - 户型 - 价格 - 地址 - 楼盘详情 - 配套 - 电话 - 交房时间 - 配套 - 电话 - 交房时间
扫描到手机,新闻随时看
扫一扫,用手机看文章
更加方便分享给朋友
500万级│印象城+山姆
30万方墅境国际美学社区
上海「华润华发·时代之城」售楼处电话:400-833-6309【官网】
案场预约制 看房需提前来电预约登记
请务必致电与销售确认时间,仅预约客户可进入销售现场,避免空跑,感谢您的支持
建面约92-135㎡高层热销中
总价约475-880万
建面约153-170㎡叠墅热销中
总价约1170-1600万
华润华发·时代之城售楼处电话:400-833-6309【官网】
华润置地 城市投资开发运营商
华润置地,于1994年改组成立,是《财富》“世界500强”华润(集团)有限公司旗下负责城市建设运营的业务单元,是行业领先的城市投资开发运营商。华润置地荣膺“2023房地产上市公司综合实力榜”TOP3,中国内地十大开发商之一,中国商业地产领导者。华润华发·时代之城售楼处电话:400-833-6309【官网】
华发股份 品质中国匠心筑家
珠海华发实业股份有限公司(简称:华发股份,股票代码:600325)是承接华发集团房产开发板块的平台公司,始创于1980年。秉承“品质中国 匠心筑家”的品牌理念,积极探索“科技+人居”战略,加快住宅及创新人居建设,升级城市美好生活。华润华发·时代之城售楼处电话:400-833-6309【官网】
华润华发·时代之城售楼处电话:400-833-6309【官网】
巨匠联袂 擎筑上海新时代
华润置地&华发股份,继近70万方都会CBD生活样本国际住区——上海静安府之后,2024年再度强强联袂,再造一座国际住区——时代之城,引领上海国际生活新风尚。
华润华发·时代之城售楼处电话:400-833-6309【官网】
根据项目规划设计方案显示,项目拟建38幢5-26F住宅产品,共计2871套
根据公示图显示,该项目的4个小板块最高层为项目东南角和西北角的26层高层,共有6栋,高度接近地块限高的80米(77.80米);18层的共有8栋;17层共有6栋;14层共有4栋;13层共有2栋;6层的共有4栋;5层的共有8栋。
华润华发·时代之城售楼处电话:400-833-6309【官网】
29-01地块(西北角地块)
29-01地块原设计方案,将北面人行/车行的出入口向西侧的安惠路方向进行了调整,并疑似将北面的主入口调整到了惠亚路一侧。
华润华发·时代之城售楼处电话:400-833-6309【官网】
31-02、33-01地块(北面地块)
华润华发·时代之城售楼处电话:400-833-6309【官网】
33-02地块(南面地块)
而在33-02地块中,也有很多调整,增加了更多出入口。比如北面西侧,在原车行出入口的基础上增加了“人行出入口”。
华润华发·时代之城售楼处电话:400-833-6309【官网】
超级大盘引领 互联街区生活
约30万方国际生活大城,为南翔打造全新中央生活圈。以低密大城及互动街区为载体,构建 “好品质、好邻居、好环境、好服务、好心情”五好社区,大盘之上,生活无界,完成一公里生活链路。华润华发·时代之城售楼处电话:400-833-6309【官网】
华润华发·时代之城售楼处电话:400-833-6309【官网】
现代光感立面 重塑摩登风尚
大师臻造,同频世界奢宅美学理念。高层/小高层立面采用部分天青色铝板,叠墅立面采用天青色釉面陶板,融合大面玻璃开窗(LOW-E玻璃),彰显澄澈简约,又时尚前卫的摩登气质。
华润华发·时代之城售楼处电话:400-833-6309【官网】
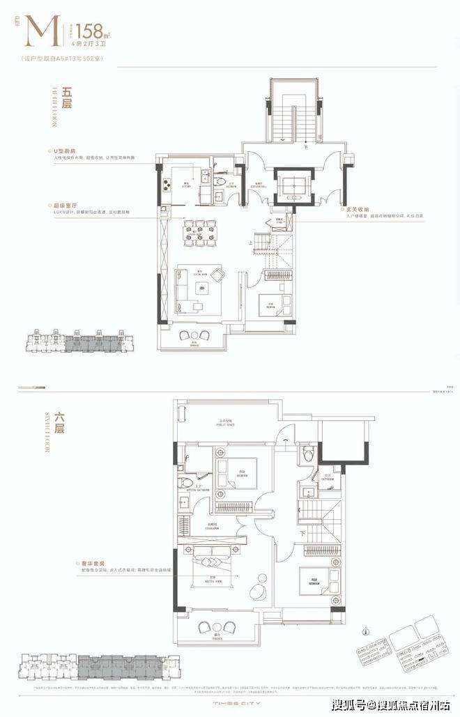
户型鉴赏↓
华润华发·时代之城售楼处电话:400-833-6309【官网】
华润华发·时代之城售楼处电话:400-833-6309【官网】
华润华发·时代之城售楼处电话:400-833-6309【官网】
华润华发·时代之城售楼处电话:400-833-6309【官网】
华润华发·时代之城售楼处电话:400-833-6309【官网】
华润华发·时代之城售楼处电话:400-833-6309【官网】
华润华发·时代之城售楼处电话:400-833-6309【官网】
华润华发·时代之城售楼处电话:400-833-6309【官网】
华润华发·时代之城售楼处电话:400-833-6309【官网】
华润华发·时代之城售楼处电话:400-833-6309【官网】
二期叠墅户型鉴赏↓华润华发·时代之城售楼处电话:400-833-6309【官网】
华润华发·时代之城售楼处电话:400-833-6309【官网】
华润华发·时代之城售楼处电话:400-833-6309【官网】
华润华发·时代之城售楼处电话:400-833-6309【官网】
华润华发·时代之城售楼处电话:400-833-6309【官网】
板块配套
项目位于嘉定南翔板块,作为南翔3.0发展的核心区域坐拥3km醇熟生活圈。
华润华发·时代之城售楼处电话:400-833-6309【官网】
南翔紧跟时代发展,注重产城融合,布局精准医学、游戏动漫、智能制造、在线新经济新消费等新兴产业,集聚一批产业链供应链上的高端细分企业,高精尖人才纷至沓来,擎领价值腾飞。
精准医学:2018年起布局,已集聚中生复诺健、君赛、奕检等300家精准医学企业,全力打造南翔生命元谷。华润华发·时代之城售楼处电话:400-833-6309【官网】
游戏动漫:现有游戏企业3900家,2022年实现税收12.6亿元,占全镇税收的14.4%,营收约占全市游戏产业的三分之一。
智能制造:集聚新时达、南亚、邦迪、梅卡曼德、易咖智车、遨博等领域涵盖工业机器人、协作机器人等。
在线新经济新消费:卓钢链、酒仙网等都已具备独角兽企业潜质,上美化妆品已成为国货新势力中的著名品牌。
华润华发·时代之城售楼处电话:400-833-6309【官网】
交通配套
华润华发·时代之城售楼处电话:400-833-6309【官网】
项目直距地铁11号线陈翔公路站约900米,近嘉闵线南翔站(在建),4站即虹桥;沪嘉高速、嘉闵高架等,极速驰骋轻松切换。(数据来源:百度测距)
3条轨交线:11号线(链接徐汇、浦东、前滩等CBD)、嘉闵线(4站直达虹桥商务区,未来无缝换乘13/14/机场联络线)、22号线(规划中)
2条高速路:沪嘉高速-中内环、沪翔高速-长三角
1条高架线:嘉闵高架向南,速抵大虹桥枢纽
1条联络线:嘉闵-沪嘉联络线(在建),衔接嘉定新城-大虹桥-中心城区的核心枢纽华润华发·时代之城售楼处电话:400-833-6309【官网】
华润华发·时代之城售楼处电话:400-833-6309【官网】
商业配套
项目与沃尔玛山姆会员店,仅一路之隔;直距约34万方印象城MEGA约900米。周围汇聚五彩城、太茂商业广场、中冶祥腾城市广场等商圈,时尚潮流聚集地,同频都会先进生活。
华润华发·时代之城售楼处电话:400-833-6309【官网】
华润华发·时代之城售楼处电话:400-833-6309【官网】
教育资源
3大教育集团导入,上师大、上大以及世外,奠定项目周边雄厚的教育基础。周边共规划了16块教育用地,包含幼儿园8块、小学3块、初中3块、高中2块,目前上海世外教育附属嘉定云翔小学、惠亚路中学(暂定名)、嘉定世界外国语学校等都已经落成投入使用。(期房不承诺学区,以后期主管部门划分为准)
华润华发·时代之城售楼处电话:400-833-6309【官网】
华润华发·时代之城售楼处电话:400-833-6309【官网】
医疗资源
上海瑞金医院北部院区(三级综合医院)、南翔医院(二级甲等综合医院)
华润华发·时代之城售楼处电话:400-833-6309【官网】
生态环境
项目靠近云翔湖(规划中),将打造南翔未来生态核芯。未来将规划云翔景观中心,打造花园江休闲景观轴,包含蕰藻浜水上乐园、绸带公园、横沥河文化生态廊道等。华润华发·时代之城售楼处电话:400-833-6309【官网】
生态绿肺:留云湖(涵盖约17万方湿地公园)、银翔湖(水域面积127亩,绿化率超过80%)、云翔湖(以湖为核心,打造多个水系及景观带,规划中);
特色文旅:南翔古镇、古猗园等,与文化共融、与自然相近,感受上海历史风情。华润华发·时代之城售楼处电话:400-833-6309【官网】
华润华发·时代之城售楼处电话:400-833-6309【官网】
华润华发·时代之城售楼处电话:400-833-6309【官网】
500万级│印象城+山姆
30万方墅境国际美学社区
上海「华润华发·时代之城」售楼处电话:400-833-6309【官网】
案场预约制 看房需提前来电预约登记
请务必致电与销售确认时间,仅预约客户可进入销售现场,避免空跑,感谢您的支持
建面约92-135㎡高层热销中
总价约475-880万
建面约153-170㎡叠墅热销中
总价约1170-1600万
华润华发·时代之城售楼处电话:400-833-6309【官网】
华润置地 城市投资开发运营商
华润置地,于1994年改组成立,是《财富》“世界500强”华润(集团)有限公司旗下负责城市建设运营的业务单元,是行业领先的城市投资开发运营商。华润置地荣膺“2023房地产上市公司综合实力榜”TOP3,中国内地十大开发商之一,中国商业地产领导者。华润华发·时代之城售楼处电话:400-833-6309【官网】
华发股份 品质中国匠心筑家
珠海华发实业股份有限公司(简称:华发股份,股票代码:600325)是承接华发集团房产开发板块的平台公司,始创于1980年。秉承“品质中国 匠心筑家”的品牌理念,积极探索“科技+人居”战略,加快住宅及创新人居建设,升级城市美好生活。华润华发·时代之城售楼处电话:400-833-6309【官网】
华润华发·时代之城售楼处电话:400-833-6309【官网】
巨匠联袂 擎筑上海新时代
华润置地&华发股份,继近70万方都会CBD生活样本国际住区——上海静安府之后,2024年再度强强联袂,再造一座国际住区——时代之城,引领上海国际生活新风尚。
华润华发·时代之城售楼处电话:400-833-6309【官网】
根据项目规划设计方案显示,项目拟建38幢5-26F住宅产品,共计2871套
根据公示图显示,该项目的4个小板块最高层为项目东南角和西北角的26层高层,共有6栋,高度接近地块限高的80米(77.80米);18层的共有8栋;17层共有6栋;14层共有4栋;13层共有2栋;6层的共有4栋;5层的共有8栋。
华润华发·时代之城售楼处电话:400-833-6309【官网】
29-01地块(西北角地块)
29-01地块原设计方案,将北面人行/车行的出入口向西侧的安惠路方向进行了调整,并疑似将北面的主入口调整到了惠亚路一侧。
华润华发·时代之城售楼处电话:400-833-6309【官网】
31-02、33-01地块(北面地块)
华润华发·时代之城售楼处电话:400-833-6309【官网】
33-02地块(南面地块)
而在33-02地块中,也有很多调整,增加了更多出入口。比如北面西侧,在原车行出入口的基础上增加了“人行出入口”。
华润华发·时代之城售楼处电话:400-833-6309【官网】
超级大盘引领 互联街区生活
约30万方国际生活大城,为南翔打造全新中央生活圈。以低密大城及互动街区为载体,构建 “好品质、好邻居、好环境、好服务、好心情”五好社区,大盘之上,生活无界,完成一公里生活链路。华润华发·时代之城售楼处电话:400-833-6309【官网】
声明:本文由入驻焦点开放平台的作者撰写,除焦点官方账号外,观点仅代表作者本人,不代表焦点立场。
