上海嘉定大华梧桐樾
最新一手房源动态
大华梧桐樾售楼处电话:400-8894-638♢♢✔✔✔♢♢
项目基础信息
基本信息
项目名称:大华梧桐樾
开发商:大华集团
物业类型:住宅
产品形态:高层、叠墅
容积率:约2.3
总高:高层26层、叠加4/6层
层高:高层层高:3米、叠加层高:3.1米
停车位:1395个
地下一层1108个、地下二层287个
车位配比:1:1.3
得房率:高层约73%、叠加约84%
拿地时间:2022年
交房时间:
南地块2026年6月30号
物业:大华服务
物业费:3.8元/平
绿化率:35%
建筑立面:现代典雅风格

大华梧桐樾售楼处电话:400-8894-638♢♢✔✔✔♢♢
大虹桥是长三角一体化中心,更是上海西南地区不容置疑的中心,规划高度几乎和陆家嘴平起平坐。
大虹桥正迎来产业大爆炸阶段,大量菁英人口和无数资产财富急速汇聚于此,酝酿出海量的居住需求,但面对大虹桥核心不俗的房价,刚需置业必然会外溢。
大华·梧桐樾与虹桥主城区直线距离仅约5公里,与核心商务区直线距离仅约15公里,直接享受到大虹桥的辐射利好。
区位示意图,仅供参考

大虹桥生活圈辐射范围内,从高层、洋房在到别墅产品,价格已经不低了。
今年大虹桥的上车门槛不断加码, 青浦徐泾联动价已攀升到6.95万/㎡,辐射板块如青浦赵巷、嘉定新城,松江新城等, 清一色均价来到5万+。
总价300万级刚需首置上车,总价5、600万就能住别墅的机会几乎消失殆尽,未来也可能不会再有新增。
区位示意图,仅供参考

大华梧桐樾售楼处电话:400-8894-638♢♢✔✔✔♢♢
不得不说,虹桥北大华梧桐樾价格极具性价比, 高层均价约3.7万/㎡,别墅均价约4.87万/㎡,墅质精装3房主力总价300万级。
户型图赏鉴
大华·梧桐樾主推建面 约84-101㎡瞰景高层,建面约90-144㎡低密叠墅,高层主力总价300万级,别墅均价约4.87万/㎡。
精工品质,国际品牌加持,精心打磨的户型,赋予业主更高舒适度的居住体验。

建面约 84㎡2房2厅1卫户型,做到了2+1开间朝南+动静分离+卫生间干湿分离,非常紧凑的2房户型。

大华梧桐樾售楼处电话:400-8894-638♢♢✔✔✔♢♢
建面约 91㎡3房2厅1卫户型,做到了三开间朝南+双朝南卧室带飘窗+动静分离+卫生间干湿分离,采光面拉到极致的小3房户型。
这是一个相对主流户型,受众面大,三口、四口之家居住都非常适合,未来流入二手房市场,也能收获下家更多青睐。
有更大尺度的改善需求,可以选择项目的叠墅产品, 主力产品建面约91-132㎡上叠,约113-132㎡中叠,约106-145㎡下叠。
大尺度厅堂、星空露台、地下空间,满足业主们对“有天有地有星空”别墅居家体验的幻想!
主力叠墅产品户型图如下:

以145㎡下叠为例,四房两厅三卫全能格局,非常适合二娃家庭以及三代同堂。
一层是会客区,超大面宽客餐厅,阳光、空气可以“肆意”穿过,室内通透明亮;厨房餐厅间动线简洁流畅,还配置了老人房,避免老人上下楼不便。
二层是休息区,双南向卧室,为居者提供了充足的私享领地,主卧套房设计,衣帽间、独立卫浴,空间层层递进。
下叠附带地下空间,可以根据主人喜好定制成如健身房、酒窖、影音室、台球房等任意空间,解锁叠代生活的多重享法。
土拍回顾及规划
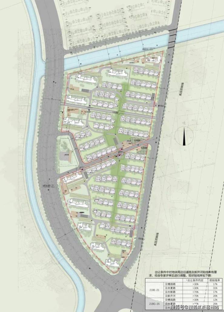
2022年6月1日,大华以40.4978亿元竞得嘉定区安亭镇国际汽车城核心区JD030201单元21BE-21、21BG-25地块【即大华梧桐樾】,成交楼板价1.9万元/㎡,地块 房地联动价4.2万元/㎡。就在昔日红盘万科西郊都会的隔壁!

项目四至范围:东至米夏路,南至博园路,西至博园路,北至新开河。

大华梧桐樾售楼处电话:400-8894-638♢♢✔✔✔♢♢
项目分为两个地块,总用地面积约9.27万㎡,容积率2.3,建筑限高80米。

根据规划设计方案显示:项目规划有26F高层、4F别墅、6F叠墅,另有老年活动室、养育托管点、文化活动室等公共设施,总建筑面积约18.3万方,容积率2.3,社区共2097户,其中,高层住宅623套,别墅住宅368套,车位数2711个(全部为地下),人车分流设计。

大华梧桐樾售楼处电话:400-8894-638♢♢✔✔✔♢♢
大华·梧桐樾,于虹桥时代热土之上,城市高阶资源汇聚之处,为城市层峯构建心驰神往的迭代高尔夫墅居。
延续大华梧桐精神,以现代语言演绎海派文化底蕴,匠筑约30万方低密恢弘墅境,打造超越区域内以往规模与高度的高尔夫墅区作品。

效果示意图|仅供参考,具体以实际交付为准

【大华·梧桐樾】是大华集团带着深耕嘉定的决心,首入嘉定的第一子,也是大华城墅专家秉承着大华城墅迭新的「墅立四观」、「墅境九制」、「墅居六艺」价值主张。
打造的第五代梧桐系城墅作品,旨在赋新大华高端城墅版图,迭新嘉定墅居享受,开篇一座嘉定城的新传奇。
效果示意图|仅供参考,具体以实际交付为准

【大华·梧桐樾】因地制宜利用天然河道精心布局。项目被新开河、苏州河双河流环绕,静谧水岸带来天然诗意与自然气息,丰盛的滨河景观与建筑融为一体,还生活以最自然灵动的本真。
效果示意图|仅供参考,具体以实际交付为准

大华梧桐樾售楼处电话:400-8894-638♢♢✔✔✔♢♢
【大华·梧桐樾】在社区景观的打造上,将大华城墅九制、墅居六艺的法则融入其中,营造了“门、街、坊、巷、院”五重空间序列、匠筑“春、夏、秋、冬”四季主题园境。
效果示意图|仅供参考,具体以实际交付为准

以“鲲鹏乐园”主题儿童乐园、鲲鹏书院、老人颐乐空间、多元艺术花园、约760m“汽车文化”主题跑道、森林漫步道等共享场域为居者构筑一个有温度的社区。
效果示意图|仅供参考,具体以实际交付为准

建筑采用现代美学立面,简约潮流,彰显城市精英的风范。窗棱格构的设计别具一格,打破了室内外界限的同时,带来充裕的采光和更好的景观视野。
效果示意图|仅供参考,具体以实际交付为准

大华梧桐樾售楼处电话:400-8894-638♢♢✔✔✔♢♢
社区内打造多重绿化体系、让四季皆有景可赏的同时,丰富运动空间、营造亲近自然的健康生活,给业主带来归家的温馨感。
效果图

生活配套
轨交方面:作为上海的“西门户”,20年以来,不论是对于产业的发展,亦或是对于人才的导入,安亭的繁荣富强,肯定离不开轨交的支撑。
项目距离11号线上海汽车城站约2.4km,不算真正意义上的轨交房。轨交14号线横亘安亭境内的规划建议,也已提上日程。
对外,安亭北站与安亭西站的两座高铁枢纽,快速抵达上海虹桥与上海火车站,做到“融苏接通”。

商业方面:项目附近有11号上海汽车城站沿街商业、嘉实广场、三德广场、财富广场、嘉亭荟城市生活广场等大型商业广场,尽享璀璨城市生活;

大华梧桐樾售楼处电话:400-8894-638♢♢✔✔✔♢♢
教育方面:项目旁边拥有涵盖3-16岁的全龄化的教育配套,可以满足小孩的教学需求:东方瑞仕幼儿园、汇爱园托幼中心、三之三幼儿园等,九年制华东师范大附属双语学校、同济大学附属实验中小学等!


医疗方面:项目周边有完善的医疗配套体系,有二级综合性安亭医院,三级甲等综合性医院东方肝胆医院等大型医院,能够为家人提供全方位的健康保障。

大华梧桐樾售楼处电话:400-8894-638♢♢✔✔✔♢♢
生态休闲:项目周边有约12万方奥林匹克公园、约120万㎡颖奕高尔夫球场、约77万方的上海汽车博览公园、中央绿轴滨江公园、波恩风情音乐谷公园以及掌形湖等,整个绿化面积将近达到约300万㎡,完全可谓是理想的自然栖居地,真正的享受到如森林秘境般的生活住区。

大华梧桐樾售楼处电话:400-8894-638♢♢✔✔✔♢♢
上海嘉定大华梧桐樾
浦东内环旁三轨交红盘
浦发莲园
将推出最后一批约100-193㎡户型
均价约9.45万/㎡!
今日开启认购!
这不是一次普通上新,每一套都是「卖一套少一套」的稀缺品!
仅余27套的约100㎡三房,这次之后,全上海内环旁900万级三房或将彻底断供,堪称「神户型绝唱」,错过再无!
1300万级的143㎡4房,控总价,尺度感和功能兼具。
大华梧桐樾售楼处电话:400-8894-638♢♢✔✔✔♢♢
上海市人民政府关于优化调整本市房地产政策措施的通知
沪建房管联〔2025〕417号
各有关单位:
为更好满足居民刚性住房需求和多样化改善性住房需求,促进房地产市场平稳健康发展,经市政府同意,现就优化调整房地产相关政策措施通知如下:
一、调减住房限购政策
对符合本市住房购买条件的居民家庭(包括本市户籍居民家庭、在本市连续缴纳社会保险或个人所得税达到规定年限的非本市户籍居民家庭),在外环外购买住房(包括新建商品住房和二手住房)不限套数。对成年单身人士按照居民家庭执行住房限购政策。
二、优化住房公积金政策
(一)对缴存人购买符合规定的二星级及以上新建绿色建筑住房的,住房公积金(含补充公积金)最高贷款额度上浮15%。
(二)对缴存人购买本市新建预售商品住房的,可以按规定申请提取本人及配偶的住房公积金支付购房首付款。
(三)对缴存人提取住房公积金支付购房首付款的,不影响其住房公积金贷款额度计算。
三、优化个人住房信贷政策
各银行业金融机构根据上海市市场利率定价自律机制要求和本机构经营状况、客户风险状况等因素,在利率定价机制安排方面不再区分首套住房和二套住房,合理确定每笔商业性个人住房贷款的具体利率水平。
四、完善个人住房房产税政策
对符合条件的非本市户籍居民家庭购买的第一套住房暂免征收房产税,购买的第二套及以上住房在合并计算家庭全部住房面积后,给予人均60平方米的免税面积扣除。
本通知自2025年8月26日起施行。
市住房城乡建设管理委
市房屋管理局
市财政局
人民银行上海市分行
市税务局
市公积金中心
2025年8月25日
大华梧桐樾售楼处电话:400-8894-638♢♢✔✔✔♢♢