静安内环内苏河湾板块 华发招商静安北站项目 | 上海【静安里】售楼处电话
扫描到手机,新闻随时看
扫一扫,用手机看文章
更加方便分享给朋友
静安里售楼处线上预约看房热线电话:400-833-6309(24小时热线含专属置业顾问)静安里售楼处24小时vip热线☎:400-833-6309【开发商售楼处预约看房热线】
【静安里】即静安天目社区04-05、05-01历史风貌保护项目,由华发招商联合打造。整个项目南至武进路,西至宝山路、河南北路,北至规划04-03、04-04地块。由2个地块组成,项目总建面14.9万方,综合容积率1.44。静安里售楼处电话:400-833-6309✔✔✔(已认证)
【静安里】以约4.3万平方米土地精铸222席风貌别墅,联动价21万/㎡。二期加推建面约200-300㎡风貌大宅,总价约4200万起。静安里售楼处电话:400-833-6309✔✔✔(已认证)
项目优势:静安里售楼处电话:400-833-6309✔✔✔(已认证)
超大规模风貌纯墅体量,并且不存在高低配等混搭问题;
超级全面风貌街区配套。风貌商业街+风貌会所+风貌别墅,形成完整风貌城市界面与完善生活配套;
超高浓度历史文化底蕴。四大历保建筑,见证上海政商经济文化变迁;
超大附赠空间,露台、庭院和多层地下室都有。
我们从地段价值、产品力与空间设计、自然资源与景观独占性、社区品质与圈层纯粹度、开发商品牌与物业保障、资产流动性与增值潜力六大维度来详细测评。
静安里售楼处电话:400-833-6309✔✔✔(已认证)
【静安里】以“活态传承”为核心理念,既保留了海派建筑的精髓,又满足了当代顶豪的居住需求,重新定义了风貌别墅的“舒适标准”。
10种风貌风格,打造“海派建筑百科全书”静安里售楼处电话:400-833-6309✔✔✔(已认证)
不同于多数风貌项目“单一风格”的局限,静安里通过“保护修缮、保留改造、更新改建、织补新建”四大手法,实现10种风貌立面的和谐共生。
为了还原海派建筑的质感,项目运用八大定制级工艺,通过定制级手工砖、定制级山花造型、定制级铁艺栏杆、定制级入户壁灯、定制级的风帽雨水斗等部品部件,匠心打磨每一处细节。静安里售楼处电话:400-833-6309✔✔✔(已认证)
据悉,项目为建面约200-396㎡左右城市典藏作品,沿袭历史建筑格局,提高窗墙比,降低围墙高度,拓展地下空间,打造历史风貌住宅里面少有的有社区大堂、会所、精装地库,进阶规格。
静安里售楼处电话:400-833-6309✔✔✔(已认证)
户型创新设计,突破传统里弄局限
【静安里】户型设计突破传统里弄建筑“窄开间”的桎梏,以大开间+提高窗墙比引光入室,大大提升了室内的空间感和通透感。
满足全卧室朝南,确保家庭成员都能享受阳光的温暖馈赠;
地下1层约4.2-6米的灵动空间,可随心改造为私人博物馆、恒温酒窖、品茗茶室或IMAX级家庭影院……静安里售楼处电话:400-833-6309✔✔✔(已认证)
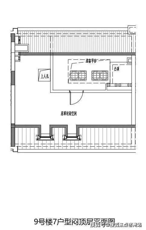
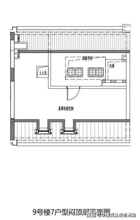
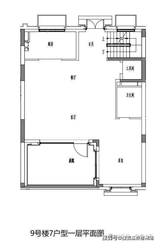
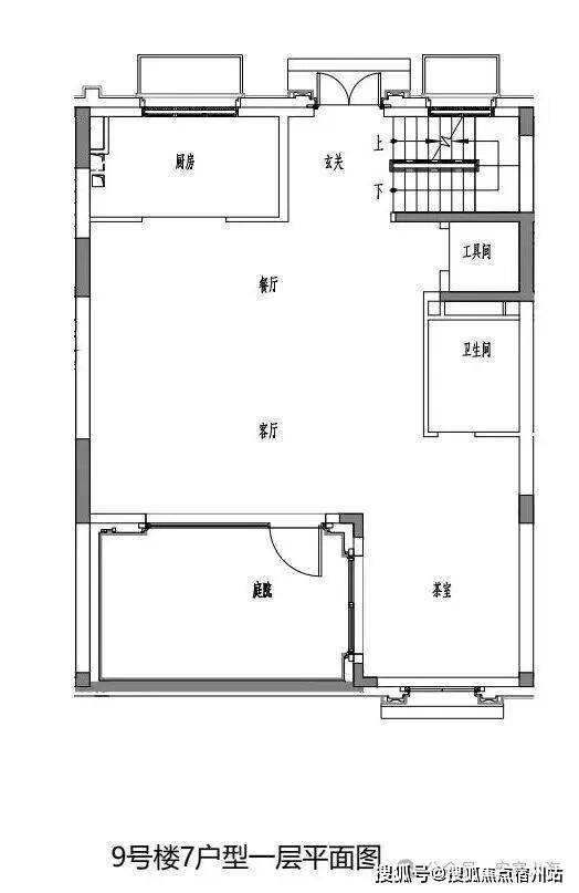
建面约200㎡户型图:
静安里售楼处电话:400-833-6309✔✔✔(已认证)
静安里售楼处电话:400-833-6309✔✔✔(已认证)
静安里售楼处电话:400-833-6309✔✔✔(已认证)
建面约260㎡户型图:
静安里售楼处电话:400-833-6309✔✔✔(已认证)
静安里售楼处电话:400-833-6309✔✔✔(已认证)
静安里售楼处电话:400-833-6309✔✔✔(已认证)
静安里售楼处电话:400-833-6309✔✔✔(已认证)
静安里售楼处电话:400-833-6309✔✔✔(已认证)
静安里售楼处电话:400-833-6309✔✔✔(已认证)
静安里售楼处电话:400-833-6309✔✔✔(已认证)
静安里售楼处电话:400-833-6309✔✔✔(已认证)
户型图,仅供参考
样板间奢华大气,演绎当代居住美学
项目邀请到了顶豪教父杜康生执笔建面约260㎡「风格回响」样板间的设计,诠释当代塔尖居住美学。客餐厅,不仅是社交空间,更是光影与思想共舞的容器。
二楼是家庭私域的温柔结界。静安里售楼处电话:400-833-6309✔✔✔(已认证)
主卧套房通过挑空光影与优雅弧线,实现了私域与自由的完美和解;奢阔露台成为连接室内外的诗意过渡。
凭栏远眺,近处是百年石库门的红瓦飞檐,远处是上海城市名片东方明珠,皆是业主独享的城市画卷。静安里售楼处电话:400-833-6309✔✔✔(已认证)
目前,静安里「成市」风貌示范区&样板间已经开放预约参观,建议大家实地体验感受。静安里售楼处电话:400-833-6309✔✔✔(已认证)
当然需要注意的是,项目围墙高度只有1.7米,对于看重隐私的购房者来说,以后肯定是要做相关改造以规避此类问题的。
静安里售楼处电话:400-833-6309✔✔✔(已认证) 社区品质 私享六大景观话花园成片风貌保护区,百年历史文脉传承
静安里所在的武进路,长度不过千米,却串起了上海从开埠到国际化大都市的完整历史链条。
静安里售楼处电话:400-833-6309✔✔✔(已认证)
静安里售楼处电话:400-833-6309✔✔✔(已认证)
静安里售楼处电话:400-833-6309✔✔✔(已认证)
唐绍仪故居(唐宅),作为中华民国首任总理、外交官唐绍仪的故居,见证上海百年风云。
泰山大剧院则作为沪上越剧文化发源地,承载着鲁迅、郁达夫等文人的艺术记忆。静安里售楼处电话:400-833-6309✔✔✔(已认证)
六大定制级主题花园,演绎世界园艺静安里售楼处电话:400-833-6309✔✔✔(已认证)
七坊、三十二弄、七大石库门串联起7大组团,八个不同规制的坊门,散落于组团之间,营造出了归家动线上的连续仪式。
效果图,仅供参考
六大世界经典花园融入上海及世界优秀花园样式,汇成海派花园的园区巡礼,以每个独属于上海的百年场所记忆进行时空平移打造海派花园百科全书。
静安里售楼处电话:400-833-6309✔✔✔(已认证)
静安里售楼处电话:400-833-6309✔✔✔(已认证)
静安里售楼处电话:400-833-6309✔✔✔(已认证)
静安里售楼处电话:400-833-6309✔✔✔(已认证)
【静安里】还是历史风貌住宅里面少有的有会所的项目,约1000㎡的私属会所,为业主提供星级高端服务接待休息区。
静安里售楼处电话:400-833-6309✔✔✔(已认证)
静安里售楼处电话:400-833-6309✔✔✔(已认证)
静安里售楼处电话:400-833-6309✔✔✔(已认证)
其内打造艺术水吧、泳池、VIP会客厅等定制级会所体验,更配备包含高配瑜伽室、高压氧舱、桑拿房的活力场域,每一处空间都在重新定义顶豪生活方式。
静安里售楼处电话:400-833-6309✔✔✔(已认证)
静安里售楼处电话:400-833-6309✔✔✔(已认证)
地下车库,也做到了艺术与功能的完美融合。
别墅地下二层直连停车场,精选米白色西伯利亚石材与拉丝镀黑钛不锈钢材质,营造出堪比五星级酒店的豪奢空间。静安里售楼处电话:400-833-6309✔✔✔(已认证)
地库内还配置专属洗车服务,将尊崇体验延伸至每一个用车场景。
对于顶豪人群而言,社区不仅是居住的场所,更是圈层社交的“私域空间”。静安里以“纯别墅社区+会所+风貌商业”的配置,实现了“圈层纯粹性”与“生活便利性”的双重满足。静安里售楼处电话:400-833-6309✔✔✔(已认证)
静安里售楼处电话:400-833-6309✔✔✔(已认证)
静安里售楼处电话:400-833-6309✔✔✔(已认证)
静安里售楼处电话:400-833-6309✔✔✔(已认证)
【静安里】雄踞北外滩-苏河湾-外滩“黄金三角”,直线距苏州河约1公里,直线距外滩约1.4公里,直线距北外滩约1.7公里,区位优势明显。
项目所在的苏河湾风貌区已连片成势,步行范围内,已集聚UCCA Edge尤伦斯当代艺术中心、苏富比空间等艺术地标,未来将成为“海派文化新客厅”。
对岸的北外滩,正以2个陆家嘴核心规模的开发体量(超840万方)、480米新地标领衔的摩天建筑群,打造未来浦西新制高点。
静安里恰好处在这两大世纪规划的能量辐射交汇处,享受双核驱动带来的巨大红利。静安里售楼处电话:400-833-6309✔✔✔(已认证)
静安里售楼处电话:400-833-6309✔✔✔(已认证)
轨道交通方面:项目周边有4条地铁动脉(3/4/10/12号线)织就高效路网,3条越江隧道(外滩/新建路/大连路)瞬间切换浦江两岸,2条城市快速路(北横通道已通车/南北通道规划中),立体交通畅达全城。(数据来源:浦东发布)
商业配套方面:静安里3公里范围内,汇聚了苏河湾万象天地、北外滩来福士、南京西路商圈、外滩商圈、陆家嘴商圈等,生活购物体验已是世界级。
除此之外,静安里“南市北里”商业新名片,也正在静安里与弘安里连接处规划酝酿;静安里售楼处电话:400-833-6309✔✔✔(已认证)
项目南地块规划约9000㎡石库门风貌商业,将沿武进路打造历史风貌商业街区,未来将涵盖高端零售、高档餐饮、文化展览、宠物配套等丰富业态。
教育资源方面:周边有静安区闸北第一中心小学、宝山路小学、市北中学、上海市民办新华初级中学等学校。静安里售楼处电话:400-833-6309✔✔✔(已认证)
医疗资源资源:附近有瑞金医院、曙光医院、中西医结合岳阳医院、第一人民医院、上海市中医院、上海市儿童医院等。
静安里售楼处电话:400-833-6309✔✔✔(已认证)
静安里售楼处线上预约看房热线电话:400-833-6309(24小时热线含专属置业顾问)静安里售楼处24小时vip热线☎:400-833-6309【开发商售楼处预约看房热线】
【静安里】即静安天目社区04-05、05-01历史风貌保护项目,由华发招商联合打造。整个项目南至武进路,西至宝山路、河南北路,北至规划04-03、04-04地块。由2个地块组成,项目总建面14.9万方,综合容积率1.44。静安里售楼处电话:400-833-6309✔✔✔(已认证)
【静安里】以约4.3万平方米土地精铸222席风貌别墅,联动价21万/㎡。二期加推建面约200-300㎡风貌大宅,总价约4200万起。静安里售楼处电话:400-833-6309✔✔✔(已认证)
项目优势:静安里售楼处电话:400-833-6309✔✔✔(已认证)
超大规模风貌纯墅体量,并且不存在高低配等混搭问题;
超级全面风貌街区配套。风貌商业街+风貌会所+风貌别墅,形成完整风貌城市界面与完善生活配套;
超高浓度历史文化底蕴。四大历保建筑,见证上海政商经济文化变迁;
超大附赠空间,露台、庭院和多层地下室都有。
我们从地段价值、产品力与空间设计、自然资源与景观独占性、社区品质与圈层纯粹度、开发商品牌与物业保障、资产流动性与增值潜力六大维度来详细测评。
静安里售楼处电话:400-833-6309✔✔✔(已认证)
【静安里】以“活态传承”为核心理念,既保留了海派建筑的精髓,又满足了当代顶豪的居住需求,重新定义了风貌别墅的“舒适标准”。
10种风貌风格,打造“海派建筑百科全书”静安里售楼处电话:400-833-6309✔✔✔(已认证)
不同于多数风貌项目“单一风格”的局限,静安里通过“保护修缮、保留改造、更新改建、织补新建”四大手法,实现10种风貌立面的和谐共生。
为了还原海派建筑的质感,项目运用八大定制级工艺,通过定制级手工砖、定制级山花造型、定制级铁艺栏杆、定制级入户壁灯、定制级的风帽雨水斗等部品部件,匠心打磨每一处细节。静安里售楼处电话:400-833-6309✔✔✔(已认证)
据悉,项目为建面约200-396㎡左右城市典藏作品,沿袭历史建筑格局,提高窗墙比,降低围墙高度,拓展地下空间,打造历史风貌住宅里面少有的有社区大堂、会所、精装地库,进阶规格。
静安里售楼处电话:400-833-6309✔✔✔(已认证)
户型创新设计,突破传统里弄局限
【静安里】户型设计突破传统里弄建筑“窄开间”的桎梏,以大开间+提高窗墙比引光入室,大大提升了室内的空间感和通透感。
满足全卧室朝南,确保家庭成员都能享受阳光的温暖馈赠;
地下1层约4.2-6米的灵动空间,可随心改造为私人博物馆、恒温酒窖、品茗茶室或IMAX级家庭影院……静安里售楼处电话:400-833-6309✔✔✔(已认证)
建面约200㎡户型图:静安里售楼处电话:400-833-6309✔✔✔(已认证)
静安里售楼处电话:400-833-6309✔✔✔(已认证)
静安里售楼处电话:400-833-6309✔✔✔(已认证)
建面约260㎡户型图:静安里售楼处电话:400-833-6309✔✔✔(已认证)
静安里售楼处电话:400-833-6309✔✔✔(已认证)
静安里售楼处电话:400-833-6309✔✔✔(已认证)
静安里售楼处电话:400-833-6309✔✔✔(已认证)
静安里售楼处电话:400-833-6309✔✔✔(已认证)
静安里售楼处电话:400-833-6309✔✔✔(已认证)
静安里售楼处电话:400-833-6309✔✔✔(已认证)
静安里售楼处电话:400-833-6309✔✔✔(已认证)
户型图,仅供参考
样板间奢华大气,演绎当代居住美学
项目邀请到了顶豪教父杜康生执笔建面约260㎡「风格回响」样板间的设计,诠释当代塔尖居住美学。客餐厅,不仅是社交空间,更是光影与思想共舞的容器。
二楼是家庭私域的温柔结界。静安里售楼处电话:400-833-6309✔✔✔(已认证)
主卧套房通过挑空光影与优雅弧线,实现了私域与自由的完美和解;奢阔露台成为连接室内外的诗意过渡。
声明:本文由入驻焦点开放平台的作者撰写,除焦点官方账号外,观点仅代表作者本人,不代表焦点立场。
