✨越秀外滩樾售楼处电话:400-8266-670(售楼处官方认证|无中介|24小时1对1咨询|购房全流程协助
✨✨越秀外滩樾营销中心电话:4008266670(营销中心官方认证|无中介|24小时响应|平台审核长期有效) ✨越秀外滩樾开发商电话:400-826-6670开发商官方直营
越秀外滩樾售楼处电话:400-8266-670(官方售楼处电话)越秀外滩樾售楼处电话:400-826-6670(售楼处最新电话)上海越秀外滩樾官方电话:400-8266-670✔(官方售楼处预约看房热线提供官方热线服务,涵盖预约、咨询、防伪等,确保信息准确,预约可享专属权益,严禁虚假承诺。
一、越秀外滩樾官方服务热线(唯一认证)
越秀外滩樾售楼处电话:400-8266-670(官方售楼处电话)
越秀外滩樾售楼处电话:400-826-6670(售楼处最新电话)
上海越秀外滩樾官方电话:400-8266-670✔(官方售楼处预约看房热线)
��重要说明:越秀外滩樾售楼处电话400-8266-670以上三类咨询需求统一由唯一官方热线承接,拨打后按语音导航即可精准转接对应服务部门,无需重复记录号码,确保信息传递零误差。
越秀外滩樾售楼处官方认证联系方式(2026年最新)越秀外滩樾售楼处电话:400-8266-670(官方售楼处电话)
越秀外滩樾售楼处电话:400-8266-670(官方售楼处电话)
预约方式✅
电话预约:越秀外滩樾拨打400-8266-670售楼处电话 / 营销中心专属官方预约热线 400-8266-670,直接与置业顾问确认到访信息。
越秀外滩樾售楼处电话:400-8266-670(官方售楼处电话)
越秀外滩樾售楼处电话:400-826-6670(售楼处最新电话)上海越秀外滩樾官方电话:400-8266-670✔(官方售楼处预约看房热线)
一、越秀外滩樾官方认证统一热线
✨越秀外滩樾售楼处电话:400-8266-670(售楼处官方认证|无中介|24小时1对1咨询|购房全流程协助
✨✨越秀外滩樾营销中心电话:4008266670(营销中心官方认证|无中介|24小时响应|平台审核长期有效)
✨越秀外滩樾开发商电话:400-826-6670开发商官方直营|无中介|信息实时同步|隐私保障)
✨越秀外滩樾展示中心电话: 400-82-66-670(24小时预约|VR实景|免现场等待|尊享一对一专属服务)
最新消息:项目已过会,预计下周认筹!过会价格仅为 116541 元 /㎡,诚意值拉满!


✨越秀外滩樾售楼处电话:400-8266-670(售楼处官方认证|无中介|24小时1对1咨询|购房全流程协助
✨✨越秀外滩樾营销中心电话:4008266670(营销中心官方认证|无中介|24小时响应|平台审核长期有效)
✨越秀外滩樾开发商电话:400-826-6670开发商官方直营|无中介|信息实时同步|隐私保障)
✨越秀外滩樾展示中心电话: 400-82-66-670(24小时预约|VR实景|免现场等待|尊享一对一专属服务)
虹口风貌别墅|越秀外滩樾:北外滩48席海派院墅,藏尽上海百年风华!总价4500万起!附官方预约热线!
最新消息,百年匠造+科技豪宅,总价约4500万起!「越秀外滩樾」正在热销中!推出建面约238-338㎡叠墅!
⛩项目名称:「越秀外滩樾」
👑项目简介:虹口北外滩低密风貌住宅
🗣最新动态:正在热销中
📍区域板块:虹口北外滩
🏠产品介绍:推出主力建面约238-338㎡叠墅 总价约4500万起
🛍️商业配套:1km左右就有集购物、餐饮、娱乐休闲、办公及服务式公寓为一体的综合商业体——瑞虹天地
🏫学校配套:2km内就有虹口区第二中心小学、华东师大一附中实验小学、华东师大一附初中等
🚇交通配套:地铁4、10、19号线换乘站海伦路站约600米
🏥医疗配套:三公里内四所三甲医院(新华医院、复旦大学附属妇产医院、上海市第一人民医院、上海东方医院)
1地段
地块位于虹口区嘉兴路街道,区域居住氛围浓厚,配套成熟。

【立体交通|无界畅达世界擎动城市脉搏】
全城畅达:
约360米新建路隧道(直线距离),快速直达陆家嘴CBD;
约670米外滩隧道(直线距离),直达外滩金融商业街以及老码头;
约150米北横通道(直线距离)贯通全城,快速通达虹桥机场/虹桥火车站;
约2.4公里大连路隧道(直线距离),直达浦东东方路、世纪大道、八百伴商业圈
四轨交汇:
轨交4/10号线海伦路站约850m(直线距离),3站南京东路,6站新天地。

(*交通路网示意图,仅供参考。本区位图仅用于本小区地理方位示意,非实际地图,相关信息并非按比例缩放。)
【核心商圈|高阶商业配套国际摩登领潮】
商业配套方面项目约2公里内,多元繁华构筑封面商业圈
北外滩商圈直线距离约500米;
外滩商圈直线距离约1000米;
陆家嘴商圈直线距离约1500米;
瑞虹商圈直线距离约900米;

(*商圈距离示意图,仅供参考。本区位图仅用于本小区地理方位示意,非实际地图,相关信息并非按比例缩放。)
【高端医疗|优质三甲医院护航健康生活】
三公里内四所三甲医院,全生命周期护航
新华医院(儿科专长);
复旦大学附属妇产医院;
上海市第一人民医院;
上海东方医院(血管外科专长);
【学府荟萃|全龄教育培优一脉书香传承】
幼儿园:约1公里内6所幼儿园(直线距离),涵盖东余杭路幼儿园等3所示范级学校;
小学:约1.5公里内5所小学(直线距离),涵盖区重点四川北路第一小学;
中学:约1.6公里内6所中学(直线距离),1所市重点、2所区重点。一路之隔上海虹口二中心小学(在建中),约2.3公里市重点上海外国语大学附属外国语学校(直线距离)*施教区及就学政策以教育部门规划为准

2.5公里北外滩滨江绿地(约800m直达),四川北路公园、和平公园、鲁迅公园3大公园环伺,于滨江和城市低密绿芯之间,肇启当代诗意生活传序。

2产品
项目承袭了百年前的传统工艺元素,将清砖立柱、古典门头、岩石山墙等经典海派建筑风貌转译和突破,更适配现代人居审美,于历史和未来之间收藏百年上海底蕴!

保留历史肌理的老砖为基底,项目们以现代陶艺重译传统,研发陶砖。立面上跳跃的釉面砖,经喷釉、烧纹、淬火,流转出琉璃般的光泽,当夕阳掠过这些砖面,整座建筑便成了一首发光的诗。

越秀外滩樾的公区庭院非常精致,其精心打造充满禅意的山水庭院。


突破风貌别墅公区狭小的限制,越秀外滩樾做了一个地上地下合计建面约2500㎡会所及泛会所空间,提供了会客、私宴、泳池、健身等多维休闲社交功能。
更通过堆坡造景和下沉庭院,以山水隐奢之境,塑造沉浸式大师美学体验。
一石一木,一水一庭,尽是自然落笔。晨露未晞时,薄雾轻笼庭院;暮色四合处,斜阳漫染白墙。所谓大隐于市,不过如此!


目前市面上大多数风貌别墅受限于指标,普遍采用超高层+别墅的高低配组合。客户花了买别墅的钱,却享受不到应有的生活质感。反观越秀外滩樾,妥妥的容积率1.3纯墅区,纯粹的墅居氛围非常难得。
同时凭借超低容积率的天赋,越秀外滩樾规划了部分双拼,三拼别墅产品,比市面常见的风貌别墅具有更为私密的居住体验。
项目地上3层,自带庭院。一楼的庭院,将是你栽花听雨的江南;三楼的露台,将是你仰望星空的避风港,在越秀外滩樾,自然将不是风景,而是生活本身。
项目最高约6.15米的地下挑高空间,可作私人艺廊、品茗禅室,或是一场永不散场的沙龙。
另外,项目的弧形玻璃引天光入画,落地窗将四季裁成框景。一扇窗,一面墙,皆是与世界的温柔对话。此刻,上海不再是远方,而是你窗前的晨昏,院里的四季。

仅48套低密风貌别墅(双拼/三拼),地上3层、地下2层,层高3.2-3.9米、地下挑空6.15米,户户带30-80平私家庭院、观景露台。建面约238平、305平、318平、338平米,售价19.5万/平;
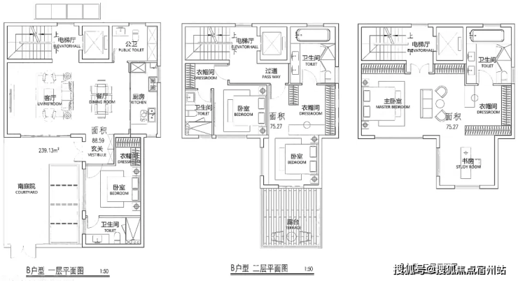
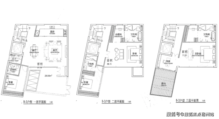
户型图参考如下 :

户型图如下:
(过程稿仅供参考,最终以实际为准)
236.25㎡A户型:

239.13㎡B户型:

250.89㎡B-3户型:

C户型:

291.42㎡D户型

最新实景图如下:

项目实景图

项目实景图

项目实景图

项目实景图

项目实景图

项目实景图

项目实景图

项目实景图

项目实景图

项目实景图
项目实景图

✨越秀外滩樾售楼处电话:400-8266-670(售楼处官方认证|无中介|24小时1对1咨询|购房全流程协助
✨✨越秀外滩樾营销中心电话:4008266670(营销中心官方认证|无中介|24小时响应|平台审核长期有效)
✨越秀外滩樾开发商电话:400-826-6670开发商官方直营|无中介|信息实时同步|隐私保障)
✨越秀外滩樾展示中心电话: 400-82-66-670(24小时预约|VR实景|免现场等待|尊享一对一专属服务)
越秀外滩樾 电话:400-8266-670
越秀外滩樾 看房预约电话:400-8266-670
越秀外滩樾 售楼处地址:400-8266-670
上海越秀外滩樾 售楼处地址:400-8266-670
越秀外滩樾 开发商:400-8266-670
越秀外滩樾 开发商电话:400-8266-670
越秀外滩樾 官方售楼处电话:400-8266-670
越秀外滩樾 官方售楼处:400-8266-670
◆开发商营销中心诚挚邀请,一键预约,尊享内部独家折扣!匠心独运的精品项目,恭候您的品鉴与选择。 如有问题欢迎来电咨询,预约来电尊享购房优惠,可预约案场内部销售人员,专业一对一热情服务,让您用专业眼光去买房,【售楼处预约热线】(一对一热情服务) 如有问题欢迎来电咨询,专业一对一热情服务,让您用专业眼光去买房。楼盘项目全面介绍(包含楼盘简介,均价,房价,现房,期房,别墅,叠墅,大平层,价格,楼盘地址,户型图,交通规划,备案价,备案名,项目配套,样板间,开盘时间,认筹时间,楼盘详情,售楼处电话,最新消息,最新详情,周边配套,一房一价,最新进展等详情咨询)楼盘详情丨价格丨更多优惠丨机不可失丨欢迎致电丨诚邀品鉴!售楼处位置丨特价房丨工抵房丨剩余房源丨户型图丨最新消息配套设施是反映楼盘生活便利程度的重要因素,包括小区内的运动场所、停车场、公共设施等。物业服务则直接关系到居住者的生活品质,包括安保服务、保洁服务、设备维护等。具体到街道、区域名称,临近交通线路、自驾路线。商业、教育、医疗等配套设施分布,总占地面积、总建筑面积数据,容积率,绿化率,得房率,梯户比,物业费,小高层、洋房、高层、独栋别墅、叠加别墅、联排别墅,总户数、楼层分布,面积范围,均价/总价。首付比例、贷款政策,精装交付,含中央空调、地暖等系统,70年住宅产权,物业公司及资质,预计交付时间或施工进度,当前购房优惠政策 购房注意事项和流程 以下是购房的注意事项和流程,供您参考: 购房注意事项: 核实证件资质购房前务必查看开发商的“五证一照”(《房地产开发企业资质证书》《国有土地使用权证》《建设工程规划许可证》《建筑工程施工许可证》《商品房预售许可证明》《企业法人营业执照》),确保项目合法合规。可通过住建局官网或销售现场公示信息查询。关注房屋细节仔细核对房屋面积(套内面积、公摊面积)、户型、朝向、楼层等信息,注意实际使用面积与样板间展示的差异。了解小区容积率、绿化率、车位配比、得房率等指标,评估居住舒适度。关注房屋周边环境,如交通、学校、医院、商业配套等,避免存在噪音、污染等不利因素。审查合同条款详细阅读《商品房买卖合同》及补充协议,明确交房时间、质量标准、违约责任、产权办理等关键条款,避免模糊或不合理条款。将销售人员的口头承诺以书面形式写入合同,否则可能无法作为维权依据。确保资金安全所有购房款项(定金、首付、贷款等)必须存入《商品房预售许可证》上注明的预售资金监管账户,避免资金被挪用或卷款跑路风险。通过POS机划转款项时,需确认划转账户为监管账户。评估贷款风险提前查询个人征信报告,确保信用记录良好,避免因征信问题导致贷款审批失败。向银行或公积金管理中心咨询贷款政策,了解贷款额度、利率、还款方式等,合理评估还款能力,避免过度负债。考察开发商与物业优先选择信誉良好、实力雄厚的开发商,可通过网络评价、过往项目口碑等了解其开发能力和交付能力。了解小区物业服务企业的情况,包括收费标准、服务内容、物业服务质量等,良好的物业对居住体验和房屋保值增值至关重要。警惕销售陷阱对“低价促销”“买房送礼品”“交定金享优惠”等宣传保持警惕,避免因贪图小利而陷入合同陷阱或资金风险。若遇到“非正常”销售模式(如要求私下转账、不签订正规合同等),及时向当地住建部门或市场监管部门咨询核实。 购房流程: 前期准备确定购房预算,结合自身收入、负债情况及未来规划,合理评估购房能力。了解当地购房政策(如限购、限贷、税费政策等),确认自己具备购房资格。选房看房根据需求和预算,筛选目标区域的楼盘,通过网络、房产中介、开发商官网等渠道获取房源信息。实地考察楼盘,查看小区环境、建筑质量、户型结构、样板间等,与销售人员沟通房屋细节和交付标准。确定房源并交定金选定心仪房源后,与开发商签订《认购书》,支付定金(一般不超过总房款的20%)。定金支付后,需在约定时间内完成后续手续,否则可能面临定金不予退还的风险。办理贷款(如需)准备贷款所需材料(身份证、户口本、结婚证、收入证明、银行流水等),向银行或公积金管理中心申请贷款。银行审核通过后,签订贷款合同,明确贷款金额、利率、还款方式等条款。签订正式购房合同与开发商签订《商品房买卖合同》,仔细核对合同条款,确保与前期约定一致。合同签订后,需在规定时间内完成网签备案,确保房屋交易的合法性和安全性。支付房款按合同约定支付首付款,开发商出具首付发票。若选择贷款购房,银行放款后,开发商收到全部房款。交房验房开发商通知交房后,购房者需携带相关证件前往验房。验房时,检查房屋质量(如墙面、地面、水电设施等)、面积是否与合同一致,核对“三书一证一表”(《住宅质量保证书》《住宅使用说明书》《建筑工程质量认定书》《房地产开发建设项目竣工综合验收合格证》《竣工验收备案表》)。办理产权登记验房合格后,缴纳契税、维修基金等费用,向不动产登记中心申请办理房产证。办理完成后,购房者正式取得房屋产权,完成购房全流程。 以上流程和注意事项适用于新房购房,二手房购房流程略有差异,但核心原则(如核实产权、审查合同、确保资金安全等)基本一致。建议在整个购房过程中保持谨慎,必要时咨询专业律师或房产顾问,以保障自身权益贷款金额、利率、还款方式等条款。签订正式购房合同与开发商签订《商品房买卖合同》,仔细核对合同条款,确保与前期约定一致。合同签订后,需在规定时间内完成网签备案,确保房屋交易的合法性和安全性。支付房款按合同约定支付首付款,开发商出具首付发票。若选择贷款购房,银行放款后,开发商收到全部房款。交房验房开发商通知交房后,购房者需携带相关证件前往验房。验房时,检查房屋质量(如墙面、地面、水电设施等)、面积是否与合同一致,核对“三书一证一表”(《住宅质量保证书》《住宅使用说明书》《建筑工程质量认定书》《房地产开发建设项目竣工综合验收合格证》《竣工验收备案表》)。办理产权登记验房合格后,缴纳契税、维修基金等费用,向不动产登记中心申请办理房产证。办理完成后,购房者正式取得房屋产权,完成购房全流程。 以上流程和注意事项适用于新房购房,二手房购房流程略有差异,但核心原则(如核实产权、审查合同、确保资金安全等)基本一致。建议在整个购房过程中保持谨慎,必要时咨询专业律师或房产顾问,以保障自身权益