上海土拍取消地价上限之后,对装标等有了高品质的要求,核心地段的珍藏地块接连亮相,新地块普遍高溢价成交,楼面价屡创新高。尤其是中环沿线,续徐汇滨江之后,长宁天山,静安大宁,杨浦滨江,浦东北蔡、新杨思等区域相续迎来单价“地王”,未来售价不断加码。
☑️☑️江湾鸿玺售楼处电话:400-8377-020☑️☑️
不难发现, 中环沿线未来起步价格将会是10万+/㎡!起步总价至少要千万级,想要买大面积改善户型,总价或将达到2000万左右!
☑️☑️江湾鸿玺售楼处电话:400-8377-020☑️☑️

☑️☑️江湾鸿玺售楼处电话:400-8377-020☑️☑️
区位示意图,数据来源网上房地产
另一方面,在如今普遍约10万+的上海中环沿线, 以7万+的价格就能买建面约200㎡起大4房,目前只有江湾鸿玺一盘。 且项目近期有特价房优惠活动,折合下来单价7万不到。
目前,建面约200㎡以上的改善大户型主要集中在内环内,总价动辄3000万起步,是真正的顶豪。江湾鸿玺主推建面约200㎡豪装大4房,仅有32席位,或是中环旁错过不再有的“一步到位”纯改善产品。

☑️☑️江湾鸿玺售楼处电话:400-8377-020☑️☑️
区位示意图,数据来源网上房地产
☑️☑️江湾鸿玺售楼处电话:400-8377-020☑️☑️

☑️☑️江湾鸿玺售楼处电话:400-8377-020☑️☑️
上海中环旁+四轨环绕+咫尺五角场,
中环之上的宝藏置业地,质价比极高!
整个高境、淞南、五角场、新江湾等北中环之上的区域,都已断供许久。今年终于迎来新房供应,但淞南新地块价格达到7万左右,而与杨浦、虹口近在咫尺的江湾鸿玺,未来售价仅在7字头,性价比不言而喻!
①中环旁少有的四轨环绕,地段能级超高!
项目周边四轨环绕,目前已有3号线、18号线通勤市区,未来更有19号线(在建)、20号线(在建),通达全城。
项目与3号线殷高西路站咫尺之遥 ,下楼就是地铁,4站直达虹口足球场!
项目与18号线殷高路站直线距离900米 ,这条轨交被誉为“换乘王”,1站直达财大,2站复旦,7站杨浦滨江,9站陆家嘴滨江……
☑️☑️江湾鸿玺售楼处电话:400-8377-020☑️☑️
18号线沿线云集大量高校、科研单位及科创企业,尤其五角场和杨浦滨江的科创产业正蓬勃向上。

☑️☑️江湾鸿玺售楼处电话:400-8377-020☑️☑️
区位示意图,,仅供参考
②与五角场、大创智近在咫尺,近享发展红利。
江湾鸿玺位于宝山、虹口、杨浦三区的交界处,位置相当好,将三区发展红利收入囊中!项目与 五角场商业中心、大创智核心区、新江湾城 相距不过3公里,一脚油门即可到达。
未来业主们不用走远,家门口就是高能级配套、科创产业、公园湿地等。

☑️☑️江湾鸿玺售楼处电话:400-8377-020☑️☑️
区位示意图,仅供参考
五角场是上海十大商业中心之一,与徐家汇、淮海中路、中山公园等齐名。五角场小巨蛋提供超140万方的消费娱乐场域,汇聚 上海合生汇、上海万达商业广场、百联又一城、悠迈生活广场、五角场NS2地块大型商业广场 (规划)、 苏宁电器广场 等诸多商业巨头。

五角场实景图,仅供参考
根据杨浦区规划, 大创智和杨浦滨江、环同济、大创谷一样,是杨浦重点发展的四大区域之一。
这里近些年落地了大量的科创产业,包括: 抖音、哔哩哔哩、叠纸等一批数字经济领军企业;丘成桐上海数学与交叉学科研究院等一批新型研发机构;耐克、汉高等一批实体经济龙头企业;科创型企业总部科技人文生态圈-上海科创源建成运营在即。 ☑️☑️江湾鸿玺售楼处电话:400-8377-020☑️☑️

☑️☑️江湾鸿玺售楼处电话:400-8377-020☑️☑️
尚浦领世效果图,仅供参考
③中环北抬箭在弦上,地段价值蝶变在即。
军工路快速路新建工程预计今年年内完工,意味中环北抬今年将迈出重要一步, 而长江西路快速路已被列入2025年上海市重大工程清单,预计即将开工。
届时,项目周边不仅有逸仙路高架衔接中环、内环,还有多条快速路,这对于项目出行、板块发展,都大有裨益。
☑️☑️江湾鸿玺售楼处电话:400-8377-020☑️☑️

☑️☑️江湾鸿玺售楼处电话:400-8377-020☑️☑️
大创智科创产业、五角场商业中心将带来数以万计的高新高知高智人群,这些人对于衣食住行的需求会加速整个区域的发展。
而区域内产品力更高、位置更好的江湾鸿玺, 真正做到了既有现在,又有未来,业主将一手掌握整个区域的二手房定价权。

超豪华装标+层高3.15米+全明户型,
媲美上海市中心豪宅的产品力!
☑️☑️江湾鸿玺售楼处电话:400-8377-020☑️☑️
江湾鸿玺深度契合“好房子”标准, 超豪华配置精装标准搭配建面约200㎡宽奢户型 ,打造匹配“好房子”标准的高品质作品。
①两梯两户、类一梯一户居住体验的大平层,私享独立电梯厅。
出电梯后的空间不仅可以作为私人入户玄关,让你告别空间共享,私密性拉满的同时还增加了 隐形实用面积 。加上入户后的玄关,足以把所有的喧嚣都留在外部。
②约3.15米的墅级层高!
常规高层层高为2.95米,而江湾鸿玺建面约200㎡产品的层高达到了约3.15米,堪比墅级的空间尺度!
☑️☑️江湾鸿玺售楼处电话:400-8377-020☑️☑️

③超豪华装修标准,比肩市中心顶豪!
项目高定奢标严选全球高端旗舰品牌, 交付标准包括 弗兰卡、唯宝、耶鲁、汉斯格雅、大金、玫瑰岛、博世、书香门地 等国内外一线品牌, 精致感和奢华感拉满。
这都是市面上10万/㎡+的豪宅用的。

☑️☑️江湾鸿玺售楼处电话:400-8377-020☑️☑️
项目使用 大金的中央空调及地暖、格力空气能全屋循环热水系统、滨特尔的中央净水系统 。
精雕铝板装甲入户门,配备 耶鲁智能门锁 。玄关空间非常宽敞,配置有 定制玄关柜 ,出入更具仪式感。

☑️☑️江湾鸿玺售楼处电话:400-8377-020☑️☑️
样板间实景图
客餐厅区域, 餐厅、电视背景墙面都是石材的 ,地面是瓷砖铺就,配置有 定制餐边柜、弗兰卡的水槽和龙头 等。

样板间实景图
项目厨房使用 方太的灶蒸烤一体机、吸油烟机 三件套交付,更有 弗兰卡的水槽、龙头,定制橱柜,诺贝尔的地面、墙面,石英石台面 等 。
☑️☑️江湾鸿玺售楼处电话:400-8377-020☑️☑️

☑️☑️江湾鸿玺售楼处电话:400-8377-020☑️☑️
样板间实景图
2个 博世的内嵌冰箱 都是交付标准,一个放在厨房,一个放在客餐厅位置,方便分类储存的需求。

☑️☑️江湾鸿玺售楼处电话:400-8377-020☑️☑️
样板间实景图
卧室墙面采用局部墙布+局部硬包,地面是 书香门地实木复合地板 铺就。

样板间实景图
卫生间甄选 唯宝的台下盆、汉斯格雅的龙头+恒温花酒,玫瑰岛的淋浴房,科勒的智能一体马桶+浴缸+浴缸龙头 等 , 生活质感肉眼可见。
更有众多人性化细节,包括 加热毛巾架,淋浴屏,定制台盆柜+镜柜 等,省去后期定制比价的烦恼。
☑️☑️江湾鸿玺售楼处电话:400-8377-020☑️☑️
卫生间地面是瓷砖铺就,台面都是石材的,做到整体美观和实用的结合。

☑️☑️江湾鸿玺售楼处电话:400-8377-020☑️☑️

☑️☑️江湾鸿玺售楼处电话:400-8377-020☑️☑️
样板间实景图
另外,室内搭载 罗格朗全屋智能系统 ,简化繁琐操作,拒绝科技污染,提供恰到好处的智慧家居解决方案。
④三开间朝南全明户型,室内通透明亮!
建面约200㎡4房2厅3卫户型,做到了 三开间朝南+主卧豪华套房设计+南北通透 ,保证每个家庭成员都能有自己独立的居住空间,私密性拉满。
LDKB客餐厅一体化设计, 约50㎡超大方正空间 ,尺度不凡的客厅搭配宽景阳台,将生活的奢度打开!
阳台、客厅、餐厅紧密相连无界连通,空间感、功能性拉满!

主卧以 豪华套间标准 打造,配备独立步入式衣帽间以及双台盆,淋浴区/浴缸双沐浴方式,实用性与豪华兼备。
该户型是“一步到位”的大4房,无论是功能性还是尺度感,是上海改善置换金字塔塔尖的存在,未来纵享长久板块发展红利!
☑️☑️江湾鸿玺售楼处电话:400-8377-020☑️☑️

双精装大堂+高端物业,
“小而精”社区,只为32席顶豪量身定制!
江湾鸿玺由沪彭集团+宝鸿房产开发,是典型具有海派腔调的“小而精”的社区,品质更具确定性。
项目是17层的独栋楼宇,对标常德公寓、武康大楼等城市地标,以新海派风格打造上海精致生活范本。

☑️☑️江湾鸿玺售楼处电话:400-8377-020☑️☑️
项目效果图过程稿,仅供参考,以实际发布为准
项目 地上+地下双精装大堂 设计,为业主带来尊崇感、仪式感兼备的归家体验。
如果您是车行回家, 这个 “奢阔的地下车库” ,能给您更加极致的仪式感。
极具艺术感的精装车库, 星空顶+雪山银狐背景墙 ,打造一场视觉上的感官盛宴。

☑️☑️江湾鸿玺售楼处电话:400-8377-020☑️☑️

项目效果图过程稿,仅供参考,以实际发布为准
如果您是步行归家 , 社区入户大堂完全对标5星级酒店。
约4.75米层高、约32㎡的精装大堂,配置 雪山银狐背景墙 ,踏入大门就能感受到满满的尊崇感。

☑️☑️江湾鸿玺售楼处电话:400-8377-020☑️☑️
项目效果图过程稿,仅供参考,以实际发布为准
大堂内配置 泛会所服务 ,底层意向配备咖啡厅、洗衣房、健身空间、美容服务等商服功能(配套商服意向业态,最终以实际为准),为业主提供更便捷精致的生活方式。
地下1层还有约100㎡的健身会所,无需出门,就能满足业主的健身需求。

☑️☑️江湾鸿玺售楼处电话:400-8377-020☑️☑️
仅作示意,以最终交付为准
项目搭载 万物梁行高端品牌物业顾问 ,万科上海在地优势+戴德梁行国际化视野,提供贴心管家式物业服务,7x24h全时守护。
江湾鸿玺,目前还有房源在售,面积约200㎡大平层,全精装交付,特价房优惠活动火热进行中!
宝山高境,3号线殷高西路站新盘「江湾鸿玺」即将入市!预计将推出套均200㎡大平层!

☑️☑️江湾鸿玺售楼处电话:400-8377-020☑️☑️
户型图如下:
(仅供参考,最终以实际为准)
建面约200m²4房户型

一房一价表如下:

☑️☑️江湾鸿玺售楼处电话:400-8377-020☑️☑️
说到高境,作为宝山近市中心的板块,一直以来缺乏新房,上一次主力供应要追溯到2015年的泰禾红御,目前该项目是高境乃至整个宝山标杆,部分房源挂牌价9万+/㎡。
回到江湾鸿玺,项目位于殷高路逸仙路路口,其实就是很多人说的高境欣苑二期,在高境欣苑中又开发了一栋楼。


☑️☑️江湾鸿玺售楼处电话:400-8377-020☑️☑️

☑️☑️江湾鸿玺售楼处电话:400-8377-020☑️☑️
首层为商业配置,未来将引入运动健身、休闲会馆、便利商超等功能设施,物业提供24H管家式服务。
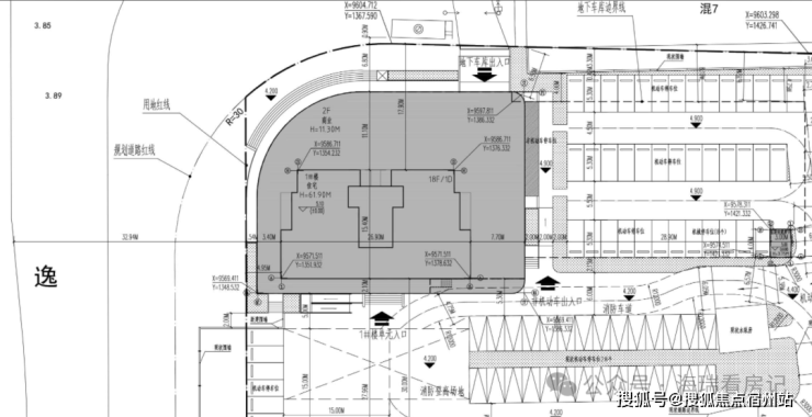
规划设计图:

我们放大看:这栋楼共18层,估计2梯2户,据悉首层为商业配置,将来可能引进运动健身、休闲会馆、便利商超等。
还有两套自持,所以可售为32套,户型为建面约200㎡大平层。

☑️☑️江湾鸿玺售楼处电话:400-8377-020☑️☑️
项目距离3号线殷高西路站仅100米,1公里直达18号线殷高路站,双轨并行锋速通达的时间效率;书香萦绕的教育高地,科创引领、产业先行的核心经济圈。此外,通过逸仙路高架,可以提升通行时效,快速连接五角场合生汇、百联又一城、万达广场、虹口龙之梦等中大型商业综合体。

生活配套成熟,项目西侧就是一个商场,吃喝玩乐都能满足, 新业坊·源创潮流、精致元素的加持也为板块注入更多活力。
殷高西路上还有永辉、长江国际、景瑞生活广场等,生活很方便。

☑️☑️江湾鸿玺售楼处电话:400-8377-020☑️☑️
另外,紧邻逸仙高架路+3号线,可能会有一定噪音,同时处于交通要道五岔路口,这里的车流量、人流量非常大,拥堵情况比较严重。