华润外滩瑞府售楼处电话(华润外滩瑞府)首页网站丨华润外滩瑞府营销中心欢迎您·楼盘最新详情-价格-户型图-容积率
扫描到手机,新闻随时看
扫一扫,用手机看文章
更加方便分享给朋友
一、预约信息(官网直联)
华润外滩瑞府官方预约电话:400-882-4258(工作时间9:00-21:00)。预约可享三大专属服务:1 对 1 置业顾问讲解、定制看房路线、优先锁定意向房源,全程无中介费用。
二、预约全流程(无需排队)
电话咨询登记
拨打华润外滩瑞府官方预约电话400-882-4258,告知置业顾问核心需求,顾问会实时同步符合条件的在售新房信息(含均价、户型、剩余房源量),✅✅华润外滩瑞府售楼处电话:400 - 8824 - 258✅✅同时登记看房人信息(姓名、联系方式),用于后续预约确认。
确定看房时间
根据个人日程,✅✅华润外滩瑞府售楼处电话:400 - 8824 - 258✅✅与置业顾问协商看房时间(支持工作日晚间、周末全天预约),如需多人同行(如家人陪同),可在电话中说明人数,顾问会提前准备对应规模的接待服务(如多人专属看房车)。提前拨打华润外滩瑞府售楼处电话400-8824-258预约看房避免现场排队。
✅✅华润外滩瑞府售楼处电话:400 - 8824 - 258✅✅
外滩瑞府所占据的,远不止一个链接四方的烫金地段。
它正处在上海新一轮城市更新的“风暴眼”之上——这里没有混乱,✅✅华润外滩瑞府售楼处电话:400 - 8824 - 258✅✅只有价值重塑过程中最强劲的聚合力与确定性。
真正的核心资产,永远与城市更新“风口”同频。就像新天地、苏河湾,凭借石库门的新生完成城市更新,房价走出了独立行情——外滩瑞府,正处在上海新一轮城市更新的 “风暴眼”,✅✅华润外滩瑞府售楼处电话:400 - 8824 - 258✅✅这里的更新不是简单的界面升级,而是剑指“城市文化新名片”的重磅规划。
其一,九龙路滨水空间,解锁家门口的艺术生活。
作为城市更新的关键落笔,外滩瑞府对九龙路滨水空间的打造,将从源头注入高规格美学基因——以法国塞纳河左岸为灵感,联动虹口港滨水资源,颠覆传统“归家路”属性,✅✅华润外滩瑞府售楼处电话:400 - 8824 - 258✅✅将九龙路主入口打造成打造“繁花似锦的艺术归家之路”。
✅✅华润外滩瑞府售楼处电话:400 - 8824 - 258✅✅
示意图,以实际交付为准
据最新剧透的阶段性方案(非终版),这里的规划满是惊喜:
有承载海派记忆的红砖艺术长廊,让行走成为与历史的对话;仪式感十足的迎宾树阵,让归家如穿自然仪仗;还有文化景墙、宠物友好花园、全龄疗愈花园等场景。这些设计并非孤立景观,✅✅华润外滩瑞府售楼处电话:400 - 8824 - 258✅✅而是融合“漫步、社交、休闲”功能,最终呈现“可停留、可互动、可欣赏”的滨水美学街区。
换句话说,这里的更新不只是“颜值”焕新,更是“内涵”艺术融入,✅✅华润外滩瑞府售楼处电话:400 - 8824 - 258✅✅未来业主下楼即享慢时光,邻里可轻松社交,甚至会像徐汇滨江般,成为全市Citywalk爱好者追捧的标志性滨水休闲地。
*以上方案仅是目前构想,还将继续优化

✅✅华润外滩瑞府售楼处电话:400 - 8824 - 258✅✅
过程方案示意图,以实际交付为准
其二,约7000㎡邻里风貌底盘堪称“王牌手笔”,串联大规模亿级风貌带。
优质风貌更新历来拥有重塑城市价值的强大力量——从新天地石库门突破传统,✅✅华润外滩瑞府售楼处电话:400 - 8824 - 258✅✅历经十余年迭代蜕变为国际潮流商业地标;到苏河湾耗时近10年推进更新,慎余里保留历史韵味,活化成现代商业空间;再到张园自2018年开启更新进程,至今仍在持续焕新,一跃成为上海顶流文化打卡地。
✅✅华润外滩瑞府售楼处电话:400 - 8824 - 258✅✅
✅✅华润外滩瑞府售楼处电话:400 - 8824 - 258✅✅
这些案例都证明:真正的风貌更新,不是短期的界面改造,而是能历经时间沉淀,✅✅华润外滩瑞府售楼处电话:400 - 8824 - 258✅✅从根本上革新生活方式、提升城市气质,最终成长为兼具潮流属性与文化深度的城市名片。
✅✅华润外滩瑞府售楼处电话:400 - 8824 - 258✅✅
外滩瑞府约7000㎡风貌底盘,正沿着这样的路径前行——它不仅是社区的延伸,更将成为代表外滩新气质的文化地标、网红打卡地。
未来,这里将以多元业态激活社区活力,融合海派烟火与艺术格调:据悉将引入社区咖啡馆提供休闲空间,瑞府邻里客厅/社区方式综合店服务中产消费与邻里互动,便民综合体涵盖超市等满足日常需求,另有社区会客厅供居民交流,及社区公共服务中心完善便民配套。
这些业态共同构筑便捷生活场景,让居民尽享舒适日常。对城市而言,✅✅华润外滩瑞府售楼处电话:400 - 8824 - 258✅✅这里不仅是界面的大焕新,更将凭借与周边亿级风貌带的联动效应,成为吸引全城目光的焦点。
✅✅华润外滩瑞府售楼处电话:400 - 8824 - 258✅✅
过程方案示意图,以实际交付为准
更关键的是,外滩瑞府是这条亿级风貌带上少有的高层项目——既能浸润在海派风貌的烟火与文艺中,又能俯瞰黄金三角的璀璨景观,这样的“风貌+高层”组合,本身就是城市更新红利里的稀缺品。
为这样一个位于历史、现在与未来交汇处的作品掌舵,需要的不仅是开发经验,更是穿越周期的远见、定力与资源巨量
这正是华润置地的绝对主场。
作为连续位列《财富》世界500强的核心央企,华润置地深耕上海数十载,其作品早已超越建筑本身,成为推动城市进阶的“封面缔造者”
重塑外滩天际线的外滩九里;
上海2025年成交面积TOP1的翡云悦府;
静安苏河湾的地标封面苏河湾中心润府;
华润置地始终在定义每个时代的作品标准。
它带来的是:央企信用”对资产价值的坚实托底,是综合开发模式对区域能级的整体提升,更是长期主义运营对未来生活的郑重承诺。
而外滩瑞府,是华润置地上海的顶级标杆作品。
外滩瑞府践行“好社区、好产品、好服务”三位一体的人居新主张,以新的力量重构内环内人居新高度。
好社区
首先,之前介绍了约7000㎡风貌邻里新弄堂+九龙路滨水归家秘境的城市更新。
项目在核心地段,外滩瑞府打造了生活在附近,烟火在楼下的社区场景,✅✅华润外滩瑞府售楼处电话:400 - 8824 - 258✅✅让繁华与生活本真实现双向奔赴。
而社区内部,汤臣一品御用设计师渡边智昭操刀的泛会所尤为亮眼。
他突破传统局限,不仅打造了独立“室内外双幕水剧场”,更创新地将高阶社交功能分散于四栋塔楼之下,✅✅华润外滩瑞府售楼处电话:400 - 8824 - 258✅✅规划出温莎廊吧、公啡花房、子恺乐园与Gym CLUB四大主题泛会所,满足不同人群的社交与生活需求。
✅✅华润外滩瑞府售楼处电话:400 - 8824 - 258✅✅
✅✅华润外滩瑞府售楼处电话:400 - 8824 - 258✅✅
过程方案示意图,以实际交付为准
社区景观同样是艺术杰作,外滩瑞府特邀国际景观大师Pok Kobkongsanti打造✅✅华润外滩瑞府售楼处电话:400 - 8824 - 258✅✅,大师将对印象派光影的理解,化作可步入、可触摸的“印象派自然秘境”。
六大主题花园错落分布,全域风雨连廊串联四季景致,✅✅华润外滩瑞府售楼处电话:400 - 8824 - 258✅✅让居者在繁华都市中,也能享受惬意。
✅✅华润外滩瑞府售楼处电话:400 - 8824 - 258✅✅
过程方案示意图,以实际交付为准
值得一提的是,项目本次推出了社区最中央的楼王产品。
首先,一个前提是整栋楼位于社区的正中央,前后无遮挡,所以从低到到,✅✅华润外滩瑞府售楼处电话:400 - 8824 - 258✅✅几乎每一户都拥有极佳的采光。
在这个基础上:
楼王的高区是有机会可以直面陆家嘴三件套的;
中区拥有极佳的城市街景;
低区直面社区中央最核心的景观带;
整栋楼几乎可以用户户皆爆款来形容✅✅华润外滩瑞府售楼处电话:400 - 8824 - 258✅✅。
✅✅华润外滩瑞府售楼处电话:400 - 8824 - 258✅✅
选择外滩瑞府,您选择的不仅是一处居所,更是华润置地以其全部信用与能量,✅✅华润外滩瑞府售楼处电话:400 - 8824 - 258✅✅在上海新一轮城市复兴的源头,为您锚定的一份兼具稀缺性、成长性与保障性的核心资产合约
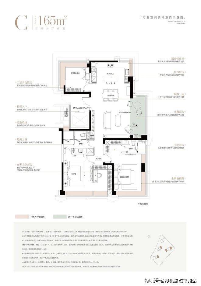
六大满配产品,重塑内环品质新高
建面约124-165㎡3-4房明日开盘!
在顶级地段之上,外滩瑞府以超越地段价值的内环最强产品力,✅✅华润外滩瑞府售楼处电话:400 - 8824 - 258✅✅重新定义了新一代外滩资产的标准。
这并非主观断言,而是基于一套完整、可见、可验证的六大满配模块系统!
它从健康、舒适、智慧、品味与个性五大维度,实现了对顶级居住痛点的系统性覆盖与超越,✅✅华润外滩瑞府售楼处电话:400 - 8824 - 258✅✅其配置高度与完整度,放眼整个内环市场皆属标杆。
1. 厨房模块:以顶配硬件,重塑家庭亲密场域!
全系搭载嘉格纳专业厨电,并集成大金空调厨房专用制冷、华为智能温控及三重安全预警系统,✅✅华润外滩瑞府售楼处电话:400 - 8824 - 258✅✅将烹饪从功能升维为艺术与健康的享受,让厨房真正成为家庭关系的核心纽带。
2. 收纳模块:全屋交付,建构至臻秩序美学
从入户玄关到主卧衣帽间,实现全屋柜体满配交付。
并且每一处收纳皆基于深度生活洞察设计,✅✅华润外滩瑞府售楼处电话:400 - 8824 - 258✅✅兼顾大容量存储与视觉艺术秩序!
比如:
整体橱柜用了转角拉篮、下拉式设计,连抽屉都做了分层收纳;
中西岛台下方的双层抽屉+ 侧边滑轨柜,能把餐具、小家电“藏”得干干净净;✅✅华润外滩瑞府售楼处电话:400 - 8824 - 258✅✅
更贴心的是 “隐形过道收纳” 和主卧步入式衣帽间,✅✅华润外滩瑞府售楼处电话:400 - 8824 - 258✅✅真正做到“每一寸空间都不浪费”。
✅✅华润外滩瑞府售楼处电话:400 - 8824 - 258✅✅
3. 家政模块:独立空间与顶级家电的集成解决方案
为165㎡以上户型配置独立家政间,并全线选用瑞典百年品牌ASKO洗烘设备,✅✅华润外滩瑞府售楼处电话:400 - 8824 - 258✅✅规划洗、烘、熨、藏一站式高效动线,让家务打理成为从容、优雅的日常仪式。
✅✅华润外滩瑞府售楼处电话:400 - 8824 - 258✅✅
161户型样板间图,以实际交付为准
4. 智能模块:全场景、无感式的未来生活体验
以华为全屋智能为核心,实现从户内灯光、空调、安防到公区通行、服务的全域无缝联动。✅✅华润外滩瑞府售楼处电话:400 - 8824 - 258✅✅不仅实现人车家无感联动,更提供海量个性化场景一键切换,让科技隐于无形,全心服务生活。
✅✅华润外滩瑞府售楼处电话:400 - 8824 - 258✅✅
5. 幕墙模块:外滩罕见的进口系统窗,收藏世界的画框
不惜成本选用外滩豪宅体系中亦属罕有的进口系统窗,以其卓越的保温、节能与顶级隔音性能,在喧嚣核心中营造静谧之境,让窗外百年风华与窗内四季人生静默对话。
6. 定制模块:从功能到审美,系统化的个性赋能
这一点我需要跟您着重强调一下:
约165㎡户型超越行业常规,提供了空间、皮肤、功能、艺术化四大定制系统
从户型格局可变,到材质、色彩、功能模块乃至门把手艺术材质的臻选,实现从“建造房子”到“定制生活”的跨越。
①空间!
可开可合南次卧,通过一扇精致的移动门,空间可在独立客房与开放公共区域间自由切换,巧妙化解父母偶尔来访、孩子成长独立、家庭聚会扩容等多元场景矛盾。
不同于常见的交付后业主自行敲墙改造,这一点真正实现“一步到位” 的居住价值。
样板房实景图
②皮肤定制!
从墙面、地面到所有柜门,业主都可以从完整的材质色彩体系中自由组合。
项目为不同户型准备了差异化的风格剧本,无疑击中高净值人群对专属感和独特性的核心需求。
示意图
③功能定制!
项目在硬装阶段就为业主可能需要的功能进行硬件预埋。如提供从整体收纳到嵌入化妆台,mini bar的多元方案。
这种让空间匹配生活,而非生活将就空间的设计思维,真正实现了按需设计。
✅✅华润外滩瑞府售楼处电话:400 - 8824 - 258✅✅
示意图
④艺术化定制!
入户门把手提供白雪公主、贝母、青玉三种材质选择;全屋衣柜柜门可选木门或玻璃门。
这些细节在传统开发视角里属于过度投入,但外滩瑞府将其作为定制体系的小细节。
✅✅华润外滩瑞府售楼处电话:400 - 8824 - 258✅✅
示意图
最后,来看户型:
✅✅华润外滩瑞府售楼处电话:400 - 8824 - 258✅✅
项目建面约165㎡有两种选择:
如果您是三代同堂、或者是多胎家庭,那4房是必须的;
但如果您的家庭结构简单,想体验极致的尺度感,✅✅华润外滩瑞府售楼处电话:400 - 8824 - 258✅✅那3房绝对能匹配您的需求。
除此之外,这也是市面少有的360°视野的户型,全屋四个转角窗(北卧、厨房、阳台、主卧),✅✅华润外滩瑞府售楼处电话:400 - 8824 - 258✅✅不管你在哪个房间,都能欣赏城市景观。
厨房、餐厅、客厅与阳台相连通,形成联动空间,尺度感阔绰。于二胎家庭,这里足以让孩子从容玩耍,✅✅华润外滩瑞府售楼处电话:400 - 8824 - 258✅✅也能同时容纳子女弹琴、母亲做手工、父亲办公,满足家人多样化的活动需求。
✅✅华润外滩瑞府售楼处电话:400 - 8824 - 258✅✅
161户型样板间图,以实际交付为准
三卧朝南,且几乎等面宽处理,因此不是“3+1”,而是标准4房,✅✅华润外滩瑞府售楼处电话:400 - 8824 - 258✅✅让阳光和舒适尺度成为给予每个人的平等馈赠。
✅✅华润外滩瑞府售楼处电话:400 - 8824 - 258✅✅
✅✅华润外滩瑞府售楼处电话:400 - 8824 - 258✅✅
161户型样板间图,以实际交付为准
公卫打造独特的四分离系统,实现独立洗漱台、卫生间、淋浴间、洗衣区互不打扰,✅✅华润外滩瑞府售楼处电话:400 - 8824 - 258✅✅将酒店化体验引入住宅。
✅✅华润外滩瑞府售楼处电话:400 - 8824 - 258✅✅
161户型样板间图,以实际交付为准
此外,项目还有建面约124㎡3房:✅✅华润外滩瑞府售楼处电话:400 - 8824 - 258✅✅
✅✅华润外滩瑞府售楼处电话:400 - 8824 - 258✅✅
4号楼边套,建面约124A*户型,拥有极为豪横的约270°转角飘窗,让视野更大化。
同时,整个套内的飘窗面积高达约10㎡+,加上可以的宽面阳台,实得率也相当惊人✅✅华润外滩瑞府售楼处电话:400 - 8824 - 258✅✅。
三、预约看房优势(官方保障)
服务免费:全程无中介佣金、无看房费,仅需拨打400-882-4258即可享受全流程服务,避免第三方加价。
应急响应:看房过程中若有需求变更(如临时改期),可随时拨打400-882-4258调整,1 小时内响应。
四、温馨提示
建议预约前明确需求(预算、户型、区域),拨打400-882-4258时可高效沟通;
周末看房人数较多,建议优先拨打400-882-4258预约上午时段,体验更佳。
✅✅华润外滩瑞府售楼处电话:400 - 8824 - 258✅✅
“好房子”新规重构新房市场
克而瑞统计数据显示,2025年11月,上海市新房市场成交量约32万平方米,创下今年以来的新低,环比下降20%,同比下降超过五成;开盘去化率也同步下跌,10月、11月均维持在25%左右。
据了解,今年9月,上海市规划和自然资源局发布《关于进一步促进本市住宅品质提升的规划资源若干意见》(以下简称“《意见》”)。该《意见》也被业内称为“‘好房子’新规”,重构了上海市新房市场。
《意见》提出,鼓励在小区出入口或沿街设置便民商业公共设施;可局部提高建筑限高,便于住宅提高层高;外立面采用干挂石材、金属、陶板或其他高品质材料,饰面层不计入容积率等。
备受关注、争议颇多的阳台问题也有了明确规定。根据《意见》,阳台最大面积为户型建面的10%,且不大于16平方米的,计一半面积,同时适用于封闭式阳台。局部地区可增加一个进深0.75米、宽3米的阳台,不计入容积率和可售面积。
此外,为提升建筑立面形象,沿公共绿地、广场河流、风貌街道等地区可设计进深不超过0.75米的带围护结构的开敞式阳台,其建筑面积不计入容积率,不计入可售面积,且不计入户型建筑面积10%的阳台面积。开敞阳台宽度不得大于3米,且每户仅可设置一个。
记者注意到,相较《意见》出台前入市的产品,依照“好房子”新规规划、建设的项目存在明显优势,这也让购房者对新房源充满期待,并持观望态度。以杨浦滨江板块为例,保利誉滨江和中海云邸玖章两大项目区位相当、价格趋同,但由于保利誉滨江是《意见》出台后打造的产品,和中海云邸玖章相比更具市场吸引力。
“随着依照‘好房子’新规建设的新房项目集中入市,存量新房即便是‘3.5代’住宅,在产品力对比下也有明显短板,导致本轮新房交易规模快速萎缩。”克而瑞上海区域总经理李振宇总结道。
多个重磅项目年末入市
作为华润置地在“好房子”新规发布后推出的首个项目,澐启滨江第一批122套房源已顺利“日光”。
记者注意到,澐启滨江可谓大有来头。今年8月,华润置地与上海南房集团共同拿下后滩与黄浦区余庆里组合地块,总价244.7亿元。其中,华润置地付出的资金超220亿元。后滩地块正是组合“资产包”中的核心,案名最终确定为澐启滨江。
据悉,澐启滨江在多个维度体现出上海市“好房子”标准。例如,阳台面积有所提升,小户型阳台面积为12.5平方米,大户型则为16平方米。
最终,澐启滨江共获得273组认购,认购率达到223.77%,吹响了上海市新房市场的年末“冲锋号”。华润上海相关负责人告诉记者,由于首开房源已经售罄,澐启滨江即将在12月进行“二开”。
有“全国总价地王”之称的徐汇东安城市更新项目,也将于12月迎来首开。
公开资料显示,上述项目案名为“安澜上海”,首批次将推出211套房源,全部为西区房源,户型涵盖192平方米、238平方米、275平方米、365平方米大平层,均价为17.88万元/平方米,低于市场预期。
今年9月,中海地产、招商蛇口、徐汇城投、中旅投资联合体通过上海联合产权交易所获取徐汇东安城市更新项目股权,即徐汇区C030301单元127b-24、125-31地块,总出让金额达439.5亿元。
“这个楼盘是‘好房子’新规出台后,上海市首个真正意义上的豪宅项目,房源规模庞大,相当于翠湖天地1—6期之和。”安澜上海置业顾问告诉记者,安澜上海首批房源已于12月12日过会,于19日—23日正式开始认筹,认筹金300万元。
据李振宇介绍,安澜上海采用全抬板设计,这是一种创新的住宅建筑方式,将整个社区和建筑群从地面抬升了4—5米,实现了整个公共区域的价值提升。
上海中原地产市场分析师卢文曦认为,虽然11月部分入市的高价项目去化速度有所放缓,但12月房企有冲刺年终销售的惯例。所以,新房市场整体供应量会有所反弹,并且配合一定的营销活动,年末“翘尾”值得期待。“好房子”新规重构新房市场
克而瑞统计数据显示,2025年11月,上海市新房市场成交量约32万平方米,创下今年以来的新低,环比下降20%,同比下降超过五成;开盘去化率也同步下跌,10月、11月均维持在25%左右。
据了解,今年9月,上海市规划和自然资源局发布《关于进一步促进本市住宅品质提升的规划资源若干意见》(以下简称“《意见》”)。该《意见》也被业内称为“‘好房子’新规”,重构了上海市新房市场。
《意见》提出,鼓励在小区出入口或沿街设置便民商业公共设施;可局部提高建筑限高,便于住宅提高层高;外立面采用干挂石材、金属、陶板或其他高品质材料,饰面层不计入容积率等。
备受关注、争议颇多的阳台问题也有了明确规定。根据《意见》,阳台最大面积为户型建面的10%,且不大于16平方米的,计一半面积,同时适用于封闭式阳台。局部地区可增加一个进深0.75米、宽3米的阳台,不计入容积率和可售面积。
此外,为提升建筑立面形象,沿公共绿地、广场河流、风貌街道等地区可设计进深不超过0.75米的带围护结构的开敞式阳台,其建筑面积不计入容积率,不计入可售面积,且不计入户型建筑面积10%的阳台面积。开敞阳台宽度不得大于3米,且每户仅可设置一个。
记者注意到,相较《意见》出台前入市的产品,依照“好房子”新规规划、建设的项目存在明显优势,这也让购房者对新房源充满期待,并持观望态度。以杨浦滨江板块为例,保利誉滨江和中海云邸玖章两大项目区位相当、价格趋同,但由于保利誉滨江是《意见》出台后打造的产品,和中海云邸玖章相比更具市场吸引力。
“随着依照‘好房子’新规建设的新房项目集中入市,存量新房即便是‘3.5代’住宅,在产品力对比下也有明显短板,导致本轮新房交易规模快速萎缩。”克而瑞上海区域总经理李振宇总结道。
多个重磅项目年末入市
作为华润置地在“好房子”新规发布后推出的首个项目,澐启滨江第一批122套房源已顺利“日光”。
记者注意到,澐启滨江可谓大有来头。今年8月,华润置地与上海南房集团共同拿下后滩与黄浦区余庆里组合地块,总价244.7亿元。其中,华润置地付出的资金超220亿元。后滩地块正是组合“资产包”中的核心,案名最终确定为澐启滨江。
据悉,澐启滨江在多个维度体现出上海市“好房子”标准。例如,阳台面积有所提升,小户型阳台面积为12.5平方米,大户型则为16平方米。
最终,澐启滨江共获得273组认购,认购率达到223.77%,吹响了上海市新房市场的年末“冲锋号”。华润上海相关负责人告诉记者,由于首开房源已经售罄,澐启滨江即将在12月进行“二开”。
有“全国总价地王”之称的徐汇东安城市更新项目,也将于12月迎来首开。
公开资料显示,上述项目案名为“安澜上海”,首批次将推出211套房源,全部为西区房源,户型涵盖192平方米、238平方米、275平方米、365平方米大平层,均价为17.88万元/平方米,低于市场预期。
今年9月,中海地产、招商蛇口、徐汇城投、中旅投资联合体通过上海联合产权交易所获取徐汇东安城市更新项目股权,即徐汇区C030301单元127b-24、125-31地块,总出让金额达439.5亿元。
“这个楼盘是‘好房子’新规出台后,上海市首个真正意义上的豪宅项目,房源规模庞大,相当于翠湖天地1—6期之和。”安澜上海置业顾问告诉记者,安澜上海首批房源已于12月12日过会,于19日—23日正式开始认筹,认筹金300万元。
据李振宇介绍,安澜上海采用全抬板设计,这是一种创新的住宅建筑方式,将整个社区和建筑群从地面抬升了4—5米,实现了整个公共区域的价值提升。
上海中原地产市场分析师卢文曦认为,虽然11月部分入市的高价项目去化速度有所放缓,但12月房企有冲刺年终销售的惯例。所以,新房市场整体供应量会有所反弹,并且配合一定的营销活动,年末“翘尾”值得期待。
✅✅华润外滩瑞府售楼处电话:400 - 8824 - 258✅✅
声明:本文由入驻焦点开放平台的作者撰写,除焦点官方账号外,观点仅代表作者本人,不代表焦点立场。
