✅一生只搬一家,上海的世外桃源
✅拥有12万原生态森林
✅始终走在低碳住宅的前沿
✅领先世界卫生组织定义的健康科技住宅
六恒环保健康科技住宅 100%绿化率
☑️☑️中鹰黑森林售楼处电话:400-8377-020☑️☑️
编辑

☑️☑️中鹰黑森林售楼处电话:400-8377-020☑️☑️
一、基本信息:
开发商:上海中鹰置业有限公司
物业公司:上海中鹰黑森林物业有限公司
占地面积:约9.5万㎡
建筑面积:约27万㎡
产权年限:70年
楼栋数:16幢(本次销售房源分布在二、三期高层住宅)
总户数:1264(本次保留房源20套左右)
得房率:本次销售房源得房率为76-80%
总车位配比:1:1.2
绿化率:40%
均价:16w/㎡
☑️☑️中鹰黑森林售楼处电话:400-8377-020☑️☑️
能源费:15.8元/㎡/月【含中央能源费(毛细管冷暖系统、新风系统、地源热泵),中央净水、热水系统(热水免费供应),物业费等】
梯户比:2T2H
交付标准:高定奢装
交房时间:现房交付
生活配套:
商业:乐购,家乐福,巴黎春天,虎城嘉年,华等商业中心
银行:工商银行,建设银行,光大银行,交通银行
医院:万里中医院,天佑医院,同济大学附属医院。
教育配套:
童的梦双语幼儿园、晋元高级中学附属小学、初中,晋元高级中学。
交通配套:
交通状况:5分钟上内环,3分钟上中环
轨道交通:7号线(新村路站),11号线(上海西站)
☑️☑️中鹰黑森林售楼处电话:400-8377-020☑️☑️
编辑

☑️☑️中鹰黑森林售楼处电话:400-8377-020☑️☑️
二、主推房:
1002 3房 250平 南北通透 4014万
☑️☑️中鹰黑森林售楼处电话:400-8377-020☑️☑️
1⃣️客厅面宽8.5米,全落地窗设计沪上少有;
2⃣️中区楼层:中区的视野越过树梢,千米无遮挡,采光和通风效果特别好,客厅直面中央景观绿地,视野开阔 媲美纽约中央公园;
3⃣️主卧面宽8.5米,全落地窗观视野无遮挡 观自然水域 视野开中鹰黑森林项目
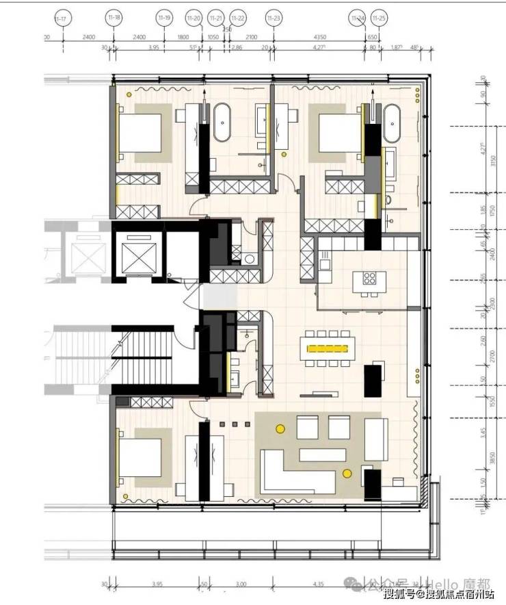
三、户型图和楼栋位置:
250平3房户型图
☑️☑️中鹰黑森林售楼处电话:400-8377-020☑️☑️
编辑

☑️☑️中鹰黑森林售楼处电话:400-8377-020☑️☑️
312平3房户型图:
编辑

☑️☑️中鹰黑森林售楼处电话:400-8377-020☑️☑️
实拍视野南向:
编辑

☑️☑️中鹰黑森林售楼处电话:400-8377-020☑️☑️
实拍视野北向:
编辑

☑️☑️中鹰黑森林售楼处电话:400-8377-020☑️☑️
四、室内视频(18层样板间带露台)
编辑

编辑

☑️☑️中鹰黑森林售楼处电话:400-8377-020☑️☑️
编辑

☑️☑️中鹰黑森林售楼处电话:400-8377-020☑️☑️
编辑

编辑

编辑

☑️☑️中鹰黑森林售楼处电话:400-8377-020☑️☑️
五、【中鹰黑森林项目价值】
一、【六恒健康科技住宅】
全新升级的六恒系统——恒温·恒湿·恒氧·恒洁·恒静·恒舒,缔造优质的室内空气环境。四管制毛细管冷暖辐射技术与置换式医用级新风系统,开创了住宅“无空调”的新时代;“藏”于地下的中央能源系统,中央化管理所有能源,高效、低碳、节能。
☑️☑️中鹰黑森林售楼处电话:400-8377-020☑️☑️
1.瑞士Willers(威乐斯)四管制毛细管辐射 (毛细管辐射系统是一种隐形的空调系统,做到了“无形、无声、无风”,让温暖和凉爽在屋内流淌,尤其适合小孩、老人和过敏体质人群)
2.在天花板与地面同时铺设毛细管的管道,夏季由吊顶辐射供冷,冬季由地面辐射供热,贴心满足中国人“暖脚头凉”的特质。☑️☑️中鹰黑森林售楼处电话:400-8377-020☑️☑️
2.毛细管辐射冷暖,能确保室内温度全年维持在20~26℃(人体最健康适宜的温度)
3.置换式新风系统 :每户均由独立变风量新风机组和送风排管组成,每0.9小时置换一次空气,每天置换可达25次,超过五星级酒店的标准。
4.通过新风系统空气加湿/除湿,实现对室内恒湿环境的维系,是室内湿度基本保持在30%-70%
二、【100%绿化覆盖率 原生态森林】
移植11000棵成年乔木,培育12万方森林,连同万里板块10万中央绿地,形成一条长方形的“内外绿廊”,如今,树木高度已达到15米。在上海昂贵的土地上,在短短13年间,造出了这样一片茂密的森林。
通过“树木、河流、屋顶、楼底”的全方位绿色覆盖,形成了绝无仅有的森林生态,完成了100%的超高绿化覆盖率,活化土地,循环共生,让现代的璀璨建筑镶嵌于绝无仅有的森林“活”生态中。
三、【包豪斯现代极简风格,户型自由定制】
项目以德国包豪斯风格为建筑灵感,创新打造全落地玻璃墙高层住宅,由德国Obermeyer建筑设计事务所与德国Dibelius建筑事务所联袂设计。厚板框架建筑结构,开创了住宅自由定制户型的新模型(项目的科技系统都在地面或是顶棚,后期户型可以自己调整)
六、其他:精装品牌
美国Trane中央能源系统,
瑞士Willers四管制毛细管冷暖系统
德国HUBER&RANNER医用级置换式新风系统,
集合EIB欧洲总线系统、瑞士ABB智能家居系统
德国Adoro(隔热隔音入户门)、
德国Hormann(隔音钢制室内门)、
德国SimonsVoss(加密电子锁)、
比利时Reynaers(隔热隔音玻璃墙铝框架)、
比利时Renson(隔热防辐射外遮阳系统)、
德国Parador(欧洲第一品牌环保地板)、
德国Knauf(医用级石膏吊顶喷涂)、
德国Erfurt(200年历史食品级墙纸)、
德国Caparol(120年历史环保涂料)、
德国Kuberit(156年历史全铝踢脚线)
☑️☑️中鹰黑森林售楼处电话:400-8377-020☑️☑️
德国Bulthaup(殿堂级橱柜)/德国SieMatic(橱柜中的劳斯莱斯)、
德国Miele(顶级奢侈厨电)/瑞士V-Zug(米其林专用厨电)、
瑞士Laufen(顶级卫浴陶瓷世家)、
德国Hansgrohe(百年历史卫浴龙头、花洒)、
德国Kermi(顶尖品牌淋浴房)/捷克Ravak(顶尖品牌淋浴房)、
德国Blanco(顶尖厨房系统水槽)、
德国Geberit(原装进口同层排水系统)】、
美国Insinkerator(食物垃圾处理系统)
☑️☑️中鹰黑森林售楼处电话:400-8377-020☑️☑️
编者按:在现代社会的喧嚣与纷扰中,寻找一片属于自己的静谧天地显得尤为珍贵。家,不仅是我们身体的栖息之所,更是心灵得以安宁的港湾。然而,传统住宅往往难以有效隔离邻里之间的噪音,居住环境中的各种声响成为影响居民生活质量的重要因素之一。面对这一挑战,上海中鹰黑森林项目独创性地采用了先进的分户墙隔音技术,通过精心设计和选材,将隔音降噪的理念融入到每一个建筑细节之中。不仅如此,社区内丰富的自然景观和成熟的绿化布置也为居民提供了一个远离尘嚣、亲近自然的生活环境。
☑️☑️中鹰黑森林售楼处电话:400-8377-020☑️☑️
本文将深入介绍中鹰黑森林如何利用创新科技和匠心工艺,为业主打造一个既现代又宁静的居住空间,探讨其在提升居住品质方面的独特之处。让我们一同走进这个被绿色环抱、由科技守护的静谧家园,感受那份难得的安宁与舒适。
编辑

☑️☑️中鹰黑森林售楼处电话:400-8377-020☑️☑️
上海中鹰黑森林实景图
放下身心疲惫,归家岁月静好。室内空间隔断室外喧嚣纷扰的重任,更承载了室内外的关系,楼上下邻里的和谐,往往一墙之隔,一板之隔。
新发中鹰黑森林,摒弃传统分户墙做法,采用分户墙隔音技术,三重材料黏合,有效阻隔噪音传递,减少邻里互扰,还生活以宁静。
编辑

☑️☑️中鹰黑森林售楼处电话:400-8377-020☑️☑️
上海中鹰黑森林实景图
编辑

☑️☑️中鹰黑森林售楼处电话:400-8377-020☑️☑️
在看不见的科技细节里,中鹰集团尤其注重隔音降噪,将隔音的奥秘隐藏于建筑之中。
针对隔音问题带来的居住痛点,新发中鹰黑森林遵循国人以家庭为单位的居住习惯,分户墙中置5公分隔音减噪措施,解决水平分户的隔音困扰。
编辑

示意图
值得一提的是,分户墙的结构上,中鹰独创的以100mmALC加气墙板+50mm隔音棉+100mmALC加气墙板,三重材料黏合,为营造和谐邻居关系打好基础。
编辑

☑️☑️中鹰黑森林售楼处电话:400-8377-020☑️☑️
新发中鹰黑森林效果图
如此匠心巧思,使得分户墙内部像面包一样,均匀分布大量封闭气孔,拥有一般建筑材料所不具有的,吸音和隔音双重性能,不同饰面和厚度的墙体计权隔声量可达40~60dB。
编辑

☑️☑️中鹰黑森林售楼处电话:400-8377-020☑️☑️
上海中鹰黑森林实景图
不仅如此,从建筑端采用40cm超高厚底密肋楼盖楼板,以有效规避未来邻里间的干扰,既隔离室外噪音干扰,又保证室内圆润悦耳的声音环境。
编辑

☑️☑️中鹰黑森林售楼处电话:400-8377-020☑️☑️
隔音示意图
编辑

☑️☑️中鹰黑森林售楼处电话:400-8377-020☑️☑️
在中鹰看来,森林是天然的降噪器,将喧嚣隔绝在外,除了宁静,一切禁止入内。
在无锡,新发中鹰黑森林,社区内约5万方景观,尤其是约600米中央景观轴,全球甄选移栽百余种绿植,以成年香樟木为绿化核芯,引入榉木、桂花、悬铃木、法国梧桐等成年树木,实现让建筑被绿化包围,在拉近人与自然的距离,让生活回归大自然的绿色静谧的怀抱。
编辑

☑️☑️中鹰黑森林售楼处电话:400-8377-020☑️☑️
上海中鹰黑森林实景图
此外,建筑的外围护系统,为建筑套上一层“隔音罩”,保证外围护系统的气密性,是建筑隔音的关键,层与层之间采用10公分的超厚岩棉,隔音效果强,噪音小于50分贝。
编辑

☑️☑️中鹰黑森林售楼处电话:400-8377-020☑️☑️
隔音棉示意图
在新发中鹰黑森林,外墙采用三层双腔Low-E玻璃,搭配欧洲品质铝型材与防辐射遮阳卷帘,形成一套严密的外围护系统,让建筑拥有如墙体一般的气密性与隔音效果。
编辑

上海中鹰黑森林效果图
☑️☑️中鹰黑森林售楼处电话:400-8377-020☑️☑️
高效阻隔噪音,减少邻里互扰。新发中鹰黑森林,以创新的分户墙隔音技术,用科技、领先建材与匠心精工,为时代塔尖的居家生活注入静谧基因,精筑太湖湾芯的科技人居著作。
编辑

☑️☑️中鹰黑森林售楼处电话:400-8377-020☑️☑️
上海中鹰黑森林实景图
编辑

上海新发中鹰·黑森林项目效果图
编辑

☑️☑️中鹰黑森林售楼处电话:400-8377-020☑️☑️
上海新发中鹰·黑森林项目效果图
编辑

☑️☑️中鹰黑森林售楼处电话:400-8377-020☑️☑️
上海中鹰·黑森林项目
上海中鹰·黑森林11号
楼王收官之作
上海市新村路1717弄
贵宾热线:021 6640 9000
内中环│德系科技住宅
把家搬进森林里
「中鹰黑森林」
建面约214-581㎡现房热销中
总价约3000-8000万
☑️☑️中鹰黑森林售楼处电话:400-8377-020☑️☑️

☑️☑️中鹰黑森林售楼处电话:400-8377-020☑️☑️
上海中鹰集团是一家集建筑、绿化、装饰、销售、服务于一体的专业化房地产开发企业,是中国首先关心生命健康的新一代住宅缔造商。在住宅营造中,中鹰遵循世界卫生组织(WHO)的健康住宅15项标准(部分标准甚至高于WHO健康住宅要求)和欧洲“三升房”节能标准,将国际最新颖、最先进理念带入住宅建筑空间设计中,引入现代高新科技手段,从建材、施工到生命健康、能源环保,全面大幅超越及定义行业标准,抛却传统黄沙水泥等“城市尘埃污染”源头,使用全新节能环保建材,本着打造代表未来地标性建筑社区的思想,十年磨一剑,匠心于健康住宅项目。中鹰集团——超现代高级健康住宅的缔造者和低碳环保节能的先行者。其在上海首个健康住宅项目——中鹰·黑森林,以高智能空间、原生态环境和健康居住观,在上海·汉堡生态建筑展上被评为人居示范社区

德国“黑森林”惊现上海
11000余棵成年乔木,12万方城央森林,繁茂高耸的树木包裹整个住宅区,宛若置身德国 “黑森林”(Schwarzwald)。☑️☑️中鹰黑森林售楼处电话:400-8377-020☑️☑️

☑️☑️中鹰黑森林售楼处电话:400-8377-020☑️☑️
包豪斯风格│德系极简美学
秉承极简灵动的包豪斯风格,邀请德国最大的独立工程咨询公司之一——Obermeyer(欧博迈亚)设计承建,其创始人Obermeyer先生是德国“联邦十字勋章”的获得者。

☑️☑️中鹰黑森林售楼处电话:400-8377-020☑️☑️
首次将“全玻璃外墙”引入高层住宅│四层双腔LOW-E玻璃
首创全玻璃外墙高层住宅,勾勒动人心魄的高贵姿态,营造全视野的通透居住空间。力邀德国Dibelius(迪拜利斯)建筑事务所进行玻璃外立面设计,其创始人Thomas Dibelius曾打造过多个全玻璃外墙豪宅作品。法国Saint Gobain(圣戈班)“四层双腔LOW-E玻璃”技术,让玻璃拥有如墙体般的保温隔热性。

☑️☑️中鹰黑森林售楼处电话:400-8377-020☑️☑️
玻璃外墙的铝框架
为了更好的支撑玻璃外墙,携手欧洲三大尖端铝框架门窗方案解决者之一——比利时Reynaers(瑞那斯),采用隔热保温铝合金,具有优良的隔音效果、抗风压强、气密性、水密性强。

☑️☑️中鹰黑森林售楼处电话:400-8377-020☑️☑️
☑️☑️中鹰黑森林售楼处电话:400-8377-020☑️☑️
防辐射外遮阳系统
采用比利时Renson(然颂)的防辐射外遮阳系统。然颂是欧洲自然通风和建筑遮阳市场无可争辩的领导者。该住宅是然颂110年历史上单体最大的项目 ,也是然颂全球性第一标杆项目。

☑️☑️中鹰黑森林售楼处电话:400-8377-020☑️☑️
革新应用“厚板框架结构” │大平层自由布局
传承包豪斯创始人Walter Adolph Georg Gropius(瓦尔特·格罗皮乌斯)“框架结构”理念,将惯用于办公楼的“厚板框架结构”革新应用于住宅中,真正实现大平层布局,自由分割户型。

☑️☑️中鹰黑森林售楼处电话:400-8377-020☑️☑️
六恒系统:恒温·恒湿·恒氧·恒洁·恒静·恒舒
开创性“四管制”毛细管辐射│科技豪宅新高度
毛细管辐射系统是一种隐形的空调系统。为追求更舒适健康的住宅体验,中鹰·黑森林11号的暖通设计方瑞士Willers机电公司攻克种种技术难题,最终提出了开创性的“四管制”毛细管辐射方案。相较“二管制”,“四管制”设计更为复杂,冷热源管道同时引入到每一户,通过温控系统进行冷热水阀的切换,能同时满足供冷供热的需求,更好地解决了极端气候下的冷暖均衡,采用瑞士温控阀组与智能温控系统,能确保室内温度全年维持在20~26℃(人体最健康适宜的温度)之间,真正做到四季如春。

☑️☑️中鹰黑森林售楼处电话:400-8377-020☑️☑️
毛细管辐射系统示意图
“豪华版”置换式新风系统
联合数家欧洲团队,打造“豪华版”置换式新风系统,每0.9小时置换一次空气,每天置换可达25次,超过五星级酒店的标准;根据季节的不同调节最舒适的湿度比例;经过过滤除尘,有效降低了室内浮尘,不用开窗同样享受清新空气和洁净空间。

“藏”在车库里的节能“心脏”│中央能源系统
采用美国Trane(特灵)中央能源系统,犹如一颗节能“心脏”,运用冰蓄冷技术,以移峰填谷的方式,用深夜低价电储存“能量”,白天释放,为社区集中冷暖供能。在夜间低谷电力时段将住宅所需空调冷量部分或全部制备好,并以冰的形式储存起来,在电力高峰时段融冰供冷,比传统住宅空调更经济。中央能源系统安置在地下车库,不占用住户空间,由专人24小时运行管理。

☑️☑️中鹰黑森林售楼处电话:400-8377-020☑️☑️
中央能源系统
借自然之力,地源热泵
为了进一步提高能源的利用率,中鹰·黑森林采用了盛行于欧洲的节能“法宝”——地源热泵。深入地下110米,在冬天提取热源,在夏天回收热源,从而实现全年中央能源的节能供给。

☑️☑️中鹰黑森林售楼处电话:400-8377-020☑️☑️
智能家居系统 向未来出发
EIB(European Installation Bus)欧洲总线
集“智能与安防”于一体,可通过手机、ipad等设备远程控制,一键实现室内温度、湿度、户外智能卷帘光线角度以及灯光、音响、影像等系统的随心控制,安全、降耗。同时,可自由设定场景模式,体验家居智能化。

☑️☑️中鹰黑森林售楼处电话:400-8377-020☑️☑️
奢华环保品牌 科技创新“舞台”
分隔墙采用德国YTONG(伊通)砖,环保质轻、尺寸精准,可预制线槽。
石膏板吊顶及石膏喷涂采用德国Knauf(可耐福),德国家喻户晓的石膏品牌,有生物溶解性,即使吸入体内也会被人体吸收,不影响健康。
墙纸采用德国Erfurt(爱尔福特),可反复涂刷8次以上,能快速修补。
涂料采用德国Caparol(德爱威),发明了乳液水分解技术,世博会中国馆的涂料供应商。
地板采用德国Parador(帕诺),可分解甲醛、烟味等有害气体。作为唯一的地板品牌,入选《德国知名品牌专刊》。
进户门采用德国Adoro(阿多罗),内嵌德国Schüco(旭格)的翼型型材,超强气密性。
室内门采用德国Hörmann(霍曼)钢制门,经久耐用,几乎与建筑同寿命。
橱柜采用德国Bulthaup(巴托普),德国殿堂级橱柜品牌,皇室贵族的首选。
厨电采用德国Miele(美诺)及瑞士Vzug(瑞族),两大奢华厨电领军品牌。
淋浴房采用德国Kermi(凯美),德国顶尖的淋浴房和采暖设备制造商和供应商。
卫浴采用瑞士Laufen(劳芬),“超薄蓝钻陶瓷”成为行业无可挑战的技术,极易擦洗。
花洒龙头采用德国Hansgrohe(汉斯格雅),120年历史,花洒和花洒升降杆的发明者。
净水系统采用德国Siemens(西门子)中央处理器及丹麦Grundfos(格兰富)不锈钢水泵。
电梯采用OTIS(奥的斯)“商用版”电梯,比“民用版”更为耐用,人性化加高设计,方便不同人群搭乘。
食物垃圾处理器采用美国Insinkerator(爱适易),垃圾处理器的发明者,500强企业艾默生旗下品牌;荣获“低碳产品”称号;超过300项专利、20余项国际大奖。

☑️☑️中鹰黑森林售楼处电话:400-8377-020☑️☑️
户型鉴赏↓
不同于一般的项目固定的户型,本楼盘 有无限的空间可能,是一个真正意义上没有户型图的楼盘。
☑️☑️中鹰黑森林售楼处电话:400-8377-020☑️☑️
只要预算充足,住户可以根据自己的需要随意组合需要的面积。从建筑面积约250-1000㎡可以灵活分割、组合。 从整层贯通的超级大平层,到上下层打通的空中别墅都可以轻松满足。