静安里(售楼处)首页网站-2026静安里售楼处电话(售楼处中心)静安里欢迎您-环境-户型-价格-地址-楼盘详情-户型配套-售楼处电话-交房时间
扫描到手机,新闻随时看
扫一扫,用手机看文章
更加方便分享给朋友
静安内环内苏河湾板块
华发招商静安北站项目
上海【静安里】售楼处电话:400-833-6309【官网】☎️☎️✅✅
加推建面约200-300㎡传世大宅
附赠花园 露台 阳台 阁楼 地下室
总价约:4200万~6300万
地下1000㎡泳池会所及9000㎡石库门商业
售楼处线上预约尊享团购优惠
【静安里】即静安天目社区04-05、05-01历史风貌保护项目,由华发招商联合打造。整个项目南至武进路,西至宝山路、河南北路,北至规划04-03、04-04地块。由2个地块组成,项目总建面14.9万方,综合容积率1.44。
项目平面图上海静安里售楼处电话:400-833-6309【官网】☎️☎️✅✅
【静安里】以约4.3万平方米土地精铸222席风貌别墅联动价21万/㎡。二期加推建面约200-300㎡风貌大宅,总价约4200万起
示范区实景图,仅供参考
项目优势:上海静安里售楼处电话:400-833-6309【官网】☎️☎️✅✅
超大规模风貌纯墅体量,并且不存在高低配等混搭问题;
超级全面风貌街区配套。风貌商业街+风貌会所+风貌别墅,形成完整风貌城市界面与完善生活配套;
超高浓度历史文化底蕴。四大历保建筑,见证上海政商经济文化变迁;
超大附赠空间,露台、庭院和多层地下室都有。
我们从地段价值、产品力与空间设计、自然资源与景观独占性、社区品质与圈层纯粹度、开发商品牌与物业保障、资产流动性与增值潜力六大维度来详细测评。
上海静安里售楼处电话:400-833-6309【官网】☎️☎️✅✅
参观鉴赏请提前预约
以“高定”匠心
革新风貌别墅的居住想象
【静安里】以“活态传承”为核心理念,既保留了海派建筑的精髓,又满足了当代顶豪的居住需求,重新定义了风貌别墅的“舒适标准”。
10种风貌风格,打造“海派建筑百科全书”上海静安里售楼处电话:400-833-6309【官网】☎️☎️✅✅
不同于多数风貌项目“单一风格”的局限,静安里通过“保护修缮、保留改造、更新改建、织补新建”四大手法,实现10种风貌立面的和谐共生。
效果示意图,仅供参考
为了还原海派建筑的质感,项目运用八大定制级工艺,通过定制级手工砖、定制级山花造型、定制级铁艺栏杆、定制级入户壁灯、定制级的风帽雨水斗等部品部件,匠心打磨每一处细节。上海静安里售楼处电话:400-833-6309【官网】☎️☎️✅✅
示意图,仅供参考
据悉,项目为建面约200-396㎡左右城市典藏作品,沿袭历史建筑格局,提高窗墙比,降低围墙高度,拓展地下空间,打造历史风貌住宅里面少有的有社区大堂、会所、精装地库,进阶规格。
上海静安里售楼处电话:400-833-6309【官网】☎️☎️✅✅
户型创新设计,突破传统里弄局限
【静安里】户型设计突破传统里弄建筑“窄开间”的桎梏,以大开间+提高窗墙比引光入室,大大提升了室内的空间感和通透感。
满足全卧室朝南,确保家庭成员都能享受阳光的温暖馈赠;
地下1层约4.2-6米的灵动空间,可随心改造为私人博物馆、恒温酒窖、品茗茶室或IMAX级家庭影院……
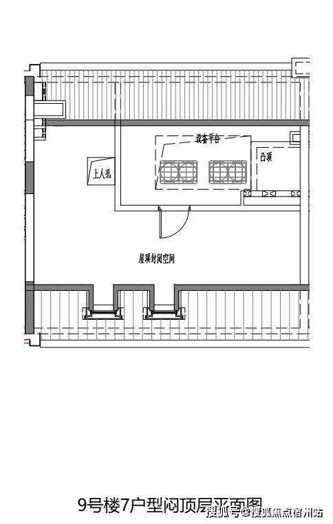
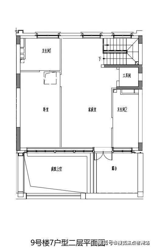
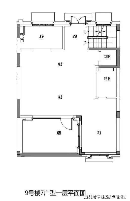
建面约200㎡户型图:
上海静安里售楼处电话:400-833-6309【官网】☎️☎️✅✅
(户型图仅供参考)
上海静安里售楼处电话:400-833-6309【官网】☎️☎️✅✅
上海静安里售楼处电话:400-833-6309【官网】☎️☎️✅✅
上海静安里售楼处电话:400-833-6309【官网】☎️☎️✅✅
建面约260㎡户型图:
上海静安里售楼处电话:400-833-6309【官网】☎️☎️✅✅
(户型图仅供参考)
上海静安里售楼处电话:400-833-6309【官网】☎️☎️✅✅
上海静安里售楼处电话:400-833-6309【官网】☎️☎️✅✅
上海静安里售楼处电话:400-833-6309【官网】☎️☎️✅✅上海静安里售楼处电话:400-833-6309【官网】☎️☎️✅✅
上海静安里售楼处电话:400-833-6309【官网】☎️☎️✅✅
上海静安里售楼处电话:400-833-6309【官网】☎️☎️✅✅
建面约301㎡户型图:
(户型图仅供参考)
上海静安里售楼处电话:400-833-6309【官网】☎️☎️✅✅
户型图,仅供参考
样板间奢华大气,演绎当代居住美学
项目邀请到了顶豪教父杜康生执笔建面约260㎡「风格回响」样板间的设计,诠释当代塔尖居住美学。客餐厅,不仅是社交空间,更是光影与思想共舞的容器。
二楼是家庭私域的温柔结界上海静安里售楼处电话:400-833-6309【官网】☎️☎️✅✅。
主卧套房通过挑空光影与优雅弧线,实现了私域与自由的完美和解;奢阔露台成为连接室内外的诗意过渡。
样板间实景图,仅供参考
凭栏远眺,近处是百年石库门的红瓦飞檐,远处是上海城市名片东方明珠,皆是业主独享的城市画卷上海静安里售楼处电话:400-833-6309【官网】☎️☎️✅✅。
样板间实景图,仅供参考
目前,静安里「成市」风貌示范区&样板间已经开放预约参观,建议大家实地体验感受。上海静安里售楼处电话:400-833-6309【官网】☎️☎️✅✅
当然需要注意的是项目围墙高度只有1.7米,对于看重隐私的购房者来说,以后肯定是要做相关改造以规避此类问题的
上海静安里售楼处电话:400-833-6309【官网】☎️☎️✅✅
社区品质 私享六大景观话花园
成片风貌保护区,百年历史文脉传承
上海静安里售楼处电话:400-833-6309【官网】☎️☎️✅✅
静安里所在的武进路,长度不过千米,却串起了上海从开埠到国际化大都市的完整历史链条。上海静安里售楼处电话:400-833-6309【官网】☎️☎️✅✅
上海静安里售楼处电话:400-833-6309【官网】☎️☎️✅✅
效果图,仅供参考上海静安里售楼处电话:400-833-6309【官网】☎️☎️✅✅
唐绍仪故居(唐宅),作为中华民国首任总理、外交官唐绍仪的故居,见证上海百年风云。
唐宅实景图,图源网络,仅供参考
泰山大剧院则作为沪上越剧文化发源地,承载着鲁迅、郁达夫等文人的艺术记忆。上海静安里售楼处电话:400-833-6309【官网】☎️☎️✅✅
泰山大剧院实景图,图源网络,仅供参考
六大定制级主题花园,演绎世界园艺上海静安里售楼处电话:400-833-6309【官网】☎️☎️✅✅
七坊、三十二弄、七大石库门串联起7大组团,八个不同规制的坊门,散落于组团之间,营造出了归家动线上的连续仪式。
效果图,仅供参考上海静安里售楼处电话:400-833-6309【官网】☎️☎️✅✅
六大世界经典花园融入上海及世界优秀花园样式,汇成海派花园的园区巡礼,以每个独属于上海的百年场所记忆进行时空平移打造海派花园百科全书。
上海静安里售楼处电话:400-833-6309【官网】☎️☎️✅✅
上海静安里售楼处电话:400-833-6309【官网】☎️☎️✅✅
上海静安里售楼处电话:400-833-6309【官网】☎️☎️✅✅
上海静安里售楼处电话:400-833-6309【官网】☎️☎️✅✅
【静安里】还是历史风貌住宅里面少有的有会所的项目,约1000㎡的私属会所,为业主提供星级高端服务接待休息区。
上海静安里售楼处电话:400-833-6309【官网】☎️☎️✅✅
上海静安里售楼处电话:400-833-6309【官网】☎️☎️✅✅
上海静安里售楼处电话:400-833-6309【官网】☎️☎️✅✅
会所示意图,仅供参考
其内打造艺术水吧、泳池、VIP会客厅等定制级会所体验,更配备包含高配瑜伽室、高压氧舱、桑拿房的活力场域,每一处空间都在重新定义顶豪生活方式。
上海静安里售楼处电话:400-833-6309【官网】☎️☎️✅✅
上海静安里售楼处电话:400-833-6309【官网】☎️☎️✅✅
泳池实景图,仅供参考
地下车库,也做到了艺术与功能的完美融合。
别墅地下二层直连停车场,精选米白色西伯利亚石材与拉丝镀黑钛不锈钢材质,营造出堪比五星级酒店的豪奢空间。上海静安里售楼处电话:400-833-6309【官网】☎️☎️✅✅
效果图,仅供参考
地库内还配置专属洗车服务,将尊崇体验延伸至每一个用车场景。
对于顶豪人群而言,社区不仅是居住的场所,更是圈层社交的“私域空间”。静安里以“纯别墅社区+会所+风貌商业”的配置,实现了“圈层纯粹性”与“生活便利性”的双重满足。上海静安里售楼处电话:400-833-6309【官网】☎️☎️✅✅
上海静安里售楼处电话:400-833-6309【官网】☎️☎️✅✅
上海静安里售楼处电话:400-833-6309【官网】☎️☎️✅✅
上海静安里售楼处电话:400-833-6309【官网】☎️☎️✅✅
上海静安里售楼处电话:400-833-6309【官网】☎️☎️✅✅
参观鉴赏请提前预约
项目区位配套
【静安里】雄踞北外滩-苏河湾-外滩“黄金三角”,直线距苏州河约1公里,直线距外滩约1.4公里,直线距北外滩约1.7公里,区位优势明显。
项目所在的苏河湾风貌区已连片成势,步行范围内,已集聚UCCA Edge尤伦斯当代艺术中心、苏富比空间等艺术地标,未来将成为“海派文化新客厅”。
对岸的北外滩,正以2个陆家嘴核心规模的开发体量(超840万方480米新地标领衔的摩天建筑群,打造未来浦西新制高点。
静安里恰好处在这两大世纪规划的能量辐射交汇处,享受双核驱动带来的巨大红利。上海静安里售楼处电话:400-833-6309【官网】☎️☎️✅✅
北外滩实景图,图源网络,仅供参考
上海静安里售楼处电话:400-833-6309【官网】☎️☎️✅✅
轨道交通方面:项目周边有4条地铁动脉(3/4/10/12号线)织就高效路网,3条越江隧道(外滩/新建路/大连路)瞬间切换浦江两岸,2条城市快速路(北横通道已通车/南北通道规划中),立体交通畅达全城。(数据来源:浦东发布)
区位图,仅供参考上海静安里售楼处电话:400-833-6309【官网】☎️☎️✅✅
商业配套方面:静安里3公里范围内,汇聚了苏河湾万象天地、北外滩来福士、南京西路商圈、外滩商圈、陆家嘴商圈等,生活购物体验已是世界级。
除此之外,静安里“南市北里”商业新名片,也正在静安里与弘安里连接处规划酝酿;上海静安里售楼处电话:400-833-6309【官网】☎️☎️✅✅
规划示意图,仅供参考上海静安里售楼处电话:400-833-6309【官网】☎️☎️✅✅
项目南地块规划约9000㎡石库门风貌商业,将沿武进路打造历史风貌商业街区,未来将涵盖高端零售、高档餐饮、文化展览、宠物配套等丰富业态。
效果图,仅供参考
上海静安里售楼处电话:400-833-6309【官网】☎️☎️✅✅教育资源方面:周边有静安区闸北第一中心小学、宝山路小学、市北中学、上海市民办新华初级中学等学校。
医疗资源资源:附近有瑞金医院、曙光医院、中西医结合岳阳医院、第一人民医院、上海市中医院、上海市儿童医院等。
上海静安里售楼处电话:400-833-6309【官网】☎️☎️✅✅
静安内环内苏河湾板块
华发招商静安北站项目
【静安里】上海静安里售楼处电话:400-833-6309【官网】☎️☎️✅✅
加推建面约200-300㎡传世大宅
附赠花园 露台 阳台 阁楼 地下室
总价约:4200万~6300万
地下1000㎡泳池会所及9000㎡石库门商业
售楼处线上预约尊享团购优惠
对项目有兴趣的朋友
上海静安里售楼处电话:400-833-6309【官网】☎️☎️✅✅预约看房一对一贴心服务
2026,房地产要下猛药了!
新年伊始,也是
为“十五五”良好开局,房地产频繁释放积极信号。前有,北京打响松绑楼市第一枪!进一步放松限购、降低利率和降低首付比。意义重大,影响深远,具有带头和示范意义,
预计新一轮稳楼市政策到来!紧接着,楼市在经历了长时间的调整期后,楼市终于迎来了税费环节的实质性大减负。在2025年的倒数第二天,财政部和税务总局联手发布重磅救市政策:不满2年的二手房,增值税征收率由5.3%降到3%;满2年的二手房,免征增值税。
再是,2026年1月2日,《求是》杂志刊发《改善和稳定房地产市场预期》文章,详细阐述了房地产发展所处阶段、房地产的重要性、房地产发展潜力和空间、改善和稳定市场预期举措等内容,涉及多个房地产罕见提法,积极信号强烈!
每一个信号都预示着2026年的楼市政策,或有重大转向。
也让我们看到,这一次很不一样,实际作用大于象征意义,2026年稳楼市不仅仅是嘴上说说,一系列政策将会加速落地——2026年止跌回稳,是可以期待的。
今天,我们可以重点看下——
●《求是》刊文,房地产的几个罕见提法
1月2日,求是杂志在第一期发表特约评论员的文章,题为“改善和稳定房地产市场预期”,引发强烈关注。
全文
不到5000字,却同时出现在《求是》纸质版、官网和“学习强国”首页,信号级别极高。
《求是》是谁?
《求是》是中共中央直属的机关刊物
属于思想理论类媒体,简而言之,《求是》杂志作为中央机关刊物,
其评论员文章传递的是权威的政策导向。
从承认房子的 “金融资产属性” 到喊出“政策一次性给足”,真的是打破多年表述惯例。
首次直白承认房地产“带有显著的金融资产属性”,不再回避其财富属性。
首次明确指出房地产现在销售和价格 “较大幅度回落”,以及房地产对实体经济、金融机构的 “较大影响”。
首次将房地产定位为“国民经济重要产业 + 居民财富的重要来源”,把市场稳定提升到“事关经济社会大局”的高度。
罕见的新提法,我们具体来看:
关于房地产发展阶段——
我国房地产市场正在经历深度调整。必须认清其根源,对症下药。伴随城镇化从快速增长期转向稳定发展期,城市发展从大规模增量扩张阶段转向存量提质增效为主的阶段,房地产业发展条件必然发生深刻变化
住房总量短缺转为总量基本平衡、结构性供给不足,居民需求总体上从“有没有”向“好不好”转变,房地产企业的“高负债、高杠杆、高周转”模式难以为继。
传统房地产发展模式已经走到了尽头
我国房地产业正处于发展阶段变化的重要节点。
关于房地产的重要性——
房地产销售和价格出现较大幅度回落,对实体经济的需求端、资产负债表的资产端和金融机构的负债端产生了较大影响。
房地产带有显著的金融资产属性,关联性强、涉及面广、社会关注度高,加强预期管理对稳定房地产市场具有特殊重要性。
房地产业是国民经济的重要产业和居民财富的重要来源,在国民经济发展中的地位举足轻重。房地产市场健康发展,事关经济社会发展大局稳定,事关人民群众切身利益。
促进房地产市场健康稳定发展,关系我国经济大盘稳定。
有观点认为房地产在国民经济中的重要性下降了。显而易见,这种观点有失偏颇。
房地产产业链条长、关联度高,涉及钢铁、水泥、家电、家具等几十个上下游行业,对投资、消费、就业等关键经济指标均有显著影响,仍然是支撑国民经济的基础产业
关于房地产发展潜力和空间——
近年来,尽管我国房地产领域投资规模有所下降,但住房服务、二手房交易、房地产资产管理等领域市场规模仍然保持较快增长,发展潜力依然巨大
从国际经验看,美国、英国、德国、日本、澳大利亚等发达国家,目前房地产业增加值占国内生产总值的比重平均都在10%以上,依然是经济保持稳定的重要支撑和社会财富的主要形式。2000—2024年,日本、韩国每千人年均新建住宅分别为7.74套、10.39套,房地产建设强度仍然较高。有关研究机构以此推算,我国城乡每年新建住宅规模应在1000万—1490万套之间,房地产发展仍有不小的市场潜力
从城市化发展水平看,我国房地产转型发展空间依然十分广阔
关于改善和稳定市场预期的措施——
保持政策力度。政策预期上,政策力度要符合市场预期,政策要一次性给足,不能采取添油战术,导致市场与政策陷入博弈状态。
政策协调上,取消相关限制性措施,确保新老政策相互配合。
政策储备上,做好风险防范和应对预案,目前房地产企业债务仍然较高,不排除个别企业仍有破产重组的可能,要未雨绸缪,有效做好应对。
我们预判2026楼市政策,在这三大方面,还有空间
《求是》这篇文章最引人注目的是,文章说:政策力度要符合市场预期,政策要一次性给足,不能采取添油战术,导致市场与政策陷入博弈状态。
虽然这种观点早就广泛存在于民间,但权威媒体还是首次这样说。这可能意味着,2026年楼市调控政策力度可能有所加大。
未来楼市新政还有哪些空间?
首先,需求端刺激政策
限购全面放开:一线城市核心区可能取消限购,全国范围内购房限制进一步放宽,降低购房门槛,促进市场流动性。
首付比例下调:首套房首付比例可能降至10%-15%,二套房首付比例同步降低,减轻购房者资金压力。
房贷利率优惠:个人房贷利率可能进一步下调,突破3%关口,降低购房成本。
利息补贴:官方补贴,给房东减负
生育与购房补贴联动:二孩、三孩家庭可能获得购房补贴,契税减免、房贷利息抵扣个税等政策可能扩大覆盖范围。
其次,供给端调控政策
严控土地供应:库存高企的城市暂停或减少住宅用地供应,优化土地出让节奏,避免市场过度供给。
存量房收购与转化:政府设立专项资金收购存量商品房,用于保障性住房、人才房或租赁住房,缓解市场库存压力。
“好房子”建设规范:推动“好房子”标准落地,鼓励房企提升住房品质,加强绿色建筑、智慧社区等建设,引导需求升级。
再是,金融支持政策
房企纾困基金:设立官方层面的房企纾困基金,对有潜力的房企进行债务重组或流动性支持,保障项目交付。
预售资金监管优化:根据房企信用评级调整预售资金提取比例,优质房企可获得更多资金使用灵活性。
2026楼市能否止跌回稳?
楼市能否止跌回暖,2026年是非常关键的一年。
面对百年未有之大变局,二十届四中全会审议通过《中共中央关于制定国民经济和社会发展第十五个五年规划的建议》,明确提出“要推动房地产高质量发展”,并强调“清理住房消费不合理限制性措施”。
2026年,不仅是时间意义上的新开端,更是行业逻辑重构的关键节点。
毕竟房地产市场已经下跌调整了4-5年了,该释放的风险也释放的差不多了。
中央财办的数据分析显示,“2024年我国常住人口城镇化率为67%,而户籍人口城镇化率不足50%”,新落户农民工、新毕业大学生等 “新市民”的刚性住房需求有待持续释放。
部分国际投行(如瑞银、摩根等)预测中国房地产市场可能在2026年下半年见底回暖,认为租金企稳、需求释放等因素可能推动市场回升。
大家怎么看呢?
以上转自网络如有侵权联系删除。
声明:本文由入驻焦点开放平台的作者撰写,除焦点官方账号外,观点仅代表作者本人,不代表焦点立场。
