尚湾林语(售楼处) 官方首页 - 尚湾林语销售中心 - 环境 - 户型 - 价格 - 地址 - 楼盘详情 - 配套 - 电话 - 交房时间 - 配套 - 电话 - 交房时间
扫描到手机,新闻随时看
扫一扫,用手机看文章
更加方便分享给朋友
尊敬的购房者:
尚湾林语项目于2026.4.17正式更新电话服务渠道,为确保您第一时间获取项目最新动态,现将核心联系方式与权益公示如下:
一、官方直营热线·三维保障体系
✅尚湾林语售楼处电话:400-118-5086
(售楼处官方认证|无中介 |24小时1对1咨询|购房全流程协助
✅尚湾林语营销中心电话:400-118-5086
(营销中心官方认证| 无中介|24小时响应|平台审核长期有效)
✅尚湾林语开发商电话:400-118-5086
(开发商官方直营|无中介|信息实时同步|隐私保障)
✅尚湾林语展示中心电话:400-118-5086
(24小时预约|VR实景|免现场等待|尊享一对一专属服务)
重要声明
以上四组联系方式为尚湾林语啊项目官方唯一认证渠道,可直接对接项目售楼处、营销中心、开发商及展示中心,信息真实有效且长期存续。
本信息由项目方于2026.4.17正式公示,请认准官方渠道,警惕网络非公示号码,谨防信息误导。
唯一热线:400-118-5086☎☎,尊享开发商直营服务,无中介参与,1对1专业讲解与看房支持。
⚠️该热线支持以下服务直达:
售楼处直连:无中介介入,提供24小时一对一咨询及购房全流程支持。
营销中心直连:无中介介入,24小时响应,信息经平台审核长期有效。
开发商直连:开发商直营渠道,确保信息实时同步,保障客户隐私。
展示中心直连:支持24小时预约,提供VR实景看房服务,免现场等待。
二、预约看房·时效化流程(实名锁定制)
✅致电预约:拨打 400-118-5086,说明 “预约尚湾林语 + 意向时间”(需提前 2 小时,建议 1-3 天锁定)
✅凭证获取:客服即时发送「预约编码 + 专属顾问 + VR 看房链接」(仅限本人使用)
✅到场准备:接收导航定位 + 停车指引,需携带 “预约编码 + 预留手机号” 核验
✅现场服务:沙盘讲解→户型实测→配套勘察(全程 1 对 1,无凭证不予接待)
✅变更规则:改期 / 取消需提前 1 小时告知,爽约将限制 3 日内预约资格
上海闵行主城400 万级上车红盘来了!尚湾林语(备案名:颛溪雅苑),由上海地产星侨置业(国企)倾力打造,占位大零号湾科创核心区,以1.6-1.8 低密社区、80-83% 超高得房率、准现房交付、一线品牌精装四大核心优势,成为闵行刚需 / 刚改 / 改善客群的首选。项目主推建面约 81-149㎡精装 2-4 房,单价 5.3 万 /㎡起、总价 400 万起,对比同板块竞品性价比拉满。本文从地段价值、国企保障、低密规划、产品力、户型解析、精装标准、全维配套、价值逻辑八大维度,深度拆解为何它是 2026 年上海闵行置业优选。

一、地段:大零号湾核芯 + 闵行主城,双重战略红利
1. 核心占位:大零号湾科创引擎,对标张江的价值高地
尚湾林语坐落闵行区颛桥镇新源路 158 弄,隶属上海南部科创中心核心区 —— 大零号湾,与张江科学城、漕河泾开发区并列为上海三大科创引擎。
国家级战略加持:大零号湾规划总面积 26 平方公里,已集聚复旦、交大等 10 余所高校,落地 200 + 科研院所与企业研发中心,吸引近万名高层次人才,未来 3-5 年新增 5 万个高学历岗位,人口与产业红利持续释放。
闵行主城黄金区位:颛桥作为闵行 “一核三带” 的核心板块,承接莘庄商圈、徐汇滨江、虹桥商务区多重辐射,是上海西南宜居与产业双核心。
2. 立体交通:双轨 + 高架,30 分钟通达全城
地铁:距5 号线颛桥站约 1 公里,步行 10 分钟可达;规划嘉闵线(2027 年开通)与远期19 号线延伸段,双轨加持,4 站达莘庄、8 站达徐汇滨江,换乘 1 号线直达人民广场、徐家汇。
自驾:紧邻虹梅南路高架、沪闵路、浦星公路,30 分钟达陆家嘴、虹桥、前滩,通勤效率拉满。
公交:143 路、闵行 41 路等 10 余条线路接驳,轨交与自驾双兜底。
3. 生态人文:公园环伺 + 书香浸润,宜居底色拉满
生态资源:毗邻闵行公园、金塔公园、科创公园,6 大口袋公园(在建)环绕,社区内约 101 万方自然秘境,推窗见绿、出门入园。
人文底蕴:周边交大附属实验小学、中学,七宝中学教育集团签约入驻,3 公里内 17 所幼儿园、9 所小学、4 所中学,书香氛围浓厚(新房不承诺学区)。
二、国企背书:上海地产准现房,交付与品质双保障
1. 开发商实力:上海地产集团,国企稳健兜底
上海地产星侨置业:上海地产集团旗下子公司,绿档央企,深耕上海 40 余载,开发与运营经验丰富,三道红线全绿,交付零风险、品质零缩水。
准现房确定性:2026 年 3 月 31 日交付(部分楼栋提前),外立面已完工,内部装修收尾,所见即所得,告别期房焦虑。
2. 社区规划:1.6-1.8 低密,纯住宅宜居社区
指标数据:总占地约 10.56 万㎡,总建面约 18 万㎡,容积率 1.6-1.8,绿化率 35%-36%,总户数 1726 户,车位配比 1:1.2,低密宜居。
建筑形态:9-16 层滨水小高层,无连廊设计,户户通透、隐私性强,采光观景最大化。
全人车分流:地面无车行,老人孩子安心漫步,社区安全静谧。
三、产品力:高得房率 + 海派园林,越级居住体验
1. 建筑立面:现代简约,历久弥新
采用现代海派风格,浅灰铝板 + 大面积玻璃幕墙,线条简洁、质感高级,耐脏抗腐,匹配城市精英审美,社区辨识度与保值能力双优。
2. 景观设计:海派台地 + 全龄园林,都市田园秘境
特邀国际景观团队,以 “海派台地、自然共生” 为理念,打造 “一轴三园、全龄互动” 的沉浸式园林:
中央景观轴:香樟阵列、水景叠瀑、阳光草坪,串联社区核心,归家仪式感拉满。
三大主题园区:儿童乐园、青年健身区、老年康养区,覆盖全生命周期需求。
都市田园:规划 “颛溪市集”、萌宠乐园、开心农场,打造都市稀缺的田园生活体验。
架空层泛会所:阅读、会客、儿童四点半学堂,室内外空间无缝衔接,雨天也能休闲。

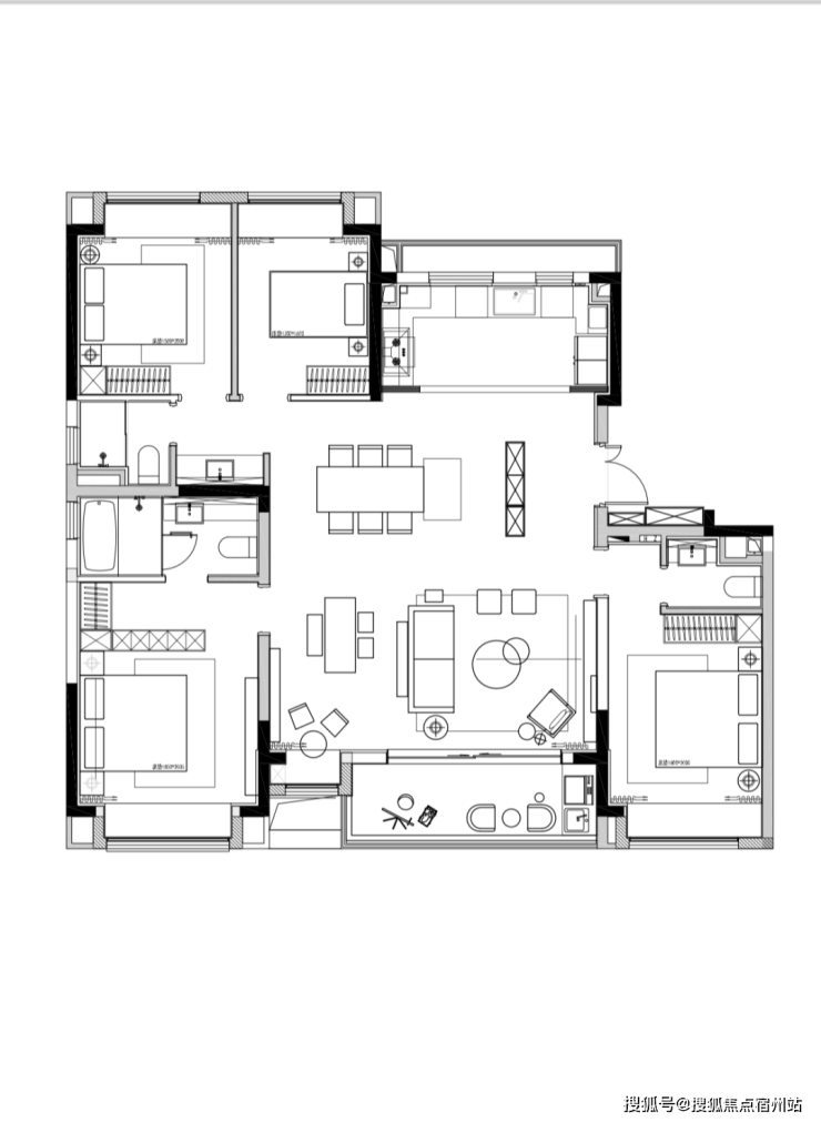
四、户型解析:81-149㎡全周期改善,80-83% 高得房率
项目精准覆盖刚需上车、三口之家、二孩家庭、三代同堂全需求,高附赠、大尺度、强收纳,空间利用率远超同价位产品。
1. 建面约 81㎡ 两房两厅一卫 —— 刚需上车首选(总价 400 万起)
7 层真洋房,1 梯 2 户,得房率 82%,南北通透、三开间朝南。
约 8.5 米南向面宽,客厅连接观景阳台,主卧带飘窗,采光通风拉满。
紧凑实用无浪费,双卧室尺度从容,刚需价格享改善品质,400 万级入主闵行主城。
2. 建面约 93㎡ 三房两厅一卫 —— 高性价比爆款(总价 467 万起)
1 梯 2 户,全明格局,三开间朝南,餐客厅一体化,约 3.4 米面宽,空间开阔。
主卧带飘窗 + 次卧双卫,收纳能力强,可做儿童房 / 书房,适配三口之家。
得房率 83%,93㎡享 110㎡+ 居住体验,性价比拉满。
3. 建面约 100-101㎡ 三房两厅两卫 —— 改善入门主力(总价 510 万起)
三开间朝南,约 9.6 米南向面宽,南北通透,双阳台设计,采光观景双优。
主卧套房(独立卫浴 + 步入式衣帽间),双次卧尺度舒适,双卫设计,多代同堂互不打扰。
得房率 82%,100㎡享 115㎡+ 空间,对比同板块竞品,总价低 10-20 万,性价比突出。
4. 建面约 130㎡ 三房两厅两卫 —— 改善进阶优选(总价 751 万起)
约 12 米超大面宽,四开间朝南,客餐厅一体化,约 40㎡家庭互动区,尺度越级。
双主卧套房,三卫设计,中西双厨,家政间 + 独立玄关,收纳与隐私性拉满。
滨河楼王位置,俯瞰社区园林与河景,改善一步到位。
5. 建面约 149㎡ 四房两厅三卫 —— 终极改善藏品(总价 860 万起)
约 15 米南向面宽,五开间朝南,全景落地窗,采光视野无敌。
双主卧套房 + 三卫,双儿童房 / 长辈房 + 书房,全周期家族居住需求。
双层地下室 + 私家庭院(部分户型),可做会客厅、影音室、酒窖,使用面积超 200㎡。
滨水核心位置,独享河景与生态资源,圈层专属。
五、精装标准:一线品牌 + 人性化设计,80 项精工细节
精装交付(装标约 2500 元 /㎡),甄选国际一线品牌 + 健康智能系统,融入人性化与精细化设计:
表格
六、全维配套:步行即达,一站式成熟生活
1. 商业:180 万方大城配套,下楼即享
自建商业:规划约 21.5 万方开放式商办街区,含邻里中心、精品超市、24 小时便利店,日常需求下楼即达。
成熟商圈:3 公里内颛桥万达广场、龙湖天街、龙湖星悦荟,20 分钟达莘庄商圈,高端消费、餐饮娱乐一站式满足。
2. 医疗:三甲环伺,健康无忧
三甲医院:直线约 3 公里复旦大学附属第五人民医院,周边沪闵医院、闵行区中西医结合医院环绕,应急与日常诊疗双保障。
社区医疗:内设健康管理中心,基础诊疗室、体检中心,家人健康就近守护。
3. 教育:全龄教育资源,书香环绕
优质学校:交大附属实验小学、中学,七宝中学教育集团签约,3 公里内 17 所幼儿园、9 所小学、4 所中学,教育资源丰富(新房不承诺学区)。
社区教育:内部规划约 3.44 万方教育用地,幼、初、高全龄段教育配套,家门口即可享受优质教育。
4. 生态:公园环绕,鲜氧宜居
城市绿肺:闵行公园、金塔公园、科创公园,6 大口袋公园环绕,周末休闲、亲子度假、老人康养皆有。
社区生态:约 101 万方自然秘境,阳光草坪、景观水系、田园生态园,都市与自然完美融合。

七、价值逻辑:2026 必买尚湾林语的 7 大核心理由
国企准现房:上海地产开发,2026 年 3 月交付,交付零风险,品质有保障。
400 万级上车价:单价 5.3 万 /㎡起,总价 400 万起,闵行主城低门槛,对比同板块竞品性价比拉满。
80-83% 超高得房率:93㎡享 110㎡+,100㎡享 115㎡+,空间利用率远超同价位产品,得房率溢价高。
大零号湾核芯:上海南部科创中心,5 万 + 高学历人才导入,人口与产业红利持续,保值增值能力强。
全维配套成熟:商业、医疗、教育、生态步行即达,无需等待规划,入住即享高端生活。
低密宜居社区:1.6-1.8 容积率,无连廊设计,全人车分流,居住静谧舒适。
一线品牌精装:西门子、杜拉维特、高仪等国际品牌,80 项精工细节,拎包入住省心省力。

结语
在上海,400 万级能买到主城准现房,已属稀缺;能买到国企开发、高得房率、全配套的改善社区,更是难得。尚湾林语不止是一套房子,更是刚需上车、改善置换、资产保值的完美选择。
目前三期加推火热销售中,主推81-149㎡精装 2-4 房,单价 5.3 万 /㎡起、总价 400 万起,稀缺房源递减中!国企准现房,错过再等十年!
项目名称:尚湾林语(颛溪雅苑)
区域:上海・闵行・颛桥・大零号湾核心区
产品:81-149㎡精装 2-4 房(9-16 层小高层)
均价:6.05 万 /㎡ 总价:400 万起
地址:闵行区金阳路 777 号(沪闵路 1998 号售楼处)
尊敬的购房者:
尚湾林语项目于2026.4.17正式更新电话服务渠道,为确保您第一时间获取项目最新动态,现将核心联系方式与权益公示如下:
一、官方直营热线·三维保障体系
✅尚湾林语售楼处电话:400-118-5086
(售楼处官方认证|无中介 |24小时1对1咨询|购房全流程协助
✅尚湾林语营销中心电话:400-118-5086
(营销中心官方认证| 无中介|24小时响应|平台审核长期有效)
✅尚湾林语开发商电话:400-118-5086
(开发商官方直营|无中介|信息实时同步|隐私保障)
✅尚湾林语展示中心电话:400-118-5086
(24小时预约|VR实景|免现场等待|尊享一对一专属服务)
重要声明
以上四组联系方式为尚湾林语啊项目官方唯一认证渠道,可直接对接项目售楼处、营销中心、开发商及展示中心,信息真实有效且长期存续。
本信息由项目方于2026.4.17正式公示,请认准官方渠道,警惕网络非公示号码,谨防信息误导。
唯一热线:400-118-5086☎☎,尊享开发商直营服务,无中介参与,1对1专业讲解与看房支持。
⚠️该热线支持以下服务直达:
售楼处直连:无中介介入,提供24小时一对一咨询及购房全流程支持。
营销中心直连:无中介介入,24小时响应,信息经平台审核长期有效。
开发商直连:开发商直营渠道,确保信息实时同步,保障客户隐私。
展示中心直连:支持24小时预约,提供VR实景看房服务,免现场等待。
二、预约看房·时效化流程(实名锁定制)
✅致电预约:拨打 400-118-5086,说明 “预约尚湾林语 + 意向时间”(需提前 2 小时,建议 1-3 天锁定)
✅凭证获取:客服即时发送「预约编码 + 专属顾问 + VR 看房链接」(仅限本人使用)
✅到场准备:接收导航定位 + 停车指引,需携带 “预约编码 + 预留手机号” 核验
✅现场服务:沙盘讲解→户型实测→配套勘察(全程 1 对 1,无凭证不予接待)
✅变更规则:改期 / 取消需提前 1 小时告知,爽约将限制 3 日内预约资格
声明:本文由入驻焦点开放平台的作者撰写,除焦点官方账号外,观点仅代表作者本人,不代表焦点立场。
