滨江一品苑最新消息, 内环江景大宅 再次启动!134-234m²!均价11.18万,预计2025.6.30日交房,绿城物业加持 准现房 房源少量! 同样地段内环外的保利世博天悦新房在售均价16万+/平,滨江一品苑性价比超高。
浦东内环内 塘桥滨江
滨江一品苑
☑️☑️滨江一品苑售楼处电话:400-8377-020☑️☑️
由2栋30层高层组成
建面约134-234㎡ 阔景大宅
装修:精装修、中央空调带地暖,1.2万装修标。
均价:11.18万元/m²
低区仅约8.66万/㎡起!
将加推约134—234㎡3-5房!
不要积分!不用摇号!
最后一栋!售完即罄!
☑️☑️滨江一品苑售楼处电话:400-8377-020☑️☑️

编辑
☑️☑️滨江一品苑售楼处电话:400-8377-020☑️☑️
实景拍摄:
编辑

☑️☑️滨江一品苑售楼处电话:400-8377-020☑️☑️
滨江一品苑,经历了资金链断裂、项目停工、开发公司破产重整,终于重新走上正轨。
“停工这三年,数不清的不眠之夜,顶着各种压力,还要定期缴还银行贷款、支付在外租房费用。”业主吴女士书面回应了《每日经济新闻》记者的采访。
项目的新物业公司有关负责人在接受每经记者采访时表示,滨江一品苑是保交付项目,管理人在费用控制上比较严格,实际物业费单价维持在业务平衡线上,物业公司前期压力比较大。
2月13日,业主张仪(化名)向每经记者透露了最新进展,3月2日~10日分批预看房。
滨江一品苑也重启了剩余房源和地下车位的销售,由销售代理机构代为销售。
图源|上海网上房地产
编辑

☑️☑️滨江一品苑售楼处电话:400-8377-020☑️☑️
上海网上房地产显示,目前项目在售房源82套,超过总房源数的23%。未售房源中包括顶层约713平方米的超大户型以及大户型底墅。
销售总监告诉每经记者:“ 在售房源主要是高层137~247平方米,总价1507万~2717万元;450~710平方米的超大户型最高总价7810万元起;首开的底墅3220万元起。
☑️☑️滨江一品苑售楼处电话:400-8377-020☑️☑️
感谢配合!
编辑

☑️☑️滨江一品苑售楼处电话:400-8377-020☑️☑️
2017年7月,保利地产以49.71亿元代价获得一宗黄浦江边、规划建筑面积逾20万㎡的住宅项目50%股权。
根据协议,除了增资所需的49.7亿之外,保利还需要另外贷款40.7亿给上海华辕实业。
所以这块地的 开发成本极高。
除了在资金上有高要求外,该项目在增资条件上还要求增资企业必须在借款协议签订日起5个工作日一次性支付贷款额给增资人。
这幅地块就是曾经的世博村,地上建筑面积达到16.73万㎡,项目的总建筑面积(包括地上车库)达到20.85万平方米。
编辑

☑️☑️滨江一品苑售楼处电话:400-8377-020☑️☑️
目前保利世博天悦在售房源均价16万+/平,预计26年9月底交房,滨江一品苑内环内,准现房,装修标准超高,唯一的缺点是塔楼,旧改的项目.
『 滨江一品苑』 项目属于陆家嘴金融贸易区内,内环内塘桥板块.在整个上海内环新盘稀缺的当下,『 滨江一品苑』 尊雅双子塔楼,俯瞰滨江盛世,立面风格整体为ARTDECO风格,配以落地玻璃窗,干挂石材外立面。以137㎡- 234㎡江景小户型升级归来,肯定吸引众多自住买家。
编辑

☑️☑️滨江一品苑售楼处电话:400-8377-020☑️☑️效果示意图
一品价值|三大核心资本
陆家嘴、外滩、前滩环抱,上海资本金三角核心位置。享三大中心规划利好,可谓滨江一线至贵之焦点。
一品占位|陆家嘴臻藏席位
承载滨江百年繁华,擎启陆家嘴都会繁荣。这里是无数人极致梦想中的生活圣地。滨江稀贵土地抢夺步伐愈发加快,你不来,它不待。
一品人生|璀璨生活高地
IFC国金中心、环球金融中心,陆家嘴璀璨的世界商业地标;众多米其林餐厅,赏味世界美食。
编辑

☑️☑️滨江一品苑售楼处电话:400-8377-020☑️☑️
浦东滨江一品苑在2017年以前叫东樱花苑,是日本松下产业株式会社于上世纪九十年代在上海开发的项目,原两幢楼的开发商是日本松下集团,因小区中有200多颗樱花尔起名东樱花苑。项目于1997年一期竣工。项目规划用地为住宅用地,项目建成后主要是作为公寓式酒店,提供给在沪生活的日本人家庭及在上海出差的日本人租用。
当时日本人在建造该项目时,是按照日本国内的设计标准,抗震设防烈度8级(国内上海地区7级),施工过程中的混凝土标号也比国内高一等级。因此可以看出东樱花苑最大的优点是建筑建构设计和施工质量好。
2016年上海城利房地产有限公司以均价3.3万左右,共计30多个亿从松下产业株式会社收购该项目,现开始进行改造重新包装,这就是现在的滨江一品苑。
编辑

滨江一品苑是上海城利地产开发的高端住宅,“一品苑”系为城利地产的注册品牌,在上海能看到的所有叫“一品苑”的项目皆为城利地产开发。
编辑

☑️☑️滨江一品苑售楼处电话:400-8377-020☑️☑️
项目位于浦东新区 内环内,毗邻陆家嘴商圈,距离世纪公园商圈3公里,距离陆家嘴商圈1.5公里,地理位置优越,称得上是上海真正的市中心地段。享三大区域规划利好,位于滨江沿线区位,中区以上楼层全面瞰江。
编辑

编辑

☑️☑️滨江一品苑售楼处电话:400-8377-020☑️☑️
编辑

01.周边配套
交通优势:
1环2桥2隧道双轨交:内环内,南浦大桥、卢浦大桥,复兴路隧道、人民路隧道,门口轨道交通4/6号线。
编辑

☑️☑️滨江一品苑售楼处电话:400-8377-020☑️☑️
商业环绕:
项目1公里范围内有巴黎春天、新塘桥生活广场、世纪联华、沃尔玛等商业配套。
编辑

教育资源:
学校方面有爱绿幼儿园、浦东南路小学、文建中学、洋泾中学等。
参考的教育配套有冰厂田幼儿园、爱绿幼儿园、建平中学、宋庆龄国际学校(期房非对口)。
编辑

☑️☑️滨江一品苑售楼处电话:400-8377-020☑️☑️
医疗资源:
项目距离仁济医院、上海儿童医学中学步行仅需约5分钟。
编辑

真正的大宅排面
编辑

☑️☑️滨江一品苑售楼处电话:400-8377-020☑️☑️
编辑

☑️☑️滨江一品苑售楼处电话:400-8377-020☑️☑️
编辑

编辑

☑️☑️滨江一品苑售楼处电话:400-8377-020☑️☑️
编辑

☑️☑️滨江一品苑售楼处电话:400-8377-020☑️☑️
02.主力户型
本期推出共175套,目前主推建筑面积131~226平3房,另有非标准户型200~500平底楼,顶楼复式。 套房设计,套内独立卫生间,独享私人空间。
编辑

☑️☑️滨江一品苑售楼处电话:400-8377-020☑️☑️
编辑

编辑

☑️☑️滨江一品苑售楼处电话:400-8377-020☑️☑️
编辑

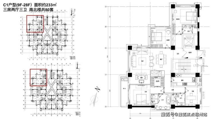
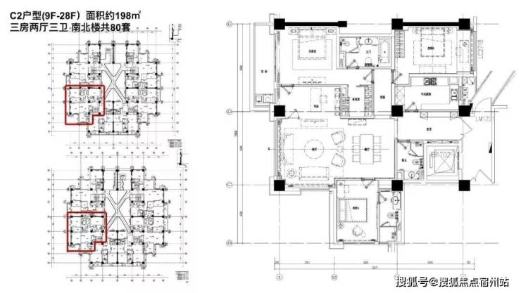
131平米:3房2厅1卫 (1梯2户)
编辑

☑️☑️滨江一品苑售楼处电话:400-8377-020☑️☑️
户 型 图
193平米:4房2厅3卫(1梯2户)
编辑

☑️☑️滨江一品苑售楼处电话:400-8377-020☑️☑️
户 型 图
226平米:4房3厅3卫(1梯1户)
编辑

☑️☑️滨江一品苑售楼处电话:400-8377-020☑️☑️
户 型 图
全面积段覆盖,满足二人世界、三口之家以及大家族的不同需求,量身定制经典户型。
参考样板间:
编辑

编辑

编辑

编辑

☑️☑️滨江一品苑售楼处电话:400-8377-020☑️☑️
编辑

编辑

编辑

编辑

☑️☑️滨江一品苑售楼处电话:400-8377-020☑️☑️
编辑

编辑

编辑

☑️☑️滨江一品苑售楼处电话:400-8377-020☑️☑️
滨江一品苑屹立外滩、陆家嘴、前滩3大核心资本圈之内,享三大区域规划利好,可谓滨江一线至贵焦点。于陆家嘴-世博-前滩发展轴线之心,滨江顶豪圈层内,执掌核心土地价值。
03.
前期一房一价表:
编辑

☑️☑️滨江一品苑售楼处电话:400-8377-020☑️☑️
编辑

编辑

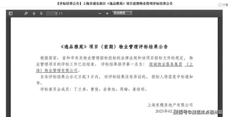
04.物业管理
2025年2月绿城物业服务集团(上海)物业管理有限公司中标滨江一品苑前期物业项目,正式成为滨江一品苑物业。
绿城物业一直以来都是物业行业的佼佼者,以专业、贴心、高品质的服务著称。相信在绿城的管理和服务下,滨江一品苑一定会成为一个环境优美、服务周到、邻里和谐的高品质社区。业主期待与绿城物业携手,共同开启滨江一品苑的美好新篇章!
编辑

☑️☑️滨江一品苑售楼处电话:400-8377-020☑️☑️
浦东内环内 塘桥滨江
滨江一品苑
由2栋30层高层组成
建面约134-234㎡ 阔景大宅
装修:精装修、中央空调带地暖,1.2万装修标。
均价:11.18万元/m²
低区仅约8.66万/㎡起!
将加推约134—234㎡3-5房!
不要积分!不用摇号!
最后一栋!售完即罄!
浦东陆家嘴滨江 内环内
双轨交汇4号线 + 6号线仅500米
瞰江大平层 距离黄浦江仅900米
【滨江一品苑】
建面约137~247㎡阔景高层
建面约230~350㎡花园底墅
更有建面约450~710㎡天际大平层
均价11.18万/㎡ 精装交付
总价约:1507万~7810万
小区1.3万㎡园林+2000㎡会所
直接认购 售楼处线上预约
编辑

☑️☑️滨江一品苑售楼处电话:400-8377-020☑️☑️
感谢配合!
项目基础信息
版块:陆家嘴内环内·塘桥版块
在售面积:
建筑面积约137-247㎡阔景高层;
建筑面积约230-350㎡花园底墅;
建筑面积约450-710㎡天际大平层 ;
房源总价:
总价约1507-2717万阔景高层;
总价约3220-4900万花园底墅;
总价约4950-7810万天际大平层;
总体量:81套
总层数:30层
☑️☑️滨江一品苑售楼处电话:400-8377-020☑️☑️
交房时间:2025年6月30日
在售楼栋:南楼、北楼
总占地面积:20046㎡
总建筑面积:88750.83㎡
住宅建筑面积:约66227.19方
楼栋数:2栋
总户数:355户
容积率:3.33
绿化率:30%
装修类型:精装
总车位数:406个
车位配比:1:1.2
产权年限:70年
☑️☑️滨江一品苑售楼处电话:400-8377-020☑️☑️
编辑

☑️☑️滨江一品苑售楼处电话:400-8377-020☑️☑️
【滨江一品苑】项目位于浦东新区 内环内,毗邻陆家嘴商圈,距离世纪公园商圈3公里,距离陆家嘴商圈1.5公里,地理位置优越,称得上是上海真正的市中心地段。享三大区域规划利好,位于滨江沿线区位,中区以上楼层全面瞰江。
编辑

☑️☑️滨江一品苑售楼处电话:400-8377-020☑️☑️
位置示意图
编辑

【滨江一品苑】项目只有两栋总高30层的住宅,经典的Art Deco设计风格,自下而上极富冲刺的力量感,并大量使用石材、玻璃、铝板三种材质,外立面更历久弥新之外,也增加了室内景观、采光面。
编辑

☑️☑️滨江一品苑售楼处电话:400-8377-020☑️☑️
【建筑立面】
✅ 辉映时代的视觉盛宴:经典Art Deco设计风格,三段式设计辅之以竖向线条装饰,赋予建筑自下而上极富冲击力的视觉感受,回应百年纵深里老上海的摩登雅致
✅ 历久弥新的材质美学:全球甄选高阶石材、大面积玻璃与铝板等材质多元混搭,集当代材质工艺大成,演绎Art Deco的恒久之美
✅ 臻于毫厘的匠心造诣:免除灌浆工序,提高抗震性能,有效预防饰面板脱落事故;干挂石材与结构之间留有空地,有效防止灌浆中的盐碱等色素对石材的渗透污染
编辑

☑️☑️滨江一品苑售楼处电话:400-8377-020☑️☑️
【三重礼序】
✅ 一进礼宾大堂:星级酒店同等礼遇,为业主提供物业礼宾、沙发休憩等贴心服务
✅ 二迈楼宇大堂:海派美学凝萃,空间奢阔,给予每一位归者的至高礼遇
✅ 三入车库大堂:人车分流的同时,匠心打造精装车库大堂,打造更优质的归家之旅,尊享全方位归家体系
编辑

【景观设计】
✅ 城市绿肺:约2万方奢阔园林之境,为繁忙都会寻回滨江水岸独特的悠然
✅ 绿意渗透:公园级造景,绿意与生活无界,实现“下楼即公园”的生活理想
✅ 全龄舒享:400米慢跑道、推杆果岭、3大功能院落,关照全龄段身心与健康
✅ 赏樱胜地:精心培育日本原木移植樱花,推窗见春天,樱花在眼前
编辑

☑️☑️滨江一品苑售楼处电话:400-8377-020☑️☑️
项目虽然不大,但在景观、会所上做得还是很用心的。 打造了约13000㎡的新古典主义园林,中轴线上分布有礼宾大堂、中央水景、下沉式庭院,据说全冠移植了近100株日本原生樱花林。
编辑

【会所配套】
约2000㎡动静双会所,全龄国际化的功能营造:健身房、半标泳池、咖啡厅......一场酣畅淋漓的运动,亦或一段午后的品茶会客,成为日常生活的一部分,亦将成就塔尖人物的专属私享
编辑

☑️☑️滨江一品苑售楼处电话:400-8377-020☑️☑️
编辑

【物业服务】
✅ 20年星级酒店服务履历:20余年发展历程,服务超12000位高端业主,深厚积累了高净值人群全方位尊崇服务经验
✅ “影子管家”服务体系:首创5大项25项精细生活细节,提供涵盖专人24小时不间断监控、宠物托管、下午茶、早餐预约等全方位服务
✅ 9大非凡礼遇:提供涵盖家庭教师、健身教练、婴儿看护、礼宾、私人家庭厨师、高级管家、司机、保镖、菲佣等24小时全酒店式服务
编辑

☑️☑️滨江一品苑售楼处电话:400-8377-020☑️☑️
☑️☑️滨江一品苑售楼处电话:400-8377-020☑️☑️
感谢配合!
项目推售详情
项目推出 建筑面积137~247平米阔景高层,户型为3~5房,以及建面约230-350㎡花园底墅,更有建面约450-710㎡的天际大平层, 套房设计,套内独立卫生间,独享私人空间。以一切唯我的卓越尺度,提纯陆家嘴朋友圈,从一开始,即是一个圈层的入场券
编辑

☑️☑️滨江一品苑售楼处电话:400-8377-020☑️☑️
效果示意图
【户型亮点】
✅大师高定:邱德光亲自操刀,为塔尖人群定制滨江生活奢享
✅270°环幕:面朝黄浦江展开的罕贵视野,尽揽10公里精粹,对望外滩绵延天际线
✅感光之境:多面采光,让阳光参与每一寸生活与奢享
✅阔尺奢境:阔绰格局+大面积落地窗,始终匹配塔尖精英的至高眼界
建面约137㎡3房2厅2卫▼
编辑

附样板间照片▼
编辑

☑️☑️滨江一品苑售楼处电话:400-8377-020☑️☑️
编辑

建面约200㎡4房2厅3卫▼
编辑

附样板间照片▼
编辑

编辑

☑️☑️滨江一品苑售楼处电话:400-8377-020☑️☑️
编辑

编辑

☑️☑️滨江一品苑售楼处电话:400-8377-020☑️☑️
建面约234㎡4房3厅3卫▼
编辑

附样板间照片▼
编辑

☑️☑️滨江一品苑售楼处电话:400-8377-020☑️☑️
编辑

编辑

☑️☑️滨江一品苑售楼处电话:400-8377-020☑️☑️
精装标准:
厨房就配置了铂浪高的水槽及龙头、柏丽橱柜及爱适易垃圾处理器、怡口户式中央净软水;卫浴系统选用了德立菲的卫浴、高仪龙头、卡迪欧电热毛巾架,皆为国际尖端品牌。
编辑

全屋大金中央空调、威能地暖、新风系统、霍尼韦尔智能家居也为标配。
项目区位配套
【滨江一品苑】位于浦东新区内环内,于陆家嘴-世博-前滩三个顶级商圈发展轴线之心,滨江顶豪圈层内,执掌核心土地价值。IFC国金中心、环球金融中心,陆家嘴璀璨的世界商业地标;众多米其林餐厅,赏味世界美食。商业配套,交通配套等都很出类拔萃!
编辑

☑️☑️滨江一品苑售楼处电话:400-8377-020☑️☑️
交通配套:
自驾:1环2桥6隧环绕(一条内环线;两座大桥:南浦大桥和杨浦大桥;六条隧道:延安路隧道、人民路隧道、复兴路隧道、大连路隧道、西藏南路隧道和新建路隧道)可谓四通八达。
编辑

轨交:四号线塘桥站500米,六号线儿童医学中心站仅800米。
公交:公交线路近20辆,如:119/614/785/973/992/640/787等。可基本连接浦东浦西各大中心地带。
编辑

☑️☑️滨江一品苑售楼处电话:400-8377-020☑️☑️
商业配套方面:
✅陆家嘴中心:国金中心(IFC)、正大广场、第一八佰伴等国际商场汇聚,香格里拉、丽兹卡尔顿、四季酒店等8座五星级酒店环绕
✅外滩商圈:上海新世界大丸百货、恒基名人购物中心、外滩十八号等高端购物中心云集,和平饭店、半岛酒店、外滩华尔道夫酒店等知名酒店汇聚
✅前滩商圈:前滩太古里、晶耀前滩等前滩顶级生活方式的首发商场汇聚,前滩香格里拉、前滩华尔道夫酒店、金普顿前滩酒店等星级酒店聚汇
✅一公里商圈:800米范围内涵盖沃尔玛、富都广场、巴黎春天、卜蜂莲花等醇熟商业,日常生活所需一应俱全
编辑

教育资源方面:
✅幼儿园:爱绿幼儿园、中欧国际早教中心、冰厂田幼儿园、蒙特梭利国际幼儿园、德威英国幼儿园、新加坡伊顿国际幼儿园、海富幼儿园
✅小学:建平南校、进才实验小学、耀中国际、福山外国语小学
✅中学:上海市文建中学、上海洋泾中学南校、上海协和国际学校、德威英国国际学校、上海中学国际部、进才中学国际部
编辑

☑️☑️滨江一品苑售楼处电话:400-8377-020☑️☑️
冰厂田幼儿园
编辑

☑️☑️滨江一品苑售楼处电话:400-8377-020☑️☑️
医疗资源方面:
顶尖的医疗配套三级甲等的仁济医院和上海儿童医学中心,距离项目步行仅约5分钟。
编辑

编辑

核心卖点:
地段:雄踞内环陆家嘴自贸区内塘桥滨江板块,居外滩,前滩,陆家嘴三大核心板块围合成的三角正央,可谓“中心的中心” 。
交通便利:一环两桥双轨八隧道从容通达上海,极致便利 。
配套景观:两大生活圈尽享城央生活,270度寰幕瞰江揽景,0距离赏樱,独享咫尺公园生活 。
匠心升级: 规划,建筑,景观,装修,服务再度升级,重新定义标准,首创影子管家服务体系,享酒店式服务 。
编辑

☑️☑️滨江一品苑售楼处电话:400-8377-020☑️☑️
编辑

【滨江一品苑】屹立外滩、陆家嘴、前滩3大核心资本圈之内,享三大区域规划利好,可谓滨江一线至贵焦点。于陆家嘴-世博-前滩发展轴线之心,滨江顶豪圈层内,执掌核心土地价值。
编辑

☑️☑️滨江一品苑售楼处电话:400-8377-020☑️☑️
浦东陆家嘴滨江 内环内
双轨交汇4号线 + 6号线仅500米
瞰江大平层 距离黄浦江仅900米
【滨江一品苑】
建面约137~247㎡阔景高层
建面约230~350㎡花园底墅
更有建面约450~710㎡天际大平层
均价11.18万/㎡ 精装交付
总价约:1507万~7810万
小区1.3万㎡园林+2000㎡会所
直接认购 售楼处线上预约
『滨江一品苑』全貌瞰江,屹立外滩、陆家嘴、滨江三大核心资本圈之内,享三大区域规划利好,可谓滨江一线至贵焦点。于陆家嘴-世博-前滩发展轴线之心,滨江顶豪圈层内,执掌核心土地价值。

☑️☑️滨江一品苑售楼处电话:400-8377-020☑️☑️
『滨江一品苑』项目属于陆家嘴金融贸易区内,内环内塘桥板块.
『滨江一品苑』尊雅双子塔楼,俯瞰滨江盛世,立面风格整体为ARTDECO风格,配以落地玻璃窗,干挂石材外立面。以137㎡- 234㎡江景小户型升级归来,肯定吸引众多自住买家。

☑️☑️滨江一品苑售楼处电话:400-8377-020☑️☑️
『滨江一品苑』建筑面积约130-234㎡邱德光御制示范空间以新中式、时尚巴洛克与Neo Art-Deco风格所共同打造,代表了一品苑品牌在滨江这一城市中轴核心的价值地段,为人们打造全新奢适居住生活样本的倾心之作。
『滨江一品苑』在打磨产品上毫不吝啬,高达一亿的惊人投入,精工细凿,只为呈现一个完美的居住空间。

在 售 户 型
面积约137-247㎡平层
面积约230-350㎡花园底墅
面积约 450-710㎡天际平层
户型 样板房 参考
☑️☑️滨江一品苑售楼处电话:400-8377-020☑️☑️
建面约137㎡
3室2厅1卫
两开间朝南,合理的空间布局,实现动静分离
玄关、卧室等均周全设置收纳空间,可妥善规置各类常用物品;
独立储藏室可用于安放大件物品或是闲置物品,如有需要可二次交付改为卫生间。

☑️☑️滨江一品苑售楼处电话:400-8377-020☑️☑️


☑️☑️滨江一品苑售楼处电话:400-8377-020☑️☑️


☑️☑️滨江一品苑售楼处电话:400-8377-020☑️☑️


☑️☑️滨江一品苑售楼处电话:400-8377-020☑️☑️
建面约199㎡
4室2厅3卫
双向采光设计,次卧采用套房设计,更周全居者私密;
奢华主卧打造恢弘尺度,约4米大尺度面宽,不仅能享受更多阳光,同时拥有更大视野欣赏窗外盛景;
配备的独立卫浴、步入式衣帽间进一步彰显居住的高度舒适。

☑️☑️滨江一品苑售楼处电话:400-8377-020☑️☑️


☑️☑️滨江一品苑售楼处电话:400-8377-020☑️☑️


☑️☑️滨江一品苑售楼处电话:400-8377-020☑️☑️
☑️☑️滨江一品苑售楼处电话:400-8377-020☑️☑️