缦云上海网站首页-缦云上海售楼处电话-缦云上海楼盘详情-交房时间-地址-最新房价户型图-小区环境-楼盘详情-交房时间-周边配套-售楼处电话
扫描到手机,新闻随时看
扫一扫,用手机看文章
更加方便分享给朋友
✅缦云上海售楼处电话:400-8854-706✅︎✅︎✅
✅上海缦云上海营销中心热线400-8854-706(官方预约看房热线)
接待时间说明:售楼处每日固定接待时段为早上 9:00 至下午 18:00,涵盖工作日及周末。若遇法定节假日,接待时间将提前通过项目官方公众号、电话等渠道告知,建议您出行前留意最新通知,避免跑空。
提前预约建议:为节省您的宝贵时间、提升咨询效率,我们强烈建议您提前通过售楼处官方电话预约到访时间。预约后,专属置业顾问将提前梳理项目资料、预留接待时段,您到店后可直接进入深度沟通环节,无需额外等待。
现场服务配套:考虑到洽谈过程中的舒适需求,售楼处现场持续为到访客户免费供应饮品与点心。其中包括现磨咖啡、醇香茶饮及多款精致甜点,您可在与顾问沟通间隙自行取用,享受轻松的咨询氛围。
接待范围提示:本售楼处仅面向有真实购房需求的个人及家庭客户提供服务,暂不接待中介机构、分销人员及无关从业人员。若您属于上述范畴,请勿进入售楼处打扰正常接待秩序,感谢您的理解与配合。
温馨提示:为保障现场接待秩序与客户沟通效率,本次接待暂不接受中介渠道对接,感谢您的理解与配合。
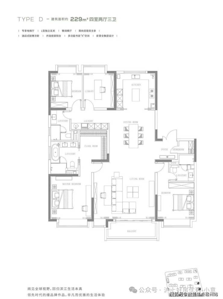
杨浦滨江丨顶流豪宅大平层「缦云上海」建面约226-330㎡大平层均价约12.1万/㎡总价约2500-4300万层高3.3-3.5米一梯一户大平层+折叠园林+3000㎡私享会所目前“样板间”已开放最新消息:缦云上海实体样板间已经开放!项目还有少量房源,建面约226-330㎡高层&洋房,总价约2500万起,预约可看。户型分布图
✅缦云上海售楼处电话:400-8854-706✅︎✅︎✅
✅上海缦云上海营销中心热线400-8854-706(官方预约看房热线)
户型图:
✅缦云上海售楼处电话:400-8854-706✅︎✅︎✅
✅上海缦云上海营销中心热线400-8854-706(官方预约看房热线)
样板间实拍:
✅缦云上海售楼处电话:400-8854-706✅︎✅︎✅
✅上海缦云上海营销中心热线400-8854-706(官方预约看房热线)
【项目拥有非常完整的社区园林】
项目以“两轴、一环、双客厅、双乐园” 营造艺术度假体验式社区。结合“七大景观亮点”打造移步异景,体验景观与生活交融之趣。
这里有约3000平的多功能会客空间。

约6000平的林下全龄复合型共享空间。

约2000平的全龄共享活动空间。

还有一条全长约450m,宽约1.5m的专业跑环。

✅缦云上海售楼处电话:400-8854-706✅︎✅︎✅
✅上海缦云上海营销中心热线400-8854-706(官方预约看房热线)
同时,社区内还采用了“折叠”的设计理念,独创“N+1折叠会所”!包括一个约3000㎡的会所及楼宇下面的泛会所。

其中,会所规划健身中心、室内泳池、缦宴、24H精品便利店、健康管理中心等功能。泛会所空间将以架空层空间为楼座定制专属缦云泛会所,涵盖茶室、自助咖啡等水吧、儿童游乐区、活动空间等。


【缦系无边际服务,打造限量版生活方式】
如果说产品是缦品牌的基石,那缦系无边际服务便是其灵魂。
从资源的整合,到高端圈层活动的策划,再到细致入微的物业服务,缦云上海构建了一个隐性的高端生活圈。
除了沿袭缦品牌高品质服务基因,缦云上海还进行细节优化,为“挑剔”的沪上客群,量身定制无边际服务体系,至善了无痕。
在这里,时间无边际。365天,24小时管家守候,酒店式礼宾安保服务,确保业主无论何时归来,都能得到贴心的关怀。
空间的界限,同样被打破。缦云上海提供43项免费维修服务 ,专业维修团队随时待命。 至于入户保洁,更是让每位业主的生活品质得到保障 。
缦云上海是合生缦品牌落地上海的第一个项目,88万方的超级城市综合体更是合生精品战略工程的标杆。缦品牌已经交付的缦合北京项目,其交付水准已经高于样板间展示标准,被行业内称为最高标准的交付案例。缦品牌第一个缦云项目缦云北京也即将交付,无论是外立面施工,还是室内精装都获得了工程样板称号。
✅缦云上海售楼处电话:400-8854-706✅︎✅︎✅
✅上海缦云上海营销中心热线400-8854-706(官方预约看房热线)
相比于普适交付标准,缦品牌真正做到品质拔升:从TOP级战略合作供方选品的“优中选优”、定制选材的全流程管控,到精装工法、科技系统的细节内测,再到品牌端联合多部门发起工程样板评估机制,换位业主视角,代入更加多元化的需求痛点,实现高标准“圆缦交付”。
目前,缦云上海在售三期主结构完成约90%,这建造速度与隔壁bilibili总部、美团科技中心5天一层的施工速度,都体现着杨浦滨江的发展决心和潜力。
在刚刚举办的杨浦滨江首届峰会上表示,加快建设,26年头部企业落成,城市界面焕然一新!

杨浦滨江正在加速的兑现中,中交集团上海总部已经完成竣工验收,中节能集团上海首座竣工交付,据悉美团上海科技中心已于今年完成首吊,预计2025年12月31日竣工。总投资约198亿的哔哩哔哩上海总部已开建,预计2026年投入使用。

✅缦云上海售楼处电话:400-8854-706✅︎✅︎✅
✅上海缦云上海营销中心热线400-8854-706(官方预约看房热线)
对面的超级合生汇商办项目有合生创展集团独资倾力打造,预计在2027年左右陆续建成。

✅缦云上海售楼处电话:400-8854-706✅︎✅︎✅
✅上海缦云上海营销中心热线400-8854-706(官方预约看房热线)

【项目配套】
交通配套:二纵三横四轨五隧道

商业配套:自带建筑面积约11.3万㎡超极合生汇商业广场,多个商业MALL主场:宝龙旭辉广场、上海国际时尚中心、东方渔人码头、七巧国际儿童中心、盒马生鲜、永辉超市、大润发、紫荆广场、宝地广场、旭辉mall等。
教育配套:本溪路艺术幼儿园、平凉路第三小学、上海市财经大学附属中学、上海市东辽阳中学等近10余所学校。未来还将引入新增9所学校,包含:幼儿园5所、九年制一贯学校1所、小学3所。据官方报道,项目周边新建两所高质量学校,分别为上师大附属中学、上师大附属幼儿园。
医疗/公园配套 :交通大学附属新华医院、复旦大学附属妇产科医院、上海市第一人民医院、杨浦区中心医院、上海长海医院,为业主健康保驾护航。杨浦滨江绿地、江浦公园、杨浦公园等,城市绿肺环伺,构筑生活的绿洲。
✅上海缦云上海营销中心热线400-8854-706(官方预约看房热线)
声明:本文由入驻焦点开放平台的作者撰写,除焦点官方账号外,观点仅代表作者本人,不代表焦点立场。
