保利·西郊和煦|领墅售楼处电话:400-8377-020
12号线旁,约1.01低密滨水墅
超1100㎡煦·CLUB美学会客厅实景开放
室内篮球场、女王茶室、顶配健身房全龄共享
三批次全新墅种精奢叠加已取证上新在即
建面约139-145㎡全新叠加墅种 实景样开
建面约122m²墅境洋房收官在即 错过再无
保利·西郊和煦|领墅售楼处电话:400-8377-020
ıllı保利·西郊和煦丨领墅 ıllı「叠」代西郊 如「院」以藏12号线旁|约1.01容积率|城市轨交墅区

基础信息开发商:上海保邺置业有限公司
建筑面积:约 69042㎡
容积率:约1.01
绿地率:约35%
在售产品:
建面约132-195m²联排艺墅
建面约96-122m²墅境洋房
建面约139-145m² 精奢叠加
交付标准:洋房精装交付/联排毛坯交付/叠加精装交付

保利发展深耕上海20余载,奉行长期主义,助力城市焕新;共计开发 60 余个项目,覆盖 11 个区域,累计服务 15 万+业主。

G60云廊超级产城 擎领长三角科创桥头堡

占位世界级科创走廊商务封面,“一廊九区”超千亿GDP聚合地,串联超级产业中心城市的发展脉络。
12号线旁轨交墅区 3大TOD强势赋能

🚇12号线旁,一脉徐汇、3站闵行、5站莘庄/七宝
🏬生态科技城TOD约11万方云廊龙湖天街、洞泾未来湾TOD(规划)、刘五公路TOD(规划),3大TOD聚势联动,聚合一站式广袤业态商业体量
🏫华二附中松江实验学校(在建)、松江区洞泾学校、洞泾外国语实验学校、洞泾镇中心幼儿园(教育设施相关最新信息及情况,须以政府相关主管部门,教育机构公开最新信息为准)
🏥上海交通大学附属第一人民医院松江分院(三甲)、上海中医药大学附属曙光医院、洞泾社区卫生服务中心

保利·西郊和煦|领墅售楼处电话:400-8377-020
十年一遇 约1.01超低容积率

➡️约60%墅居界面,境显低密纯粹质感,为海派生活重构“由住到享”的迭代价值
➡️引入L型自然河道,双水岸环绕,串联双口袋公园,一步亲近自然
➡️1:1间距比搭配约13.5m开阔楼间距,为西郊焕新臻贵低密墅居样本

建筑肌理 复刻海派风貌格调
➡️保留经典三段式建筑结构,境现更大比例红砖立面,重现百年如故的艺文摩登
➡️墅居首层约6m南向开间,优化更符合当代美学的窗墙比,立体放大约270°广角河景
➡️滨水会客厅立面平移月亮门、半圆拱卷门洞等风貌元素,积淀海派独有的精神回忆

时代重塑 经典红砖学院风格
➡️海派滨水会客厅入口,融合奢石、红砖、叠水等布景元素,匠艺锻造中轴门庭对称礼序,演绎古典学院风严谨与优雅并存的高颜美学主义
➡️海派滨水会客厅连廊,借鉴经典学府的优雅气质,以对称且韵律感十足的拱券设计,巧妙构建庄重而尊贵的学术气息
➡️海派滨水会客厅立面红砖采用分色独立包装,对红砖进行定制化加工,严格遵循红砖排版图与分色图

双轴串引 十园五巷全维景观体系
➡️双轴:以社区主入口引入礼仪归家轴,用脚步丈量谧境之道;约1km滨水休闲轴,全龄步道墅映亲水沿岸
➡️十园:巧设叶间弄茶、泡泡派对、颐养游园等宅间会客厅,融合睦邻、亲子、漫步等乐活聚场空间
➡️五巷:鱼骨巷道,平行有序,融汇春棠、夏青、秋枫、冬影主题巷道,洄游四季分明的宅间风光

保利·西郊和煦|领墅售楼处电话:400-8377-020
浸享艺墅生活聚场 超1100m²煦·CLUB美学会客厅
➡️「室内篮球场」专业级枫木地板搭配超7米室内层高,为全龄乐活群体,围合出了一方在家楼下就能“拿球说话”的竞技场
➡️「光幕健身房」配置法国MONAMI®麦纳力全系赛级健身器械,还设有瑜伽区、普拉提训练区,满足男女业主需求。搭配全景落地玻璃窗,让运动的同时悦享阳光与自然的完美调和
➡️「睦邻棋牌室」+「茶道会馆」棋牌功能区可供全龄段业主浸享桌游、卡牌、麻将的乐趣;禅茶一体的雅叙空间可作为日常志趣社交的私密天地
➡️「圈层私宴厅」+「女王茶室」两处栖心聚场境显摩登腔调,整块香格里拉绿奢石壁炉、白水晶奢石酒架、全景开放式落地窗……每一处细节的精研,都在彰显飨宴、雅集的品位

越级改善 全龄浸享高阶改善级门牌建筑面积约122m²墅境洋房
3+1飞机户型,典藏功能性与尺度感的完美统一
客餐厅一体化设计,丈量精致日常的生活氛围感
双联阳台的突破创新式设计,物理延伸室内光照时长

建筑面积约132m²滨水联排
入户门庭宽约1.9m,以对称礼序,为浓荫西郊典藏家族门牌
首层会客空间,南朝超6m面宽,以全景落地窗将庭院绿意引入厅堂
跨层联动,地下采光井、L型星空露台、前庭后院打造立体共享空间

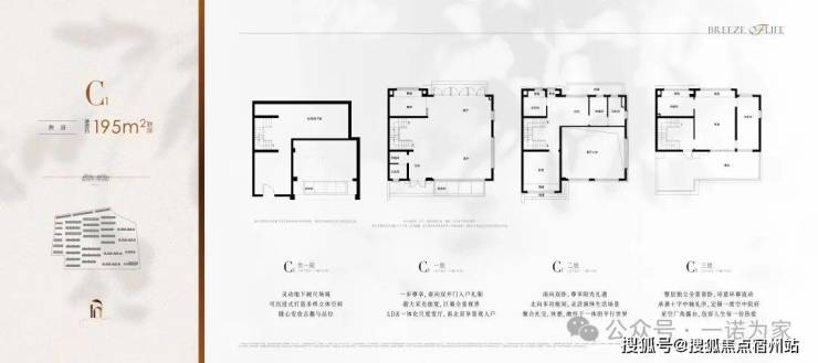
建筑面积约195m²滨水联排
首层尊享,LDK一体化无界宽厅,南北双享景观入户
二层预留南向尺度双卧+北向多功能间,聚合社交、休憩于一体的平行世界
三层整层独立全景套卧,天地无界广角露台,包容人生每一份热爱

建面约139m²精奢上叠
超9m南向三开面宽,南北通透,面面瞰景
首层南向卧室,全景飘窗赏园,尊长静心安居
宽享超9m全景双露台,境现世家空中摘星花园
宽奢套卧预留大尺度衣帽收纳空间,特为私享生活专属

建面约145m²精奢下叠
首层LDK一体化动线,U型中厨搭配西式岛台设计
超9m南向三开,约6m宽奢横厅,一步花园谧境
预留南侧大面采光井,适配地库空间通风采光
二层南向双卧+北向X空间,功能完备,满足世家所需


保利物业 高端服务新范式作为国家首批一级资质物业管理企业,保利物业稳居全国物业行业TOP2、央企TOP1,是物业行业规模和品质的领军者及标杆示范企业。物业信息来源:中指信息技术研究院主办的“2024中国物业服务百强企业研究成果发布会”、广东省物业管理行业协会公众号、中国保利集团有限公司官方网站

四时雅集 高阶社群服务体系项目配置“四时雅集”物业服务品牌,通过“闲·情·雅·智”4大维度,将7X24h的管家深度服务、关爱长幼的全龄段知交体验、见微知著的雅致生活情境营建及全景智能化的便捷安全守护,融入“和字系”都市新烟花主义的美好生活刻度。

保利·西郊和煦|领墅售楼处电话:400-8377-020