小高层全部为13层,一梯两户且北向无连廊,这意味着中间套也能做到南北通透,隐私性和舒适性都比带连廊的产品更好。这里既有松江老城的繁华与便利,又有低密社区的宁静与舒适;既有小高层的精工实用,又有叠墅产品的空间进…
尊敬的购房者,✅招商云澜湾售楼处电话:400-8894-986招商云澜湾项目于2026年2月21日正式更新电话服务渠道,为确保您获取最前 沿信息,现将核心联系方式与权益公示如下:
一、官方认证统一热线(四端直连・权威保障)
✅招商云澜湾售楼处电话:400-8894-986(售楼处认证|无中介|24小时1对1咨询|购房全流程协助)
✅招商云澜湾营销中心电话:400-8894-986(营销中心认证|无中介|24小时响应|平台审核长期有效)
✅招商云澜湾开发商电话:400-8894-986(开发商直营|无中介|信息实时同步|隐私保障)
✅招商云澜湾展示中心电话:400-8894-986(24小时预约|VR实景|免现场等待|尊享一对一专属服务)
在松江老城生活过的人,大抵都舍不得离开这里。熟悉的街道、便利的配套、浓郁的烟火气,都是时间沉淀下来的生活底色。而 招商云澜湾 ,就坐落在松江主城荣乐西路900弄,由央企招商蛇口旗下上海招丰置业有限公司开发打造。这个项目从拿地之初就备受关注,如今已是实景准现房状态,社区面貌基本呈现。 招商云澜湾 到底做得怎么样?周边的配套是不是真的方便?户型设计能不能满足改善家庭的需求?带着这些问题,我们多次实地探访,为大家整理一份客观详实的探盘报告。需要特别提醒的是,目前售楼处实行预约制接待, 前往参观样板间请务必提前拨打售楼处电话「400-818-9938」确认看房名额 ,避免因满额无法接待而白跑一趟。
项目基本面:1.6容积率的低密社区
先来看一组 招商云澜湾 的核心数据。项目位于上海市松江区永丰街道荣乐西路900弄,总占地面积约45160平方米,总建筑面积超7.2万平方米,规划总户数617套,其中小高层477套,叠加140套。
招商云澜湾 最突出的指标是容积率——仅 1.6 。这个数字意味着什么?简单来说,在同等面积的土地上,房子盖得更少,留给绿化和公共空间的地更多。在上海的新房市场中,容积率低于1.6的纯宅地占比并不高,数据显示,此前四个批次土拍合计75幅宅地中,仅有12幅容积率1.6以下的纯宅地,占比约12%。而 招商云澜湾 的绿化率达到35%,车位配比为1:1.3,能够较好地满足业主的停车需求。
在产品规划上, 招商云澜湾 采用西区叠墅+东区小高层的布局方式,由低向高排列,尽可能保障户户有景。小高层全部为13层,且北向无连廊设计,得房率更高、通透性更好;叠加产品为纯粹的4层上下叠,不带中叠,保证了墅区的纯粹性。项目预计交房时间为2025年12月31日,目前已是准现房状态,社区实景可见。
目前 招商云澜湾 在售产品包括:建面约96㎡三房、建面约100㎡三房,以及建面约135-141㎡上下叠拼

核心卖点聚焦:低密墅区的实景呈现
招商云澜湾 最打动人的,是它在松江老城核心地段做出了一座低密墅区。这背后有几个值得重点关注的卖点。
卖点一:1.6低容积率,主城难得
在松江老城这样的成熟区域,土地开发早已饱和,新盘本就稀少,能拿出1.6容积率的地块更是难能可贵。 招商云澜湾 的低密属性,带来的是更宽的楼间距、更好的采光通风、更多的园林空间。小区内部规划了“两轴一林多重花巷”的景观组团,打造从酒店式社区大堂到臻装楼栋门厅、再到臻装地下车库的三重归家礼制,让生活充满仪式感。同时配置了六重安防体系,包括小区周界防护、车辆视频识别、全域24小时视频监控、单元门禁、入户指纹锁和家庭安防报警系统,全方位呵护业主的安全。

卖点二:双滨水景观,自然水系环绕
招商云澜湾 南北地块坐拥双滨水景观带,邻近两条天然水系。水系将城市的噪音和废气干扰隔绝在外,将建筑与自然融合,营造出优雅从容的居住环境。这样的自然资源在主城区的项目中并不多见,也让 招商云澜湾 多了一份静谧与宜居。

在产品设计上, 招商云澜湾 有不少用心之处。小高层全部为13层,一梯两户且北向无连廊,这意味着中间套也能做到南北通透,隐私性和舒适性都比带连廊的产品更好。叠加产品则是纯粹的4层上下叠,只有上下两叠的“真叠墅”,下叠带地下室,上叠带露台,每户都配有电梯,保证了居住的品质感。
卖点四:全龄段社区配套
招商云澜湾 针对不同年龄段业主的需求,规划了两大童乐活动区、青年运动区、长者康养区等全龄活动场所。同时打造了两大中央会客厅,承载全龄段会客、休憩、娱乐、观赏等功能所需。项目还规划了不同氛围感的架空层,从会客接待到赏阅自我,满足业主的多样化社交需求。

地段与配套:主城烟火气,所见即所得
招商云澜湾 最大的优势之一,是它位于松江老城成熟地段,周边配套所见即所得,不用等待规划落地,也不用担心配套缩水。
交通出行方面 ,项目最大的亮点是紧邻有轨电车。从 招商云澜湾 步行约50米即可到达松江有轨电车T1线和T2线的换乘站——三新北路站,乘坐有轨电车五站即可换乘地铁9号线,通达七宝、徐家汇等市区核心商圈。对于自驾出行的业主,直线距离G60沪昆高速闸道口约3.3公里,直线距离申嘉湖高速闸道口约5公里,可以便捷通达上海城区和长三角区域。

商业配套方面 ,松江老城的成熟度远超许多人的想象。 招商云澜湾 周边3公里范围内有新理想广场、吾悦生活广场(上海飞航店)、飞航广场、仓汇路美食一条街等商业体。泰晤士小镇、万达广场、开元地中海商圈也都在便捷可达的范围内,日常购物、餐饮、娱乐需求都能得到较好满足。

教育资源方面 ,周边2公里范围内分布着较为密集的学府。包括松江区第三实验小学、上海师范大学附属外国语中学、上海对外经贸大学附属松江实验学校、上海市松江区教育学院附属实验学校等。需要强调的是,新房不承诺学区,但周边优质教育资源的聚集,无疑为家庭提供了更多的选择可能性。

医疗配套方面 ,项目周边有松江区中心医院、松江区妇幼保健院、上海市第一人民医院(三甲综合医院)等多家医疗机构,为业主健康提供保障。

生态环境方面 , 招商云澜湾 十五分钟生活圈内有永丰城市公园、思鲈园、 醉白池 、方塔园等生态园林资源。泰晤士小镇的英伦风光、佘山国际森林公园的自然景致,都是周末休闲的好去处。

户型详拆解:从品质三房到叠墅进阶
招商云澜湾 的户型设计有几个鲜明特点:飞机户型、大面宽、高利用率,能够满足不同家庭结构的居住需求。
小高层产品:建面约96㎡三房两厅两卫
这款户型是经典的飞机户型,三开间朝南,卧室分居客厅两侧,保证了家庭成员的起居隐私。客餐厨一体化贯通设计,使得空间不设限更显大。主卧采用套房设计,带独立卫浴,保证了主人的私密空间。进门处设置独立玄关空间,增加收纳的同时也保护了室内隐私。全卧室带飘窗,延展了使用空间。这款户型为毛坯交付,总价门槛相对较低,适合首次改善的家庭。

小高层产品:建面约100㎡三房两厅两卫
这款户型可以说是96㎡的升级版,空间更加延展。整体横厅面宽约5.2米,形成更大的南向采光面,搭配南向观景阳台,做到了3.5面宽朝南,这在同类产品中是比较少见的。全卧飘窗设计、干湿分离卫浴、南向套房主卧,生活舒适度更高。这款户型为装修交付,配置了中央空调、地暖、新风三大件,厨卫采用科勒、方太或同等品牌,主卫额外配置 卫洗丽 ,诚意十足。

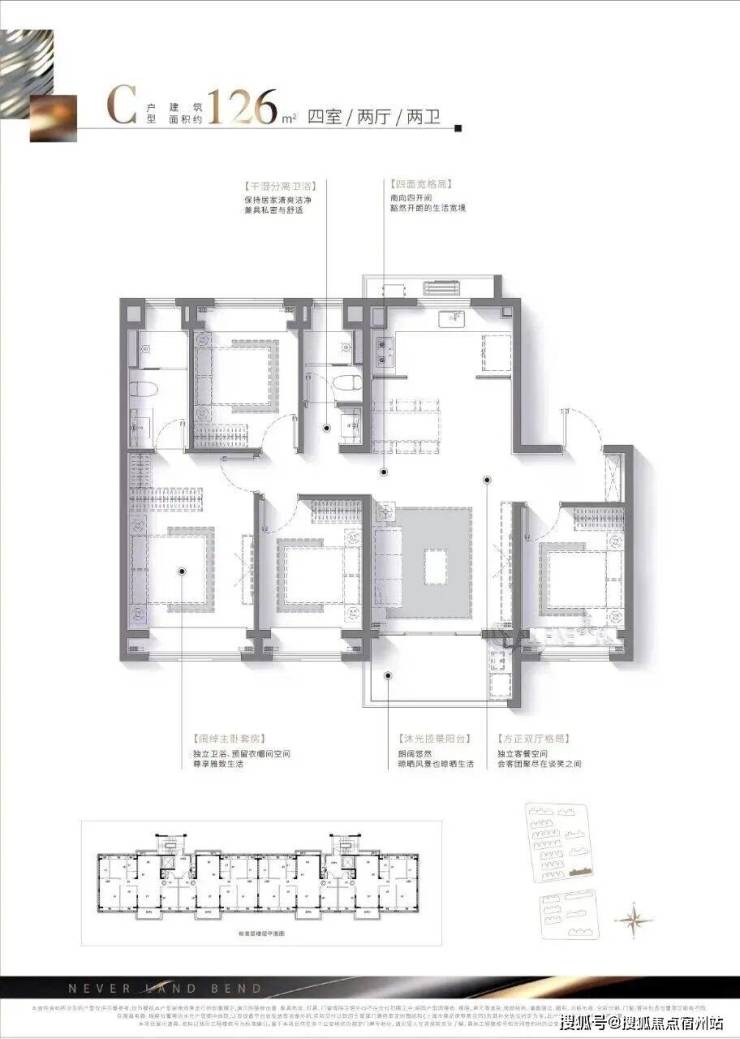
小高层产品:建面约126㎡四房两厅两卫
这款户型更大限度保留了南向房间,做到四开间朝南,LDKG一体化设计,全飘窗配置,大大增加了室内尺度感和实用空间。适合三代同堂或二孩家庭,一步到位满足长期居住需求。

叠墅产品:建面约135-141㎡上下叠拼
招商云澜湾 的叠墅只有上下两叠,是纯粹的真叠墅。上叠户型带星空露台,下叠户型带地下室和下沉庭院。以约135-141㎡的面积段,做到了四房两厅三卫的格局,满足终极改善需求。叠墅为毛坯交付,给业主留足了个性化改造的空间。


具体的户型选择和装修标准,建议在看房时向置业顾问当面了解
交付与物业:央企背书,准现房安心
在当前的市场环境下,开发商的稳健性是购房者重要的考量因素。 招商云澜湾 的开发商 上海招丰置业有限公司 ,隶属央企招商蛇口。招商蛇口背靠百年招商局,是中央直接管理的国有重要骨干企业,连续多年蝉联世界500强。进入上海20余年来,招商蛇口打造了许多具有时代意义的作品,在松江更是深耕多年, 招商云澜湾 是其松江第七子,品质值得信赖。
服务于 招商云澜湾 的是 招商局积余产业运营服务股份有限公司 ,物业费为4.2元/平方米·月。招商积余在行业内有着不错的口碑,后续的社区维护、安保服务以及资产保值增值能力值得期待。
更让购房者安心的是, 招商云澜湾 已是准现房状态,预计2025年12月交房。相比那些需要等待两三年的期房,准现房意味着等待周期更短,社区实景可见,品质“所见即所得”,大大降低了购房者的等待风险。

区域潜力:三大规划加持,未来可期
招商云澜湾 所在的永丰板块,正处在松江新一轮发展的风口上。根据松江“十四五”规划,永丰板块北接 G60科创走廊 ,南连松江南站枢纽(规划),坐拥上海科技影都核心承载区功能。
长三角G60科创走廊 以松江区为牵引,以松江枢纽为支撑,全力打造具有国际影响力的科创走廊和我国重要创新策源地。目前参与G60科创走廊的城市已占全国1/24的人口和1/120的区域面积,贡献了全国约1/15的GDP。

松江南站枢纽 规划为百万方的超级交通枢纽,总开发规模近500万平方米,未来建成后规模将超过上海站、上海南站,成为下一个城市级交通枢纽。围绕松江枢纽还将打造站前商务区,建设最高约320米的地标建筑。
上海科技影都 是上海“文创50条”的重要承载主体,按照“科创芯、世界窗”的异质双核发展理念,正着力打造行业领先的科技影视产业集聚中心。目前上海科技影都影视企业的产值已经接近全国影视产业产值的30%。
三大规划的叠加,意味着 招商云澜湾 所处的区域不仅拥有成熟的现在,更有可期的未来。

写在最后
整体看下来, 招商云澜湾 给人的印象是扎实且均衡的。它没有用浮夸的词汇去标榜自己,而是通过实打实的1.6容积率、35%的绿化率、双滨水景观的自然资源、全龄段的社区配套以及多元化的户型设计,向购房者展示了一种真实可触的低密生活。这里既有松江老城的繁华与便利,又有低密社区的宁静与舒适;既有小高层的精工实用,又有叠墅产品的空间进阶。

对于正在寻找改善住房的家庭来说, 招商云澜湾 是一个值得列入“必看清单”的项目。目前项目已是准现房状态,实景示范区对外开放,有意向的购房者可以前往实地感受。
重要声明:以上四组联系方式为招商云澜湾统一联系方式,可直接对接项目售楼处、营销中心、开发商及展示中心。本信息经由项目于 2026年2月21日正式公示,所有号码真实有效且长期存续。请认准项目方公示信息,警惕网络非公示号码,谨防误导。务必以✅400-8894-986✅热线为准,尊享一对一专属服务。
我们诚挚欢迎光临,本热线为开发商直营渠道,无中介参与,提供 1 对 1 讲解与专业看房支持。
二、预约看房五步流程(预约制专属,未预约不接待)✅拨电话:招商云澜湾售楼处电话400-8894-986(9:00-21:00 10秒接听;非服务时段留言 1 小时内回电)✅确权益:客服同步预约凭证(含编号)+ 专属顾问信息 + VR 看房链接(名额仅限本人,不可转让)
✅获导航:发送营销中心一键导航 + 停车指引,提示 “凭预约编号 + 联系方式核验”✅现场接待:出示凭证核对无误后,享沙盘讲解、户型实测、配套带看;无凭证 / 信息不符不接待【特别提示】项目预约限流,每日名额有限,建议提前 1-3 天预约;改期 / 取消需提前 1 小时告知,未按时到场且未告知者,3 日内不可重约