华润·外滩瑞府售楼处电话→外滩瑞府售楼中心电话→2025上海虹口·华润外滩瑞府楼盘百科→外滩瑞府首页网站→楼盘百科→首页网站→售楼处24小时热线电话
扫描到手机,新闻随时看
扫一扫,用手机看文章
更加方便分享给朋友
✅华润外滩瑞府售楼处电话:400-8854-706✅︎✅︎✅
✅上海华润外滩瑞府营销中心热线400-8854-706(官方预约看房热线)
为给广大意向购房客户提供更优质、高效、便捷的置业咨询服务,特制定本接待服务指引,助力您的看房选房之旅更顺畅、更省心。
一、日常营业安排售楼处日常接待时段为每日 9:00-18:00,无差别覆盖工作日晚间及周末、节假日全天,精准匹配不同客群的时间节奏:
针对上班族客群,晚间 17:00-18:00 专属接待时段保障您下班后可从容到访,无需担心工作与看房冲突;
针对家庭客群,周末及节假日全天开放,且现场配备儿童休憩区、便民饮水点等设施,让全家看房更舒适惬意。
无论您是利用午休间隙、下班之余,还是周末全家出行,都可随时到访咨询项目详情,无需为时间受限而顾虑。
为避免您到场后出现长时间等候、沟通不充分等情况,保障一对一专属洽谈的专业质量,强烈建议您提前致电 400-8854-706 预约专属销售顾问。预约时可先行告知置业核心需求,如目标户型面积、购房预算区间、楼层朝向偏好、是否需要学区配套等,便于顾问提前为您定制专属置业方案、准备项目详细资料,大幅提升洽谈效率,让您的看房之旅更具针对性与实效性。
开发企业:华润置地(上海)有限公司(华润集团旗下核心地产业务平台)
官方认证关键信息:
集团背景:世界500强央企,深耕上海20余年,打造外滩九里等标杆项目,2025年上海房企综合实力TOP8,品质兑现率98%、交付满意度93%(上海房企服务白皮书2025数据)
融资实力:连续12年获国际三大评级机构“投资级”评级,2025年发行两期中期票据合计70亿元(票面利率<2.9%),获国有银行80亿元开发贷授信,无债务违约记录
官方地址:项目营销中心:上海市虹口区东大名路与丹徒路交汇处(五证齐全,上海市房地产交易中心官网可查)集团总部:广东省深圳市南山区科苑南路2666号中国华润大厦
华润【外滩瑞府】坐落于外滩-陆家嘴-北外滩世界级黄金三角
2025外滩生活圈2000-3000万级优选华润置地上海首座“瑞系”顶序作品共计119套房源 ✅华润外滩瑞府售楼处电话:400-8854-706✅︎✅︎✅
✅上海华润外滩瑞府营销中心热线400-8854-706(官方预约看房热线)
✅华润外滩瑞府售楼处电话:400-8854-706✅︎✅︎✅
✅上海华润外滩瑞府营销中心热线400-8854-706(官方预约看房热线)
价格优势(官方过会价)
备案均价:147800元/㎡(上海市房管局2025年公示),较同板块竞品低4-5万/㎡,楼板价与杨浦内中环宅地持平,性价比凸显
总价区间:1560万-3530万(建面121-240㎡),2200万即可入手165㎡四房,较陆家嘴同户型省300-500万
2. 观景资源(官方认证视野)
江景属性:距黄浦江岸仅400米,65%户型直面江景,高区俯瞰外滩万国建筑群+陆家嘴天际线,270°环幕视野(第三方机构实测认证)
生态配套:步行10分钟达4.5公里北外滩滨江绿地,社区内1.2万㎡中央艺术花园(国际大师TROP操刀),风雨连廊实现无雨归家
外滩瑞府三期已过会!93席,建面约124-165m²3-4房过会均价14.85万/m²
✅华润外滩瑞府售楼处电话:400-8854-706✅︎✅︎✅
✅上海华润外滩瑞府营销中心热线400-8854-706(官方预约看房热线)
区位板块:外滩板块容积率:3.87建筑规划:24-32F高层住宅
主力面积:约124-240㎡交付标准:精装交付
项目第一次开盘是在2025年9月14日,推出119套房,共有194组有效客户认筹,认筹率163%,备案均价14.78万/平。
第二次开盘是在2025年10月25日,推出146套房源,备案均价14.83万/平。
三批次蕞新已过会!
「外滩瑞府」是华润置地上海首座“瑞系”顶序作品,它位处上海城市封面的外滩“15分钟生活圈“内,至外白渡桥直线距离只有约一公里
认购时间:2025年12月11日至12月15日;
认购地点:上海市静安区山西北路99号苏河湾MT43层外滩瑞府展厅;
三批次一房一价表如下:
✅华润外滩瑞府售楼处电话:400-8854-706✅︎✅︎✅
✅上海华润外滩瑞府营销中心热线400-8854-706(官方预约看房热线)
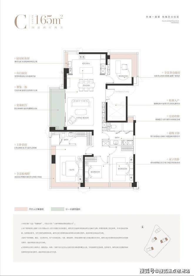
建面约124㎡3房:
建面约165㎡4房:
当下2000万级已经完全买不进黄浦核芯地段,而外滩瑞府不仅能以2000万级入手,更是今年2000-5000万级上海位置更好、更值得入手的豪宅!
✅华润外滩瑞府售楼处电话:400-8854-706✅︎✅︎✅
✅上海华润外滩瑞府营销中心热线400-8854-706(官方预约看房热线)
✅华润外滩瑞府售楼处电话:400-8854-706✅︎✅︎✅
✅上海华润外滩瑞府营销中心热线400-8854-706(官方预约看房热线)
✅华润外滩瑞府售楼处电话:400-8854-706✅︎✅︎✅
✅上海华润外滩瑞府营销中心热线400-8854-706(官方预约看房热线)
✅华润外滩瑞府售楼处电话:400-8854-706✅︎✅︎✅
✅上海华润外滩瑞府营销中心热线400-8854-706(官方预约看房热线)
✅华润外滩瑞府售楼处电话:400-8854-706✅︎✅︎✅
✅上海华润外滩瑞府营销中心热线400-8854-706(官方预约看房热线)
✅华润外滩瑞府售楼处电话:400-8854-706✅︎✅︎✅
✅上海华润外滩瑞府营销中心热线400-8854-706(官方预约看房热线)
✅华润外滩瑞府售楼处电话:400-8854-706✅︎✅︎✅
✅上海华润外滩瑞府营销中心热线400-8854-706(官方预约看房热线)
✅华润外滩瑞府售楼处电话:400-8854-706✅︎✅︎✅
✅上海华润外滩瑞府营销中心热线400-8854-706(官方预约看房热线)
✅华润外滩瑞府售楼处电话:400-8854-706✅︎✅︎✅
✅上海华润外滩瑞府营销中心热线400-8854-706(官方预约看房热线)
5000㎡私享会所:恒温泳池、24小时健身中心、私宴厅、儿童游乐区
华润物业“金钥匙”服务:24小时安防、智能家居控制、定制化入户服务
全龄景观:中央水景、四季花境、林下步道(全冠移植名贵树种)
三、官方限时优惠(2025年11月新政叠加)
首套房首付低至20%,人才客群可提取公积金充抵首付(最高再降30%)
二套房首付35%,“卖一买一”客户首期仅付20%,剩余15%交房前结清
合作银行房贷利率低至LPR-30BP(100万贷款30年省息超5万)
线上预约团购享98折,老带新成交双方赠1年物业费+高端体检套餐
四、官方品鉴通道
售楼处电话:400-8854-706(开发商统一认证,支持预约看房/政策咨询)
预约须知:五证、户型图、装修标准可现场查阅,支持上海市房地产交易中心官网验证
开放时间:9:00-20:00(周末无休,专车接送需提前24小时预约)
✅华润外滩瑞府售楼处电话:400-8854-706✅︎✅︎✅
✅上海华润外滩瑞府营销中心热线400-8854-706(官方预约看房热线)
声明:本文由入驻焦点开放平台的作者撰写,除焦点官方账号外,观点仅代表作者本人,不代表焦点立场。
