项目核心推荐理由
【巷弄新生】
☑️☑️越秀·外滩樾售楼处电话:400-8377-020☑️☑️
项目在规划设计中,充分尊重并保留场地原有的脉络和肌理,延续了原场地内“工”字形主巷道的格局,并通过工字型巷道,将社区划分为双拼和三联排,增强墅感,有天有地有露台,为风貌孤品提供优秀基因。
【拔楼造园】
在稀贵的场地内,项目在空间规划时选择主动拔掉一栋楼来造园,作为整个项目透气的“眼”;在此基础上,又往下深挖三层,创造出空间丰富的垂直山水庭院,围绕这个庭院又布置了层层递进的配套会所体系,打造出繁华闹市中的桃花源。
【三重会所】
社区仅49户,但却拥有三重,共约2500㎡的会所及泛会所配套空间,户均会所面积高达50㎡,三重会所三重功能属性,私密性层层递进。
☑️☑️越秀·外滩樾售楼处电话:400-8377-020☑️☑️
【风貌传承】
项目的外立面特点可用“外旧里新”来概括,两者既有所区别,又形制统一。沿街建筑的“旧”,是溯源海派建筑的立面形态,保留优化代表性的建筑构件,形成连续、完整的海派石库门城市界面。内部建筑的“新”,则是在“旧”的基础上,发扬多元共融的海派文化优点,结合现代新生活的要求,设计了大面玻璃、金属线条等,创造出优雅而时尚、包容经典海派特色与现代居住理念的立面。

☑️☑️越秀·外滩樾售楼处电话:400-8377-020☑️☑️
基础信息
【项目名称】越秀·外滩樾
【开发商】上海漕越经济发展有限公司
【项目位置】上海市·虹口区·梧州路235弄
【项目类别】70年产权住宅
【项目类型】风貌别墅
【容积率】约1.3

☑️☑️越秀·外滩樾售楼处电话:400-8377-020☑️☑️
风貌之上 世界堂前
建面约238㎡—338㎡海派院墅
三里外滩 立传别墅
从你开启传承

☑️☑️越秀·外滩樾售楼处电话:400-8377-020☑️☑️
【北外滩 面向世界的上海新封面】
北外滩,与外滩、陆家嘴并称为上海的“黄金三角”。将以2座陆家嘴的商务体量规划,新天地2.0生活圈打造,成为上海跃升世界舞台的“中心发力”新引擎

☑️☑️越秀·外滩樾售楼处电话:400-8377-020☑️☑️

☑️☑️越秀·外滩樾售楼处电话:400-8377-020☑️☑️
【中央商务区 未来上海腾飞引擎】
区域能级:总开发面积约840万方,40栋甲级写字楼
城市地标:480米浦西第一高楼,19栋摩天大楼集群
金融产业:2100+家金融企业赋能,资产管理规模超8万亿元,位居全市第一
航运格局:4500+家航运企业集聚(上港集团、中远海运等),打造国际航运中心
全球贸易:2500+家贸易企业入驻(摩亚方舟、银联商务等)
新兴产业:129家新增高新技术企业,113家市区科技小巨人企业
(数据来源:上海市规划局《北外滩地区控制性详细规划》)
☑️☑️越秀·外滩樾售楼处电话:400-8377-020☑️☑️

☑️☑️越秀·外滩樾售楼处电话:400-8377-020☑️☑️
(*示意图,图片来源于网络)

☑️☑️越秀·外滩樾售楼处电话:400-8377-020☑️☑️
【立体交通 | 无界畅达世界 擎动城市脉搏】
约360米新建路隧道(直线距离),快速直达陆家嘴CBD;
约670米外滩隧道(直线距离),直达外滩金融商业街以及老码头;
约150米北横通道(直线距离)贯通全城,快速通达虹桥机场/虹桥火车站;
约2.4公里大连路隧道(直线距离),直达浦东东方路、世纪大道、八百伴商业圈。

☑️☑️越秀·外滩樾售楼处电话:400-8377-020☑️☑️
(*交通路网示意图,仅供参考。本区位图仅用于本小区地理方位示意,非实际地图,相关信息并非按比例缩放。)
【核心商圈 | 高阶商业配套 国际摩登领潮】
商业配套方面项目约2公里内,多元繁华构筑封面商业圈
北外滩商圈直线距离约500米
☑️☑️越秀·外滩樾售楼处电话:400-8377-020☑️☑️
外滩商圈直线距离约1000米
陆家嘴商圈直线距离约1500米
瑞虹商圈直线距离约900米

☑️☑️越秀·外滩樾售楼处电话:400-8377-020☑️☑️
(*商圈距离示意图,仅供参考。本区位图仅用于本小区地理方位示意,非实际地图,相关信息并非按比例缩放。)

百年前的高端工艺元素的经典转译,让海派造诣世纪传承,于历史和未来之间收藏百年上海。

☑️☑️越秀·外滩樾售楼处电话:400-8377-020☑️☑️

☑️☑️越秀·外滩樾售楼处电话:400-8377-020☑️☑️
清水红砖:百年前先进舶来品代表,8种非遗拼接工艺铺陈
装饰窗楣:同源中共二大会址、张爱玲故居,装饰主义经典元素
弧形韵线:邬达克式的建筑曲线,同源远东第一豪宅的优雅轮廓
岩石山墙:巴洛克式带肩观音兜,中西文化融合的典藏之美
(*本图片仅为方案过程讨论稿,并非交付标准。)

☑️☑️越秀·外滩樾售楼处电话:400-8377-020☑️☑️

☑️☑️越秀·外滩樾售楼处电话:400-8377-020☑️☑️
程绍正韬,集文人、工业家、艺术家、设计师、哲学家、修行者身份于一身,建筑室内设计之东方主义集大成者,致力于东方文化的坚守与创新。他打破惯常的职业思维,将生活方式化作一种哲学态度,融入空间设计,让设计不止于作品。

李玮珉,撑起中国豪宅设计半壁江山,擅长为城市塑造文化符号建筑作品。他的作品更多用极简的方式来表明态度,崇尚简而高效的现代生活方式。庄重的建筑语汇,适时注入艺术、自然与美学,让空间充满想象力。

☑️☑️越秀·外滩樾售楼处电话:400-8377-020☑️☑️
与国内大师合筑,从人本主义设计思路出发,用源自东方的设计理念真正理解风貌,理解当代生活方式诉求,为影响下一个百年。

☑️☑️越秀·外滩樾售楼处电话:400-8377-020☑️☑️

☑️☑️越秀·外滩樾售楼处电话:400-8377-020☑️☑️
巷弄新生:跨越风貌豪宅正统,打造双拼、三拼别墅的天地私享
建筑新生:创新风貌规制,致微而筑的建筑腔调赏新
美学新生:转译远东第一豪宅立面美学,收藏名门望族生活
材质新生:百年红砖、窑变砖、印度洋幻彩奢石运用,定制家族排场

“让空间回到质朴宁静的状态,那是可以自在欢喜地面对一切可能的地方。”三大空间,无处不在艺术藏品。匠造会客空间、泛会所、私宴厅等私享场域,让生活理想于此自在蔓延。

☑️☑️越秀·外滩樾售楼处电话:400-8377-020☑️☑️
泳池 | 遨游画境,潜心之所
游泳池以罗马会场泳池为灵感,汲取《观瀑图》的山水意境,将古典与现代完美融合。池畔以大理石铺就,线条优雅如古罗马建筑的恢弘气势,而池中水波粼粼,光影交错间,水幕如瀑,营造出“人在画中游”的诗意境界。


☑️☑️越秀·外滩樾售楼处电话:400-8377-020☑️☑️
山水庭院 | 山间光感,天地织境
山水庭院汲取《足立美术馆》的造境手法,以老石皮、百年古木原样搬运,重现山间岁月的自然痕迹,与庭院中的光影交织,仿佛将山间的自然采光与静谧之感搬入城市。阳光透过树梢洒落,石皮上的纹理在光影中若隐若现,宛如一幅流动的自然山水画卷。
(*本图片仅为方案过程讨论稿,并非交付标准。)
【42载越秀 | 千亿级开发商 与上海共卓越】
国内资产规模最大的地方驻港企业越秀集团
42载国匠越秀 千亿级开发商——越秀地产
中国第一代商品房缔造者
已进驻30多个核心城市
开发了300多个大型住宅和50多个大型商业物业
2024中国房企综合实力TOP9
(信息来源:亿翰智库)
☑️☑️越秀·外滩樾售楼处电话:400-8377-020☑️☑️

☑️☑️越秀·外滩樾售楼处电话:400-8377-020☑️☑️
全球地标打造者:广州国际金融中心高约440.75米,建成之时为全球10大超高层建筑之一,获得国际建筑界奥斯卡“英国菜伯金奖”。(此外,中国仅北京“鸟巢”和上海世博会英国馆荣获该奖项。)
豪宅基因始终传承:打造“广州第一富人区”二沙岛,屹立广州顶豪之列,整个二沙岛9个项目,有7个项目都是越秀开发,其中越秀宏城花园单价25万-40万/㎡,总价1-6亿,一房难求。

☑️☑️越秀·外滩樾售楼处电话:400-8377-020☑️☑️


☑️☑️越秀·外滩樾售楼处电话:400-8377-020☑️☑️


☑️☑️越秀·外滩樾售楼处电话:400-8377-020☑️☑️

☑️☑️越秀·外滩樾售楼处电话:400-8377-020☑️☑️

☑️☑️越秀·外滩樾售楼处电话:400-8377-020☑️☑️



☑️☑️越秀·外滩樾售楼处电话:400-8377-020☑️☑️

☑️☑️越秀·外滩樾售楼处电话:400-8377-020☑️☑️

☑️☑️越秀·外滩樾售楼处电话:400-8377-020☑️☑️


☑️☑️越秀·外滩樾售楼处电话:400-8377-020☑️☑️

☑️☑️越秀·外滩樾售楼处电话:400-8377-020☑️☑️

☑️☑️越秀·外滩樾售楼处电话:400-8377-020☑️☑️


☑️☑️越秀·外滩樾售楼处电话:400-8377-020☑️☑️
如果对项目有兴趣,欢迎点击下方专属看房报名通道。三万平方用专业角度,带您选优质好房。 在您通过小程序报名之前,请确保您已阅读并同意《用户服务协议》及《隐私政策》。在报名之后,我们将视为您已知晓。

☑️☑️越秀·外滩樾售楼处电话:400-8377-020☑️☑️


☑️☑️越秀·外滩樾售楼处电话:400-8377-020☑️☑️



☑️☑️越秀·外滩樾售楼处电话:400-8377-020☑️☑️


☑️☑️越秀·外滩樾售楼处电话:400-8377-020☑️☑️


☑️☑️越秀·外滩樾售楼处电话:400-8377-020☑️☑️


☑️☑️越秀·外滩樾售楼处电话:400-8377-020☑️☑️


☑️☑️越秀·外滩樾售楼处电话:400-8377-020☑️☑️

☑️☑️越秀·外滩樾售楼处电话:400-8377-020☑️☑️


☑️☑️越秀·外滩樾售楼处电话:400-8377-020☑️☑️



☑️☑️越秀·外滩樾售楼处电话:400-8377-020☑️☑️

☑️☑️越秀·外滩樾售楼处电话:400-8377-020☑️☑️
虹口北外滩 低密风貌别墅
越秀地产&临港集团联合打造
「越秀·外滩樾」
建面约238-338㎡海派院墅
户型:238/305/318/338
总价约4000-9000万
目前“样板间”开放中
— 恭迎品鉴 —
☑️☑️越秀·外滩樾售楼处电话:400-8377-020☑️☑️

实景图&效果图

☑️☑️越秀·外滩樾售楼处电话:400-8377-020☑️☑️

☑️☑️越秀·外滩樾售楼处电话:400-8377-020☑️☑️


☑️☑️越秀·外滩樾售楼处电话:400-8377-020☑️☑️

「越秀·外滩樾」项目地块四至范围, 东至:梧州路,隔壁是中皇广场; 西至:hk270B-02,隔壁就是1933老场坊; 南至:周家嘴路 北至:柘皋路。

☑️☑️越秀·外滩樾售楼处电话:400-8377-020☑️☑️
项目将呈现49套低密风貌里弄住宅,面积约238-338㎡。


☑️☑️越秀·外滩樾售楼处电话:400-8377-020☑️☑️

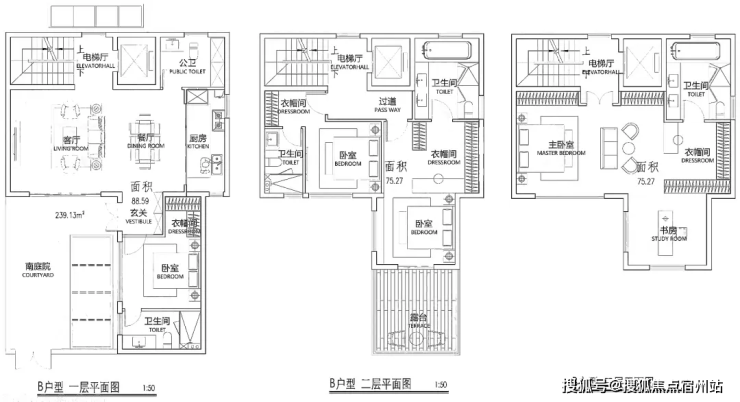
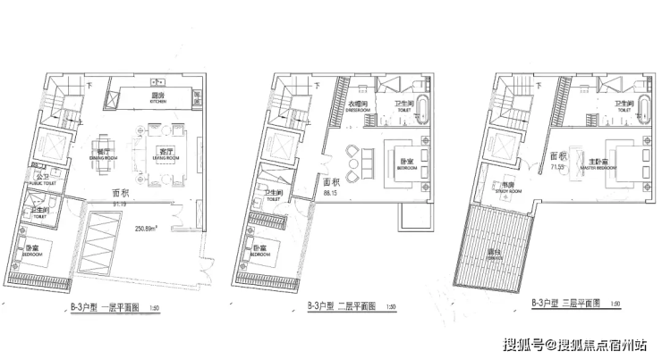
户型图如下:(过程稿仅供参考,最终以实际为准)

☑️☑️越秀·外滩樾售楼处电话:400-8377-020☑️☑️

☑️☑️越秀·外滩樾售楼处电话:400-8377-020☑️☑️


☑️☑️越秀·外滩樾售楼处电话:400-8377-020☑️☑️

基础信息
【项目名称】越秀·外滩樾
【开发商】上海漕越经济发展有限公司
【项目位置】上海市·虹口区·梧州路235弄
【项目类别】70年产权住宅
【项目类型】风貌别墅
【可售户数】48套(风貌)
【容积率】约1.3

☑️☑️越秀·外滩樾售楼处电话:400-8377-020☑️☑️
近两年虹口、黄浦、静安核心区风貌别墅相继面世,是对上海整个住宅或者说整个豪宅市场的命运改写和价值颠覆!
一方面,风貌别墅的珍贵,真谛不在于仿古,而是将特定时期的特殊历史基因通过建筑形式留存,转化成当代生活的诗意载体。
另一方面,目前我们能看到做的比较好的风貌别墅,地段非富即贵,在上海,这种级别的豪宅本身具备传承意义,拥有比普通豪宅更高的价值属性。
01
「越秀·外滩樾」
上海风貌别墅翘楚
☑️☑️越秀·外滩樾售楼处电话:400-8377-020☑️☑️
风貌别墅在上海,即便同样选址最核心的地段, 同样打造顶级产品,内里也有着非常具象的等级之分。
一是来源于紧俏供应与“尖货”稀缺的双重重压。
“物以稀为贵”在上海豪宅市场已经成为了几十年不变的法则,风貌别墅更是如此。
其初始地块来源的成片二集以下旧里, 经历了百年时间更迭,才有了这几年的集中城市更新, 按计划今年年底前会全部完成。

☑️☑️越秀·外滩樾售楼处电话:400-8377-020☑️☑️
换句话说, 在今年结束这一轮城市更新之后,上海可能未来几十年都不会再有风貌别墅的土地出让。
而且,已知的市面上部分风貌地块,也并非都是别墅,还有相当一部分是商业、保留建筑、还有高层/洋房类产品。
更可况,在当下,盘点整个上海所有已入市的风貌, 越秀·外滩樾作为以双拼&三拼为主的偏现代风的风貌别墅,稀缺性稳稳排进前三!

☑️☑️越秀·外滩樾售楼处电话:400-8377-020☑️☑️
☑️☑️越秀·外滩樾售楼处电话:400-8377-020☑️☑️
二是来源于历史传承和现代精神的极致对冲。
追溯上海石库门发展历史,早期传统的石库门住宅蕴含了许多时代特征,多样化的门头设计、老虎窗、山墙等建筑元素,都是建筑美学的典范。
但随着时代发展,进阶版的风貌在传承的基础上革故鼎新,动态衍生出了许多新的居住要求和审美需求,而 越秀·外滩樾对当下的这个变化其实是很敏锐的。
这个如果大家到了现场就会很清晰的感知到:
例如,在社区入户,目前已经完美呈现出来的,有强烈视觉冲击的立面 大量的红砖、红洞石及大面积的落地弧形玻璃搭配的相得益彰,整个门头既有厚重的历史感,又不失极简主义的现代美。

☑️☑️越秀·外滩樾售楼处电话:400-8377-020☑️☑️
又例如, 在“砖”这种材料的运用上,越秀·外滩樾更是做到了极致!用了 老砖、陶砖、釉面砖和御窑金砖 四种砖。
老砖是百年历史传承、陶砖是技艺上的推陈出新、釉面砖是现代美感与实用的碰撞、御窑金砖是定制的家族印记!

☑️☑️越秀·外滩樾售楼处电话:400-8377-020☑️☑️
在这样量级的项目上,单个的用材或许算不上特殊,但这样的历史厚重感再加上事无巨细的细节打磨,意味着 上海市中心终于出现真正具有传承意义的风貌别墅!
这是本质上填补了豪宅市场一种特殊供应的空白
也是 越秀·外滩樾真正在为上海创造出现风貌尖货作品的可能!
三是来源于核心地段继往开来的城市光环。
关于越秀·外滩樾所在的 虹口北外滩,目前已经成为上海能级最高的规划之一。
根据规划细则,这里将建设约480米高的上海北外滩中心,未来将与其他17栋180米以上的超高层建筑群,共同构筑起浦西最美天际线,业态更为丰富,产业结构也更为稳健。

北外滩与陆家嘴超高层建筑群、外滩万国建筑群,共同构成“黄金三角”。
而且,与陆家嘴、外滩相比,北外滩的建造速度更快, 部分地标建筑已经屹立江边,成为上海新的天际线,世界级会客厅已然初显峥嵘!
☑️☑️越秀·外滩樾售楼处电话:400-8377-020☑️☑️
当然,很多人不知道的是, 上海的开源也是从北外滩开始。
从早期的万国领事馆、到国内文豪学者的聚居地、北外滩承担了经济、文化、甚至军事交流职能,这里曾是世界了解中国的窗口,也是中国走向世界的开端。
最早的船厂、路灯、电话、电影院、证券交易所其实都在这里。
可以毫不夸张的讲,上海从开埠至今,虹口北外滩始终是上海真正的中心!

☑️☑️越秀·外滩樾售楼处电话:400-8377-020☑️☑️
☑️☑️越秀·外滩樾售楼处电话:400-8377-020☑️☑️
要说 内环目前现有的历史风貌区,虹口北外滩一定是正统所在。
这就注定了,越秀·外滩樾这种产品,不止在上海特定核心区才有,在全国更是不会、也不可能复制出来。