☑️☑️越秀外滩樾售楼处电话:400-8377-020☑️☑️虹口北外滩 低密风貌别墅
由越秀地产+临港集团联合打造
越秀临港虹口156街坊风貌别墅
【越秀·外滩樾】纯别墅社区
上海 虹口北外滩
☑️☑️越秀外滩樾售楼处电话:400-8377-020☑️☑️
风貌之上 世界堂前
建面约238㎡—338㎡
总价约4500-9000万
海派院墅三里外滩
立传别墅从你开启传承
展厅已开放,看房请提前预约

最新消息:虹口北外滩 低密风貌别墅临港越秀北外滩项目定名「越秀·外滩樾」展厅开放!
☑️☑️越秀外滩樾售楼处电话:400-8377-020☑️☑️

「越秀·外滩樾」项目地块四至范围, 东至:梧州路,隔壁是中皇广场; 西至:hk270B-02,隔壁就是1933老场坊; 南至:周家嘴路 北至:柘皋路。

☑️☑️越秀外滩樾售楼处电话:400-8377-020☑️☑️
日前,上海市规划和自然资源局对上海漕越经济发展有限公司虹口区嘉兴街道hk270b-04地块历史风貌保护项目进行了设计方案公示,项目未来将呈现48套低密风貌里弄住宅,面积约238-338㎡。

户型图如下:
(过程稿仅供参考,最终以实际为准)
236.25㎡A户型:

239.13㎡B户型:

☑️☑️越秀外滩樾售楼处电话:400-8377-020☑️☑️
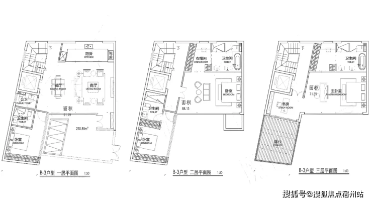
250.89㎡B-3户型:

C户型:

☑️☑️越秀外滩樾售楼处电话:400-8377-020☑️☑️
291.42㎡D户型

基础信息
【项目名称】越秀·外滩樾
【开发商】上海漕越经济发展有限公司
【项目位置】上海市·虹口区·梧州路235弄
【项目类别】70年产权住宅
【项目类型】风貌别墅
【可售户数】48套(风貌)
【容积率】约1.3

☑️☑️越秀外滩樾售楼处电话:400-8377-020☑️☑️




☑️☑️越秀外滩樾售楼处电话:400-8377-020☑️☑️



☑️☑️越秀外滩樾售楼处电话:400-8377-020☑️☑️

项目实景图
【一座码头 启航外滩百年世界史】
项目所在地北外滩,是百年前上海的“下海”地。作为上海开埠后第一座码头的诞生地,北外滩率先“开眼看世界”,海纳万国文化风潮,众多此后影响中国的创举在此诞生,是上海最早的“十里洋场”

(*示意图,图片来源于网络)
【一江一河 再立世界上海新传】
傲立“一江一河”交汇处(直线距离约1.1KM),未来将打造成为彰显上海城市核心竞争力的黄金水岸和具有国际影响力的世界级城市会客厅,出入之间,相逢城市高阶未来

☑️☑️越秀外滩樾售楼处电话:400-8377-020☑️☑️
(*示意图,图片来源于网络)
【北外滩 面向世界的上海新封面】
北外滩,与外滩、陆家嘴并称为上海的“黄金三角”。将以2座陆家嘴的商务体量规划,新天地2.0生活圈打造,成为上海跃升世界舞台的“中心发力”新引擎

(*示意图,图片来源于网络)
【中央商务区 未来上海腾飞引擎】
区域能级:总开发面积约840万方,40栋甲级写字楼城市地标:480米浦西第一高楼,19栋摩天大楼集群金融产业:2100+家金融企业赋能,资产管理规模超8万亿元,位居全市第一航运格局:4500+家航运企业集聚(上港集团、中远海运等),打造国际航运中心全球贸易:2500+家贸易企业入驻(摩亚方舟、银联商务等)新兴产业:129家新增高新技术企业,113家市区科技小巨人企业(数据来源:上海市规划局《北外滩地区控制性详细规划》)

(*示意图,图片来源于网络)

☑️☑️越秀外滩樾售楼处电话:400-8377-020☑️☑️
【立体交通 | 无界畅达世界 擎动城市脉搏】
全城畅达:
约360米新建路隧道(直线距离),快速直达陆家嘴CBD;
约670米外滩隧道(直线距离),直达外滩金融商业街以及老码头;
约150米北横通道(直线距离)贯通全城,快速通达虹桥机场/虹桥火车站;
约2.4公里大连路隧道(直线距离),直达浦东东方路、世纪大道、八百伴商业圈
四轨交汇:
轨交4/10号线海伦路站约850m(直线距离),3站南京东路,6站新天地。

(*交通路网示意图,仅供参考。本区位图仅用于本小区地理方位示意,非实际地图,相关信息并非按比例缩放。)
【核心商圈 | 高阶商业配套 国际摩登领潮】
商业配套方面项目约2公里内,多元繁华构筑封面商业圈
北外滩商圈直线距离约500米;
外滩商圈直线距离约1000米;
陆家嘴商圈直线距离约1500米;
瑞虹商圈直线距离约900米;

(*商圈距离示意图,仅供参考。本区位图仅用于本小区地理方位示意,非实际地图,相关信息并非按比例缩放。)
【高端医疗 | 优质三甲医院 护航健康生活】
三公里内四所三甲医院,全生命周期护航
新华医院(儿科专长);
复旦大学附属妇产医院;
上海市第一人民医院;
上海东方医院(血管外科专长);
【学府荟萃 | 全龄教育培优 一脉书香传承】
幼儿园:约1公里内6所幼儿园(直线距离),涵盖东余杭路幼儿园等3所示范级学校;
小学:约1.5公里内5所小学(直线距离),涵盖区重点四川北路第一小学;
中学:约1.6公里内6所中学(直线距离),1所市重点、2所区重点。一路之隔上海虹口二中心小学(在建中),约2.3公里市重点上海外国语大学附属外国语学校(直线距离)*施教区及就学政策以教育部门规划为准

(*示意图,图片来源于网络)
【滨江低密 | 丰盈自然绿地 城市诗意回归】
☑️☑️越秀外滩樾售楼处电话:400-8377-020☑️☑️
2.5公里北外滩滨江绿地(约800m直达),四川北路公园、和平公园、鲁迅公园3大公园环伺,于滨江和城市低密绿芯之间,肇启当代诗意生活传序。

(*示意图,图片来源于网络)


程绍正韬,建筑室内设计之东方主义集大成者,致力于东方文化的坚守与创新。他打破惯常的职业思维,将生活方式化作一种哲学态度,融入空间设计,让设计不止于作品。

李玮珉,撑起中国豪宅设计半壁江山,擅长为城市塑造文化符号建筑作品。他的作品更多用极简的方式来表明态度,崇尚简而高效的现代生活方式。庄重的建筑语汇,适时注入艺术、自然与美学,让空间充满想象力。

复刻百年前的高端工艺元素,让海派造诣世纪传承。清砖立柱、古典门头、封闭门窗、岩石山墙等经典海派建筑风貌转译,于历史和未来之间收藏百年上海。

☑️☑️越秀外滩樾售楼处电话:400-8377-020☑️☑️
(*本图片仅为方案过程讨论稿,并非交付标准。)

巷弄新生:内环内难得双拼别墅 ,超越风貌建筑的尺度感;
建筑新生:创新风貌规制,致微而筑的建筑腔调赏新;
美学新生:转译远东第一豪宅立面美学,收藏名门望族生活;
材质新生:豪宅同款奢砖、大面积奢石运用,定制家族排场;

(*本图片仅为方案过程讨论稿,并非交付标准。)
【41载越秀 | 万亿级开发商 与上海共卓越】
国内资产规模最大的地方驻港企业之一越秀地产,中国第一代商品房缔造者。41年越秀,30城300+项目,服务超100万业主;2023年销售额行业排名12,2023年TOP20销售业绩增长率最高房企。2024中国房企综合实力TOP9。入席北外滩世界会客厅,与上海共生长。(数据来源:克而瑞地产研究发布榜单《2023年1-12月.中国房地产企业销售榜top200》)

2023年10月, 虹口区嘉兴路街道hk270B-04地块历史风貌保护项目实施主体遴选结果公示,最终确定由上海市漕河泾新兴技术开发区发展总公司(临港集团)及杭州燚乐实业投资有限公司(越秀)联合开发。

「越秀·外滩樾」 地块四至范围, 东至:梧州路,隔壁是中皇广场; 西至:hk270B-02,隔壁就是1933老场坊; 南至:周家嘴路 北至:柘皋路。

☑️☑️越秀外滩樾售楼处电话:400-8377-020☑️☑️
日前,上海市规划和自然资源局对上海漕越经济发展有限公司虹口区嘉兴街道hk270b-04地块历史风貌保护项目进行了设计方案公示, 从规划方案上看,项目未来将呈现49套低密风貌里弄住宅,面积约235-338㎡。
越秀外滩樾直线距离外滩源仅约1.2公里, 直线距离北外滩商圈约500米,直线距离瑞虹商圈约900米,直线距离陆家嘴商圈约1500米!


巷弄新生:内环内难得双拼别墅 ,超越风貌建筑的尺度感;
建筑新生:创新风貌规制,致微而筑的建筑腔调赏新;
材质新生:豪宅同款奢砖、大面积奢石运用,定制家族排场;

在上海,外滩从来不只是地标,更是一种身份。 它是百年城市肌理的精神符号,是财富、文化品味的最终归宿。真正的顶级资产,从不属于个别人的价值认同,而属于一群人、一个阶层、甚至一座城市的共同价值共识。
越秀外滩樾首批房源推出仅半月便火速售罄,市场反响之热烈,堪称现象级。这不是偶然,而是顶层资源+创新产品力共振之下,一次必然的兑现!
☑️☑️越秀外滩樾售楼处电话:400-8377-020☑️☑️

上海豪宅圈的“孤品”资产!直线外滩约1.2公里+北外滩核心,越秀·外滩樾双拼、三拼别墅震撼登场!建面约238-338㎡海派院墅;总价在4300-9000w,超大附赠空间:花园露台及6.15挑空层空间,珍藏49席!约2500㎡“樾”心会所!

236.25㎡A户型:

239.13㎡B户型:

250.89㎡B-3户型:

☑️☑️越秀外滩樾售楼处电话:400-8377-020☑️☑️
C户型:

291.42㎡D户型

越秀外滩樾规划了部分双拼,三拼别墅产品, 比市面常见的风貌别墅具有更为私密的居住体验。

项目地上3层,自带庭院。 一楼的庭院,将是你栽花听雨的江南;三楼的露台,将是你仰望星空的避风港,在越秀外滩樾,自然将不是风景,而是生活本身。
项目最高约6.15米的地下挑高空间,可作私人艺廊、品茗禅室,或是一场永不散场的沙龙。 另外,项目的弧形玻璃引天光入画,落地窗将四季裁成框景。一扇窗,一面墙,皆是与世界的温柔对话。此刻,上海不再是远方,而是你窗前的晨昏,院里的四季。

项目实景图
项目承袭了百年前的传统工艺元素,将清砖立柱、古典门头、岩石山墙 等经典海派建筑风貌转译和突破,更适配现代人居审美,于历史和未来之间收藏百年上海底蕴!

项目实景图
保留历史肌理的老砖为基底,项目们以现代陶艺重译传统,研发陶砖。 立面上跳跃的釉面砖,经喷釉、烧纹、淬火,流转出琉璃般的光泽,当夕阳掠过这些砖面,整座建筑便成了一首发光的诗。

项目实景图
公区:首开先河的山水庭院,私密尊贵的会所! 越秀外滩樾,其精心打造的充满禅意的山水庭院瞬间抓住了小胖君的眼球。

项目实景图

项目实景图

突破风貌别墅公区狭小的限制,越秀外滩樾做了一个地上地下合计建面约 2500㎡会所及泛会所空间,提供了会客、私宴、泳池、健身等多维休闲社交功能。
更通过堆坡造景和下沉庭院,以山水隐奢之境,塑造沉浸式大师美学体验。 一石一木,一水一庭,尽是自然落笔。晨露未晞时,薄雾轻笼庭院;暮色四合处,斜阳漫染白墙。所谓大隐于市,不过如此!
在越秀外滩樾 ,项目以大地为宣纸用15米高差,临摹了一幅立体的《溪山行旅图》。当晨光掠过整座山水庭院,便活成了会呼吸的宋代画卷,每一处转折都在诉说"外师造化,中得心源"的东方营造哲学!
虹口区嘉兴路街道hk270B-04地块历史风貌保护项目概况如下:
1、四至范围:东至梧州路、南至周家嘴路、西至hk270B-02地块、北至柘皋路
2、土地面积:10790平方米
3、出让年限:70年
4、规划用地性质:一类住宅组团用地
5、容积率:1.3
6、建筑面积:14027平方米
7、起始总价:17.3亿
8、楼板价:123333元/㎡

复刻百年前的高端工艺元素,让海派造诣世纪传承。 清砖立柱、古典门头、封闭门窗、岩石山墙等经典海派建筑风貌转译,于历史和未来之间收藏百年上海。

(*本图片仅为方案过程讨论稿,并非交付标准。)
【41载越秀 | 万亿级开发商 与上海共卓越】 国内资产规模最大的地方驻港企业之一越秀地产,中国第一代商品房缔造者。41年越秀,30城300+项目,服务超100万业主;2023年销售额行业排名12,2023年TOP20销售业绩增长率最高房企。2024中国房企综合实力TOP9。入席北外滩世界会客厅,与上海共生长。(数据来源:克而瑞地产研究发布榜单《2023年1-12月.中国房地产企业销售榜top200》)


【一座码头 启航外滩百年世界史】项目所在地北外滩,是百年前上海的“下海”地。 作为上海开埠后第一座码头的诞生地,北外滩率先“开眼看世界”,海纳万国文化风潮,众多此后影响中国的创举在此诞生,是上海最早的“十里洋场”

(*示意图,图片来源于网络)
【一江一河 再立世界上海新传】 傲立“一江一河”交汇处(直线距离约1.1KM),未来将打造成为彰显上海城市核心竞争力的黄金水岸和具有国际影响力的世界级城市会客厅,出入之间,相逢城市高阶未来

(*示意图,图片来源于网络)
【北外滩 面向世界的上海新封面】 北外滩,与外滩、陆家嘴并称为上海的“黄金三角”。将以2座陆家嘴的商务体量规划,新天地2.0生活圈打造,成为上海跃升世界舞台的“中心发力”新引擎

(*示意图,图片来源于网络)
【中央商务区 未来上海腾飞引擎】 区域能级:总开发面积约840万方,40栋甲级写字楼城市地标:480米浦西第一高楼,19栋摩天大楼集群金融产业:2100+家金融企业赋能,资产管理规模超8万亿元,位居全市第一航运格局:4500+家航运企业集聚(上港集团、中远海运等),打造国际航运中心全球贸易:2500+家贸易企业入驻(摩亚方舟、银联商务等)新兴产业:129家新增高新技术企业,113家市区科技小巨人企业(数据来源:上海市规划局《北外滩地区控制性详细规划》)

(*示意图,图片来源于网络)
地块位于虹口区嘉兴路街道,区域居住氛围浓厚,配套成熟。 地块西侧的1933老场坊,早前是上海工部局宰牲场;而如今,成为了众多文艺青年打卡拍照的必游胜地。此次也要求保留工部局旧址建面约1800㎡。

交通配套: 地块距离地铁4、10、19号线换乘站海伦路站直线距离约600米,交通十分便捷。

☑️☑️越秀外滩樾售楼处电话:400-8377-020☑️☑️
【核心商圈 | 高阶商业配套 国际摩登领潮】 商业配套方面项目约2公里内多元繁华构筑封面商业圈,北外滩商圈直线距离约500米;外滩商圈直线距离约1000米;陆家嘴商圈直线距离约1500米;瑞虹商圈直线距离约900米;

教育配套: 华东师大一附中实验小学、虹口区第二中心小学、华东师大一附初中等优质配套;
商业配套: 1km左右就有集购物、餐饮、娱乐休闲、办公及服务式公寓为一体的综合商业体——瑞虹天地,商业面积55万方,包括太阳宫、月亮湾、星星堂、瑞虹坊四个部分。

☑️☑️越秀外滩樾售楼处电话:400-8377-020☑️☑️
虹口北外滩 低密风貌别墅
由越秀地产+临港集团联合打造
越秀临港虹口156街坊风貌别墅
【越秀·外滩樾】纯别墅社区
上海 虹口北外滩
风貌之上 世界堂前
建面约238㎡—338㎡
总价约4500-9000万
海派院墅三里外滩
立传别墅从你开启传承
展厅已开放,看房请提前预约
☑️☑️越秀外滩樾售楼处电话:400-8377-020☑️☑️