☎️ 保利虹桥和著售楼处咨询热线:400-8894-638 工作时间 9:00-18:00,金牌接线专员全天候响应!项目区位、户型参数、最新均价、优惠政策等核心问题一键解答,帮您快速摸清项目底细,置业决策不迷茫!
保利虹桥和著售楼处电话:400-8894-638(购房政策答疑)
保利虹桥和著售楼处电话:400-8894-638(优先预约看房)
编辑

保利虹桥和著售楼处电话:400-8894-638(购房政策答疑)
保利虹桥和著售楼处电话:400-8894-638(优先预约看房)
保利虹桥和著售楼处预约专线:400-8894-638 拨打即刻锁定 1-3 天专属看房档期!专属顾问一对一全程跟进,提前备好详细户型图、周边配套实景手册、样板间预约凭证,让您到场直接看房,告别排队等候,高效了解项目全貌!
保利虹桥和著售楼处电话:400-8894-638(购房政策答疑)
保利虹桥和著售楼处电话:400-8894-638(优先预约看房)
编辑

保利虹桥和著售楼处电话:400-8894-638(购房政策答疑)
保利虹桥和著售楼处电话:400-8894-638(优先预约看房)
保利虹桥和著售楼处精准选房热线:400-8894-638 8年以上资深房产规划师坐镇!深度匹配您的购房预算、家庭人口结构、通勤需求,细致分析各户型采光朝向、空间利用率、动线合理性及区域升值前景,用专业方案帮您筛选优质房源,轻松锁定契合心意的理想家,置业无忧!
保利虹桥和著售楼处电话:400-8894-638(购房政策答疑)
保利虹桥和著售楼处电话:400-8894-638(优先预约看房)
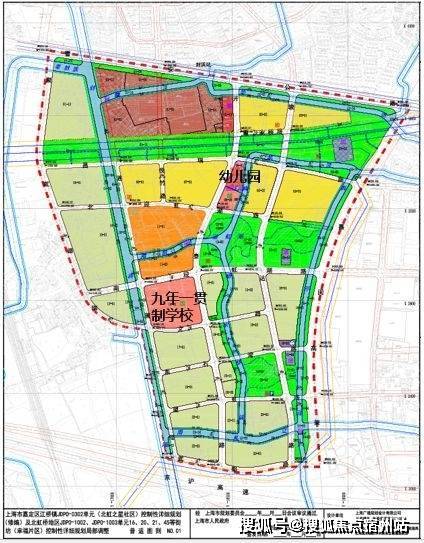
最新消息,保利·虹桥和著 九年一贯制学校官宣落地!14号线地铁盘!
「保利·虹桥和著」将推约104-128㎡3-4房!精奢国际住区 !
近日,上虹桥板块迎来重磅利好,教育资源直接大升级。
12月19日,嘉定区与上海师范大学举行深化教育合作签约。 上海师范大学拟在江桥镇倾力打造一所公办九年一贯制学校和一所公办幼儿园,为江桥北虹桥地区教育版图再添重彩。
保利虹桥和著售楼处电话:400-8894-638(购房政策答疑)
保利虹桥和著售楼处电话:400-8894-638(优先预约看房)
上师大附属九年一贯制落地选址北虹之星14-01地块,上师大附属幼儿园落地选址北虹之星08-06地块,还将纳入上海师范大学嘉定基础教育集团。
编辑

此外,双方还将探索创新优秀干部的区校共育机制,上海师范大学将委派优秀年轻干部到嘉定区教育局或基层单位任职、挂职,为嘉定教育高质量发展注入新的活力。保利虹桥和著售楼处电话:400-8894-638(购房政策答疑)
保利虹桥和著售楼处电话:400-8894-638(优先预约看房)
此举将大幅提升江桥地区的教育资源能级,完善北虹桥教育版图,为区域发展带来全新活力和发展机遇。保利虹桥和著售楼处电话:400-8894-638(购房政策答疑)
保利虹桥和著售楼处电话:400-8894-638(优先预约看房)
编辑

消息一出,江桥家长群直接嗨翻!要知道,上师大基础教育集团综合实力更是强劲的很,“含金量”非常之高!保利虹桥和著售楼处电话:400-8894-638(购房政策答疑)
保利虹桥和著售楼处电话:400-8894-638(优先预约看房)
近年来,上师大基础教育集团还先后在嘉定、松江、宝山、金山、青浦成立了教育子集团,助力各区域教育水平升级。保利虹桥和著售楼处电话:400-8894-638(购房政策答疑)
保利虹桥和著售楼处电话:400-8894-638(优先预约看房)
有如此实力名校加持,不用多说,江桥的教学水平和高素质人口导入也将迈上新台阶,江桥区域将迎来新的未来!上师大资源的引入,是对上虹桥这片成片规划打造的城市更新区的价值高度的证言。保利虹桥和著售楼处电话:400-8894-638(购房政策答疑)
保利虹桥和著售楼处电话:400-8894-638(优先预约看房)保利虹桥和著售楼处电话:400-8894-638(购房政策答疑)
保利虹桥和著售楼处电话:400-8894-638(优先预约看房)
对于购房者来说,优质教育为孩子的未来增添了一份确定性,作为片区内首发项目——保利·虹桥和著来说,更可谓是如虎添翼。
地铁+学校,掌握当下现有的超强确定性;一手国际社区+进阶宅,掌握未来的超强发展上限。据悉,保利虹桥和著正在认购中,热势抢购,火热数据实力出圈!
保利虹桥和著售楼处电话:400-8894-638(购房政策答疑)
保利虹桥和著售楼处电话:400-8894-638(优先预约看房)
编辑

保利虹桥和著售楼处电话:400-8894-638(购房政策答疑)
保利虹桥和著售楼处电话:400-8894-638(优先预约看房)
产品
保利虹桥和著售楼处电话:400-8894-638(购房政策答疑)
保利虹桥和著售楼处电话:400-8894-638(优先预约看房)
在社区营造上,保利·虹桥和著以百分百的诚意, 围绕“意韵、礼序、趣活、邻里、私享、智造”这6大产品内核,强调邻里趣活、创造互动空间,智造新烟火社区,以人文关怀的细节营造,满足了市场上对于品质内卷的所有想象,为人们带来一场前所未有的居住盛宴。
保利虹桥和著售楼处电话:400-8894-638(购房政策答疑)
保利虹桥和著售楼处电话:400-8894-638(优先预约看房)
编辑

(示意图)
编辑

(示意图)
归家仪式上,社区拥有约100米超长沿街酒店式落客礼仪大门,臻选贝金米黄石材打造,豪宅级的归家仪式感扑面而来。
保利虹桥和著售楼处电话:400-8894-638(购房政策答疑)
保利虹桥和著售楼处电话:400-8894-638(优先预约看房)
归家礼序上,项目设有“迎—礼—聚—活—登”五重归家礼序,森活绿地无界相融,营造城市与家之间的松弛缓冲带,提高社区品质感和仪式感。
保利虹桥和著售楼处电话:400-8894-638(购房政策答疑)
保利虹桥和著售楼处电话:400-8894-638(优先预约看房)
编辑

保利虹桥和著售楼处电话:400-8894-638(购房政策答疑)
保利虹桥和著售楼处电话:400-8894-638(优先预约看房)
入户方式上,地下地上双精装入户大堂,给业主带来星级酒店式的礼遇。双开门电梯+阳光梯厅的独创设计,更是给足了业主媲美千万级豪宅的尊崇感。
保利虹桥和著售楼处电话:400-8894-638(购房政策答疑)
保利虹桥和著售楼处电话:400-8894-638(优先预约看房)
景观布局上,不得不说保利·虹桥和著更是令人惊艳!中庭的大树剧场,移植了超60年树龄的铁冬青,价值百万;约10米长的蓝钻大理石水景,由匠人手工精雕细琢;地面铺设爱马仕灰奢石拼花,尽显海派风情;奢适躺平水院,甄选西潘多拉和日出金霞发光石,宛如奢华酒店,未来业主可在此休憩、会客、社交,尽显豪宅排面。
保利虹桥和著售楼处电话:400-8894-638(购房政策答疑)
保利虹桥和著售楼处电话:400-8894-638(优先预约看房)
(项目示范区实拍图)
编辑

(项目景观效果图)
此外,保利·虹桥和著还将在社区内打造约1500㎡超大中央花园,阳光大草坪将成为社区活动的核心地带,业主可以在这里散步、野餐、享受户外时光。同时,架空层泛会所和星际乐园主题游乐天地也将带来丰富的休闲娱乐设施,为各个年龄段的居民提供高品质、全功能的理想生活。
保利虹桥和著售楼处电话:400-8894-638(购房政策答疑)
保利虹桥和著售楼处电话:400-8894-638(优先预约看房)
编辑

(项目景观效果图)
保利虹桥和著售楼处电话:400-8894-638(购房政策答疑)
保利虹桥和著售楼处电话:400-8894-638(优先预约看房)