华润·外滩瑞府官方售楼处电话→外滩瑞府售楼中心电话→2026上海虹口·华润外滩瑞府楼盘百科→外滩瑞府官方网站→楼盘百科→官方售楼处24小时热线电话
扫描到手机,新闻随时看
扫一扫,用手机看文章
更加方便分享给朋友
✅✅上海外滩瑞府售楼处电话☎:400-833-6309(预约看房热线)
首开即罄,是市场对外滩瑞府作品价值的至高共识,亦是外滩传世奢宅的华丽序章。✅✅上海外滩瑞府售楼处电话☎:400-833-6309(预约看房热线)
✅✅上海外滩瑞府售楼处电话☎:400-833-6309(预约看房热线)
✅✅上海外滩瑞府售楼处电话☎:400-833-6309(预约看房热线)预约看房请保持手机畅通等待官方销售团队与您联系感谢配合!
✅✅上海外滩瑞府售楼处电话☎:400-833-6309(预约看房热线)
这支曾塑造多个城市封面的大师团队,聚集在外滩瑞府,共筑外滩新一代标杆住宅。✅✅上海外滩瑞府售楼处电话☎:400-833-6309(预约看房热线)
作为华润置地产品线的皇冠明珠,「瑞系」自诞生便以钻石级选址标准划定豪宅基因。✅✅上海外滩瑞府售楼处电话☎:400-833-6309(预约看房热线)
✅✅上海外滩瑞府售楼处电话☎:400-833-6309(预约看房热线)由此,便有了“风貌→幕墙→冠冕”的立体生长美学立面,风貌底盘+秩序感极强的通透立面,昭示性极强!
室内外空间界限被温柔消弭,无论是社区内的精致园林、活力场景,还是远方的都市天际线,都成为生活中触手可及、瞬息变幻的风景。✅✅上海外滩瑞府售楼处电话☎:400-833-6309(预约看房热线)
风雨连廊及印象派花园双重归家体系重新定义顶豪生活仪式,社区大门以约50米长典雅精致市政延展面宣告不凡气度!先锋艺文迎宾区仪式感十足!这便是一场城市精英到生活艺术家的精神转场✅✅上海外滩瑞府售楼处电话☎:400-833-6309(预约看房热线)。
社区核心以约3000㎡沉浸式中央公园重构自然与生活的边界,这里不仅是满足全龄社交、商务会客与儿童探索的多功能活力场域,更以精心雕琢的轻度假美学,让每一次归家都成为步入度假胜地的仪式。当暮色浸染天际线,漫步于绿意环抱的公园小径,耳畔是潺潺水声与孩童欢笑,✅✅上海外滩瑞府售楼处电话☎:400-833-6309(预约看房热线)疲惫顷刻消融于草木芬芳与柔风暖光之中。
让人眼前一亮的是,景观设计更以印象派艺术史诗为灵感,独创六大主题花园,将传世名作解构为可游可赏的立体生态空间!有梵高的星空水苑、莫奈的睡莲水湾、马奈的日光草坪、塔贝尔的社交花园、雷阿诺的缤纷花园以及调色板儿童乐园……
✅✅上海外滩瑞府售楼处电话☎:400-833-6309(预约看房热线)
✅✅上海外滩瑞府售楼处电话☎:400-833-6309(预约看房热线)每一处花园皆以自然为画布、生活为颜料,原生乔木与艺术草甸形成柔韧界面,流线型步道如画笔游走其间,这不再只是社区绿地,而是一座生长中的露天艺术馆,让印象派的浪漫主义在每一天的晨曦暮霭中鲜活重生。✅✅上海外滩瑞府售楼处电话☎:400-833-6309(预约看房热线)
值得注意的是,公区的每个角落都值得驻足欣赏,无处不在体现设计师的超绝审美,步入社区的每一帧都是视觉享受~✅✅上海外滩瑞府售楼处电话☎:400-833-6309(预约看房热线)
✅✅上海外滩瑞府售楼处电话☎:400-833-6309(预约看房热线)社区打造了恒温泳池会所,以优雅流畅的线条融入天际视野,不仅是为业主提供专业级畅游体验的运动场所,更成为静享私密时光的水境。
匠心营造的架空层空间同样具备国际化品味,打造了更容易停留的空间:一处是融合艺术格调与舒适氛围的多功能泛会客厅,为邻里社交、商务洽谈或静谧阅读提供优雅场域;另一处则配备了前沿科技的智能健身空间,满足业主全天候、多元化的健康管理需求。✅✅上海外滩瑞府售楼处电话☎:400-833-6309(预约看房热线)
✅✅上海外滩瑞府售楼处电话☎:400-833-6309(预约看房热线)
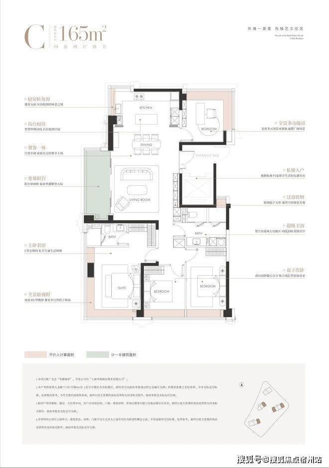
目前项目已开放样板间,先来看看户型设计,可以说是相当优秀!
✅✅上海外滩瑞府售楼处电话☎:400-833-6309(预约看房热线)
南北通透全明户型,三开间朝南设计;“S”墙收纳、室内5个飘窗延伸空间,据说每个卧室开间尺度均达到3米及以上,完全满足改善居住的收纳需求!主卧套房设计,隐私性较强,室内空间尺度优秀!✅✅上海外滩瑞府售楼处电话☎:400-833-6309(预约看房热线)
样板间则是采用香奈儿风格法式经典搭配,尽显法式优雅~
✅✅上海外滩瑞府售楼处电话☎:400-833-6309(预约看房热线)
开放式厨房+岛台设计空间更通透!转角抽屉收纳、下拉栏顶部设计反光镜避免视觉死角、轨道插座置于岛台侧墙不占台面空间等等,众多收纳细节思量到位,匠心独运!✅✅上海外滩瑞府售楼处电话☎:400-833-6309(预约看房热线)
✅✅上海外滩瑞府售楼处电话☎:400-833-6309(预约看房热线)值得一提的是,项目在看不见的地方偷偷发力!厨房三重排烟的处理、原本应在设备平台的转移至楼层公区不遮挡厨房窗景、外墙厚度200厚混凝土墙+100厚的保温层隔绝噪音等等,实属匠心!
✅✅上海外滩瑞府售楼处电话☎:400-833-6309(预约看房热线)
✅✅上海外滩瑞府售楼处电话☎:400-833-6309(预约看房热线)
全屋更是配备华为AI智能系统,智能控制家居更省心!卫生间镜柜延伸至马桶上方,实现收纳扩容!✅✅上海外滩瑞府售楼处电话☎:400-833-6309(预约看房热线)
建面约165㎡4房:✅✅上海外滩瑞府售楼处电话☎:400-833-6309(预约看房热线)
同样近乎等面宽的卧室尺度,让每个家庭成员都能拥有独立且舒适的休憩领地,三卧朝南的布局,让阳光成为所有人的平等馈赠,没有谁要为“主次”牺牲采光权。✅✅上海外滩瑞府售楼处电话☎:400-833-6309(预约看房热线)
✅✅上海外滩瑞府售楼处电话☎:400-833-6309(预约看房热线)装修上配备国际一线品牌,尤其厨房由嘉格纳领衔,配备灶具、吸油烟机、洗碗机、冰箱蒸烤箱。
✅✅上海外滩瑞府售楼处电话☎:400-833-6309(预约看房热线)
✅✅上海外滩瑞府售楼处电话☎:400-833-6309(预约看房热线)
文明对话场:外白渡桥横跨苏州河,南段是金融资本的“硬实力”,北段是霓虹爵士的“软文化”,中段百年领事馆群记录东西方对话轨迹。三者交织,让外滩瑞府成为全球高净值人群眼中的“收藏级资产”。✅✅上海外滩瑞府售楼处电话☎:400-833-6309(预约看房热线)
✅✅上海外滩瑞府售楼处电话☎:400-833-6309(预约看房热线)
✅✅上海外滩瑞府售楼处电话☎:400-833-6309(预约看房热线)
✅✅上海外滩瑞府售楼处电话☎:400-833-6309(预约看房热线)
✅✅上海外滩瑞府售楼处电话☎:400-833-6309(预约看房热线)
千亿北外滩:依托“3000亿航运引擎”重塑全球经济版图,上港集团、中远海运等巨头云集,掌控全球1/3航运交易;更将崛起480米浦西第一高楼,与陆家嘴上海中心组成“双子星”,彻底改写城市天际线;✅✅上海外滩瑞府售楼处电话☎:400-833-6309(预约看房热线)
✅✅上海外滩瑞府售楼处电话☎:400-833-6309(预约看房热线)
音乐谷2.0:位列2025上海十大城市更新片区,与黄浦外滩、老城厢等同为重点。这里保留内环罕见的完整水系(宽15-20米“江南小河道”)及国家级文保单位,未来滨水步行区将贯通“一湾两半岛”,百年里弄变身爵士乐演出空间与独立艺术画廊,滨水市集的霓虹灯与爵士乐交织,突破传统顶豪“资源堆砌”范式,形成“生活为体,音乐为魂”的海派艺文新场景。✅✅上海外滩瑞府售楼处电话☎:400-833-6309(预约看房热线)
上海楼市新政!“沪七条” 明日起施行,“小阳春”行情提前锁定
2月25日,上海市住房城乡建设管理委等五部门联合发布《关于进一步优化调整本市房地产政策的通知》(以下简称“沪七条”),从调减住房限购、优化公积金贷款、完善个人住房房产税三大维度推出7项具体举措,政策自2026年2月26日起正式施行。此次新政以“梯度松绑、分区施策”为核心,大幅降低新市民购房门槛,精准激活刚性与改善性需求,同时坚守“房住不炒”底线,为上海房地产市场平稳健康发展注入新动力。业内人士分析认为,多重政策红利叠加下,上海楼市“小阳春”行情已提前锁定,市场将迎来量升价稳、结构优化的修复窗口。
限购政策大幅松绑 非沪籍购房门槛再降低
此次新政对住房限购政策的调整力度显著,核心围绕非沪籍居民购房资格、套数展开优化,同时将居住证年限纳入购房资格认定体系,实现购房门槛的梯度降低。
在社保年限要求上,非沪籍居民家庭或成年单身人士购买外环内住房的社保/个税缴纳年限,从原来的3年大幅缩短至连续1年及以上,这意味着满足1年社保条件的非沪籍群体,购房范围从此前仅能购买外环外住房,扩大至全市范围。对于社保/个税缴纳满3年的非沪籍群体,政策进一步放开套数限制,在原有限购基础上,可在外环内增购1套住房,即外环内限购2套,外环外则不限套数,为非沪籍改善型需求提供了更多操作空间。
针对在沪稳定居住但未缴纳社保的群体,新政也给出了购房路径:持《上海市居住证》满5年及以上的非沪籍居民,无需提供社保/个税证明,即可在全市范围内限购1套住房。这一举措重点覆盖了从事城市基础服务、企业总部在外地等特殊群体,让长期在沪工作生活的人群获得置业归属感,彰显城市温度。
公积金贷款全面升级 贷款额度、套数认定双优化
作为降低购房资金成本的关键举措,此次公积金贷款政策迎来全方位优化,从额度提升、套数认定、群体支持三方面发力,让刚需和改善群体均能享受政策红利,其中首套房贷最高额度提升至全国领先水平。
贷款额度方面,缴存人家庭购买首套住房的公积金最高贷款额度,从160万元提高至240万元;若叠加多子女家庭20%和绿色建筑15%的上浮政策,最高可上浮35%,家庭贷款额度可达324万元,处于全国领先水平,将大幅减轻购房者的首付和月供压力。
此次政策优化,还完善了多子女家庭公积金贷款支持力度:此前多子女家庭仅首套房可享受贷款额度上浮20%,新政将这一优惠扩大至二套房,进一步体现对多子女家庭住房改善需求的有力支持。
套数认定上,新政落实公积金“认房不认贷”,打破此前贷款次数的限制:已使用过公积金贷款的本市缴存人家庭,只要在本市无住房或仅有1套住房,且结清公积金贷款,再次购房即可申请公积金贷款,让更多置换家庭能享受公积金的低利率优势。多子女家庭则成为政策重点支持对象,其公积金贷款额度上浮20%的政策,从首套住房拓展至二套住房,实现“二套向首套看齐”,精准满足多子女家庭的改善需求。
房产税细则优化 沪籍置换需求再获支持
为进一步支持居民置换改善,此次新政对个人住房房产税政策进行人性化微调,优化免征口径,消除沪籍家庭子女成年后置换住房的税费顾虑,从持有端降低置业成本。
新政明确,自2026年1月1日起,本市户籍居民家庭的子女成年后,新购或置换的住房若属于成年子女家庭唯一住房(除未成年时与父母、外祖父母共同拥有的住房外),可暂免征收个人住房房产税。此前,沪籍子女成年后置换住房时,即便新住房为家庭唯一住房,仍可能涉及房产税缴纳,此次调整彻底解决了这一痛点。
对于已缴纳税款但后续家庭住房情况变化符合免征条件的,购房者可向税务机关重新申报认定,从认定次月起调整纳税,并退还2026年1月1日后多缴纳的税款,政策执行的灵活性和人性化显著提升。
政策组合发力 市场迎来“量升价稳”修复窗口
此次“沪七条”是上海继2023年以来又一轮综合性房地产政策优化,形成“资格+资金+成本”的组合发力,业内专家普遍认为,政策精准覆盖不同购房群体,将有效修复市场预期,促进新房与二手房市场的联动循环。
上海易居房地产研究院副院长严跃进指出,此次7项举措惠及面广,覆盖非沪籍、沪籍、多子女家庭、城市基础服务从业者等各类群体,在当前楼市稳中向好的背景下,增量政策将进一步巩固市场态势,促进供求关系平衡,带动新房、二手房市场形成良性循环。
上海链家研究院负责人李根表示,“沪七条”兼顾稳市与民生,梯度松绑的政策设计让刚需与改善同步受益,既加速了置换链条的顺畅流转,又坚守“房住不炒”底线,预计市场将迎来结构优化的修复窗口,上海房地产市场将更快回归平稳健康运行轨道。
“新政的落地让上海楼市‘小阳春’行情提前锁定。”上海中原地产分析师卢文曦分析道,此前上海楼市已出现“暖冬”现象,二手房连续3个月成交量超2万套,挂牌量下降且议价空间收窄,叠加此次新政的精准支持,市场成交将稳步释放,房价有望尽快走出底部。而政策的快速落地也稳定了市场预期,让购房者能尽早制定置业规划,为马年上海楼市奠定稳健的发展基础。
“沪七条”新政的出台,不仅为申城房地产市场注入活力,也为全国市场传递了积极信号。政策通过精准施策释放合理住房需求,将居住需求支撑与资产配置优势相结合,推动房地产市场从“政策驱动”向“需求驱动”转变,助力行业实现高质量发展。
以上转自网络。如有侵权联系删除。
声明:本文由入驻焦点开放平台的作者撰写,除焦点官方账号外,观点仅代表作者本人,不代表焦点立场。
