古北悦公馆(售楼处)-古北悦公馆销售中心(营销中心)-古北悦公馆楼盘欢迎您-小区环境-户型-价格-地址-楼盘详情-周边配套-售楼处电话-交房时间

搜狐焦点宿州站 2025-11-06 14:34:31
用手机看
扫描到手机,新闻随时看

扫一扫,用手机看文章
更加方便分享给朋友

☑️☑️古北悦公馆售楼处电话:400-8377-020☑️☑️

上海少见的51平的新房来了!紧邻古北的金虹桥板块,一处被市场誉为“都市隐珠”的新盘项目正在低调热销,即东苑·古北悦公馆。

实景图

☑️☑️古北悦公馆售楼处电话:400-8377-020☑️☑️

编辑

☑️☑️古北悦公馆售楼处电话:400-8377-020☑️☑️

观家新房注意到,该项目匠心打造建面约51-70㎡的一室户型(总价非常友好)及约118㎡的两室户型,恰逢其时地响应了新上海人首次置业更优区位的愿望,同时也可以满足了改善型购房的生活需求。

项目无需积分、准现房,持续热销中,均价8.9万,总价450-1150万!

当然,东苑·古北悦公馆的吸引力不止如此,不论从地段、产品还是性价比来看,在全上海新房市场中均是“拔得头筹”!

1、项目位于“古北国际社区、漕河泾开发区、徐家汇”之中的高能产业优越地段

2、中环旁醇熟配套,即刻拥有、无需等待

3、准现房、高颜值社区景观+超赞户型的产品力

☑️☑️古北悦公馆售楼处电话:400-8377-020☑️☑️

编辑

☑️☑️古北悦公馆售楼处电话:400-8377-020☑️☑️

☑️☑️古北悦公馆售楼处电话:400-8377-020☑️☑️

金虹桥是一个很特殊的存在,它是无可争议的闵行更高级地段,紧贴市中心,同时毗邻古北国际社区。可以说,金虹桥的新房供应是目前仅有的“住进古北”的选择!

将目光转移到产业上,东苑·古北悦公馆还能享受到漕河泾产业园的加持!

作为上海六大重要承载区之一, 漕河泾新兴技术开发区是目前国家级开发区中发展速度最快、单位面积投入和产出最高的区域之一!( 资料来源:漕河泾开发区官网)

当然,周边还有徐家汇、莘庄、虹桥为金虹桥源源不断输入产业人才。

金虹桥板块地处闵行区,紧贴中环线,相较于区内其他板块,它距上海市中心的距离具有优势,堪称闵行区的黄金地带。

居住在这样一个核心地段,意味着能够享受到成熟且丰富的城市配套设施,生活的便捷与品质得到了保障。

该项目与万象城、爱琴海和井亭天地等大型购物中心的距离仅咫尺之遥,为住户提供了生活便利。

图片来源于网络

☑️☑️古北悦公馆售楼处电话:400-8377-020☑️☑️

编辑

☑️☑️古北悦公馆售楼处电话:400-8377-020☑️☑️

这些商场不仅人气鼎沸,业态丰富多元,其营造的繁华氛围堪比市中心,让人们在闲暇之余漫步片刻,便能沉浸于媲美城市中心的购物休闲体验。

不得不提的就是东苑·古北悦公馆还是准现房销售!关于社区实际情况及景观设计肉眼可见!

项目建筑外立面精心选用高贵雅致的花岗岩石材,搭配质感细腻的铝板材料与透光性卓越的玻璃幕墙。

整体设计语言简练而大气,注重线条在构筑物表面的肌理表达与韵律美感。

外立面实景图

编辑

☑️☑️古北悦公馆售楼处电话:400-8377-020☑️☑️

这种设计理念旨在通过材质的碰撞与融合,赋予建筑物一种动态的生命力,营造出独特而和谐的视觉效果,不仅体现了现代建筑美学的精髓,同时也彰显了高端居住空间的品质与格调。

设计师匠心独运地融入了诸多精美绝伦的元素,营造出了一幅集优雅与实用为一体的生态画卷。

首先,步入社区,映入眼帘的便是主入口处的“星光连廊”,它不仅担当着引导业主归家的角色,更以其独特的设计成为社区的一道亮丽风景线,为每一次回家之旅增添仪式感和尊崇感。

实景图

☑️☑️古北悦公馆售楼处电话:400-8377-020☑️☑️

编辑

☑️☑️古北悦公馆售楼处电话:400-8377-020☑️☑️

接着,沿中心景观轴前行,一片翠绿盎然的阳光大草坪赫然呈现,它与周围特色景观组团相互映衬,仿佛置身于开阔的度假胜地。

晴空之下,阳光洒落在这片生机勃勃的草坪上,为业主们提供了理想的户外活动空间,使人尽享悠闲时光,体验度假般的惬意生活。

实景图

编辑

☑️☑️古北悦公馆售楼处电话:400-8377-020☑️☑️

镶嵌在园区景观中的艺术凉亭,以其新颖别致的造型矗立于镜面水池之上,水波与亭影交相辉映,给人以宁静致远的美感。业主们可在此悠然会客,沐浴阳光,亦可仰望星空,沉醉于诗意人生的浪漫意境。

实景图

编辑

☑️☑️古北悦公馆售楼处电话:400-8377-020☑️☑️

此外,东苑·古北悦公馆精心打造的“趣玩吧”儿童活动区,更是充分考虑到了孩童的成长需求与亲子互动的乐趣。

四季更迭的景观植被巧妙布局,共有20多种乔木、小乔、灌木等植物种类,营造出“四季有色”的美妙景象。

编辑

☑️☑️古北悦公馆售楼处电话:400-8377-020☑️☑️

示意图

无论是春日繁花、夏日浓荫、秋叶斑斓还是冬雪皑皑,都为孩子们提供了安全、美丽且富有趣味性的社交游玩环境,也让整个社区的生活充满了盎然生机与无穷活力。

☑️☑️古北悦公馆售楼处电话:400-8377-020☑️☑️

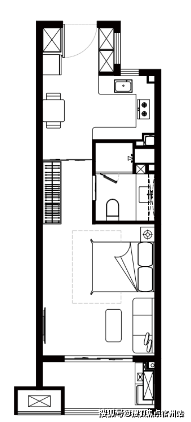
产品方面,项目打造建面约51至70平方米的一室户型及约118平方米的两室户型。

首先来看建筑面积约51㎡的户型:

编辑

☑️☑️古北悦公馆售楼处电话:400-8377-020☑️☑️☑️☑️古北悦公馆售楼处电话:400-8377-020☑️☑️

这款51平方米的独特户型,并非迎合市场上千篇一律的家庭居住标准,而是旨在打破常规,专为追求个性化生活方式和高效空间利用的现代都市人群量身定制。

尽管并非典型的“三口之家”配置,但其设计理念恰恰在于释放出对紧凑型居住空间无限可能的探索。

该户型摒弃了传统的布局框架,凭借精巧的空间规划和灵动的设计布局,赋予了每一寸空间独特的价值。

即便面积有限,却能在功能性和舒适度之间取得恰到好处的平衡,既能满足单身贵族对独立自由生活的向往,又可适应年轻夫妻或小型家庭对于品质生活的追求。

客厅、餐厅、甚至工作空间无缝衔接,拓宽了视觉效果和活动范围。同时,私密卧室区域则精心设计,保证了安静舒适的休息环境。每一处角落都被赋予特定的功能与格调,展现出精致而不失实用的现代居家风尚。

建筑面积约60㎡的户型:

编辑

☑️☑️古北悦公馆售楼处电话:400-8377-020☑️☑️

建筑面积约70㎡的户型:

编辑

☑️☑️古北悦公馆售楼处电话:400-8377-020☑️☑️

建筑面积约118㎡的户型:

编辑

☑️☑️古北悦公馆售楼处电话:400-8377-020☑️☑️

此户型以其宽敞的布局和卓越的空间感,为居住者提供了一处真正的舒适之所。

在满足基本居住需求的同时,充分考虑到了现代家庭对高品质生活的追求。一体化的餐厨空间,便于家人间的互动交流。

观景阳台将室外美景引入室内,拓展了居住视野,提升了生活情趣。此外,充足的储藏空间和周到的细节设计,处处体现了对居住品质的用心雕琢。

往期推荐

编辑

☑️☑️古北悦公馆售楼处电话:400-8377-020☑️☑️

落户撕开一个口子,上海房价要变天?

编辑

上海写字楼、公寓、厂房、酒店等大宗资产

编辑

☑️☑️古北悦公馆售楼处电话:400-8377-020☑️☑️

一文看懂!上海购房政策(2024最新版)

中环旁 · 金虹桥

古北臻境 · 公园美宅

编辑

☑️☑️古北悦公馆售楼处电话:400-8377-020☑️☑️

商业配套:周边的商业配套十分成熟,邻近华润万象城、爱琴海购物公园、高岛屋百货、阿拉城、老外街、韩国城等。

医院配套:武警上海市总队医院、上海第六人民医院、闵行区中医医院等。

交通配套:项目拥有成熟便捷的交通网络体系,周边有轨道交通9号线、10号线等,25号线虹桥镇站(待规划建设);延安高架、中环线、外环线环伺,四通八达,可以快速到达城市各个中心板块;约10km车程可通达虹桥机场、虹桥火车站。通过S20 、G60、G42 等主要高速路,快速畅达长三角各地。周边另有320路、709路、69路、865路、虹桥镇2路等众多公交线路,保障了居民出行便利。

生态资源:项目北侧毗邻约1.2万平米的运动主题公园(开发商代建),形成了天然氧吧。景观设置上涵盖层次丰富、季相分明的观赏性植物、健康跑道等,方便业主散心漫步、运动休闲。

编辑

☑️☑️古北悦公馆售楼处电话:400-8377-020☑️☑️

编辑

☑️☑️古北悦公馆售楼处电话:400-8377-020☑️☑️

主力户型:

四大主力精装户型,精致与舒适度合一 建面约51㎡-61㎡-70㎡一居/118㎡二居,精致雅居生活空间

【B1户型】建面约70㎡一房两厅一卫

「U型厨房」「双面采光」「南向阳台」「餐客一体」

编辑

☑️☑️古北悦公馆售楼处电话:400-8377-020☑️☑️

【B2户型】建面约50㎡一房一厅一卫

「U型厨房」「动静分区」「南向阳台」「玄关收纳」

编辑

☑️☑️古北悦公馆售楼处电话:400-8377-020☑️☑️

【B3户型】建面约60㎡一房一厅一卫

「U型厨房」 「动静分区」 「南向阳台」 「套房设计」

编辑

☑️☑️古北悦公馆售楼处电话:400-8377-020☑️☑️

【B4户型】建面约118㎡两房两厅两卫

「双套房设计」「多面采光」「满载收纳」「动静分区」

编辑

☑️☑️古北悦公馆售楼处电话:400-8377-020☑️☑️

2025年10月的上海楼市,一则“奇闻”在业内引发广泛讨论——地处闵行区金虹桥板块的古北悦公馆项目,自8月5日正式开盘以来,截至10月8日,两个月时间里网签数据始终定格在“0”,99套新房源一套未售。即便8月25日上海楼市新政(简称“825新政”)落地,试图为市场注入活力,也未能撬动该项目的销售僵局。

☑️☑️古北悦公馆售楼处电话:400-8377-020☑️☑️

作为深耕上海32年的本土房企东苑集团的新作,古北悦公馆的“零成交”并非偶然。这一现象不仅折射出单个项目在产品定位、规划设计等方面的问题,更成为观察当下上海楼市需求结构、房企决策逻辑与市场变化的典型样本。而对于东苑集团掌门人侯抗胜而言,这个项目的遇挫,无疑是其在区域深耕战略中遭遇的一次严峻挑战。

一、项目背景:古北外溢板块的“失意者”

☑️☑️古北悦公馆售楼处电话:400-8377-020☑️☑️

1.1 板块红利下的错位布局

古北悦公馆所处的闵行区金虹桥板块,长期以来被视为古北的外溢区域。古北作为上海传统的高端居住区,凭借成熟的配套、优质的教育资源和国际化的居住氛围,多年来始终是楼市中的“香饽饽”。受古北核心区域土地资源稀缺、房价高企等因素影响,周边的金虹桥板块承接了一部分外溢需求,此前楼市表现一直处于中等偏上水平,不少项目凭借“古北旁”的区位优势实现了不错的去化。

东苑集团作为深耕上海的本土房企,自1993年成立以来,32年间在上海布局了众多住宅、商业、办公、养老等领域的项目,且长期聚焦闵行区进行深度开发,对区域市场的熟悉度本应是其核心优势。古北悦公馆选择落子金虹桥,显然是希望借助板块的外溢红利,延续集团在区域内的开发惯性。

然而,市场的反馈却与预期大相径庭。在板块整体行情尚可的背景下,古北悦公馆为何会成为“例外”?答案或许藏在项目自身的规划与定位中。

1.2 项目基本概况:数据背后的潜在风险

根据公开信息,古北悦公馆于2025年8月5日正式开盘,推出的99套新房源备案均价达到9.15万元/㎡。从价格来看,这一水平与金虹桥板块的高端项目定位基本匹配,并未出现明显的价格虚高问题。但从产品端来看,项目存在两大致命缺陷。

其一,项目此次推出的一栋楼源于“租改售”。这一属性直接决定了其规划设计难以满足当前新房市场的居住需求——3梯8户的配置,在同类高端住宅项目中极为罕见。通常情况下,高端住宅多采用2梯2户、2梯3户的设计,3梯8户的格局常见于公寓或刚需类住宅,不仅会导致业主等待电梯的时间大幅增加,也会降低居住的私密性和舒适度,与项目试图打造的高端定位严重不符。☑️☑️古北悦公馆售楼处电话:400-8377-020☑️☑️

其二,户型面积与市场需求脱节。由于建筑原本定位为长租公寓,古北悦公馆的户型面积普遍偏小,主力户型为50-70㎡的一房,仅搭配少量118㎡的两房。而当前的上海楼市,早已进入以改善需求为主导的阶段。随着居民生活水平的提高,购房者对居住空间的要求不断提升,三房、四房等大户型产品更受青睐,即便是刚需群体,也更倾向于选择70-90㎡的两房户型,50-70㎡的一房户型受众范围被大幅压缩。

从时间轴来看,项目的关键节点清晰可查:2025年1月24日,古北悦公馆取得住宅交付使用许可证,成为准现房项目;2025年8月5日,项目正式开盘;2025年8月25日,上海“825新政”落地;2025年10月8日,开盘超两个月后,网签量仍为0。值得注意的是,在项目开盘前的2024年8月,曾出现过交付纠纷,当时业主联名撰写公开信,致信东苑集团董事长侯抗胜及管理层,反映相关问题。这一纠纷虽未直接影响此次开盘,但无疑为项目的口碑埋下了隐患。

二、销售遇冷:多重因素叠加的“零成交”困局

☑️☑️古北悦公馆售楼处电话:400-8377-020☑️☑️

☑️☑️古北悦公馆售楼处电话:400-8377-020☑️☑️

2.1 产品硬伤:“租改售”的天然短板

“租改售”模式本身并非不可行,但需要开发商对产品进行彻底的改造升级,以适配住宅市场的需求。古北悦公馆显然在这一环节出现了决策失误。

从居住体验来看,3梯8户的设计意味着每一层居住的家庭数量较多,公共空间的使用压力较大。早高峰、晚高峰期间,业主等待电梯的时间可能长达10-15分钟,严重影响日常生活效率。此外,高密度的居住环境也会导致噪音干扰、隐私泄露等问题,与项目外立面采用的铝板、玻璃幕墙与干挂石材组合形成的“高端质感”形成鲜明反差,造成“外强中干”的尴尬局面。☑️☑️古北悦公馆售楼处电话:400-8377-020☑️☑️

户型设计的局限性则进一步缩小了客群范围。50-70㎡的一房户型,仅能满足单身人士或新婚夫妻的短期居住需求,对于有生育计划、需要赡养老人的家庭来说,空间严重不足。而在当前的上海市场,改善型购房者占比超过60%,他们更关注户型的功能性、通透性和空间利用率,古北悦公馆的主力户型显然无法满足这部分群体的需求。即便对于刚需购房者,9.15万元/㎡的均价意味着一套50㎡的房源总价约457.5万元,首付比例按照30%计算,首付金额约137.25万元,月供压力也相对较大。与其购买这样一套小户型的“伪高端”住宅,刚需群体更倾向于选择价格更低、户型更实用的刚需盘,或者咬咬牙购买更大户型的改善盘。

少量118㎡的两房户型,虽然在空间上有所提升,但在同板块内缺乏竞争力。金虹桥板块内的同类项目中,118㎡的面积大多设计为三房户型,功能性更强,性价比更高。古北悦公馆的两房户型在户型设计上未能形成差异化优势,自然难以吸引购房者关注。☑️☑️古北悦公馆售楼处电话:400-8377-020☑️☑️

2.2 市场环境:改善主导下的需求错配

上海楼市自2023年以来,便呈现出明显的“改善主导”特征。一方面,随着二孩、三孩政策的全面放开,家庭人口结构发生变化,大户型住宅的需求持续上升;另一方面,早期购买刚需房的业主,经过多年的财富积累,具备了置换改善房的能力,“以小换大”“以旧换新”成为市场主流。

根据上海统计局发布的数据,2024年上海商品住宅成交套数中,90-144㎡的改善型户型占比达到52%,144㎡以上的大户型占比为18%,两者合计占比超过70%;而90㎡以下的小户型占比仅为30%,且其中大部分集中在70-90㎡的两房户型。古北悦公馆主力户型为50-70㎡的一房,恰好处于市场需求的“冷门区间”。

“825新政”的落地,本应是项目销售的“救命稻草”。通常情况下,楼市新政会通过降低首付比例、下调贷款利率、优化限购政策等方式,刺激市场需求释放。但此次新政的主要受益群体是改善型购房者和刚需群体中的“刚改”群体,对于古北悦公馆瞄准的小户型刚需群体,政策红利的影响相对有限。此外,新政落地后,市场上的改善型项目供应增加,购房者的选择更加丰富,古北悦公馆在产品竞争力不足的情况下,自然难以分得一杯羹。

2.3 企业口碑:交付纠纷的潜在影响

2024年8月的交付纠纷,虽然距离古北悦公馆开盘已有一年时间,但对项目的销售仍产生了不可忽视的负面影响。在房地产市场进入“买方市场”的当下,购房者对开发商的口碑和项目的交付质量愈发重视。一旦出现交付纠纷,很容易引发购房者的信任危机。

当时,业主联名致信侯抗胜及东苑集团管理层,反映的问题虽未公开具体内容,但从业主采取联名信的方式来看,问题可能涉及房屋质量、配套设施未达标、物业服务不到位等关键领域。这些问题若未得到妥善解决,会让潜在购房者对古北悦公馆的交付质量和后续服务产生担忧。毕竟,对于购房者而言,买房是一笔巨额支出,谁也不愿承担“买错房”的风险。

尽管古北悦公馆是准现房项目,购房者可以实地考察房屋的实际情况,但交付纠纷留下的“后遗症”,让不少购房者望而却步。在市场上有众多优质项目可供选择的情况下,购房者更愿意选择口碑良好、交付稳定的开发商和项目,古北悦公馆自然难以吸引足够的客户。☑️☑️古北悦公馆售楼处电话:400-8377-020☑️☑️

三、决策复盘:侯抗胜与东苑集团的战略失误

☑️☑️古北悦公馆售楼处电话:400-8377-020☑️☑️

3.1 产品定位:脱离市场的“想当然”

东苑集团长期聚焦闵行区开发,对区域市场的了解本应十分深入,但在古北悦公馆的产品定位上,却出现了严重的“想当然”。侯抗胜作为集团的掌门人,其决策直接决定了项目的走向。从项目的规划设计来看,东苑集团可能误判了市场需求,认为金虹桥板块作为古北外溢区域,小户型刚需产品会有稳定的市场需求。

然而,随着古北板块的不断成熟和金虹桥板块的发展,该区域的购房群体已经发生了变化。早期的外溢需求以刚需为主,但近年来,随着板块配套的完善、交通的升级,越来越多的改善型购房者开始关注金虹桥板块。东苑集团未能及时捕捉到这一市场变化,依旧按照传统的刚需定位打造产品,导致项目与市场需求严重脱节。

此外,“租改售”的决策也反映出东苑集团在成本控制与产品品质之间的失衡。将原本的长租公寓改造为住宅出售,可能是为了降低开发成本、缩短开发周期,但集团却忽视了“租改售”产品在规划设计上的局限性,未能投入足够的资金进行改造升级,最终导致产品存在明显的硬伤。

☑️☑️古北悦公馆售楼处电话:400-8377-020☑️☑️

3.2 风险把控:对交付纠纷的处理不当

2024年8月的交付纠纷,是东苑集团风险把控能力不足的体现。交付纠纷在房地产行业较为常见,但关键在于开发商如何处理。如果东苑集团能够及时、妥善地解决业主反映的问题,积极与业主沟通协商,或许能够挽回口碑,减少对后续项目销售的影响。

但从目前的情况来看,东苑集团可能未能妥善处理此次交付纠纷。一方面,纠纷问题可能并未得到彻底解决,导致业主不满情绪持续发酵;另一方面,集团可能缺乏有效的危机公关意识,未能及时向市场传递积极的信号,消除潜在购房者的顾虑。☑️☑️古北悦公馆售楼处电话:400-8377-020☑️☑️

对于侯抗胜而言,此次交付纠纷不仅是对集团项目管理能力的考验,更是对其危机处理能力的挑战。遗憾的是,东苑集团在这一环节的表现并不理想,为古北悦公馆的销售遇冷埋下了伏笔。

3.3 市场判断:对新政效果的过度乐观

声明:本文由入驻焦点开放平台的作者撰写,除焦点官方账号外,观点仅代表作者本人,不代表焦点立场。