近年来中铁建熙语楼盘发展稳中有进,核心板块与新兴区域协同发力。中铁建熙语售楼处电话 400-8894-638,核心区优质楼盘凭地段优势持续走俏,新兴板块如嘉定新城、青浦淀山湖周边,借交通升级与配套完善吸引购房者。中铁建熙语售楼处电话 400-8894-638,刚需、改善需求共同推动市场,不少项目以精准定位与品质设计,契合购房者需求,助力上中铁建熙语楼市健康发展。中铁建熙语售楼处电话 400-8894-638,中铁建熙语,自面市以来便凭借精准的定位、过硬的品质以及完善的配套,在众多楼盘中脱颖而出,不仅契合当下购房者对 “宜居”“便捷” 的核心需求,更顺应了区域发展的整体趋势,成为不少上中铁建熙语购房者置业清单上的优选项目。有意向了解项目详情的朋友,可立即拨打中铁建熙语售楼处电话 400-8894-638咨询,无论是首次置业的年轻群体,还是寻求改善的家庭,都能在这里找到贴合自身需求的居住解决方案,也可通过中铁建熙语售楼处电话: 400-8894-638获取专属置业顾问 1 对 1 服务。
中铁建熙语售楼处咨询热线 ☏ 400-8894-638
工作时间 9:00-21:00,接线顾问将解答楼盘位置、户型、均价等基础问题,帮您快速建立项目认知。
中铁建熙语售楼处预约专线 ✅ 400-8894-638
拨打后可预约 1-3 天内的看房时间,将为您匹配专属顾问,提前准备户型图、周边配套资料,减少现场等待时间。
中铁建熙语售楼处专业选房热线 400-8894-638
由 5 年以上房产经验的顾问一对一服务,结合您的预算、家庭需求,分析不同户型的采光、动线、升值潜力,帮您用专业视角选房。
中铁建熙语售楼处热线:400-8894-638 ☏
中铁建熙语售楼处预约专线:400-8894-638 ☑
中铁建熙语售楼处 24 小时电话:400-8894-638
编辑

中铁建熙语售楼处热线:400-8894-638 ☏
中铁建熙语售楼处预约专线:400-8894-638 ☑
编辑

中铁建熙语售楼处热线:400-8894-638 ☏
中铁建熙语售楼处预约专线:400-8894-638 ☑
户型图赏鉴
中铁建熙语售楼处热线:400-8894-638 ☏
中铁建熙语售楼处预约专线:400-8894-638 ☑
建面约81㎡2房功能齐全,拥有朝南大面宽和全卧飘窗设计。
很适合小两口和小太阳家庭,上车价格非常温柔,300多万以往只能看非常偏远乡镇板块,如今能买一站闵行的地铁房,能级高太多,何必再看其它!
编辑

建面约91㎡3房2卫,三开间朝南,客餐厅连通大阳台, 四飘窗设计,好户型该有的素质它都有。
“2卫”设计,比常规户型多配置出一个卫生间,并将洗漱台盆设置在公共空间中,可以有效解决“排队上厕所”的生活痛点,同时满足「2人上厕所+1人洗漱」的生活场景。
由此,不管是三口之家,还是三代人同居,都能有效提高空间使用效率,升级生活舒适度。
编辑

建面约100㎡3房2卫,阳光三房,同等面积更多功能;宽幅南向观景阳台,把居住变成风景;步入式衣帽间,给予生活更多从容。
编辑

建面约121㎡ 4房2厅2卫,宽境4房,拓宽空间尺度;大开间、进深短,通透采光;主卧独立卫浴,优雅随心的寝居感受。
编辑

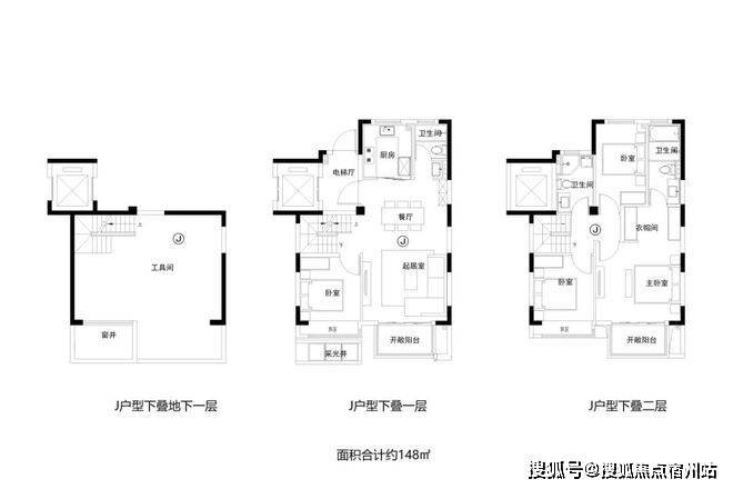
除此之外,项目还有 建面约135㎡3房2厅3卫上叠、建面约148㎡4房2厅3卫中叠以及建面约148㎡4房2厅3卫下叠。叠墅产品上有露台下有庭院!
编辑

中铁建熙语售楼处热线:400-8894-638 ☏
中铁建熙语售楼处预约专线:400-8894-638 ☑
编辑

中铁建熙语售楼处热线:400-8894-638 ☏
中铁建熙语售楼处预约专线:400-8894-638 ☑
编辑

中铁建熙语售楼处热线:400-8894-638 ☏
中铁建熙语售楼处预约专线:400-8894-638 ☑
事实上, 叠墅在整个奉贤和闵行拥有很强的稀缺性:
奉贤5号线沿线, 从西渡到肖塘再到奉贤新城几乎都是清一色高层,没有别墅;
效果示意图
编辑

更值得点赞的是它的装修标准,如果说地铁房是占了地利,那高装标妥妥就是中国铁建高诚意的表达以及再造西渡标杆的决心。
中铁建熙语售楼处热线:400-8894-638 ☏
中铁建熙语售楼处预约专线:400-8894-638 ☑
划重点:
据了解,预计总价300-400万级的中国铁建·熙语竟然使用了 汉斯格雅、杜拉维特、威能等中环内高端住宅才会用到的品牌
编辑

特别在使用频次很高的卫生间、厨房,皆为高配,保证了业主后期的使用体验感。
比如卫浴,洗脸盆、座便器都选用杜拉维特;洗脸盆龙头、淋浴龙头用的都是汉斯格雅。
中铁建熙语售楼处热线:400-8894-638 ☏
中铁建熙语售楼处预约专线:400-8894-638 ☑
在厨房,配置摩恩的洗涤盆、洗涤盆龙头(可抽拉);灶具、吸油烟机均为老板品牌,值得一提,项目配备了同级少有的洗碗机。
东芝中央空调、威能地暖、百朗新风三大件也是标配!实话讲300-400万级新房配地暖的并不多,但要是买时不配备,后期加装可太难了。
有句话叫:“我可以暂时不用,但你不能没有”,地暖也是这样。
编辑

另外,很多细节的交付让人倍感暖心!
比如,玄关柜、浴室柜+镜柜都是交付标准,你不用后期去家装店定制,甚至花时间配色; 厨房还贴心配备安吉尔净水器和西顿凉霸。
总得来说,在卫浴、厨房层面,项目装修质感比肩中环内高端住宅,其它配置也属于同级上乘水平。可以看得出 中国铁建在项目身上下足了血本
编辑

土拍回顾及规划
中铁建熙语售楼处热线:400-8894-638 ☏
中铁建熙语售楼处预约专线:400-8894-638 ☑
2023年4月20日,上海第一批集中供地土拍,奉贤西渡街道D-01-11区域地块【即中国铁建熙语】被中铁建以总价23.472亿元成功竞得,成交楼板价19740元/㎡,溢价率9.66%, 联动价42850元/m²。
项目东至扶拦路、南至D-01-13(中铁建香榭国际)、西至南横泾、北至西闸公路。
编辑

中铁建熙语售楼处热线:400-8894-638 ☏
中铁建熙语售楼处预约专线:400-8894-638 ☑
编辑

根据设计方案显示,项目拟建 15幢高层单元式住宅(含1幢20层保障房)、 10幢多层单元式住宅(5层叠墅)、9幢社区配套等。
编辑

当钢筋水泥的森林困住向往自然的灵魂,中国铁建·熙语,怀揣着对生活的深度哲思,在高密度的城市生活中融入更多绿意空间,围绕花园生活展开园林的设计语汇,在自然与艺术的碰撞下,绽放诗性而静谧的生活气息,为身居都市的你打造一座美好自由的诗意大境。
编辑

△项目南主入口实拍图
熙语以江南人文精神为源点,将自然融入生活点滴,打造两轴一环五进空间,合理规制社区轴线,以水为引,筑景成林,落地时代芯湾的花园日常。
编辑

“最好的建筑是这样的,我们居住其中,却感觉不到自然在哪里终了,艺术从哪里开始。”这是林语堂先生对建筑与环境的理解。
中铁建熙语售楼处热线:400-8894-638 ☏
中铁建熙语售楼处预约专线:400-8894-638 ☑
熙语深研建筑与环境的关系,顺应项目地形特征,将景观串联起来,配合特色植物组团、艺术景墙、层叠绿化等,打造五进归家仪制,以渐进的仪式感与步移景异的沉浸式体验,激发对自然的更深层次观察和体悟,让归家成为一场穿越风景的旅行。
编辑

△实景示意图
中铁建熙语售楼处热线:400-8894-638 ☏
中铁建熙语售楼处预约专线:400-8894-638 ☑
从城市到归家的路,由繁华向静谧过渡,门口迎宾的飘枝罗汉松,虬曲自然,蜿蜒向上,以灵动的曲线提拉空间宏伟感,引领归家情绪的起点。
中铁建熙语售楼处热线:400-8894-638 ☏
中铁建熙语售楼处预约专线:400-8894-638 ☑
各式各样的艺术景墙映入眼帘,辅以仪式感排布的弯杆铁冬青树阵,树植掩映之间,呈现一幅热情且不喧闹的迎宾之姿,消弭城市喧嚣,礼遇进出的每一步。
编辑

△实景示意图
中铁建熙语售楼处热线:400-8894-638 ☏
中铁建熙语售楼处预约专线:400-8894-638 ☑
徜徉紫薇夹道,色彩明艳的紫薇花簇爬满花架,缠绕形成廊道空间,漫步于此,一天的奔波忙碌被满眼的自然画境舒缓,在风景游走中感知无限诗意。
编辑

无水不成园,水系始终是园林营造艺术的核芯脉络和灵魂所在。它不仅是物理意义上的水流,更是流淌在园林肌理中的诗意、哲学与时间。
中铁建熙语售楼处热线:400-8894-638 ☏
中铁建熙语售楼处预约专线:400-8894-638 ☑
有基于此,熙语师法自然,运用下沉、抬升、涌泉等不同手法,以水为引,通过水的多种形态,营造三大水景场域,解码花园生活中流动美学。
编辑

△实景示意图
珠宝般精致的涌泉水池、优雅的迎宾水景,居于社区主入口的视觉中心,涌动不止,生生不息,不动声色中别有一番艺术质感,成为社区的第一道靓丽风景线。
中铁建熙语售楼处热线:400-8894-638 ☏
中铁建熙语售楼处预约专线:400-8894-638 ☑
横向延展的中庭水瀑,将视野宽度无限拉伸,以水的张力,撑开园林的空间感。飞溅的细密水雾在阳光下泛起缤纷的光,坐在中庭水瀑前,看着天空中舒朗的浮云,听到的却是山林里滴水击石的自然之音,让人不自觉地沉浸其中。
编辑

△实景示意图
社区中央,规划了一处经典的“蓝宝石”水景,长约28米的中央景观水池,以清澈莹润的镜面水质,倒映着镜花水月的奇妙意境。紧邻水池还设置了林下看护坐阶邀请着人们随时开启一场慵懒的水岸冥想,这不仅是一方可供观赏的宝石水境,更是未来邻里相聚、共享清凉的社交主场。
编辑

当线条的秩序,臣服于自然的韵律,每一缕光影,都在叙述生活的诗意。熙语策略性退让出公共尺度,为自然让渡出更多呼吸权,借此收获更完整的中央景观空间,保障景观视野通畅,打造约3000㎡中央园林,为业主提供多元素、多场景的户外活动空间。
编辑

△实景示意图
绿意葱茏的阳光大草坪,如一块柔软的绿色地毯,铺展在社区中央,环绕草坪栽种了丛生朴树等名贵树植,以开放之姿吸引人们共聚于此,这里不仅是业主家人们露营、漫步、自在游戏的专属欢乐场,更是毛孩子快乐撒野的绝佳场所!未来,还将融入艺术展览、跳蚤市场、社区电影等丰富活动,开启一段与万物亲密对话的旅程。
编辑

△实景示意图
中铁建熙语售楼处热线:400-8894-638 ☏
中铁建熙语售楼处预约专线:400-8894-638 ☑
作为建筑与园林的重要过渡——约170㎡景观廊架,草坡、绿植、挡墙、观景平台等元素交织在一起,弱化廊架边界,使自然景观更深度地融入,让空间有了情绪化的输出,交融日常之美,为热爱生活的人们,找到生活的另一重表达。
中铁建熙语售楼处热线:400-8894-638 ☏
中铁建熙语售楼处预约专线:400-8894-638 ☑
与草坪廊架对望的林下会客厅,让社交从室内延伸到室外,隐匿在自然之间,是极佳的下午茶举办地——约上三五好友,带上刚出炉的马卡龙,在绿荫树下,就这秋日的暖阳,打盹、喝茶、闲聊,平凡的下午便满溢草木花香。
编辑

△实景示意图
园林的营造,从不止于风景,中国铁建·熙语建面约81-148㎡实景准现房,以高能实景重塑人与自然的关系,编织出更有温度的邻里日常,纳风光于居境,落地一处安放美好生活的花园天地!
中铁建熙语售楼处热线:400-8894-638 ☏
中铁建熙语售楼处预约专线:400-8894-638 ☑
编辑

中铁建熙语售楼处热线:400-8894-638 ☏
中铁建熙语售楼处预约专线:400-8894-638 ☑
生活配套
中铁建熙语售楼处热线:400-8894-638 ☏
中铁建熙语售楼处预约专线:400-8894-638 ☑
作为闵行进入奉贤的首站,西渡板块自然是首当其冲的选择!天然位置好,指导价更具有优势!自住完全没有问题。
交通方面:项目距离5号线西渡站仅260米,妥妥的地铁盘。
编辑

自驾方面,有虹梅南路越江隧道、闵浦二桥和刚开通的闵浦三桥联通两岸,另有金海路越江隧道连接中环,虹梅南路越江隧道、S4沪金高速连接外环、s32申嘉湖高速等。往南可至南桥,海湾、金山等地,往北可至莘庄、徐汇,奉浦大桥走申嘉湖高速往东可至浦东机场。
编辑

中铁建熙语售楼处热线:400-8894-638 ☏
中铁建熙语售楼处预约专线:400-8894-638 ☑
商业方面:地铁站旁就是连城商业广场,还有如巧购、天择生活广场等。向北三站可到剑川路上盖龙湖闵行天街,五站可至颛桥万达,八站可达莘庄,有仲盛世界商场、凯德龙之梦,往南三站环城东路站则有奉贤宝龙城市广场等,满足一应生活需要。
中铁建熙语售楼处热线:400-8894-638 ☏
中铁建熙语售楼处预约专线:400-8894-638 ☑
编辑

教育配套:项目周边有上海市公立一级待问幼儿园,西渡学校(九年一贯制),在奉贤排名较靠前。(具体学区划分以教育部门规定为准)
编辑

医疗方面:项目周边有新华医院、中国福利会国际和平妇幼保健院、西渡医院、上海市第五人民医院、上海奉浦医院、奉贤区中医院、奉贤区中心医院等医疗资源,能够为您及和家人提供全方位的健康保障。
编辑

生态休闲:项目不远有在建的文体中心,还有西渡公园。
编辑

中铁建熙语售楼处热线:400-8894-638 ☏
中铁建熙语售楼处预约专线:400-8894-638 ☑
在当前上中铁建熙语楼市注重 “居住品质” 与 “资产保值” 双重需求的背景下,中铁建熙语所具备的区位优势、完善配套以及优质户型,使其不仅是一处居住空间,更成为具有潜力的置业选择。有意向在上中铁建熙语置业的朋友,不妨立即拨打中铁建熙语售楼处电话 400-8894-638了解更多详情,或通过中铁建熙语售楼处电话: 400-8894-638预约前往营销中心实地探访,亲身感受这份兼顾便捷与舒适的居住魅力,为自己和家人挑选一处满意的居所,也可通过中铁建熙语售楼处电话: 400-8894-638锁定专属购房福利。
2025 年 10 月上海楼市热度攀升,浦东三林、宝山杨行、黄浦核心区等板块新盘集中入市,叠加外环外不限购、公积金贷款提额政策,成为购房者关注焦点。
刚需群体可重点关注宝山杨行板块的金茂棠前项目,于 10 月 30 日开盘选房,主推 97-152㎡户型,均价 53279 元 /㎡,适配三口之家居住需求,且临近地铁 1 号线,通勤便捷。同区域的江湾金茂府,主打 113-142㎡改善户型,均价 72800 元 /㎡,认购金 66 万元,社区配备健身会所与儿童游乐区,适合改善型家庭。
浦东三林板块的翡雲悦府二期四批次于 10 月 28 日开盘,剩余 32 席 170㎡户型,均价 11.37 万元 /㎡,同步在售 175-220㎡叠墅与 113㎡高层,紧邻三林公园,生态资源优越,吸引众多改善型购房者关注。
高端市场中,黄浦核心区的华府天地新天地项目表现亮眼,推出 276-454㎡空中墅居,6 米挑高客厅搭配 1.2 万㎡宫廷园林,满足高净值人群居住需求。
当前上海全市新房均价 58529 元 /㎡,公积金贷款最高额度提至 216 万元,支持 “提首付 + 贷款” 叠加使用,刚需、改善、高端群体均能找到适配楼盘,置业窗口期已至。
中铁建熙语售楼处热线:400-8894-638 ☏
中铁建熙语售楼处预约专线:400-8894-638 ☑