弘安里位于虹口四川北路街道,历史风貌保护项目,四至范围:东至江西北路、南至海宁路、北至武进路、西至河南北路。

弘安里售楼处电话:400-8377-020
实景图,仅供参考
项目占地面积约3.7万㎡, 容积率仅1.1,建筑限高仅10米,为纯别墅项目,共121席房源。

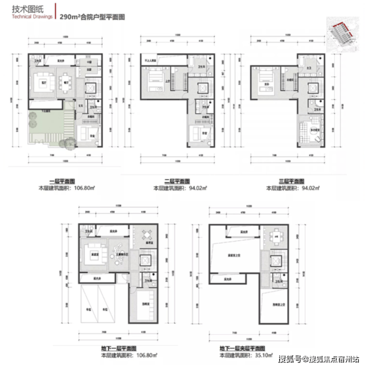
项目平面图,仅供参考
弘安里也是上海城心难得的 同时拥有苏州河和黄浦江的黄金水岸线的 纯低密项目。
目前项目 仅余少量建面430-758㎡传世大宅在售,总价约6000w-1.6亿。
项目优势
💎 纯粹低密风貌大宅,没有高低配,社区圈层统一;
💎 别墅为“合院式、大面宽”布局,空间通透性优秀;
💎 步行可达黄浦江、苏州河双水岸线(距离外滩步行约1.3km、苏州河约800米);
💎 项目周边有成片的城市更新,历史保护建筑和历史保护街坊环伺。
接下来,我们从 地段价值、产品力与空间设计、自然资源与景观独占性、社区品质与圈层纯粹度、开发商品牌与物业保障、资产流动性与增值潜力六大维度来详细测评。

弘安里售楼处电话:400-8377-020
项目效果图,仅供参考
Part 01
地段
百年“上只角”的当代新生
回溯百年前的上海, 弘安里所在的北外滩就是“上只角”。
沿黄浦江设有不少领事馆,北苏州河路、四川路上有邮政总局和公济医院(即上海市第一人民医院),北四川路一带也因为美国学校(1923年搬离去衡山路10号)造就了多伦路、溧阳路等地大宅林立。
有博主考究过1925年左右的上海十大豪宅社区,北外滩昆山花园路赫然在列,与淮海路、思南路等经典地段并肩。

图片来源:公众号-外滩以西
由此,北外滩沉淀下深厚的城市肌理与人文故事,成为海派文化的重要发源地。

图片来源上海发布
如今的 北外滩,正以“历史与现代交融”的姿态, 与外滩、陆家嘴共同构成上海核心“黄金三角”。
这里,将打造“与外滩、陆家嘴错位联动的新时代中央活动区”,成为上海面向世界的“会客厅”。

弘安里售楼处电话:400-8377-020
效果图,仅供参考
不同于传统CBD的“大拆大建”,这里保留了今潮8弄等历史文化街区,未来还将建成约180米超高层写字楼与商场,形成“老建筑与摩天楼共生”的独特城市界面。

图片来源:公众号-今潮8弄
从弘安里出发,步行即可抵达苏州河、北外滩滨江与外滩,漫步间尽览黄浦江与苏州河的双重水景;
向北可达四川北路商圈,向南衔接苏河湾万象天地,商业、文化资源触手可及。

弘安里售楼处电话:400-8377-020
数据来源百度地图
项目的交通便利性也极为突出:距10号线四川北路站不到500米,1公里内覆盖3、4、10、12号线四条轨交。自驾方面,临近内环高架、南北高架,8分钟直达外滩,20分钟覆盖陆家嘴、南京路商圈。

示意图,仅供参考
判断一处资产是否具备“永恒价值”,首看其地段能否经得起“百年检验”。
弘安里所在的北外滩,从历史底蕴到未来规划,都堪称上海城市封面的 “压舱石”。
Part 02
产品
海派文化的当代演绎
稀缺的土地,需要匹配“艺术品级”的产品。 弘安里以“保护、延续、匠心、新生”为原则,用心打磨,既还原了石库门的历史肌理,又解决了传统里弄的居住痛点。
建筑形态:“一栋一策”的里弄博物馆
弘安里堪称“上海石库门里弄的活化石”——项目原涵盖8个里弄组团,经优化后保留6个,覆盖4种石库门类型,跨越3个建筑时期。

效果图,仅供参考
设计团队采取“一栋一策”的定制化策略,通过重点保护、构件复用、更新改建等方式,最大限度延续原海派石库门风貌。


弘安里售楼处电话:400-8377-020
示意图,仅供参考
空间设计:颠覆传统里弄的现代人居
传统里弄“长进深、小天井、采光差”的痛点,在 弘安里被彻底重构,项目优化为“ 大面宽、合院式、高私密”,部分户型还巧妙地增设南院,并预留可供自身需求和喜好自由创造的功能空间。


弘安里售楼处电话:400-8377-020
示意图,仅供参考
建面约380m²无间设计的创意展示空间鉴赏
户型面宽达13米+,搭配一片式落地窗,通透感升级;

建面380㎡无间设计的创意展示空间图
创新L型格局,增设“耳房”区域,可灵活改造为茶室、私宴厅等,满足多元需求;

建面380㎡无间设计的创意展示空间图
围墙高度 约2.65-4.55米,隔绝外部视线,私密性更好;

实景图,仅供参考
二层配置双套房设计,分隔成两个既独立又融合的场域,还带一个大露台;

弘安里售楼处电话:400-8377-020
建面380㎡无间设计的创意展示空间图
三层主卧套间独占一层,配备独立衣帽间、双卫浴与一步式阳台,私密性拉满;

建面380㎡无间设计的创意展示空间图
负一层为“全能社交区”,可承载品酒、收藏、影音等功能,承载每一位家庭成员的闲情逸趣。

弘安里售楼处电话:400-8377-020
建面380㎡无间设计的创意展示空间图
户型鉴赏:(户型图仅供参考)
✦
•
✦


弘安里售楼处电话:400-8377-020


弘安里售楼处电话:400-8377-020
✦
左右滑动,查看更多
✦
户型图,仅供参考
弘安里现在有建面300㎡、建面380㎡、建面500㎡三个样板间,建议大家亲至现场品鉴体验。
值得一提的是, 项目在保留历史风貌的同时,巧妙融入现代生活需求,实现了历史质感与现代舒适的完美结合。
另外,项目为简装交付,预留了充足的定制空间,让业主可根据喜好打造专属的“海派生活场景”。
Part 03
自然资源与景观
传承海派花园洋房的精致与婉转
在社区园林景观的营造上,弘安里从海派洋房的历史记忆入手,结合当代审美需求,打造了 雅集六境、风华四艺、画境八园等多个景观主题与节点。让未来业主的每一次归家,都充盈着雅致的海派风情。

效果图,仅供参考
在社区的中轴上,从入口处「天马华章」迈步前行,「围炉生春」「通文艺荟」「听泉茶叙」「清赏博古」贯穿到「樾下雅集」,海派生活画卷昨日重现。

弘安里售楼处电话:400-8377-020
效果图,仅供参考
项目北侧「樾下雅集」已实景呈现。




弘安里售楼处电话:400-8377-020
左右滑动,查看更多
漫步在弘安里示范区,似曾相识的场景,是对海派印象的再确认,更是内心精神的感应。
Part 04
社区品质与圈层
上海塔尖圈层的“私密社交场”
弘安里虽然“套”着历史的形,但在配置上充分满足当代高净值人群需求。
项目规划 高端会所,涵盖恒温泳池、健身、瑜伽、多功能厅等区域。

实景图 仅供参考
约1:3超高车位比的高颜值地库,才足以满足塔尖家庭的需要。

实景图 仅供参考
豪宅的价值,不仅在于“居住空间”,更在于“圈层资源”。
弘安里以“低密纯墅+高定配套”,构建了上海塔尖圈层的“私密社交场”。
Part 05
开发商品牌
三大巨头联手打造
弘安里由招商&绿城&上海地产强强联手打造。
2021年,招商蛇口上海公司签约了800亿的上海城市更新基金,积极参与上海旧区改造,赋能城市有机更新,以弘安里为起点,拉开了“江河三里”的城市更新版图序幕( 江河三里:弘安里、桐安里、静安里)。

弘安里售楼处电话:400-8377-020
示意图,仅供参考
绿城中国,中国领先的优质房产品开发及生活综合服务供应商。其在上海开发的绿城前滩百合园、绿城潮鸣东方等豪宅项目,均成为现象级爆款。

前滩百合园实景图,仅供参考
上海地产(集团)成立于2002,主要业务为房地产开发、经营,实业投资,物业管理等。有信息曾显示,上海地产参与承担了全市约6成的城市更新任务。
除此之外,上海地产还进行了多元化的横向合作,比如:2021年6月,由上海地产集团作为主体,与招商蛇口、中交集团、万科集团、国寿投资、保利发展、中国太保、中保投资签署战略合作协议,共同落地了全国规模最大的城市更新基金(800亿)。
弘安里售楼处电话:400-8377-020
图源上海地产官网,仅供参考
Part 06
增值潜力
穿越周期的硬通货
上海风貌别墅的供应早已“锁死”:2019年城市更新思路转变后,成片二级以下旧里旧改于2022年全部结束,里弄资源无法复用。
据上海规划官网数据,全市风貌别墅理论上限约185万㎡,实际用于别墅的体量更是稀少,而容积率1.1的纯墅区更是稀缺。

弘安里售楼处电话:400-8377-020
数据来源上海发布
这种“先天稀缺性”决定了弘安里的“抗跌性”:
对比普通豪宅“20年即落后”的周期, 弘安里如同“老洋房”——时间越久,历史底蕴越深厚,价值越凸显。
小编认为, 弘安里的意义,早已超越“一座豪宅”——它是上海城市更新的“标杆之作”,是海派文化的“当代载体”,更是塔尖人群可遇不可求的“收藏级资产”。
对于真正的高净值人群而言, 选择弘安里,不仅是选择一处居所,更是选择一种“与上海百年历史共生”的生活方式,一份“穿越周期、永不褪色”的核心资产。
目前 项目仅余少量建面430-758㎡臻稀席位,或将成为上海塔尖圈层的“最后入场券”。
对项目有兴趣的朋友
欢迎点击下方报名通道预约咨询、参观
【免责声明】免责声明:本图文宣传资料涉及的项目周边环境、项目配套设施及房屋装修展示仅供参考,不构成开发商的交付承诺,具体以政府部门审定的规划设计文件及《商品房预售合同》的约定为准。政府教育主管部门不对预售房屋进行学区划分,项目周边学校等教育资源的介绍仅为提供相关信息参考,开发商不对项目交房后所属学区、学校做任何承诺,教育资源分配或学校/学区划分请以政府教育主管部门认定为准,相关情况如有变化,不再另行通知,请以最新宣传资料为准。本图文资料仅为示意效果视频,非按实际比例制作,仅供参考,不构成开发商的交付承诺。本图文宣传资料涉及的项目周边环境(如红线外市政景观、道路、绿地、河道等)及小区平面布局、房屋外立面、屋坡面与景观等均存在变更的可能,且涉及的项目周边配套(如学校、商场、医院、绿地)仅供参考,不构成开发商的交付承诺(注:开发商就学校均不承诺学区),最终以双方签署买卖合同约定和实际交付为准。我们所转载的所有文章、图片、音频、视频文件等资料版权归所有人所有,因非原创文章及图片等内容无法一一和版权者联系,如原作者或编辑认为作品不宜上网供大家浏览,或不应无偿使用,请及时通知我们,以迅速采取适当措施,避免给双方造成不必要的经济损失。本网页如无意中侵犯了媒体或个人的知识产权,请来电告知,我们立即予以删除。出街日期:2025年9月