中粮北外滩壹号 (售楼处) - 2026中粮北外滩壹号销售中心 - 环境 - 户型 - 价格 - 地址 - 楼盘详情 - 配套 - 电话 - 交房时间 - 配套 - 电话 - 楼盘欢迎您
扫描到手机,新闻随时看
扫一扫,用手机看文章
更加方便分享给朋友
中粮大悦城上海第五座壹号系,✅✅中粮北外滩壹号售楼处电话:400 - 8824 - 258✅✅“世界S湾壹号作品”——【中粮·北外滩壹号】开盘热卖中!
✅✅中粮北外滩壹号售楼处电话:400 - 8824 - 258✅✅
推售建面约185-228㎡天际大平层
过会均价143868元/m²✅✅中粮北外滩壹号售楼处电话:400 - 8824 - 258✅✅
最低单价11.75万起,总价约2188万
顶层地段+顶层社区+稀缺天际大平层价值,✅✅中粮北外滩壹号售楼处电话:400 - 8824 - 258✅✅错过再无!
准1梯1户设计,私享电梯厅独立入户,经典飞机户型,✅✅中粮北外滩壹号售楼处电话:400 - 8824 - 258✅✅三开间朝南,南北通透,动静分区,通风采光俱佳。
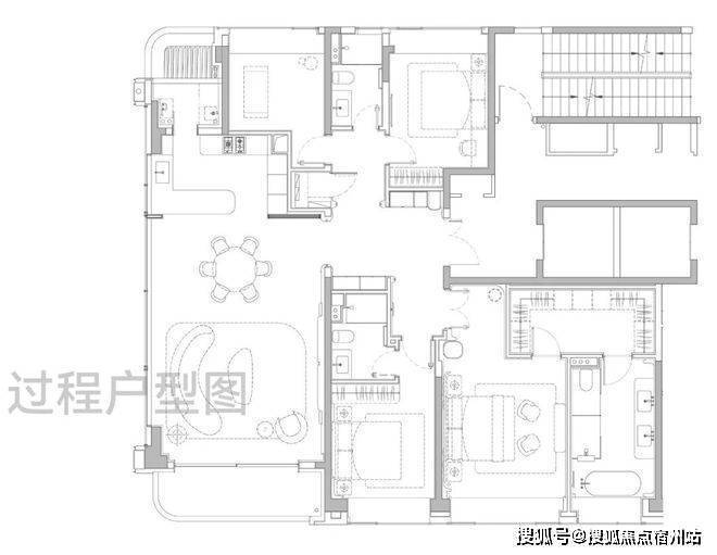
户型图赏鉴
✅✅中粮北外滩壹号售楼处电话:400 - 8824 - 258✅✅
185㎡四房奢阔大宅✅✅中粮北外滩壹号售楼处电话:400 - 8824 - 258✅✅
✅✅中粮北外滩壹号售楼处电话:400 - 8824 - 258✅✅
独立玄关做足私密性和仪式感;LDKB一体化设计的客餐厅面积达到约55㎡,✅✅中粮北外滩壹号售楼处电话:400 - 8824 - 258✅✅方正大气。
主卧套房尺度豪奢,可供业主配置步入式衣帽间,✅✅中粮北外滩壹号售楼处电话:400 - 8824 - 258✅✅卫生间做到双台盆+大浴缸+独立淋浴的顶配,尊崇感十足!
✅✅中粮北外滩壹号售楼处电话:400 - 8824 - 258✅✅
228㎡四房天际大宅
准1梯1户设计,私享电梯厅独立入户,户型尺度进一步升级,✅✅中粮北外滩壹号售楼处电话:400 - 8824 - 258✅✅当今顶豪新盘中极为稀缺的四开间朝南。
边厅面积超过50㎡,✅✅中粮北外滩壹号售楼处电话:400 - 8824 - 258✅✅给一家人提供了阔绰的交流空间;约270°环幕景观设计,带来极好的采光,并且高区可以直面陆家嘴城市天际线+黄浦江景观,视野相当震撼!
主卧大套房设计带超大主卫和衣帽间,面积约50㎡✅✅中粮北外滩壹号售楼处电话:400 - 8824 - 258✅✅,尺度感与市面上近300㎡的顶豪拉平。
室内设计由中国现代室内设计领域的领军人物——梁志天亲自打造✅✅中粮北外滩壹号售楼处电话:400 - 8824 - 258✅✅
在材质选用上,延续了壹号系的高端标准,✅✅中粮北外滩壹号售楼处电话:400 - 8824 - 258✅✅大量运用奢石、高难度弧形工艺以及国内外顶尖品牌。
如宝格丽大理石打造的西厨岛台、铂浪高的净水三合一水龙头和一体式大水槽、霍尼韦尔的前置过滤器、✅✅中粮北外滩壹号售楼处电话:400 - 8824 - 258✅✅全屋软水以及末端净水器系统、来自意大利法罗力燃气热水器、德国唯宝卫浴、当代龙头及花洒......还有全屋华为智能家居系统配置。这一套组合,是真正意义上的顶豪序列配置!
✅✅中粮北外滩壹号售楼处电话:400 - 8824 - 258✅✅
✅✅中粮北外滩壹号售楼处电话:400 - 8824 - 258✅✅
土拍回顾及规划
✅✅中粮北外滩壹号售楼处电话:400 - 8824 - 258✅✅
2023年9月5日,大悦城控股上海大区公司通过上海联交所成功竞得上海市虹口区北外滩116街坊地块(即中粮北外滩壹号)。地块位于北外滩红线内✅✅中粮北外滩壹号售楼处电话:400 - 8824 - 258✅✅,靠近大连路地铁站,与外滩、陆家嘴共同构成上海“黄金三角”。
项目四至范围:✅✅中粮北外滩壹号售楼处电话:400 - 8824 - 258✅✅东至保定路、hk367-02、hk367-05地块,南至昆明路,西至 hk367-03、hk367-04 地块,北至唐山路。
项目总用地面积约23849.2平方米,✅✅中粮北外滩壹号售楼处电话:400 - 8824 - 258✅✅容积率1.95,总计容建面4.65万㎡,是上海市中心罕见的无商办、无15%自持住宅、无5%保障房的纯住宅项目。
整体由一栋24F高层住宅和风貌别墅组成。高层共90套、产品面积段约180-228m²,风貌别墅共118套,产品面积段约130-350m²,✅✅中粮北外滩壹号售楼处电话:400 - 8824 - 258✅✅其中主力建面约203-205-230m²(占比约83%)
建筑立面✅✅中粮北外滩壹号售楼处电话:400 - 8824 - 258✅✅高层主体以仿红砖陶板+古铜色铝板+白色石材+玻璃幕墙的高标准结合,来完成建筑的美学表达。
✅✅中粮北外滩壹号售楼处电话:400 - 8824 - 258✅✅
风貌别墅则复刻海派石库门的韵味,但不同于大多数风貌别墅的格栅小花窗设计,「中粮·北外滩壹号」大幅增加窗墙比,✅✅中粮北外滩壹号售楼处电话:400 - 8824 - 258✅✅赋予相对沉闷里的里弄建筑,更通透、更明亮的特质!
公区方面,从归家社区大堂、大堂序厅、✅✅中粮北外滩壹号售楼处电话:400 - 8824 - 258✅✅以及入户单元大堂一路看过来,体现出一套脉络完整,层层递进的海派顶奢设计语言。
✅✅中粮北外滩壹号售楼处电话:400 - 8824 - 258✅✅
✅✅中粮北外滩壹号售楼处电话:400 - 8824 - 258✅✅
✅✅中粮北外滩壹号售楼处电话:400 - 8824 - 258✅✅
虽然项目仅有208户,仍然通过深挖三层,满配了高达约1800㎡的私享顶奢会所。按户均占有会所资源计来算,✅✅中粮北外滩壹号售楼处电话:400 - 8824 - 258✅✅这在当今顶豪圈是顶尖的水平。
会所由全球顶奢酒店设计领域的标杆——CCD香港郑中设计事务所执笔。目前看到的效果图,体现出一股醇正的老钱世家风,✅✅中粮北外滩壹号售楼处电话:400 - 8824 - 258✅✅设计品位远超市场同类豪宅。
社交宴会区内,私宴、茶室与专属酒吧一应俱全,✅✅中粮北外滩壹号售楼处电话:400 - 8824 - 258✅✅满足业主商务应酬到亲友小聚的各种场景需求。
瑜伽健身区,大幅落地窗引入自然光线,天花的格栅造型,✅✅中粮北外滩壹号售楼处电话:400 - 8824 - 258✅✅地面的复古拼花木地板,都透出浓厚的海派风情。
恒温泳池更是融入超级垂直花园庭院体系✅✅中粮北外滩壹号售楼处电话:400 - 8824 - 258✅✅,直接在泳池中做出美轮美奂的景观。
雅集共聚区内,除了常规的阅读,棋牌等功能外,✅✅中粮北外滩壹号售楼处电话:400 - 8824 - 258✅✅甚至设有一个舞蹈录音室,配置之高,沪上少见。
因为这是中粮大悦城的壹号系,珠玉在前,✅✅中粮北外滩壹号售楼处电话:400 - 8824 - 258✅✅小编完全不担心会所未来兑现的效果,甚至已经很期待看到未来会所开放展示的那一刻。
景观方面,设计了「八大主题场景」,✅✅中粮北外滩壹号售楼处电话:400 - 8824 - 258✅✅从百年梧桐下的静谧巷道,到充满未来感的艺术庭院,共同构成一个鲜活立体的生活剧场。
生活配套
交通方面:项目周围环绕三条地铁,✅✅中粮北外滩壹号售楼处电话:400 - 8824 - 258✅✅步行约360米到4、12号线大连路站,步行约560米到12、19号线(在建)提篮桥站。
地铁出行到人广和陆家嘴都只需要4站。未来,✅✅中粮北外滩壹号售楼处电话:400 - 8824 - 258✅✅随着在建的南北大动脉19号线贯通,可以直达世博、前滩等多个核心滨江段。
✅✅中粮北外滩壹号售楼处电话:400 - 8824 - 258✅✅
自驾上,项目往北约300米就是北横通道,往南车行约1公里,就是新建路隧道和大连路隧道直达浦东。从项目到陆家嘴、北外滩和外滩都在10分钟左右。
✅✅中粮北外滩壹号售楼处电话:400 - 8824 - 258✅✅
商业方面:项目出门就是高浓度的国际生活主场,步行可达北外滩来福士(约600米)、瑞虹天地太阳宫(约350米)、白玉兰广场(约1公里),✅✅中粮北外滩壹号售楼处电话:400 - 8824 - 258✅✅未来还将会兴建全球最火的时尚奢侈品商场之一的SKP。
半径3km内,还可以同时覆盖外滩、陆家嘴、苏河湾等“黄金三角”的繁华商业!✅✅中粮北外滩壹号售楼处电话:400 - 8824 - 258✅✅
教育方面:周边学府众多,优质教育资源密集。✅✅中粮北外滩壹号售楼处电话:400 - 8824 - 258✅✅北侧的长青学校是老牌的九年一贯制公办重点,南侧的上海中学国际部是知名民办名校,距离新华初级中学
(常年四校八大预录人数上百),新复兴初级中学,这两所虹口的顶尖民办学校也都在直线3KM内(新房不承诺对口学校,具体以实际为准)。
✅✅中粮北外滩壹号售楼处电话:400 - 8824 - 258✅✅
医疗方面:周边有复旦大学红房子妇产科医院,守护着每一个家庭的人生重要时刻。、以及三甲新华医院、上海市第一人民医院为健康生活保驾护航。
✅✅中粮北外滩壹号售楼处电话:400 - 8824 - 258✅✅
生态休闲:周边有22公顷无车漫步区、3.5万平方米航海公园与中央绿地相融,✅✅中粮北外滩壹号售楼处电话:400 - 8824 - 258✅✅3.4公里滨江休闲岸线
✅✅中粮北外滩壹号售楼处电话:400 - 8824 - 258✅✅
上海【中粮北外滩壹号】
售楼处电话☎:400-8824-258【售楼处预约热线】(一对一热情服务)
看房请务必提前致电销售确认时间,只有预约客户才能享受开发商提供的内部优惠以及专属的老客户推荐奖励!我们提供专业的一对一热情服务,助您以专业视角挑选理想的房产。
✅中粮北外滩壹号售楼处24小时电话:400 - 8824 - 258;首页网站最新介绍:房价、价格、折扣、规划、户型图、特价房、样板房、优缺点、得房率、车位比、折扣优惠、交通出行、周边配套、商业配套、销售中心位置、楼盘地址、户型介绍、营销中心电话、最新动态详情咨询。
✅免责声明:
✅1、文章中文字和图片之间无必然联系,仅供读者参考。
✅2、本文所述内容和意见仅供参考,不构成市场交易依据和投资建议。
✅3、文章图片来源于微信搜索或百度搜索引擎,我方非相关图片的原创作者,也不对相关图片及内容享有任何权利,如果侵权,请联系及时删除,联系电话:400 - 8824 - 258
✅✅中粮北外滩壹号售楼处电话:400 - 8824 - 258✅✅
今年上海城中村改造加速推进,为配合城市更新工作,上海多个区相继推行“房票安置”政策。
在金山、青浦、嘉定先行试点的基础上,这项政策已延伸至浦东、徐汇乃至普陀等中心城区,并各具特色。截至2025年底,上海已有8区推行房票制度,超过100组动迁居民用房票成功认购新房,带动销售金额显著增长。
已完成从郊区试点到中心城区全覆盖
上海“房票”制度的推进脉络清晰。2024年8月,金山发出全市首张房票,成为第一个“吃螃蟹”的区。
青浦和嘉定紧随其后,分别于2025年2月和7月出台了各自的实施办法。
进入下半年,中心城区开始加入房票阵营。10月,徐汇区的江南新村成为市中心首个明确采用“房票奖励”的旧改项目。
12月,普陀区在甘陵小区旧改征收中也试点“房票奖励”机制。
这一政策的快速发展得益于今年8月《上海市人民政府办公厅关于加快推进本市城中村改造工作的实施意见》的发布,明确各区可结合实际在改造项目中实施房票安置。
各区房票政策异同对比
上海各区的房票政策在核心原则一致的基础上,呈现出多样化的设计思路。
金山作为首个试点区,对选择房票安置的被补偿人,按照补偿款总金额的7%给予政策性奖励。
嘉定则创新性地推出了“现房+房票安置”的组合模式。动迁户先选定一套安置房用于临时居住,剩余安置面积折算成房票额度,再凭房票选购商品房。嘉定房票的另一大亮点是可拆分使用,降低了购房门槛。
青浦在房源要求上设立了更严格的标准——房源库必须由已取证且竣工的现房组成,避免了期房的交付风险。
进入中心城区,徐汇的政策有两大突破:使用范围覆盖全市的新房和二手房,且购买时间自2025年1月22日起都算在内。
普陀的试点方案中,选择货币补偿且购买本区居住产权房的被征收居民,可享受每平方米1000元的“房票奖励”,最低5万元。
多方共赢的政策创新
从实施效果看,房票政策已经在多个层面展现出积极成效。
在居民层面,房票给予了更大的选择空间。嘉定马陆镇彭赵村北片区作为试点项目,涉及268户村民,其中高达68%的选择了房票安置。
一位使用房票成功认购青浦华发虹桥四季项目的动迁居民表示:“以前动迁房的地段、楼层、户型都没法自主选择,全靠抽签,像开盲盒。”
在市场层面,房票已成为商品房去库存的重要抓手。截至2025年11月底,嘉定区四个项目中已有538户村民选择房票,涉及房票金额33.67亿元。
开发商也积极回应,为房票客户提供了多样的激励措施,如房价优惠、车位抵用券、家电大礼包等。
对于政府而言,房票安置不仅有助于加速城中村改造进程,还能节约安置房建设成本,优化土地资源配置。
房票制度的挑战与优化方向
随着房票政策在上海全面铺开,其未来发展也面临一些挑战与优化空间。
各区的“房源超市”建设是政策落地的关键。嘉定区已纳入18个在售楼盘,可选房源2600多套。徐汇江南新村项目则更灵活,购买范围覆盖全市新房和二手房,大大拓宽了选择空间。
目前上海的房票政策大多不支持跨区使用,限制了居民的选择范围。未来是否可能突破区域限制,是政策优化的重要方向。
从金山区的首张房票到徐汇中心城区的创新应用,上海的房票安置政策已形成多元模式并存的格局。政策制定者关注着各区试点成效的数据反馈,更多区域正在酝酿属于自己的房票方案。
未来,随着城中村改造的持续推进,房票这张“购房代金券”将继续在上海城市更新的画卷上添上浓墨重彩的一笔。
✅✅中粮北外滩壹号售楼处电话:400 - 8824 - 258✅✅
声明:本文由入驻焦点开放平台的作者撰写,除焦点官方账号外,观点仅代表作者本人,不代表焦点立场。
