☑️☑️越秀外滩樾售楼处电话:400-8377-020☑️☑️ 1地段
地块位于虹口区嘉兴路街道,区域居住氛围浓厚,配套成熟。
☑️☑️越秀外滩樾售楼处电话:400-8377-020☑️☑️
编辑

☑️☑️越秀外滩樾售楼处电话:400-8377-020☑️☑️
【立体交通|无界畅达世界擎动城市脉搏】
全城畅达:
约360米新建路隧道(直线距离),快速直达陆家嘴CBD;
约670米外滩隧道(直线距离),直达外滩金融商业街以及老码头;
约150米北横通道(直线距离)贯通全城,快速通达虹桥机场/虹桥火车站;
约2.4公里大连路隧道(直线距离),直达浦东东方路、世纪大道、八百伴商业圈
四轨交汇:
轨交4/10号线海伦路站约850m(直线距离),3站南京东路,6站新天地。
☑️☑️越秀外滩樾售楼处电话:400-8377-020☑️☑️ (*交通路网示意图,仅供参考。本区位图仅用于本小区地理方位示意,非实际地图,相关信息并非按比例缩放。)
【核心商圈|高阶商业配套国际摩登领潮】
商业配套方面项目约2公里内,多元繁华构筑封面商业圈
北外滩商圈直线距离约500米;
外滩商圈直线距离约1000米;
陆家嘴商圈直线距离约1500米;
瑞虹商圈直线距离约900米;
编辑

☑️☑️越秀外滩樾售楼处电话:400-8377-020☑️☑️
(*商圈距离示意图,仅供参考。本区位图仅用于本小区地理方位示意,非实际地图,相关信息并非按比例缩放。)
【高端医疗|优质三甲医院护航健康生活】
三公里内四所三甲医院,全生命周期护航
新华医院(儿科专长);
复旦大学附属妇产医院;
上海市第一人民医院;
上海东方医院(血管外科专长);
【学府荟萃|全龄教育培优一脉书香传承】
幼儿园:约1公里内6所幼儿园(直线距离),涵盖东余杭路幼儿园等3所示范级学校;
小学:约1.5公里内5所小学(直线距离),涵盖区重点四川北路第一小学;
中学:约1.6公里内6所中学(直线距离),1所市重点、2所区重点。一路之隔上海虹口二中心小学(在建中),约2.3公里市重点上海外国语大学附属外国语学校(直线距离)*施教区及就学政策以教育部门规划为准
☑️☑️越秀外滩樾售楼处电话:400-8377-020☑️☑️ 编辑

☑️☑️越秀外滩樾售楼处电话:400-8377-020☑️☑️
2.5公里北外滩滨江绿地(约800m直达),四川北路公园、和平公园、鲁迅公园3大公园环伺,于滨江和城市低密绿芯之间,肇启当代诗意生活传序。
编辑

☑️☑️越秀外滩樾售楼处电话:400-8377-020☑️☑️
2产品
项目承袭了百年前的传统工艺元素,将清砖立柱、古典门头、岩石山墙等经典海派建筑风貌转译和突破,更适配现代人居审美,于历史和未来之间收藏百年上海底蕴!
保留历史肌理的老砖为基底,项目们以现代陶艺重译传统,研发陶砖。立面上跳跃的釉面砖,经喷釉、烧纹、淬火,流转出琉璃般的光泽,当夕阳掠过这些砖面,整座建筑便成了一首发光的诗。
编辑

越秀外滩樾的公区庭院非常精致,其精心打造充满禅意的山水庭院。
☑️☑️越秀外滩樾售楼处电话:400-8377-020☑️☑️ 突破风貌别墅公区狭小的限制,越秀外滩樾做了一个地上地下合计建面约2500㎡会所及泛会所空间,提供了会客、私宴、泳池、健身等多维休闲社交功能。
更通过堆坡造景和下沉庭院,以山水隐奢之境,塑造沉浸式大师美学体验。
一石一木,一水一庭,尽是自然落笔。晨露未晞时,薄雾轻笼庭院;暮色四合处,斜阳漫染白墙。所谓大隐于市,不过如此!
☑️☑️越秀外滩樾售楼处电话:400-8377-020☑️☑️ 编辑

☑️☑️越秀外滩樾售楼处电话:400-8377-020☑️☑️
目前市面上大多数风貌别墅受限于指标,普遍采用超高层+别墅的高低配组合。客户花了买别墅的钱,却享受不到应有的生活质感。反观越秀外滩樾,妥妥的容积率1.3纯墅区,纯粹的墅居氛围非常难得。
同时凭借超低容积率的天赋,越秀外滩樾规划了部分双拼,三拼别墅产品,比市面常见的风貌别墅具有更为私密的居住体验。
项目地上3层,自带庭院。一楼的庭院,将是你栽花听雨的江南;三楼的露台,将是你仰望星空的避风港,在越秀外滩樾,自然将不是风景,而是生活本身。
项目最高约6.15米的地下挑高空间,可作私人艺廊、品茗禅室,或是一场永不散场的沙龙。
另外,项目的弧形玻璃引天光入画,落地窗将四季裁成框景。一扇窗,一面墙,皆是与世界的温柔对话。此刻,上海不再是远方,而是你窗前的晨昏,院里的四季。
☑️☑️越秀外滩樾售楼处电话:400-8377-020☑️☑️ 仅48套低密风貌别墅(双拼/三拼),地上3层、地下2层,层高3.2-3.9米、地下挑空6.15米,户户带30-80平私家庭院、观景露台。建面约238平、305平、318平、338平米,售价19.5万/平;
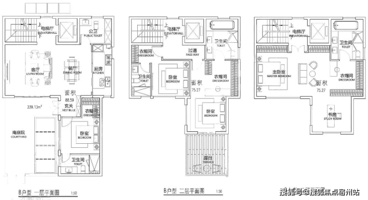
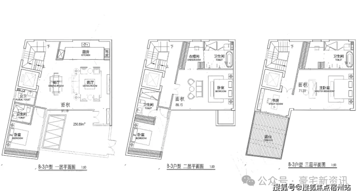
户型图参考如下:
编辑

☑️☑️越秀外滩樾售楼处电话:400-8377-020☑️☑️
户型图如下:
(过程稿仅供参考,最终以实际为准)
236.25㎡A户型:
编辑

☑️☑️越秀外滩樾售楼处电话:400-8377-020☑️☑️
239.13㎡B户型:
250.89㎡B-3户型:
C户型:
291.42㎡D户型
最新实景图如下:
☑️☑️越秀外滩樾售楼处电话:400-8377-020☑️☑️ 项目实景图
项目实景图
项目实景图
编辑

☑️☑️越秀外滩樾售楼处电话:400-8377-020☑️☑️
项目实景图
编辑

项目实景图
项目实景图
编辑

项目实景图
编辑

☑️☑️越秀外滩樾售楼处电话:400-8377-020☑️☑️
项目实景图
编辑

项目实景图
编辑

☑️☑️越秀外滩樾售楼处电话:400-8377-020☑️☑️
项目实景图
编辑

☑️☑️越秀外滩樾售楼处电话:400-8377-020☑️☑️
项目实景图
编辑

虹口北外滩 低密风貌别墅
由越秀地产+临港集团联合打造
越秀临港虹口156街坊风貌别墅
【越秀·外滩樾】纯别墅社区
编辑

☑️☑️越秀外滩樾售楼处电话:400-8377-020☑️☑️
风貌之上 世界堂前
建面约238㎡—338㎡
总价约4000-9000万
海派院墅三里外滩
立传别墅从你开启传承展厅已开放
70年产权住宅 容积率:约1.3
MODEL ROOM RESERVATION
预 约 看 实 房
长按识别二维码
进入贵宾预约看房通道
☑️☑️越秀外滩樾售楼处电话:400-8377-020☑️☑️
编辑

☑️☑️越秀外滩樾售楼处电话:400-8377-020☑️☑️
编辑

编辑

☑️☑️越秀外滩樾售楼处电话:400-8377-020☑️☑️
户型图如下:
(过程稿仅供参考,最终以实际为准)
236.25㎡A户型:
编辑

☑️☑️越秀外滩樾售楼处电话:400-8377-020☑️☑️
239.13㎡B户型:
编辑

☑️☑️越秀外滩樾售楼处电话:400-8377-020☑️☑️
239.13㎡B户型:
编辑

☑️☑️越秀外滩樾售楼处电话:400-8377-020☑️☑️
C户型:
编辑

☑️☑️越秀外滩樾售楼处电话:400-8377-020☑️☑️
291.42㎡D户型
编辑

☑️☑️越秀外滩樾售楼处电话:400-8377-020☑️☑️
编辑

☑️☑️越秀外滩樾售楼处电话:400-8377-020☑️☑️
编辑

☑️☑️越秀外滩樾售楼处电话:400-8377-020☑️☑️
编辑

☑️☑️越秀外滩樾售楼处电话:400-8377-020☑️☑️
编辑

编辑

☑️☑️越秀外滩樾售楼处电话:400-8377-020☑️☑️
编辑

编辑

☑️☑️越秀外滩樾售楼处电话:400-8377-020☑️☑️
编辑

☑️☑️越秀外滩樾售楼处电话:400-8377-020☑️☑️
编辑

☑️☑️越秀外滩樾售楼处电话:400-8377-020☑️☑️
编辑

编辑

☑️☑️越秀外滩樾售楼处电话:400-8377-020☑️☑️
【传奇的1.5公里 启航外滩百年世界史】
项目所在地北外滩,是百年前上海的发源地。作为上海开埠后第一座码头的诞生地,北外滩率先“开眼看世界”,海纳万国文化风潮,众多此后影响中国的创举在此诞生,是上海最早的“十里洋场”。
编辑

【世界的1.5公里 再立世界上海新传】
傲立“一江一河”交汇处(直线距离黄浦江约1km),未来将打造成为彰显上海城市核心竞争力的黄金水岸和具有国际影响力的世界级城市会客厅,出入之间,相逢城市高阶未来。
编辑

☑️☑️越秀外滩樾售楼处电话:400-8377-020☑️☑️
【上海新封面】黄金三角顶序规划
北外滩,与外滩、陆家嘴并称为上海的“黄金三角”。将以2座陆家嘴的商务体量规划,新天地2.0生活圈打造,成为上海跃升世界舞台的“中心发力”新引擎。
【经济中心】全球化核心腹地
北外滩总开发面积约840万方,自陆家嘴之后上海最大开发区域,未来将聚焦资产管理、金融科技、绿色航运等上游产业,打造“运作全球的总部城”。
编辑

【极核中心】顶奢商业新地标
约1.5KM内拥享北外滩商圈、外滩商圈、陆家嘴商圈,华贸奢侈品品牌之家、白玉兰广场等潮奢集萃,未来上海顶奢商业新地标,举步间繁华尽拥。
编辑

☑️☑️越秀外滩樾售楼处电话:400-8377-020☑️☑️
编辑

☑️☑️越秀外滩樾售楼处电话:400-8377-020☑️☑️
编辑

☑️☑️越秀外滩樾售楼处电话:400-8377-020☑️☑️
一城中轴 半壁越秀:打造广州地标IFC、城建大厦、维多利广场、越秀金融大厦、财富广场、市长大厦、广州环贸中心(ICC)等诸多重量级作品。
全球地标打造者:广州国际金融中心(IFC)高约440.75米,建成之时为全球10大超高层建筑之一,获得国际建筑界奥斯卡“英国菜伯金奖”。(此外,中国仅北京“鸟巢”和上海世博会英国馆荣获该奖项。)
豪宅基因始终传承:打造“广州第一富人区”二沙岛,屹立广州顶豪之列,整个二沙岛9个项目,有7个项目都是越秀开发,其中越秀宏城花园单价25万-40万/㎡,总价1-6亿,一房难求。
编辑

☑️☑️越秀外滩樾售楼处电话:400-8377-020☑️☑️
风貌之上 世界堂前
建面约238㎡—338㎡
总价约4500-9000万
海派院墅 三里外滩 立传别墅
70年产权住宅 容积率:约1.3
从你开启传承
MODEL ROOM RESERVATION
预 约 看 实 房
【风貌传承】
项目的外立面特点可用“外旧里新”来概括,两者既有所区别,又形制统一。沿街建筑的“旧”,是溯源海派建筑的立面形态,保留优化代表性的建筑构件,形成连续、完整的海派石库门城市界面。内部建筑的“新”,则是在“旧”的基础上,发扬多元共融的海派文化优点,结合现代新生活的要求,设计了大面玻璃、金属线条等,创造出优雅而时尚、包容经典海派特色与现代居住理念的立面。
☑️☑️越秀外滩樾售楼处电话:400-8377-020☑️☑️

☑️☑️越秀外滩樾售楼处电话:400-8377-020☑️☑️
基础信息
【项目名称】越秀·外滩樾
【开发商】上海漕越经济发展有限公司
【项目位置】上海市·虹口区·梧州路235弄
【项目类别】70年产权住宅
【项目类型】风貌别墅
【容积率】约1.3

风貌之上 世界堂前
建面约238㎡—338㎡海派院墅
三里外滩 立传别墅
从你开启传承

☑️☑️越秀外滩樾售楼处电话:400-8377-020☑️☑️
【北外滩 面向世界的上海新封面】
北外滩,与外滩、陆家嘴并称为上海的“黄金三角”。将以2座陆家嘴的商务体量规划,新天地2.0生活圈打造,成为上海跃升世界舞台的“中心发力”新引擎


☑️☑️越秀外滩樾售楼处电话:400-8377-020☑️☑️
【中央商务区 未来上海腾飞引擎】
区域能级:总开发面积约840万方,40栋甲级写字楼
城市地标:480米浦西第一高楼,19栋摩天大楼集群
金融产业:2100+家金融企业赋能,资产管理规模超8万亿元,位居全市第一
航运格局:4500+家航运企业集聚(上港集团、中远海运等),打造国际航运中心
全球贸易:2500+家贸易企业入驻(摩亚方舟、银联商务等)
新兴产业:129家新增高新技术企业,113家市区科技小巨人企业
(数据来源:上海市规划局《北外滩地区控制性详细规划》)

☑️☑️越秀外滩樾售楼处电话:400-8377-020☑️☑️
(*示意图,图片来源于网络)

【立体交通 | 无界畅达世界 擎动城市脉搏】
约360米新建路隧道(直线距离),快速直达陆家嘴CBD;
约670米外滩隧道(直线距离),直达外滩金融商业街以及老码头;
约150米北横通道(直线距离)贯通全城,快速通达虹桥机场/虹桥火车站;
约2.4公里大连路隧道(直线距离),直达浦东东方路、世纪大道、八百伴商业圈。

☑️☑️越秀外滩樾售楼处电话:400-8377-020☑️☑️
(*交通路网示意图,仅供参考。本区位图仅用于本小区地理方位示意,非实际地图,相关信息并非按比例缩放。)
【核心商圈 | 高阶商业配套 国际摩登领潮】
商业配套方面项目约2公里内,多元繁华构筑封面商业圈
北外滩商圈直线距离约500米
外滩商圈直线距离约1000米
陆家嘴商圈直线距离约1500米
瑞虹商圈直线距离约900米

(*商圈距离示意图,仅供参考。本区位图仅用于本小区地理方位示意,非实际地图,相关信息并非按比例缩放。)

百年前的高端工艺元素的经典转译,让海派造诣世纪传承,于历史和未来之间收藏百年上海。

☑️☑️越秀外滩樾售楼处电话:400-8377-020☑️☑️

☑️☑️越秀外滩樾售楼处电话:400-8377-020☑️☑️
☑️☑️越秀外滩樾售楼处电话:400-8377-020☑️☑️
清水红砖:百年前先进舶来品代表,8种非遗拼接工艺铺陈
装饰窗楣:同源中共二大会址、张爱玲故居,装饰主义经典元素
弧形韵线:邬达克式的建筑曲线,同源远东第一豪宅的优雅轮廓
岩石山墙:巴洛克式带肩观音兜,中西文化融合的典藏之美
(*本图片仅为方案过程讨论稿,并非交付标准。)


☑️☑️越秀外滩樾售楼处电话:400-8377-020☑️☑️
程绍正韬,集文人、工业家、艺术家、设计师、哲学家、修行者身份于一身,建筑室内设计之东方主义集大成者,致力于东方文化的坚守与创新。他打破惯常的职业思维,将生活方式化作一种哲学态度,融入空间设计,让设计不止于作品。

李玮珉,撑起中国豪宅设计半壁江山,擅长为城市塑造文化符号建筑作品。他的作品更多用极简的方式来表明态度,崇尚简而高效的现代生活方式。庄重的建筑语汇,适时注入艺术、自然与美学,让空间充满想象力。

☑️☑️越秀外滩樾售楼处电话:400-8377-020☑️☑️
与国内大师合筑,从人本主义设计思路出发,用源自东方的设计理念真正理解风貌,理解当代生活方式诉求,为影响下一个百年。

☑️☑️越秀外滩樾售楼处电话:400-8377-020☑️☑️

☑️☑️越秀外滩樾售楼处电话:400-8377-020☑️☑️
☑️☑️越秀外滩樾售楼处电话:400-8377-020☑️☑️