上海【士林·润园】售楼处电话→士林·润园售楼中心电话→2025士林·润园楼盘百科→士林·润园→楼盘测评→售楼中心→楼盘百科24小时热线电话

搜狐焦点宿州站 2025-09-11 16:07:51
用手机看
扫描到手机,新闻随时看

扫一扫,用手机看文章
更加方便分享给朋友

士林·润园售楼处电话☎:400-833-6309【已认证】 在售户型图丨项目介绍丨最新房源丨周边配套丨详细解答〢 ◆开发商营销中心诚挚邀请,一键预约,尊享内部独家折扣!匠心独运的精品项目,恭候您的品鉴与选择。 开发商电话☎:400-833-6309【已认证】

上海【士林·润园】售楼处电话☎:400-833-6309【已认证】

在售户型图丨项目介绍丨最新房源丨周边配套丨详细解答〢

◆开发商营销中心诚挚邀请,一键预约,尊享内部独家折扣!匠心独运的精品项目,恭候您的品鉴与选择。

开发商电话☎:400-833-6309【已认证】

售楼处电话☎:400-833-6309【已认证】

营销中心电话☎:400-833-6309【已认证】

✅ 本项目暂不接受临时到访,过来参观样板房请记得提前来电预约!

✅ 为您安排楼盘现场销售全程接待并讲解,给您更贴心的看房体验!

欢迎来电咨询楼盘、线上预约看房可享专属活动哦~~

➤➤➤➤VIP贵宾置业〢欢迎来电咨询〢品鉴!!

纵观上海近代史,地块街巷历久弥新,建筑的生命延续也更为恒久,老西门一带作为上海近代史源起的黄浦老城厢,市中心的繁华与豫园的历史底蕴在这里交汇

项目位于上海城市文明之源,海派文化的发源地“老城厢”的主轴核心之上,紧邻士林华苑一期,由南房集团与华润置地联合匠筑,共建约103席位低密合院墅作。士林·润园售楼处电话☎:400-833-6309【已认证】

项目左拥新天地、淮海中路,右抱陆家嘴,北倚人广、外滩,南侧是一路连缀的豪宅区。顶尖商圈、潮流文艺街区,甚至上海地标们、未来城市封面都将是项目的生活场域。加上豫园这百年来传承的文化底蕴,仅看现有的地段价值,已足够吸引人。士林·润园售楼处电话☎:400-833-6309【已认证】

别忘了黄浦区正如火如荼进行着的城市更新。项目周边城市更新的地块基本已确认,未来城市界面、配套能级的兑现速度可期!

士林·润园售楼处电话☎:400-833-6309【已认证】

进入“士林润园”线上预约通道

销售会第一时间与您联系

请报名后静待销售电话确认后再行前往现场!

重要提醒:本案场因参观人员较多,只接待线上预约参观!

*注:仅限未去过售楼处,线上预约的用户

项目简介士林·润园售楼处电话☎:400-833-6309【已认证】

【士林润园】由103席建面约210-500㎡合院式风貌别墅组成,这是市场唯一纯合院别墅小区,103栋户型都不一样,做到一户一定制,没有重复性,项目位于黄浦区老城厢正核心,1.5公里达到新天地、外滩,配套齐全。

约200平面积段:(目前300㎡以下售罄)

210平-5套、240平 -1套、280平-2套、290平-1套

约300平面积段:

310平-55套、330平-1套、390平-34套

约400-500平面积段:

430平-2套、480平-1套、500平-1套

【以上为建筑面积不含地下室】

价格区间:

210-310平总价约6000-6900万左右

310-390平总价约6900-1.2亿左右

390-500平总价约1.2-1.65亿左右

【士林·润园】

上海缘起处,重塑老城厢

纯合院别墅区 荣耀再启

#黄浦城芯纯合院润园揭幕

全球海派非遗传世源址

物业类型:70年

建筑面积:地上210、310、390、400-500平米,送地下面积200-500平

毛坯交付,也可以帮您装修!

梯户比 :“独立电梯厅”设计

产品:三种风格石库门风格、红砖、青砖

✨层高 :面宽12米,层数:地上3层,地下2层,层高:1F3.6米;2F-3F3.3米;地下约5米(挑高)花园面积:约50-100㎡(赠送)

商业:自带1500平会所

【卖点】

1、2025年热门顶豪别墅真正对标中海顺昌恒昌

2、华润豪宅系、超级产品力+难以复制地段

3、户型好,大面宽、窄进深采光、私密性佳

4、总户数:103户,物业费:23元/平/月

5、圈层主力建面210-600㎡,邻里高端、纯粹

士林·润园售楼处电话☎:400-833-6309【已认证】

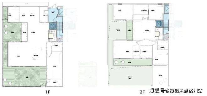
项目官宣户型图士林·润园售楼处电话☎:400-833-6309【已认证】

士林·润园售楼处电话☎:400-833-6309【已认证】

士林·润园售楼处电话☎:400-833-6309【已认证】

士林·润园售楼处电话☎:400-833-6309【已认证】

士林·润园售楼处电话☎:400-833-6309【已认证】

士林·润园售楼处电话☎:400-833-6309【已认证】

360m²合院户型图

士林·润园售楼处电话☎:400-833-6309【已认证】

360㎡下叠边套示意图

士林·润园售楼处电话☎:400-833-6309【已认证】

236㎡叠拼3-5F大平层示意图

士林·润园售楼处电话☎:400-833-6309【已认证】

项目样板实景图▼

士林·润园售楼处电话☎:400-833-6309【已认证】

士林·润园售楼处电话☎:400-833-6309【已认证】

最新效果图

士林·润园售楼处电话☎:400-833-6309【已认证】

士林·润园售楼处电话☎:400-833-6309【已认证】

士林·润园售楼处电话☎:400-833-6309【已认证】

士林·润园售楼处电话☎:400-833-6309【已认证】

士林·润园售楼处电话☎:400-833-6309【已认证】

士林·润园售楼处电话☎:400-833-6309【已认证】

士林·润园售楼处电话☎:400-833-6309【已认证】

士林·润园售楼处电话☎:400-833-6309【已认证】

士林·润园售楼处电话☎:400-833-6309【已认证】

【士林·润园】的室内样板房由傅厚民设计,这也是他全球作品中的第一个风貌别墅项目。士林·润园售楼处电话☎:400-833-6309【已认证】

士林·润园售楼处电话☎:400-833-6309【已认证】

士林·润园售楼处电话☎:400-833-6309【已认证】

室内拥有高挑的天花板和宽阔的客厅,能够让空间显得更加开阔。此外,合理的空间布局和细节设计也使得每个功能区都显独立性又相互连接,保证了空间尺度又兼顾了实用性。士林·润园售楼处电话☎:400-833-6309【已认证】

餐厅的设计巧妙融合了老上海的经典元素,圆形餐桌和橘色皮质餐椅在色彩上既现代又充满活力,顶部的水晶吊灯造型灵感来自上海市花“玉兰花”,既增添了空间的华丽感,又巧妙地融入了上海的地域特色士林·润园售楼处电话☎:400-833-6309【已认证】。

士林·润园售楼处电话☎:400-833-6309【已认证】士林·润园售楼处电话☎:400-833-6309【已认证】

士林·润园售楼处电话☎:400-833-6309【已认证】

复古简约的家具和细节装饰,士林·润园售楼处电话☎:400-833-6309【已认证】在空间中自然融入,同时避免过度繁复。这样的设计既保留了历史的厚重感,又契合现代人的生活需求。

上海【士林·润园】售楼处电话☎:400-833-6309【已认证】

在售户型图丨项目介绍丨最新房源丨周边配套丨详细解答〢

◆开发商营销中心诚挚邀请,一键预约,尊享内部独家折扣!匠心独运的精品项目,恭候您的品鉴与选择。

开发商电话☎:400-833-6309【已认证】

售楼处电话☎:400-833-6309【已认证】

营销中心电话☎:400-833-6309【已认证】

✅ 本项目暂不接受临时到访,过来参观样板房请记得提前来电预约!

✅ 为您安排楼盘现场销售全程接待并讲解,给您更贴心的看房体验!

欢迎来电咨询楼盘、线上预约看房可享专属活动哦~~

➤➤➤➤VIP贵宾置业〢欢迎来电咨询〢品鉴!!

从庭园看向别墅,保留的老山墙、砖楣和门头,再加上悬挑阳台和层层露台,这种传统风貌带给人一种重见历史的感慨,又有温馨、宁静的现代舒适感。

风貌配套会所

士林润园的会所位于项目的核心区域,与整体园区的景观、居住区有良好的联系。士林·润园售楼处电话☎:400-833-6309【已认证】

会所也由傅厚民设计,室内通过诸多细节,展示连接过去与现在的对话。例如,特别设计了一条结合石库门拱门元素的通道,让人们在这里就能感受到一段传承的历史记忆。

2025年9月起买房限制放宽,多地密集出台楼市新政

各地新政大盘点

在这波新政潮中,各地政策各有千秋,一线城市纷纷带头松绑限购。8 月初,北京率先放宽五环外限购政策 ,规定京籍居民家庭、在北京市连续缴纳社会保险或个人所得税满 2 年及以上的非京籍居民家庭,购买五环外商品住房(含新建商品住房和二手房)不再限制套数 。成年单身人士在北京市购买商品住房,按照居民家庭执行限购政策。这一政策的出台,让许多原本受限于购房套数的家庭和单身人士看到了新的希望,他们开始重新规划自己的住房需求,不少人将目光投向了五环外那些环境优美、配套设施逐渐完善的楼盘。

紧随北京的步伐,8 月 25 日,上海发布楼市新政,对符合本市住房购买条件的居民家庭,包括本市户籍居民家庭、在本市连续缴纳社会保险或个人所得税满 1 年及以上的非本市户籍居民家庭,在外环外购买住房不限套数,包括新建商品住房和二手住房 。成年单身人士按照居民家庭执行住房限购政策,沪籍居民家庭和沪籍成年单身人士,在外环外购买住房不限套数,在外环内限购 2 套住房;非沪籍居民家庭和非沪籍成年单身人士,自购房之日前在本市连续缴纳社会保险或个人所得税满 1 年及以上的,在外环外购买住房不限套数 。

而在深圳,深户家庭限购 2 套住房,深户成年单身人士(含离异)限购 1 套住房 。在此基础上,在盐田区、宝安区(不含新安街道、西乡街道)、龙岗区、龙华区、坪山区、光明区、大鹏新区范围内,还可再购买 1 套住房 。若家庭有两个及以上未成年子女,可在上述非核心区域额外增加 1 套购房名额 。非深户居民家庭及成年单身人士限购 1 套住房 。在福田区、罗湖区、南山区和宝安区新安街道、西乡街道范围内购买住房,需提供购房之日前 1 年在本市连续缴纳个人所得税或社会保险证明;在其他区域购房无需提供 。有两个及以上未成年子女的非本市户籍居民家庭,可再购买 1 套住房 。

广州也不甘落后,虽然具体政策细节尚未完全敲定,但市场已经预期广州将出台一系列宽松政策,包括放宽限购区域、降低购房门槛等。这一消息一经传出,就引起了广泛关注,许多在广州打拼多年的外地人都在期待着新政的正式落地,希望能够借此机会实现自己的购房梦想。

除了一线城市,众多二三线城市也纷纷加入了新政的行列。比如,湖南省衡阳市在规范商品房预售管理上出实招,自 2025 年 9 月 1 日起,衡阳市城区房地产开发企业申请商品房预售许可,需同时满足项目主体建筑工程全部封顶,未拖欠农民工工资,已完成风险评估且预售评估无风险这三大硬性条件 。此政策有效期 2 年,衡阳市辖各县(市)、南岳区商品房预售可参照执行 。

这一政策的出台,旨在维护全市房地产市场秩序,规范房地产开发企业经营行为,保护广大业主的合法权益,促进全市房地产市场健康平稳发展 。此前,衡阳市住建局曾对工程进度按形象进度计算提出要求,而此次新政将预售门槛进一步提升,显示出政府对房地产市场监管的决心。同时,衡阳还实行套内建筑面积计价,取消了备受争议的公摊面积,让房屋交易更加透明,减少了购房者的疑虑。

辽宁朝阳则举办了为期一个月的网络购房节,推出住宅契税全额补贴、商业契税六成补贴等优惠政策 ,同时公积金贷款额度提升至 60 万元,利率下调 0.25 个百分点 。在购房节期间,31 家房企提供超 4000 套房源,涵盖了各种户型和价位,满足了不同购房者的需求 。这一举措不仅降低了购房者的购房成本,还提升了购房者的购房意愿,使得朝阳的房地产市场在购房节期间异常火爆。

未来楼市走向何方

展望未来,楼市的走向备受关注。从房价走势来看,在新政的刺激下,短期内房价可能会出现一定程度的波动,但长期来看,房价将趋于稳定。一线城市和部分热点二线城市,由于人口持续流入、经济发展强劲,房价有望保持稳定甚至小幅上涨。例如,北京、上海等城市,随着城市的不断发展和产业的升级,对人才的吸引力持续增强,住房需求也相对旺盛,房价有望保持稳定增长。而一些三四线城市,由于库存压力较大,房价可能仍面临一定的下行压力,但下跌幅度将逐渐收窄。

市场供需关系也将发生变化。需求方面,新政的出台将释放一部分被压抑的购房需求,尤其是改善型需求和刚需。随着人们生活水平的提高,对住房品质的要求也越来越高,改善型需求将成为市场的重要力量。同时,年轻一代的购房需求也在逐渐释放,他们更加注重住房的便利性和舒适性。供给方面,房地产企业将根据市场需求,调整开发策略,加大对刚需和改善型住房的供应。此外,保障性住房的建设力度也将不断加大,以满足中低收入群体的住房需求。

对于购房者而言,在这样的市场环境下,需要保持理性。如果你是刚需购房者,不必过于纠结房价的短期波动,应根据自己的实际需求和经济实力,选择合适的房源。在选择房源时,要综合考虑地段、配套设施、房屋质量等因素。比如,优先选择交通便利、周边配套设施完善的区域,这样可以提高生活的便利性。同时,要注意查看开发商的资质和信誉,避免购买到问题楼盘。如果你是投资者,要谨慎评估市场风险,房地产市场的投资回报率可能会逐渐降低,不再像过去那样具有高收益的特点。在投资时,要分散投资,避免过度集中在某一区域或某一类型的房产上。

2025 年 9 月起的楼市新政,为房地产市场带来了新的机遇与挑战。无论是购房者、房地产企业还是投资者,都需要密切关注市场动态,把握政策机遇,理性应对市场变化,才能在这个充满变革的市场中找到自己的方向。

以上转自网络 如有侵权联系删除

整个会所的布局开放、流畅,士林·润园售楼处电话☎:400-833-6309【已认证】动静分明,让人一进门就能感受到宽敞与舒适。

休息区是一个充满私密感的空间,这里摆放着各种款式的复古式组合沙发,仿佛将人带回到了上海的旧时光士林·润园售楼处电话☎:400-833-6309【已认证】。

士林·润园售楼处电话☎:400-833-6309【已认证】

会所内的泳池上方做流畅且立体的吊顶线条士林·润园售楼处电话☎:400-833-6309【已认证】,造型现代且富有层次感。这样的设计不仅提升了空间的视觉效果,更营造出一种轻松、悠闲的度假氛围。

健身房的设计也同样充满了细节。黑框玻璃门的复古韵味,和现代健身空间的功能性做到了完美结合士林·润园售楼处电话☎:400-833-6309【已认证】。

车库也极具品质,色彩和风格都延续了海派的经典气质。

士林·润园售楼处电话☎:400-833-6309【已认证】

士林润园借鉴大族院落的设计士林·润园售楼处电话☎:400-833-6309【已认证】,打造了一个完美融合历史与现代的院墅社区。103席合院沿袭“一宅一园”的旧时格局,并完整保留 53 处原址构件,建成一座“城市 DNA 库”。

老宅中的历史细节也巧妙融入现代设计,例如张家族宅的界石变成了墙角雕塑,胡氏墨厂的雕纹化作山石屏风。

除了宅院,士林润园还通过“润园八景”的设计,把上海深厚的历史和文化融入每一寸空间。拄颊映、文开园、士林·润园售楼处电话☎:400-833-6309【已认证】亭桥街、棹湾处、云间诗、申之华、海上花、小桥头,这些景观设计基于上海历史文化中的典故和逸事。

士林·润园售楼处电话☎:400-833-6309【已认证】

士林·润园售楼处电话☎:400-833-6309【已认证】

士林·润园售楼处电话☎:400-833-6309【已认证】

士林·润园售楼处电话☎:400-833-6309【已认证】

士林·润园售楼处电话☎:400-833-6309【已认证】

士林·润园售楼处电话☎:400-833-6309【已认证】

士林·润园售楼处电话☎:400-833-6309【已认证】

士林·润园售楼处电话☎:400-833-6309【已认证】

士林华苑二期位于内环内黄浦区老西门街道,地块东至望云路、西至河南南路、南至蓬莱路、北至士林华苑一期。

士林华苑二期属于黄浦区老西门街道旧城改造项目,项目一期于2007年竣工,项目北面复兴东路一路之隔就是复地雅园和璞玉one士林·润园售楼处电话☎:400-833-6309【已认证】。

二期在2021年7月发布了房屋征收补偿协议生效公告。2021年12月华润入股,项目由南房和华润共同联合开发!士林·润园售楼处电话☎:400-833-6309【已认证】

士林·润园售楼处电话☎:400-833-6309【已认证】

根据规划,士林华苑二期需要“落实风貌保护要求,深化地块布局和建筑方案设计,同步实施建设相关公共服务配套”。

整体地块的强制性管控要求:建筑以多低层为主,檐口高度不得超过12米。

沿蓬莱路设置地块内部绿化,总面积不小于1000平方米,其边界为可变控制,宽度约为10米。

关于地下空间强制性管控要求如下:

1/地下可建设范围面积和功能功能布局均为弹性控制,具体以建设项目规划管理阶段审定方案为准士林·润园售楼处电话☎:400-833-6309【已认证】。地下空间建议开发两层,预留地下三层的可能性。

2/地下一层可建设范围面积约为2.75万平方米,包含商业设施,牙防所附属设施,住宅套内地下室空间等功能。

3/地下空间应建设地下连通道与北侧已建成地下空间相连接。

总体而言,项目左拥新天地、淮海中路,右抱陆家嘴,北倚人广、外滩,南侧是一路连缀的豪宅区。士林·润园售楼处电话☎:400-833-6309【已认证】

顶尖商圈、潮流文艺街区,甚至上海未来城市封面都将是士林华苑的生活场域,加上豫园这百年来传承的文化底蕴。

这样的地段人文底蕴和繁华配套兼备,无疑是上海城心核心资产,塔尖人士可提前关注起来!

士林·润园售楼处电话☎:400-833-6309【已认证】

「周边配套」

交通方面:周边交通网络成熟,总结起来就是“一桥三环四线五隧道”,其中四线就包括了8号线老西门站、10号线的豫园站、9号线的小南门站及14号线的豫园站,,交通畅达出行便利。

商业方面:香港名都城、豫园商圈、复兴艺术中芯,人民广场、新天地、外滩、南京路步行街等商业环绕。注:紫华路河南南路口地块也将建成大型商业综合体。士林·润园售楼处电话☎:400-833-6309【已认证】

教育方面:周边的公立学校有复兴东路三小、上海实验小学、蓬莱路二小等,初中有光明初级中学及市十、市八,康德及永昌两所九年一贯制的民办学校等。

医疗方面:上海九院、瑞金医院、仁济医院西院、黄浦区中西医结合医院、曙光医院西院、复旦大学附属妇产科医院等众多享誉全国的医疗资源士林·润园售楼处电话☎:400-833-6309【已认证】。

黄浦老西门

士林华苑二期

【士林润园】

接待中心已开放

主力建面约270-400㎡叠拼+合院

将首开103套合院产品

预计总价约

建筑面积约270㎡(地下室不计入)起

士林·润园售楼处电话☎:400-833-6309【已认证】

进入“士林润园”线上预约通道

销售会第一时间与您联系

请报名后静待销售电话确认后再行前往现场!

重要提醒:本案场因参观人员较多,只接待线上预约参观!

*注:仅限未去过售楼处,线上预约的用户

上海【士林·润园】售楼处电话☎:400-833-6309【已认证】

在售户型图丨项目介绍丨最新房源丨周边配套丨详细解答〢

◆开发商营销中心诚挚邀请,一键预约,尊享内部独家折扣!匠心独运的精品项目,恭候您的品鉴与选择。

开发商电话☎:400-833-6309【已认证】

售楼处电话☎:400-833-6309【已认证】

营销中心电话☎:400-833-6309【已认证】

✅ 本项目暂不接受临时到访,过来参观样板房请记得提前来电预约!

✅ 为您安排楼盘现场销售全程接待并讲解,给您更贴心的看房体验!

欢迎来电咨询楼盘、线上预约看房可享专属活动哦~~

➤➤➤➤VIP贵宾置业〢欢迎来电咨询〢品鉴!!

声明:本文由入驻焦点开放平台的作者撰写,除焦点官方账号外,观点仅代表作者本人,不代表焦点立场。