大华·梧桐樾售楼处电话:400-8854-706【售楼中心】大华·梧桐樾售楼处提供多户型选择,涵盖高层、叠墅、别墅,主打低密高端住宅,融合海派文化与高尔夫墅居理念。
大华·梧桐樾
大华·梧桐樾 售楼处电话:400-8854-706【售楼中心】
咨询高峰期请耐心等待,预约来电尊享内部优惠,专业一对一热情服务,让您用专业眼光去买房。
「大华·梧桐樾|越界」
双轨交汇 实景呈现
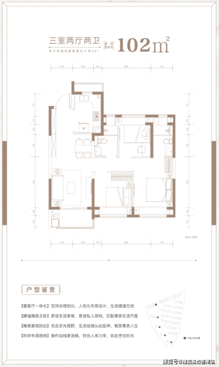
建面约91-101㎡精装高层
高层首期10万起
建面约96-136㎡的叠加
总价480万起
火热销售中!

叠加产品
建面约137㎡下叠, 四房两厅三卫 全能格局,非常适合二娃家庭以及三代同堂。

下叠附带全功能的 地下室, 可以打造成百变储藏室、茶室、会客厅、多功能影厅等。
一层是会客区, 大尺度横厅, 可以打造客餐厅,采光条件优越,还配备了颐养房,方便家中老人居住。二层 双南大套房 +南向阔景飘窗+三卫的设计,空间层层递进,尊崇有序。
👇更多下叠户型图👇



上叠产品都是带有空中花园露台,日常聚餐、烧烤、开party等娱乐活动有大展拳脚的空间,同时客餐厅一体化+U型厨房空间+尊崇主卧套房,户型设计合理,格局方正。
👇全套上叠户型图👇

大华·梧桐樾
大华·梧桐樾 售楼处电话:400-8854-706【售楼中心】
咨询高峰期请耐心等待,预约来电尊享内部优惠,专业一对一热情服务,让您用专业眼光去买房。



👇全套中叠户型图👇




项目四至范围:东至米夏路,南至博园路,西至博园路,北至新开河。

项目分为两个地块,总用地面积约9.27万㎡,容积率2.3,建筑限高80米。

大华·梧桐樾 售楼处电话:400-8854-706【售楼中心】
根据规划设计方案显示:项目规划有26F高层、4F别墅、6F叠墅,另有老年活动室、养育托管点、文化活动室等公共设施,总建筑面积约18.3万方,容积率2.3, 社区共2097户,其中,高层住宅623套,别墅住宅368套,车位数2711个(全部为地下),人车分流设计。

大华·梧桐樾 售楼处电话:400-8854-706【售楼中心】
大华·梧桐樾,于虹桥时代热土之上,城市高阶资源汇聚之处,为城市层峯构建心驰神往的迭代高尔夫墅居。
延续大华梧桐精神,以现代语言演绎海派文化底蕴,匠筑约30万方低密恢弘墅境,打造超越区域内以往规模与高度的高尔夫墅区作品。

效果示意图|仅供参考,具体以实际交付为准

【大华·梧桐樾】是大华集团带着深耕嘉定的决心,首入嘉定的第一子,也是大华城墅专家秉承着大华城墅迭新的「墅立四观」、「墅境九制」、「墅居六艺」价值主张。
打造的第五代梧桐系城墅作品,旨在赋新大华高端城墅版图,迭新嘉定墅居享受,开篇一座嘉定城的新传奇。
效果示意图|仅供参考,具体以实际交付为准

【大华·梧桐樾】因地制宜利用天然河道精心布局。项目被新开河、苏州河双河流环绕,静谧水岸带来天然诗意与自然气息,丰盛的滨河景观与建筑融为一体,还生活以最自然灵动的本真。

大华·梧桐樾 售楼处电话:400-8854-706【售楼中心】
轨交方面: 作为上海的“西门户”,20年以来,不论是对于产业的发展,亦或是对于人才的导入,安亭的繁荣富强,肯定离不开轨交的支撑。
项目距离11号线上海汽车城站约2.4km,不算真正意义上的轨交房。轨交14号线横亘安亭境内的规划建议,也已提上日程。
对外,安亭北站与安亭西站的两座高铁枢纽,快速抵达上海虹桥与上海火车站,做到“融苏接通”。

大华·梧桐樾 售楼处电话:400-8854-706【售楼中心】
商业方面: 项目附近有11号上海汽车城站沿街商业、嘉实广场、三德广场、财富广场、嘉亭荟城市生活广场等大型商业广场,尽享璀璨城市生活;

大华·梧桐樾 售楼处电话:400-8854-706【售楼中心】
教育方面: 项目旁边拥有涵盖3-16岁的全龄化的教育配套,可以满足小孩的教学需求:东方瑞仕幼儿园、汇爱园托幼中心、三之三幼儿园等,九年制华东师范大附属双语学校、同济大学附属实验中小学等!


医疗方面: 项目周边有完善的医疗配套体系,有二级综合性安亭医院,三级甲等综合性医院东方肝胆医院等大型医院,能够为家人提供全方位的健康保障。

大华·梧桐樾 售楼处电话:400-8854-706【售楼中心】
生态休闲: 项目周边有约12万方奥林匹克公园、约120万㎡颖奕高尔夫球场、约77万方的上海汽车博览公园、中央绿轴滨江公园、波恩风情音乐谷公园以及掌形湖等,整个绿化面积将近达到约300万㎡,完全可谓是理想的自然栖居地,真正的享受到如森林秘境般的生活住区。

大华·梧桐樾
大华·梧桐樾 售楼处电话:400-8854-706【售楼中心】
咨询高峰期请耐心等待,预约来电尊享内部优惠,专业一对一热情服务,让您用专业眼光去买房。
郑重承诺:此房源信息真实有效,开发商直属全程营销策划,中介勿扰如有问题欢迎来电咨询,来电即可享受买房优惠!
1、本资料为要约邀请,不作为要约或承诺;买卖双方的权利义务以双方签订的《商品房买卖合同》及其补充协议、附件等书面文件为准;相关宣传内容不排除因政府相关规划、规定及出卖人分期规划、未能控制等原因发生变化;出卖人将!不定期对宣传材料进行修改,敬请留意最新资料。
2、图片来源于网络,仅作为推广示意使用;如涉及版权使用,请与我司联系。
大华·梧桐樾 售楼处电话:400-8854-706【售楼中心】