8号线沈杜公路站直线距离仅约180米
浦江郊野公园零距离
「象屿·天宸雅颂」
七批次3#、7#新品上新
样板间已开放、启动验资建档!
☑️☑️象屿·天宸雅颂售楼处电话:400-8377-020☑️☑️
编辑

☑️☑️象屿·天宸雅颂售楼处电话:400-8377-020☑️☑️
户型图
编辑

☑️☑️象屿·天宸雅颂售楼处电话:400-8377-020☑️☑️
编辑

☑️☑️象屿·天宸雅颂售楼处电话:400-8377-020☑️☑️
编辑

☑️☑️象屿·天宸雅颂售楼处电话:400-8377-020☑️☑️
编辑

编辑

☑️☑️象屿·天宸雅颂售楼处电话:400-8377-020☑️☑️
编辑

从立面、材质、景观、会所等产品配置来看,象屿·天宸雅颂的标准和当下市区千万豪宅几无区别。
美学建筑立面
超高窗墙比、超大比例弧形铝板线条搭配上弧面窄框,大量 弧形玻璃,灵动通透,缔造浦江美学地标。
编辑

示意图,仅供参考
别墅设计巧妙融合宋代美学精髓,用极简线条勾勒东方意境。
编辑

☑️☑️象屿·天宸雅颂售楼处电话:400-8377-020☑️☑️
示意图,仅供参考
丰盛会所空间
约2500㎡莫奈花园会所,包含泳池、健身房、瑜伽室、水吧台、私宴厅等“多元生活集”,满足全龄段业主的精致生活需求。
编辑

编辑

☑️☑️象屿·天宸雅颂售楼处电话:400-8377-020☑️☑️
示意图,仅供参考
另外, 约三分之二的楼栋都配有架空层,将打造为共计 约3000㎡泛会所空间,最高层高达4.5米,营造全龄共享的丰盛聚场。
编辑

示意图,仅供参考
总体约5500m²的会所+泛会所的规模,在上海豪宅产品中也排得上号。
归家风雨连廊
项目也采用当下豪宅新盘才运用的 风雨连廊,打造风雨无阻的归家体验的同时,也连接着社区核心景观节点和功能空间,大大增加小区景观的空间体验。
编辑

示意图,仅供参考
在景观打造上,在日常所及之处用自然绿意点缀创造出都市中的“ 浮岛美学园林”,层层递进的秩序之美,传递生活与归心的仪式感。
编辑

☑️☑️象屿·天宸雅颂售楼处电话:400-8377-020☑️☑️
示意图,仅供参考
编辑

☑️☑️象屿·天宸雅颂售楼处电话:400-8377-020☑️☑️
编辑

编辑

1 “好房子”的标准答案
三大迭代设计 钜制一生之宅!
为什么说当下的购房者是幸福的?因为真正意义上的好房子时代已经到来。
在过去,购房者的买房逻辑是从刚需-地段-产品面积的层层升级,可能过个几年就要面临置换的问题;如今,许多人追求“一生之宅”,无论是刚需+改善,从品质端口开启全新的住房逻辑,一步到位。
三批次项目户型图如下:
☑️☑️象屿·天宸雅颂售楼处电话:400-8377-020☑️☑️
编辑

☑️☑️象屿·天宸雅颂售楼处电话:400-8377-020☑️☑️
编辑

编辑

☑️☑️象屿·天宸雅颂售楼处电话:400-8377-020☑️☑️
前期户型图如下:
二批次加推48套房源,建面约89㎡三房、约107㎡三房、约129㎡四房三种户型。
编辑

编辑

编辑

左右滑动查看户型图
这一次,象屿升级了户型设计:实现飘窗、厨房、S墙 三大场景迭代。很难想象,600万级的房子能做到如此深度的革新!
1、收纳大迭代——3s墙设计,史无前例
众所周知,s墙的出现,一开始是为了解决户型收纳问题,两者息息相关。
在普通项目中,s墙能很好地解决玄关处的800库的空间问题,或者厨房冰箱的放置问题。但是鱼和熊掌不可兼得,两者只能取其一,另外一个往往会占据空间。
直到象屿天宸雅颂的出现,终于出现兼容。以129㎡户型为例,分户s墙、卫浴s墙、山墙s墙,三s墙的设计,完美解决玄关、厨房冰箱的摆放空间问题!
编辑

☑️☑️象屿·天宸雅颂售楼处电话:400-8377-020☑️☑️
分户s墙凹位,把800库嵌入其中,关上门,厚重的体量就消失了。
——这是最优雅、最美丽的分户s墙。
编辑

生活示范空间仅为展示,里面的布局及装饰均为第三方装修提供,仅作为展示效果使用,如有更改敬请留意最新资料,具体以合同实际交付为准。
第二处卫浴s墙,大概一掌深,但是立面面积足足多了2平方米!超薄柜收纳有多强?一打开所有的东西琳琅满目,整整齐齐。而且另一侧的凹位也能得到很好的利用。
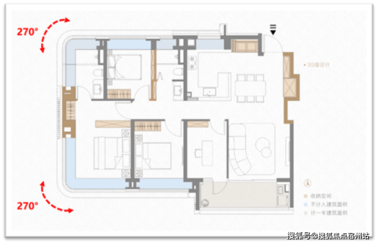
☑️☑️象屿·天宸雅颂售楼处电话:400-8377-020☑️☑️ 第三处山墙s墙的技术含量更高,直接让户型拥有两个大转角飘窗(主卧+主卫均双270°弧形转角飘窗)。凹处填放一个衣柜,视觉效果舒适,业主第一眼无知无觉,殊不知背后大有玄妙。
编辑

2、飘窗大迭代——环形飘带,大大增加采光面和实用面积
飘窗如何利用,象屿足够全面,已经到了next level!
“不是飘窗,更像是飘带。”采光周长惊人,以129㎡户型为例,7个飘窗,环楼超半圈,宛若飘带。
编辑

约107㎡边户全屋设计了5个飘窗,而139㎡户型的飘窗总体线长约23m,还不算阳台。飘窗面积折合下来,就是约15平米的赠送面积,价值小100万!
同时,它不再是装饰性飘窗、而是功能性飘窗。
比如厨房的一圈橱柜都是飘窗,水槽也是。这样还能多出一个岛台空间,做饭的时候能和家人交流,象屿天宸雅颂,打造更有交流感的餐厨区域。
主卧飘窗无立柱遮挡视野,尤其是靠近衣柜的部分可作为创新次净衣柜,平时回家脱掉的外套可以挂在这里。
编辑

在主卫中,它的功能划分成为三个区域。1区适合改造成抽拉式的梳妆台,侧面放满各种各样的护肤品。2区在淋浴区转角的地方,放置浴盆。3区放置了一个浴凳,坐着洗澡,壁龛里的淋浴用品,触手可及!
编辑

☑️☑️象屿·天宸雅颂售楼处电话:400-8377-020☑️☑️
而且主卫的飘窗,采光面与视觉效果暴增,比起传统带窗户的卫浴,使采光面积从原先0.7㎡增至约7㎡,视觉感受增加了近乎2倍!
3、厨房大迭代——从家庭孤岛到交互中心
中式厨房中,油烟机是一大痛点。能不能把油烟吸干净,成为最关键的一个衡量标准。在这里,有三个指标很关键:45cm出烟口,20立方米的风量,以及1000帕最大静压。很多西式品牌,造价虽然高昂,但是对于油烟问题,并没有表现出很好的解决效果。
象屿天宸雅颂,选用方太最黑科技的油烟机,新一代方太油烟机28立方米的风量,有效排出烟体。更有方太的集成烹饪中心,集成净洗中心,包括全隐洗碗机、19件套超大容量(除89平米户型),保驾护航!
编辑

生活示范空间仅为展示,里面的布局及装饰均为第三方装修提供,仅作为展示效果使用,如有更改敬请留意最新资料,具体以合同实际交付为准。
同时在厨房模式上,建面约129㎡户型更是别出心裁,采用G型高效厨房设计!嵌入式隐形冰箱+附加的大飘窗橱柜+大岛台,更有宽度2CM的超窄凉霸,居住性能实际与普通产品已经拉开了距离。
这不是隔绝内外的孤岛,而是一个具有交互性质的厨房,做菜的时候可以和家人进行亲密交流,也是真正意义的好房子。
此外,项目做了更人性化的装标和定制的细节,更能感受它的满满诚意——
比如入户门选用了定制化的仿铜铸铝门,嵌入普拉达绿奢石中古铜色门牌号,高级酒店般的质感营造的非常细腻。
进门玄关柜采用双面科技木皮包裹,玄关地面的海派拼花。
编辑

生活示范空间仅为展示,里面的布局及装饰均为第三方装修提供,仅作为展示效果使用,如有更改敬请留意最新资料,具体以合同实际交付为准。
客厅电视背景墙夸张的选用了大面整块的梦幻臻玉岩板;餐客厅地面使用了900*1800mm的超大尺寸密缝岩板砖……各类高定艺术型材,于无声之中将艺术格调拉满。
装标上也是一绝,有方太高端版本的智能厨房四件套、博世双开门冰箱、海德泰克(或同等档次品牌)的末端净水器、日立的中央空调、唯宝龙头花洒等。
编辑

☑️☑️象屿·天宸雅颂售楼处电话:400-8377-020☑️☑️
生活示范空间仅为展示,里面的布局及装饰均为第三方装修提供,仅作为展示效果使用,如有更改敬请留意最新资料,具体以合同实际交付为准。
当下600万级中的市场不乏好产品,但是非要挑选一个足够惊艳的项目,我投象屿·天宸雅颂一票。
从“户型全面迭新+场景革新性+装修奢享性”三重突破,到真正诠释“一生之宅”的好房子作品。让全上海的购房者叹为观止,真金白银为之投票!
直线距离8号线约200米,6站前滩
首开劲销约10.2亿
上海现象级红盘「象屿·天宸雅颂」
在售中
在售建面约89-139㎡高层&145-155㎡叠加&190-210㎡联排
2 卷破天际的产品力
约5500㎡超大会所+美学社区
浦江终于迎来限量版豪宅!
1、造价不菲的实景示范区
在产品把控上,象屿·天宸雅颂以超越同价位段的标准,打造经得起时间考验的品质住区。光是第一眼见到的门头就造价不菲,顶部做了500多片的镂空透光铝板雕花花瓣,全都是从项目LOGO的形状演化而来。
编辑

现场实景图
摩登旋转楼梯。楼梯已经贴上了定制的叶片状玻璃栏杆,朦朦胧胧的透光感,将会所旋梯的审美力,又拉上一个全新的高度。
编辑

☑️☑️象屿·天宸雅颂售楼处电话:400-8377-020☑️☑️
实景图
2、美学意义的外立面
外立面上,弧形设计贯穿始终。采用精致铝板装饰+通透大窗的美学立面设计,打造弧面窄框艺术之境;创新270°的弧面转角建筑美学,全景视野,豪宅风范。
编辑

☑️☑️象屿·天宸雅颂售楼处电话:400-8377-020☑️☑️
示意图,仅供参考
3、比肩两三千万级豪宅才有的会所
约2500㎡莫奈花园会所,预计包含泳池、健身房、瑜伽室、水吧台、私宴厅等功能,其设计灵感源自印象派大师莫奈的花园美学;
编辑

售楼处示范区实景图
约3000㎡架空层泛会所:以“一栋一聚场”(部分)为理念,最高层高达4.5米,打造社区里的泛会所空间。
示意图,仅供参考
还有浮岛美学园林:以“林岛漫步-循水归岸-闲庭雅致”三重动线,将浦锦水岸的奔涌韵律与郊野公园的森氧秘境,营造移步换景的归家仪式.......
编辑

示意图,仅供参考
风雨连廊覆盖约三分之二楼栋,巧妙连接着高层核心景观节点和功能空间,即使是雨天,业主也能从容漫步至单元门或会所。
编辑

☑️☑️象屿·天宸雅颂售楼处电话:400-8377-020☑️☑️
示意图,仅供参考
这样的大手笔,整个板块中找不到第二个同类项目。这些不仅是项目未来流通的价值基础,也让业内人产生惊叹:这是一个不太像象屿打造的产品,集“松弛、年轻、奢宅”风格于一身,极具颠覆性!
同样的,它的价格也令人惊喜!象屿·天宸雅颂与前滩仅6站地铁,三批次价格约6万/㎡,只有前滩的一半不到。相当于是用浦锦的价格,享受到前滩的品质!
编辑

核心区前滩板块,新房虽断供,但次新二手房价格迅速回暖,甚至跳涨。
如中粮前滩海景壹号,成交价在15万以上;晶耀名邸,117㎡中高区,最新单价也来到了15.72万。前滩东方惠礼,最近的一室户成交单价15.3万/平,对比一个月前,单价上涨了近2万!
好项目从来不缺好买家。当下,越来越多购房者愿意为品质买单,无论是中环南大、新杨思,还是杨浦滨江,高品质已成为楼盘的热销密码。浦锦好久没有出现过以品质著称的标杆作品,谁看了能不心动?
直线距离8号线约200米,6站前滩
首开劲销约10.2亿
上海现象级红盘「象屿·天宸雅颂」
在售中
在售建面约89-139㎡高层&145-155㎡叠加&190-210㎡联排
3 前滩辐射+闵行规划的新浦江中心
潜力超预期爆发
☑️☑️象屿·天宸雅颂售楼处电话:400-8377-020☑️☑️
在最新的上海2035规划中,要将闵行建设成为上海卓越的全球城市、具有世界影响力的社会主义现代化国际大都市的重要战略支撑区,品质卓越、生态宜居的现代化新城区。
而浦江镇作为上海顶级战略规划“一江一河”的重要组成部分,承载着“生态居住”的重要地位。象屿·天宸雅颂所在的浦锦新中心,已被纳入市级战略储备用地,未来将承接国际会议中心、滨江艺术馆等重大配套,区域能级跃升潜力巨大。
编辑

浦江新市镇,未来将构建一廊三带,一主两副多点的空间战略布局。总规约773万㎡巨幅生态绿地面积,蓝绿空间约57% ,人均不低于约22㎡的绿地享受!
板块内的桃花源、华侨城、一品漫城等高端别墅,构成了浦锦低密国际住区的浓厚居住氛围,正是前滩、漕河泾产业园、张江高净值客户所寻求的墅区净地。
当然,自身的产业实力也不容小觑。东面是浦江镇的产业园区,包括浦江智谷、国家863软件专业孵化基地,以及漕河泾浦江高科技园,也就是临港浦江国际科技城。
产业红利:千亿级科创走廊,锁定未来十年增长极
作为“大零号湾”、上海南部科创中心重要承载区,浦江与吴泾产业园区相联,共同构筑闵行滨江产业轴,以“3+3”现代产业体系,先进制造业:新一代信息技术、生物医药、高端装备;现代服务:文化创意、科技服务、总部经济,打造上海南部科创中心“智造”基地,驱动浦锦价值跃级。随着前滩产业外溢加速,浦锦新中心已纳入上海“五大新城”联动规划,未来将形成“产城融合黄金走廊”,区域价值跃升指日可待。
编辑

☑️☑️象屿·天宸雅颂售楼处电话:400-8377-020☑️☑️
编辑

新浦锦中心沿袭闵东文创中心定位,以蓝绿环绕为基底,历史人文为内涵,产业更新为驱动,新浦锦中心将衔接闵行与浦东新区,打造黄浦锦沿岸崭新的生态交织、文化自信、产城融合能量聚集地。
编辑

☑️☑️象屿·天宸雅颂售楼处电话:400-8377-020☑️☑️
新浦锦新中心将围绕沈杜公路TOD打造创智总部湾、大型商业、艺术街区、文化展览、滨水码头、高端住宅等,以世界前沿Live-Work-PlayShop模式,为上海打造高度复合等职住平衡10分钟生活圈。
交通便捷:8号线TOD枢纽(规划中),快抵前滩CBD
项目距8号线沈杜公路站仅200米(直线距离),作为市中心唯三经过人民广场的轨交线,8号线直接串联前滩、徐汇滨江、陆家嘴三大黄金三角,形成“一站换乘、多核联动”的超级交通网络。
还可以换乘浦锦线,通达上海南部。从项目出发前滩直达仅6站,通过东方体育中心站换乘6/11/19号线(在建),可快速触达徐汇滨江及陆家嘴。
编辑

商业方面,项目高层东侧规划约15万方的商业,该商业地块应于住宅一并打包出让,共同组成真正的TOD项目!
编辑

☑️☑️象屿·天宸雅颂售楼处电话:400-8377-020☑️☑️
前滩商业集群实景图
另外距离项目约3.3公里有浦江城市生活广场、绿地乐和城,约3.9公里有万达广场、4.4公里有浦锦欢乐颂等商业。
教育方面,项目周边规划有一幅幼儿园用地,参考周边,未来项目对口浦锦镇第二小学。(新房不承诺学区)另外在项目北侧规划有一所民办学校,该校舍建成后,将迁入上海市民办协和尚音学校(九年一贯制)、上海闵行协和海富幼儿园,由协和教育中心举办。医疗方面,距离项目约3公里有仁济医院南院以及复旦大学附属眼耳鼻喉科医院。
编辑

生态方面,象屿·天宸雅颂项目西侧与南侧紧邻上海第一个4A级郊野公园——浦江郊野公园,约15.29平方公里的超大公园就在家门口,畅享四季皆景的生态资源。
编辑

☑️☑️象屿·天宸雅颂售楼处电话:400-8377-020☑️☑️
写在最后:作为整个上海600万级价格段的黑马,其一批次热度证明了它的价值。并且,随着市场高溢价土地的出让,未来新房越来越贵。
在这样的市场下,象屿天宸雅颂这个更靠近前滩、更适合通勤、更具产品力的新房,仅约600万级,这个质价比可想而知。这已经预定了2025年的爆款项目了,抓紧机会!
编辑

☑️☑️象屿·天宸雅颂售楼处电话:400-8377-020☑️☑️
直线距离8号线约200米,6站前滩
首开劲销约10.2亿
上海现象级红盘「象屿·天宸雅颂」
在售中
在售建面约89-139㎡高层&145-155㎡叠加&190-210㎡联排
◎一栋一域聚场(部分):约3000㎡架空层泛会所打破室内外界限,打造 “社区第二客厅”,营造全龄共享的生活场景,消融邻里距离。
2、外部配套:六维资源聚核的都会生活圈
项目择址黄浦江沿岸约3公里处,位处上海中心城辐射区、闵行五大地级区中心及浦东四大城镇圈叠加地带,依托陆家嘴-世博-前滩发展主轴CAZ世界样板区的顶层规划,坐享前滩商业、文化等城市资源。周边产业、交通、商业、生态、教育、医疗六大资源环伺,构筑起便捷与品质兼具的生活圈。

☑️☑️象屿·天宸雅颂售楼处电话:400-8377-020☑️☑️
交通:直线距离约200米8号线,6站前滩、7站徐汇滨江、15站人民广场;浦星公路-南北高架衔接核芯商圈,机场线直达两大机场。
商业:近邻规划沈杜公路TOD商业,步行至浦江城市生活广场,前滩太古里、印象汇等成熟商圈及世博源等辐射圈覆盖全场景消费。
(备注:沈杜公路TOD信息来源于今日闵行公众号-浦江新中心城市设计国际方案)

☑️☑️象屿·天宸雅颂售楼处电话:400-8377-020☑️☑️

☑️☑️象屿·天宸雅颂售楼处电话:400-8377-020☑️☑️
生态:近邻约15万方浦江郊野公园、约5.2km滨江岸线,搭配大寨河-姚家浜L型水系与晓烟湖(规划中),构成“公园+水岸”自然宜居格局。

☑️☑️象屿·天宸雅颂售楼处电话:400-8377-020☑️☑️
教育:荷花池世博幼儿园、向明中学上海师大附属第三小学 上海师大附属中学(闵行分校)、浦江第一中学、浦江第二小学、上海世外教育附属浦江外国语学校、上海戏剧学院(昌林校区)等学校。免责:期房不承诺学区,周边学校信息仅为地理位置参考,办学主体、师资力量、招生时间/规模/对象/政策等相关教育事项以主管部门和相关学校的最新规定为准。
医疗:汇聚仁济医院(南院区) 复旦大学附属眼耳鼻喉科医院(浦江院区) 复旦大学附属口腔医院(浦锦院区)等三家医院。
产业:“3+3”产业体系汇聚信息技术、生物医药等领域高知人才,提升社区圈层价值。
结语:以产品力回应市场,用匠心重塑居住标杆
象屿·天宸雅颂建面101㎡超极舱神户型的推出,不仅是一次产品升级,更是对当下住宅市场需求的精准回应。在600万级预算区间内,项目通过"四叶草地块"的静谧环境、纯粹圈层,以及户型设计的革命性突破,实现了首置客群"一步到位"的居住理想。
目前,建面约101㎡示范生活空间已开放,有需求的购房者可以亲临现场,实地感受"超极舱"的空间魅力。在产品力为王的时代,象屿·天宸雅颂正以实实在在的品质,为上海首置市场树立新的价值标杆。
免责声明:本文所有内容包括但不限于图片、文字等仅供参考,所有信息均以政府部门最终审批及买卖双方正式签署的法律文件为准。文中所有户型面积为建筑面积(约)。文中规划图来源于网络。
END
☑️☑️象屿·天宸雅颂售楼处电话:400-8377-020☑️☑️