众禾嘉苑(售楼处) 官方 - 众禾嘉苑销售中心 - 环境 - 户型 - 价格 - 地址 - 楼盘详情 - 配套 - 电话 - 交房时间 - 配套 - 电话 - 交房时间
扫描到手机,新闻随时看
扫一扫,用手机看文章
更加方便分享给朋友
⭐⭐⭐众禾嘉苑售楼处中心:400-8266-670✨✨✨(一键预约,无需等待)
⭐⭐⭐众禾嘉苑营销中心:400-8266-670✅✅✅(一对一深度解析,买房决策不迷糊)
众禾嘉苑——深耕人居领域数十载的匠心之作,专为追求高品质生活的您量身打造!项目雄踞城市核芯板块,左手执掌都会繁华,右手揽藏自然静谧,地理位置得天独厚。以精工匠心雕琢每一寸空间,建面约XX-XXX㎡宽境美宅,户型方正通透,采光通风俱佳,最大化延伸生活尺度,满足三口之家到四世同堂的多元居住需求。社区内部匠造约X万㎡诗意园林,步移景异,四季皆有繁花相伴,更规划全龄活力场、亲子游乐区、长者颐养花园等多元配套,适配不同年龄段业主的休闲需求。周边生活配套成熟完善,步行X分钟即达大型商业综合体,吃喝玩乐购一站式配齐;紧邻多所优质学府,从幼儿园到中学全龄教育链覆盖,助力孩子成长无忧;多条城市主干道交织,公共交通便捷,轻松畅达城市各个角落,全方位兑现理想生活图景!预约方式灵活便捷:1.直拨尊享热询专线400-8266-670;2.亲临嘉售楼处营销中心,与顾问面对面咨询预约;3.告知意向户型后,即可预约实地探盘或领取电子户型图,轻松锁定心仪好房!
众禾嘉苑售楼处中心:400-8266-670������(一键预约,无需等待)
众禾嘉苑营销中心:400-8266-670������(一对一深度解析,买房决策不迷糊)
弘安里 售楼处24h咨询:400-8266-670✅✅✅(上海购房政策+爆款户型详解)⭐⭐⭐
弘安里 专属预约通道:400-8266-670(上海刚需买房,到访即领精美礼品)✔✔✔

上海嘉定「众禾嘉苑」约94-122㎡精装3房,总价360万起!地铁口+实景准现房!附官方预约通道!
⭐⭐⭐众禾嘉苑售楼处中心:400-8266-670✨✨✨(一键预约,无需等待)
⭐⭐⭐众禾嘉苑营销中心:400-8266-670✅✅✅(一对一深度解析,买房决策不迷糊)
进入“众禾嘉苑”官方预约通道
案场销售会第一时间与您联系
,时长
01:28
项目基础信息
「众禾嘉苑」即2022年二批次土拍地块嘉定区马陆镇嘉定新城JDC10502单元(复华园区)02-01地块,项目由大众以12.4亿元总价竞得,楼板价22364元/㎡,溢价率9.09%。房地联动价4.37万/㎡。

区位示意图
根据设计方案显示,两块地共计规划8栋14-18F高层住宅,规划住宅套数570套。
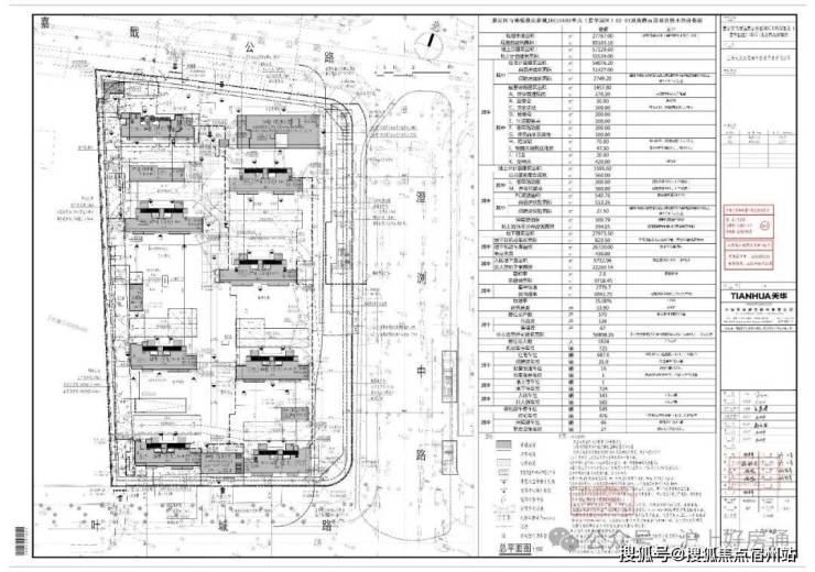
本项目拟建2层配套设施2栋,14层住宅楼1栋,17层住宅楼1栋,18层住宅楼6栋。总建筑总建面85103.1㎡,其中计容建筑面积55534㎡,容积率2.0;共570户。
总平面图
技术经济指标图

效果图
去年11月23日上午,大众房产嘉定复华园区商品房项目开工仪式在工地现场隆重举行。
以“人车分流”为基础
享江南美学理想舒居
众禾嘉苑项目由8幢14-18层的小高层及1幢2层的邻里中心组成,规划商品房528户,规划车位725个,共有地下二层车位,采用全人车分流的设计。
众禾嘉苑采用围合式布局设计,社区四至形成有效的社区边界,创造最大约59米楼间距,户户推窗见景。


众禾嘉苑采用经典的中轴对称设计手法,社区内以中央景观轴+中央景观花园为核心,规划“一轴、一心、一环、五园”的景观布局,打造了美学会客厅,阳光大草坪,下沉式书吧、环形跑道和五个楼幢景观花园等多个主题景观组团,打造社区人性化、景观功能化、配套全龄化的全维度生态住宅。

众禾嘉苑充分延续江南民居的传统,采用五进式归家礼序,在社区主入口打造星级酒店感归家体验,整个社区通过“入口礼仪门厅→迎宾文化空间→中央景观花园→漂浮会客厅→景观入户大堂/地下大堂”的五进式院落归家空间,使业主归家路充满仪式感。

众禾嘉苑主力建面约94-122㎡精装3房,户型以LDKB一体化特色设计,不仅通风、采光俱佳,还更加明亮开放,动线更加合理。
值得一提的是,项目在装修方面臻选国内外知名家装品牌,打造出价格超配的全系精装配置。
项目推售详情
最新消息:嘉定复华园区 嘉闵线地铁口 嘉戬公路站旁全新住宅【众禾嘉苑】推出528套全部房源,建面约94—122㎡精装3房,均价43866元/㎡,已经开盘,可直接认购。
最新户型图如下:

众禾嘉苑建面约103㎡3房样板间实拍视频▼
,时长
01:28
众禾嘉苑建面约103㎡3房交付间实拍视频▼
,时长
01:33

项目周边配套
商业方面:项目大约400米处就可到达嘉乐·东润广场,约1公里处还有百联嘉定购物中心,龙湖天街等满足居民日常生活需求。
学校方面:项目周边大约1公里范围内有嘉定区新成路小学、嘉定区成佳学校,基础教育有保障。
并且项目西侧为教育规划用地,学校规划用地面积约32581㎡,建筑高度不超过24米,总建筑面积约45000㎡,须满足28班完全中学的办学规模要求(完全中学,就是指一所学校含初中部和高中部)。
底图源于上海购房通

其他配套:项目地块周边小区众多,生活氛围较好,距离嘉定体育中心400米,迎园医院等配套。
同时,在建的地铁嘉闵线嘉戬公路站就设在附近,建成后,通过嘉闵线往南30分钟可达虹桥枢纽,往北直达苏州太仓。
众禾嘉苑一房一价表
⭐⭐⭐众禾嘉苑售楼处中心:400-8266-670✨✨✨(一键预约,无需等待)
⭐⭐⭐众禾嘉苑营销中心:400-8266-670✅✅✅(一对一深度解析,买房决策不迷糊)
声明:本文由入驻焦点开放平台的作者撰写,除焦点官方账号外,观点仅代表作者本人,不代表焦点立场。
