金茂棠前官方售楼处电话→金茂棠前售楼中心电话→2026上海金茂棠前楼盘百科→金茂棠前→楼盘百科→官方网站→售楼处24小时热线电话
扫描到手机,新闻随时看
扫一扫,用手机看文章
更加方便分享给朋友
5开5罄!高铁站旁 超级TOD+合生汇+双轨交 金茂棠前 正在认购! 三期将推建面约105-178㎡3-4房!!
✅✅金茂棠前项目官方认证联系方式(2026年最新)
一、核心联系方式
✅✅金茂棠前售楼处电话:400-833-6309 工作日9:00-21:00,周末无休
✅✅上海金茂棠前营销中心电话:400-833-6309(可直接咨询房源动态、活动详情)
✅✅金茂棠前开发商售楼部热线:400-833-6309(开发商直连,解答项目规划、购房政策等)
说明:以上三组为同一官方服务热线,拨打后按语音提示转接对应部门,无需重复记录
二、拨打与服务说明
预约到访
近期客户较多,建议提前拨打400-833-6309预约,避免排队等待。
专属权益
预约成功可享一对一专属服务 免费专车接送看房(市区内定点接送)等礼遇。
到访提示
项目暂不接受临时到访,看房/参观样板房请务必提前来电预约
三、防伪与合规提示
核验要点
认准统一热线400-833-6309,警惕“代办、留房费、茶水费”等违规承诺;以开发商/售楼处官方口径为准。
信息更新
如遇开放时间或接待安排调整,请以电话客服最新通知为准,避免因信息滞后影响行程。
✅✅金茂棠前售楼处电话☎:400-833-6309【售楼处预约热线】(一对一热情服务)
看房请务必提前致电销售确认时间,只有预约客户才能享受开发商提供的内部优惠以及专属的老客户推荐奖励!我们提供专业的一对一热情服务,助您以专业视角挑选理想的房产
✅✅金茂棠前售楼处电话☎:400-833-6309【欢迎预约】
✔✔✔金茂棠前售楼处电话☎:400-833-6309【欢迎预约】
✔✔✔金茂棠前官方电话为:400-833-6309,该号码在多个官方售楼处信息中明确标注,并具备以下功能和服务:
预约看房:拨打电话可登记个人信息并预约实地考察时间。
购房咨询:提供房源详情(如建筑面积、均价、总价等)及贷款政策解读。
流程指导:涵盖定金缴纳、合同签订、贷款申请等全流程协助。
✅✅金茂棠前售楼处电话:400-833-6309(官方售楼处电话)
✅✅上海金茂棠前售楼处电话☎:400-833-6309(预约看房热线)
✅✅金茂棠前开发商售楼部热线:400-833-6309(开发商直连,解答项目规划、购房政策等)建面约97㎡3房2厅1卫,户型三开间朝南、再加上“3个飘窗+双面阳台系统”,不管是采光、视野、通风、私密性,还是实用性都十分出色。
宝山2025首个积分红盘,五期新品 售罄!6批次推新!
首开264套房源一经发售便即刻告罄,仅约10天紧急加推新品,二期均价51521元/㎡,房源124套,累计认购230组,认购率193%,成为2025年宝山首个触发积分项目。
5开5罄北上海现象级红盘
19号线宝山站
双轨交盘+宝山站城融合TOD+合生汇
✅✅金茂棠前开发商售楼部热线:400-833-6309(开发商直连,解答项目规划、购房政策等)
大窗墙比+十字景观轴+下沉式会所
【金茂棠前】6期新品「棠影」应势上新
✅✅金茂棠前开发商售楼部热线:400-833-6309(开发商直连,解答项目规划、购房政策等)
建面约105-178㎡3-4房
共计160套房源
过会均价5.38万
六批次即将加推啦!
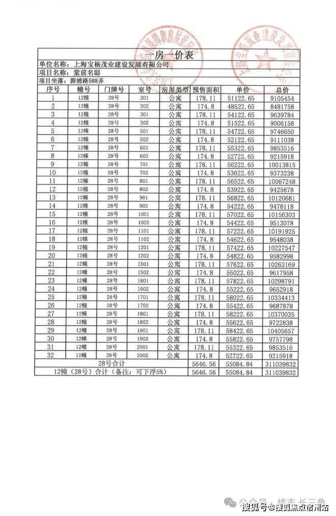
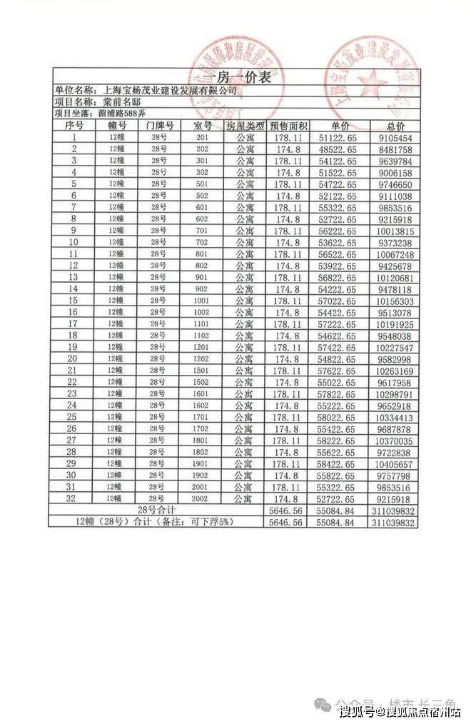
最新一房一价表:
✅✅金茂棠前开发商售楼部热线:400-833-6309(开发商直连,解答项目规划、购房政策等)
✅✅金茂棠前开发商售楼部热线:400-833-6309(开发商直连,解答项目规划、购房政策等)
金茂棠前可谓是掀起北上海楼市的现象级狂潮,为什么金茂棠前热度空前?
①超级合生汇正式落户北部枢纽!
4月18日,合生创展集团旗下高端商业品牌“合生汇”,正式签下高铁上海宝山站商业运营管理权,这是上海第三座、宝山第一座超级合生汇!
这一战略合作标志着北上海将崛起一座集交通枢纽、商业体验于一体的城市新地标,将为这座超级枢纽注入全新的商业活力。
②北上海门槛级高阶作品,金茂产品力超越时代!
✅✅金茂棠前开发商售楼部热线:400-833-6309(开发商直连,解答项目规划、购房政策等)
北上海并不缺住宅,缺少的是真正划时代的改善产品。金茂棠前恰巧填补了一个空白。
✅✅金茂棠前开发商售楼部热线:400-833-6309(开发商直连,解答项目规划、购房政策等)
金茂近期在土拍市场的强势表现堪称现象级,连下五子,一方面,足见金茂深耕上海、布局未来的决心;
另一方面,政府层面再三强调推进“好房子”的建设,而金茂早在政策之前就深耕高端住宅领域,在产品力上持续迭代经营,是当之无愧的引领者。
区别传统开发商,金茂是一个全维度破局者,从择址、立面审美、景观营造、科技系统再到精装细节,乃至物业,皆是行业引领者。
✅✅金茂棠前开发商售楼部热线:400-833-6309(开发商直连,解答项目规划、购房政策等)
金茂眼光独到落子大吴淞北部枢纽,带来上海第一座金茂“棠”系作品,将代表整个区域的人居水平,有着风向标式的意义!
③双轨环绕的超级TOD复合体,你见过吗?
过去的几年,TOD从早前的“地铁+住宅”,升级到“地铁+住宅+商业”。
而金茂精准卡位北部枢纽的发展节奏,带来一座超级TOD复合体,高铁+地铁站+城+产+商+居一体化,引领跨时代的居住方式变革!
④全维超配,北上海新的城市天际线!
金茂棠前围绕“TOD国际汇合住区”,构建起全维超配的居住体验。
社区配置有约280米南北景观主轴+约220米东西副轴+下沉式会所+下沉庭院+部分楼栋首层架空+户型革新+科技系统,媲美千万级豪宅的公区和产品力!
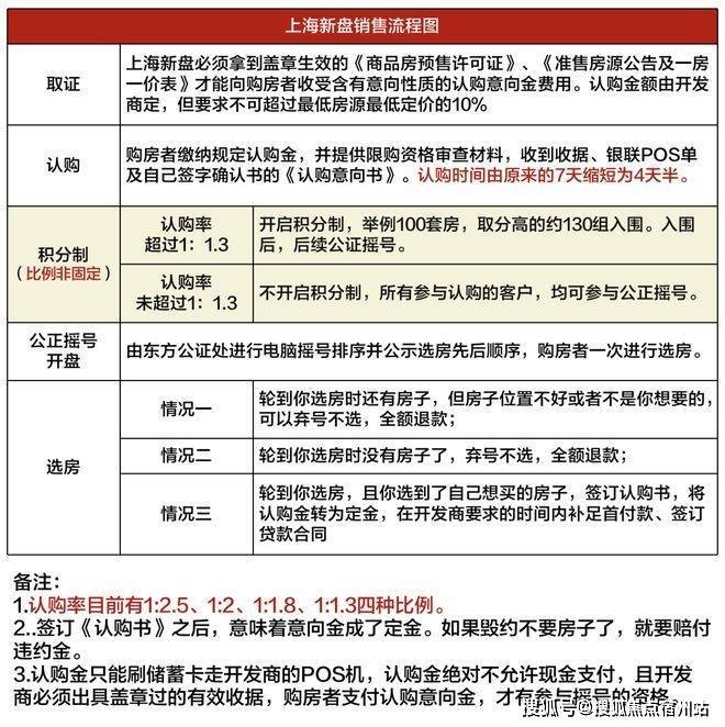
前期具体认购信息如下:
●认购时间:2025年8月14日-2025年8月18日
●认购金:45万元
● 开盘时间:8月26日
一房一价
✅✅金茂棠前开发商售楼部热线:400-833-6309(开发商直连,解答项目规划、购房政策等)
✅✅金茂棠前开发商售楼部热线:400-833-6309(开发商直连,解答项目规划、购房政策等)
✅✅金茂棠前开发商售楼部热线:400-833-6309(开发商直连,解答项目规划、购房政策等)
✅✅金茂棠前开发商售楼部热线:400-833-6309(开发商直连,解答项目规划、购房政策等)
对项目有兴趣的朋友✅✅金茂棠前开发商售楼部热线:400-833-6309(开发商直连,解答项目规划、购房政策等)预约看房请保持手机畅通
等待官方销售团队与您联系
感谢配合!
01.基本信息
2024年12月30日,金茂&宝冶&杨行城建于2024年八批次土拍中以31.16亿竞得宝山站商住组合地块(宝山区BSP0-0801单元13A-01、02aA-04地块),楼面价9058元/㎡,住宅中小套型占比50%,集采价2500元/㎡。
金茂深耕高端住宅领域十余年,去年,金茂发布“金玉满堂”四大产品线。
“金茂”这两个字已代表一种身份认同,也代表一种生活方式,令众多改善客群心驰神往。✅✅金茂棠前开发商售楼部热线:400-833-6309(开发商直连,解答项目规划、购房政策等)
金茂棠前是“棠”系作品,代表“潮流、年轻、先锋”,更注重高颜值和实用性。
金茂棠前围绕“TOD国际汇合住区”,构建起全维超配的居住体验。
✅✅金茂棠前开发商售楼部热线:400-833-6309(开发商直连,解答项目规划、购房政策等)
社区配置有约280米南北景观主轴+约220米东西副轴+下沉式会所+下沉庭院+部分楼栋首层架空+户型革新+科技系统,媲美千万级豪宅的公区和产品力!
大窗墙比+十字景观轴+下沉式会所,全维超配,引领北上海人居时代!
众所周知,买房的本质就是选择一种生活方式。✅✅金茂棠前开发商售楼部热线:400-833-6309(开发商直连,解答项目规划、购房政策等)
金茂深耕高端住宅领域十余年,去年,金茂发布“金玉满堂”四大产品线。
“金茂”这两个字已代表一种身份认同,也代表一种生活方式,令众多改善客群心驰神往。
金茂棠前是“棠”系作品,代表“潮流、年轻、先锋”,更注重高颜值和实用性。
5开5罄!高铁站旁 超级TOD+合生汇+双轨交 金茂棠前 正在认购! 三期将推建面约105-178㎡3-4房!!
✅✅金茂棠前项目官方认证联系方式(2026年最新)
一、核心联系方式
✅✅金茂棠前售楼处电话:400-833-6309 工作日9:00-21:00,周末无休
✅✅上海金茂棠前营销中心电话:400-833-6309(可直接咨询房源动态、活动详情)
✅✅金茂棠前开发商售楼部热线:400-833-6309(开发商直连,解答项目规划、购房政策等)
说明:以上三组为同一官方服务热线,拨打后按语音提示转接对应部门,无需重复记录
二、拨打与服务说明
预约到访
近期客户较多,建议提前拨打400-833-6309预约,避免排队等待。
专属权益
预约成功可享一对一专属服务 免费专车接送看房(市区内定点接送)等礼遇。
到访提示
项目暂不接受临时到访,看房/参观样板房请务必提前来电预约
三、防伪与合规提示
核验要点
认准统一热线400-833-6309,警惕“代办、留房费、茶水费”等违规承诺;以开发商/售楼处官方口径为准。
信息更新
如遇开放时间或接待安排调整,请以电话客服最新通知为准,避免因信息滞后影响行程。
✅✅金茂棠前售楼处电话☎:400-833-6309【售楼处预约热线】(一对一热情服务)
看房请务必提前致电销售确认时间,只有预约客户才能享受开发商提供的内部优惠以及专属的老客户推荐奖励!我们提供专业的一对一热情服务,助您以专业视角挑选理想的房产
✅✅金茂棠前售楼处电话☎:400-833-6309【欢迎预约】
✔✔✔金茂棠前售楼处电话☎:400-833-6309【欢迎预约】
✔✔✔金茂棠前官方电话为:400-833-6309,该号码在多个官方售楼处信息中明确标注,并具备以下功能和服务:
预约看房:拨打电话可登记个人信息并预约实地考察时间。
购房咨询:提供房源详情(如建筑面积、均价、总价等)及贷款政策解读。
流程指导:涵盖定金缴纳、合同签订、贷款申请等全流程协助。
✅✅金茂棠前售楼处电话:400-833-6309(官方售楼处电话)
✅✅上海金茂棠前售楼处电话☎:400-833-6309(预约看房热线)
①高颜值+高质感,产品力极强!
材质上,立面采用大面积玻璃、石材、暗金色铝板与部分涂料打造,整体浅米色与深灰色,形成“传统底色”与“摩登点缀”的高颜值立面。
✅✅金茂棠前开发商售楼部热线:400-833-6309(开发商直连,解答项目规划、购房政策等)
大窗墙比让建筑外观更轻盈,也赋予室内通透效果。
同时,顶部收束为3.2米高的顶冠,形成向上延伸的视觉张力。
②极具辨识度的大门,邂逅尊崇归家仪式感!
社区大堂极具仪式感,未来会采用地下会所设计,入口采用三重弧形石材墙体+圆角幻彩穿孔顶,夜幕下如流淌的鎏金河流。
北入口社区大堂、下沉会所、下沉庭院与部分楼首层架空设计联合打造社区共享客厅,以折型风雨廊围合庭院空间,让业主的归家仪式感焕然一新。
③超长十字景观轴,城市与社区的叙事长廊!
项目以约280米南北主轴与220米东西副轴构建“十字绿网”,串联三大城市界面与组团绿地。✅✅金茂棠前开发商售楼部热线:400-833-6309(开发商直连,解答项目规划、购房政策等)
东西副轴串联6个主题口袋花园,以“里弄花园”为原型,通过水磨石铺装、镂空锈钢板景墙、攀援紫藤花架等元素,构建亲近自然尺度宜人的邻里交往空间。
④配备同级罕见的下沉式会所!
会所是财富的象征与身份的标签。从伦敦海德公园一号,到纽约哈德逊广场15号,再到上海汤臣一品,会所都是标配。
金茂棠前打造了一个对标千万级豪宅才有的下沉式会所,这里是圈层进阶的社交场,更是分享志趣和品味的绝佳之处!✅✅金茂棠前开发商售楼部热线:400-833-6309(开发商直连,解答项目规划、购房政策等)
✅✅金茂棠前开发商售楼部热线:400-833-6309(开发商直连,解答项目规划、购房政策等)会所设置有健身区、恒温泳池、私宴厅、茶室、儿童天地等多元功能。
项目打造了恒温泳池,非常贴心为低年龄段业主设计了独立儿童泳池,与主泳池分开,让小朋友享受畅游乐趣的同时确保安全。
✅✅金茂棠前开发商售楼部热线:400-833-6309(开发商直连,解答项目规划、购房政策等)
✅✅金茂棠前开发商售楼部热线:400-833-6309(开发商直连,解答项目规划、购房政策等)
会所沿着下沉庭院四周展开,将自然与松弛感带给社区。
02.推售信息
✅✅金茂棠前开发商售楼部热线:400-833-6309(开发商直连,解答项目规划、购房政策等)
户型革新+金茂科技系统+超大附加空间,为业主高定个性化生活!
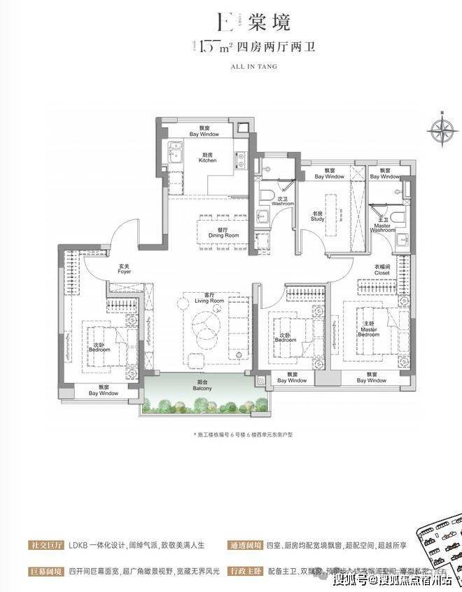
金茂棠前主力户型有建面约85、97、105、117、137、152、178㎡2-4房,多样空间选择,购房者可以根据预算及居住需求随意挑选。
三期加推10幢105平➕117平共60套。9幢137平➕152平共68套,12幢178平32套共160套,全面革新户型+超大附加空间+多重收纳空间+金茂科技系统传承,产品力遥遥领先!
✅✅金茂棠前开发商售楼部热线:400-833-6309(开发商直连,解答项目规划、购房政策等)
建面约85㎡2房2厅1卫,做到了双开间朝南+3个飘窗+LDKB一体化设计,附加空间非常多。✅✅金茂棠前开发商售楼部热线:400-833-6309(开发商直连,解答项目规划、购房政策等)
入户设置玄关柜空间,创新S墙设计,预留内嵌冰箱空间,冰箱外移也解放了厨房空间。
该户型总价仅约400万级,非常适合单身青年或首置过渡!
南向配置观景阳台+家政阳台,通过可分可合的隔墙实现“景观-功能”自由转换,阳台栏板采用全景玻璃,更大限度引入社区精彩景观视野。
玄关和厨房旁都打造了收纳空间,除了2个主卧,厨房也带飘窗,通过大量飘窗等附加面积提升尺度感!✅✅金茂棠前开发商售楼部热线:400-833-6309(开发商直连,解答项目规划、购房政策等)
建面约105㎡3房2厅2卫,做到了三开间朝南+4个飘窗+双面阳台系统+主卧套房设计+270°转角飘窗,该户型的居住体验、舒适度、尺度感,是同级别产品所无法比拟的。✅✅金茂棠前开发商售楼部热线:400-833-6309(开发商直连,解答项目规划、购房政策等)
足足2个阳台+4个飘窗,2个卧室,1个卫生间,1个厨房全部“扩容”,尤其是主卧270°全景飘窗的设计非常少见,未来窗外的胜境将一览无余。
飞机户型天然对空间的利用更充分,整个户型以客餐厅为中心点,自然延伸至各个功能间,室内几乎没有被浪费的过道面积。
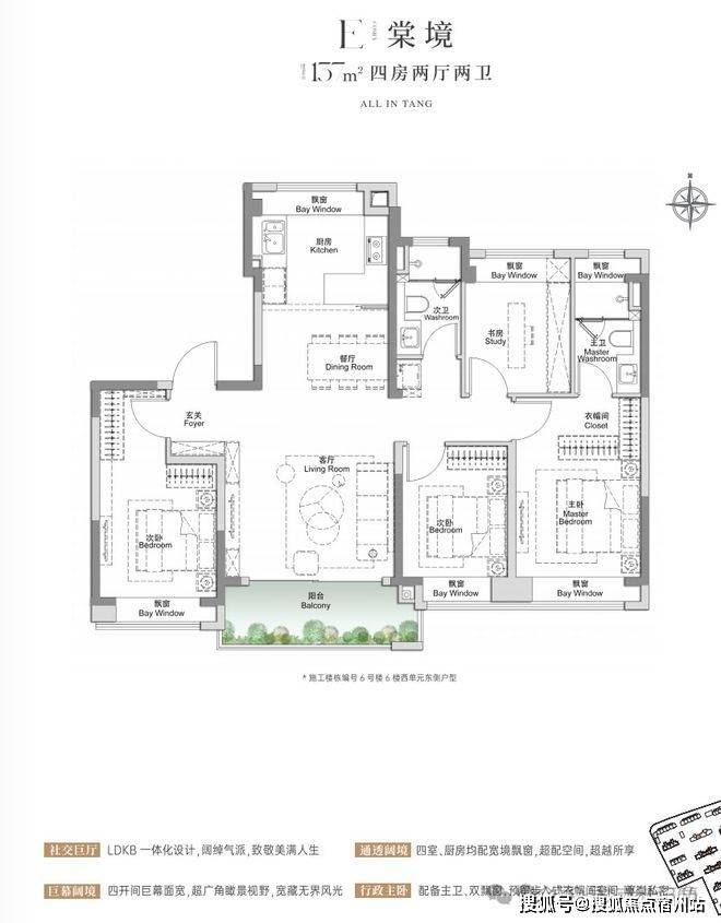
建面约117㎡3房2厅2卫,做到了3+1开间朝南+5个飘窗+主卧套房设计+270°转角飘窗,所有的尺度都有进一步提升。
客餐厅一体化设计,尺度不凡的客厅搭配宽景阳台,整个南向采光面非常大。
主卧带270°转角飘窗+卫生间,拥有寰宇级瞰景视野,让业主有更好的私密性和生活舒适度。✅✅金茂棠前开发商售楼部热线:400-833-6309(开发商直连,解答项目规划、购房政策等)
该户型是“一步到位”的大3房,无论是功能性还是尺度感,是北上海改善置换金字塔塔尖的存在,未来纵享长久板块发展红利!
✅✅金茂棠前开发商售楼部热线:400-833-6309(开发商直连,解答项目规划、购房政策等)
03.版块信息
宝山站城融合TOD+双轨环绕,北上海超级TOD复合体,值得关注!
整个北上海的价值体系正在格局重构,大吴淞地区作为上海的北门户,未来价值预期也在不断拔高。
在这样的市场下,金茂棠前以刚需的价格买高质价比产品,真的太香了!
大吴淞地区将打造上海下一个世界级滨水城区,总规划面积约110平方公里,其中,吴淞创新城、北部枢纽、吴淞口国际邮轮港是重中之重。
北部超级枢纽以宝山高铁站为核心,建成后将成为上海第四大高铁站,将串联长江经济带,连接长三角、中三角、成渝地区,与虹桥枢纽相辅相成。(数据引用自“上海发布”《宝山高铁站将于今年正式开工》)
金茂棠前作为宝山站城融合TOD首发产品,未来将实现与高铁站的无缝衔接,承接北部枢纽一线辐射利好。✅✅金茂棠前开发商售楼部热线:400-833-6309(开发商直连,解答项目规划、购房政策等)
✅✅金茂棠前开发商售楼部热线:400-833-6309(开发商直连,解答项目规划、购房政策等)交通枢纽对周边区域的影响至深,是有迹可循的。
众所周知,大虹桥的势能之高,对青浦徐泾、闵行华漕等区域价值高度的提升堪称造富神话!
这种影响不仅体现在经济层面,还涵盖交通、产业、商业、居住等多个维度,全方位拉伸这些区域的价值。
在经历过一波市场低迷之后,大虹桥周边5公里左右的品质次新房价格非常坚挺,轨交沿线的TOD次新房价格甚至更高。
相比普通楼盘,TOD综合项目本身也有较强的溢价能力,莘庄天荟、万科天空之城等TOD项目都已给出有说服力的结论。
✅✅金茂棠前开发商售楼部热线:400-833-6309(开发商直连,解答项目规划、购房政策等)
更何况,金茂棠前是超级TOD复合体,跨时代的居住革新,未来价值不可估量。
更难得的是,金茂棠前还是上海外环外罕见的双轨交盘!
项目与19号线宝山站(在建)直线距离仅约700米,与3号线铁力路站直线距离约800米,通勤市区非常方便。
通过1号线,可直达静安大宁、人民广场、徐家汇等市区重要节点。
通过19号线,更是可以直达北外滩、陆家嘴、世博滨江、前滩等市区CBD。
这两条轨交线沿线皆是上海重量级板块,含金量非常高,将彻底打通项目及北部枢纽与上海市区之间的价值链条。✅✅金茂棠前开发商售楼部热线:400-833-6309(开发商直连,解答项目规划、购房政策等)
大吴淞地区的规划、开发、建设进入快车道,规划快速落地及兑现。
✅✅金茂棠前开发商售楼部热线:400-833-6309(开发商直连,解答项目规划、购房政策等)
宝山高铁站、特钢区域180米超高层等地标、全开放式上大美院等相续开工建设;
宝山复旦科创中心已宣告启用,复旦大学12个工程技术研究中心的科技成果转化基地将相继落户。(信息来源:上观新闻)
这里正处在价值爆发的前夕,与上海TOP级“潜力股”发展红利绑定的机遇就在眼前,而金茂棠前就是更优秀解!
宝山高铁站是近年大吴淞地区乃至上海的重要工程,沪渝蓉铁路、沪苏通铁路二期及19号线(在建)等在此处汇集。
✅✅金茂棠前开发商售楼部热线:400-833-6309(开发商直连,解答项目规划、购房政策等)
相关部门测算过未来客流规模,预计年客流量约5400万人次。(数据来源解放日报)
根据《大吴淞地区专项规划》,上海宝山站以枢纽商贸组团的设计定位存在,旨在打造“立体公园城市”。
高铁宝山站枢纽总建筑面积约48万㎡,其中,站前广场建筑面积约39万㎡,含酒店、办公、商业综合服务等业态。
合生汇宝山站项目总商业面积约11.5万㎡,其设计灵感也将充分融合高铁站六边形建筑元素。✅✅金茂棠前开发商售楼部热线:400-833-6309(开发商直连,解答项目规划、购房政策等)
✅✅金茂棠前开发商售楼部热线:400-833-6309(开发商直连,解答项目规划、购房政策等)这座逐步崛起的未来之城,未来将重点发展商务办公、科研以及居住功能,规划有商务办公楼、生态住区、学校、公园、文化场馆、科创产业园区等业态。
所以,北站枢纽未来有望成为北上海强劲龙头板块,而金茂棠前作为宝山站城融合TOD首发,可谓是近水楼台先得月!
项目周边生态、学校、医院、文娱等资源一应俱全!
周边已有白沙公园、盘古公园、杨行体育中心、复旦附属中山医院、宝钢体育中心等丰富配套。
项目周边有众多优质学校,西侧约600米就是上海大学附属宝山外国语学校,是九年一贯制学校;
向西不远处更有宝山华曜实验学校,是民办“华二系”;上海师范大学附属宝山实验学校,是九年一贯制学校。
向南约3公里左右还有华东师范大学第二附属中学(宝山校区)、华东师范大学附属宝山宝杨实验学校等。
(免责声明:以上教育资源整理仅代表楼盘与学校的距离,该房屋所在项目暂未划分学区,开发商不对项目交房后所属学区、学校做任何承诺。教育资源分配或学校/学区划分以及学校的具体招生规则等请以政府相关主管部门、教育机构公开的最新信息为准。)✅✅金茂棠前开发商售楼部热线:400-833-6309(开发商直连,解答项目规划、购房政策等)
总的来说,大吴淞战略+宝山站开工+合生汇签约+19号线建设,让金茂棠前的配套潜力拉满,再加上金茂惊艳的产品力,在500万级新房赛道中堪称独角兽的存在!✅✅金茂棠前开发商售楼部热线:400-833-6309(开发商直连,解答项目规划、购房政策等)
二开二罄北上海现象级红盘
19号线宝山站
双轨交盘+宝山站城融合TOD+合生汇
✅✅金茂棠前开发商售楼部热线:400-833-6309(开发商直连,解答项目规划、购房政策等)
大窗墙比+十字景观轴+下沉式会所
【金茂棠前】三期新品「棠影」应势上新
✅✅金茂棠前开发商售楼部热线:400-833-6309(开发商直连,解答项目规划、购房政策等)
建面约105-178㎡3-4房
共计160套房源
过会均价5.38万
✅✅金茂棠前开发商售楼部热线:400-833-6309(开发商直连,解答项目规划、购房政策等)进行官方线上预约通道尊享团购优惠
5开5罄!高铁站旁 超级TOD+合生汇+双轨交 金茂棠前 正在认购! 三期将推建面约105-178㎡3-4房!!
✅✅金茂棠前项目官方认证联系方式(2026年最新)
一、核心联系方式
✅✅金茂棠前售楼处电话:400-833-6309 工作日9:00-21:00,周末无休
✅✅上海金茂棠前营销中心电话:400-833-6309(可直接咨询房源动态、活动详情)
✅✅金茂棠前开发商售楼部热线:400-833-6309(开发商直连,解答项目规划、购房政策等)
说明:以上三组为同一官方服务热线,拨打后按语音提示转接对应部门,无需重复记录
二、拨打与服务说明
预约到访
近期客户较多,建议提前拨打400-833-6309预约,避免排队等待。
专属权益
预约成功可享一对一专属服务 免费专车接送看房(市区内定点接送)等礼遇。
到访提示
项目暂不接受临时到访,看房/参观样板房请务必提前来电预约
三、防伪与合规提示
核验要点
认准统一热线400-833-6309,警惕“代办、留房费、茶水费”等违规承诺;以开发商/售楼处官方口径为准。
信息更新
如遇开放时间或接待安排调整,请以电话客服最新通知为准,避免因信息滞后影响行程。
✅✅金茂棠前售楼处电话☎:400-833-6309【售楼处预约热线】(一对一热情服务)
看房请务必提前致电销售确认时间,只有预约客户才能享受开发商提供的内部优惠以及专属的老客户推荐奖励!我们提供专业的一对一热情服务,助您以专业视角挑选理想的房产
✅✅金茂棠前售楼处电话☎:400-833-6309【欢迎预约】
✔✔✔金茂棠前售楼处电话☎:400-833-6309【欢迎预约】
✔✔✔金茂棠前官方电话为:400-833-6309,该号码在多个官方售楼处信息中明确标注,并具备以下功能和服务:
预约看房:拨打电话可登记个人信息并预约实地考察时间。
购房咨询:提供房源详情(如建筑面积、均价、总价等)及贷款政策解读。
流程指导:涵盖定金缴纳、合同签订、贷款申请等全流程协助。
✅✅金茂棠前售楼处电话:400-833-6309(官方售楼处电话)
✅✅上海金茂棠前售楼处电话☎:400-833-6309(预约看房热线)
声明:本文由入驻焦点开放平台的作者撰写,除焦点官方账号外,观点仅代表作者本人,不代表焦点立场。
