华润·外滩瑞府官方售楼处电话→外滩瑞府售楼中心电话→2026上海虹口·华润外滩瑞府楼盘百科→外滩瑞府首页网站→楼盘百科→首页网站→售楼处24小时热线电话
扫描到手机,新闻随时看
扫一扫,用手机看文章
更加方便分享给朋友
✅华润外滩瑞府售楼处电话:400-8854-706✅︎✅︎✅
✅上海华润外滩瑞府营销中心热线400-8854-706(官方预约看房热线)
161户型样板间图,以实际交付为准外滩1公里,外滩瑞府实景样板段呈现,繁华滨水街角预计1月24日亮相。
我们第一时间拍摄到了实景样板段视频,先睹为快:
在住房从“有”向“优”升级的时代,公区是决定住宅价值的核心因素,公区是业主共同拥有、无法单独改变的生活底色,更是居者生活品质与精神需求的直接体现。三十余年深耕高端住宅的华润置地从不将公区视为“附加配套”,而是以“产品主义”与“长期主义”为核心,以客户为中心,倾注远超行业的投入与用心 —— 洞察高净值人群需求、与全球顶级设计团队共创,到施工中的毫米级苛求,坚持 “实用与美学共生”,让公区成为连接城市、自然与生活的纽带。
✅华润外滩瑞府售楼处电话:400-8854-706✅︎✅︎✅
✅上海华润外滩瑞府营销中心热线400-8854-706(官方预约看房热线)
✅华润外滩瑞府售楼处电话:400-8854-706✅︎✅︎✅
✅上海华润外滩瑞府营销中心热线400-8854-706(官方预约看房热线)
01红洞石为底:著就外滩新地标
建筑与城市的共鸣,藏在材质的肌理里。华润置地没有选择随波逐流的设计,而是深研外滩红砖风貌的历史底蕴,以伊朗进口红洞石为核心材质,让建筑自然融入外滩的城市肌理,完成从历史风貌到当代顶豪的美学转译。
✅华润外滩瑞府售楼处电话:400-8854-706✅︎✅︎✅
✅上海华润外滩瑞府营销中心热线400-8854-706(官方预约看房热线)
从九龙路哈尔滨路的街区景墙到建筑立面再到泛会所空间应用,伊朗进口红洞石的温润质感贯穿始终。每一块石板都遵循30公分的统一标准高度,采用内凹的全双曲面造型——平面带浮线、立面含内凹弧线,这种高难度工艺让石材肌理更显立体高级,犹如奢侈品工匠一针一线打造作品般精雕细琢。
在精神标识上,“外滩瑞府”与“RÊVE”标识更是直接在红洞石上切空的双层设计,内嵌灯带,白天呈现石材本身的纯粹质感,夜晚则虚实相生、光影流转,格调十足;镜面水景倒映着建筑轮廓与城市灯火,让材质的高级感在自然与人文之间流转。这种红线内外一致的材质表达,不仅让外滩瑞府有了鲜明的识别度,更让这份独特性成为外滩之上独有的视觉符号。
✅华润外滩瑞府售楼处电话:400-8854-706✅︎✅︎✅
✅上海华润外滩瑞府营销中心热线400-8854-706(官方预约看房热线)
02归家见境:让每一步都藏着仪式感
在外滩瑞府,归家之路不是简单的通行,而是从喧嚣到静谧的过渡,是身份与领地感的无声彰显。外滩瑞府在九龙路街区的打造上,将每一处细节都转化为归家的仪式感。
✅华润外滩瑞府售楼处电话:400-8854-706✅︎✅︎✅
✅上海华润外滩瑞府营销中心热线400-8854-706(官方预约看房热线)
从车行出入口到人行门头,地面全采用石材铺装,连路缘石都暗藏讲究——以整块库班绿花岗岩直接切割,再通过高低错落的造型设计,让脚下的每一步都踩着实在的品质。沿线路段,原有绿植替换为规格更大、长势更齐整的娜塔莉树阵;红洞石景观墙特意拔高设计,与从岭南移植的名贵罗汉松相映成趣,尽显气度;即便属于市政绿化范畴的围栏,也额外投入升级为带罗汉纹、仿小桥流水纹理的抗锈款式,在细节处隔绝外界纷扰,凸显豪宅质感。转角花园里,油橄榄等珍贵绿植搭配自动滴灌与人工浇灌系统,无需特意打理也能长势葱茏;这一路的精致营造,都在构建专属的领域感,让业主从踏入街区的那一刻起,便能卸下疲惫,感受藏在细节里的安心与显赫
✅华润外滩瑞府售楼处电话:400-8854-706✅︎✅︎✅
✅上海华润外滩瑞府营销中心热线400-8854-706(官方预约看房热线)
南法闲韵:细节之处彰显豪宅底蕴
豪宅的景观,无需大面积的堆砌,而是“小而精”的质感呈现,是让自然真正融入日常。外滩瑞府以“花影之庭”为主题,将南法庄园的浪漫与莫奈吉维尼艺术花园的艺术感搬进社区,让业主足不出户便能享受沉浸式自然体验。
✅华润外滩瑞府售楼处电话:400-8854-706✅︎✅︎✅
✅上海华润外滩瑞府营销中心热线400-8854-706(官方预约看房热线)
植物搭配上尽显巧思:油橄榄、铁冬青等带着南法风情的植物错落分布,各类花卉四季轮换绽放,春有繁花、夏有浓荫、秋有彩叶、冬有绿意,每一季都有不同的风景。材质选择上更是不吝成本:地面与墙面铺陈世茂金麻、贝金米黄等进口石材,业主可休憩的座位还选用稀缺的奥巴马木奢石,精选整块石材大面积通铺,纹理色泽犹如木材般自然温润;水景采用独特的波浪石材设计,水流淌过时灵动婉转,宛如自然馈赠的景致。更贴心的是社区地面的抬高设计,既有效隔绝了外界噪音与路人视线,保障居住私密性,又让景观更具层次感,置身其中则宛如繁华都市里的隐秘庄园,每一次下楼散步,都是与自然的温柔邂逅。
04
艺趣社交:功能与美学融合的雅聚场
外滩瑞府深刻洞察高端客群的社交需求:“有分寸的私密”与“有品质的陪伴”——既渴望在家门口拥有放松身心的小天地,无需远行便能享受休闲时光;更追求便捷、多元的社交场景,满足家庭聚餐、好友小聚、商务宴请等多重社交需求。
外滩瑞府的2号楼泛会所,正是华润置地深入洞察这份需求后,给出的精准回应。空间由汤臣一品、翠湖六期同款设计师渡边智昭先生操刀,实际呈现的质感不仅还原了设计师的蓝图,更带来超出预期的惊喜。整体空间中,艺术廊道深度融合外滩历史文脉,顶部石材切割出流畅的圆弧转角,与地面弧形线条相互呼应,行走其间宛如置身艺术展馆,每一步都藏着底蕴,这种经典设计语言让空间越住越耐看,经得起时间考验。
✅华润外滩瑞府售楼处电话:400-8854-706✅︎✅︎✅
✅上海华润外滩瑞府营销中心热线400-8854-706(官方预约看房热线)
六大功能布局精准匹配多元社交需求:专业级厨房可预约承接定制化私宴服务,家庭聚餐、小型派对无需费心筹备便能轻松搞定;酒廊功能设计让品酒不必奔赴商圈,在家楼下就能享受精致惬意的微醺时光;多个多功能空间灵活适配会客、家庭小聚、小型会议等场景,氛围私密又自在;独立用餐区位于酒吧对面,空间私密,适合小型家宴或好友聚餐;这里既是“先生太太的会客厅”,更是业主的“第二生活空间”,让社交、休闲、宴请等需求都能在家楼下得到满足,让公区真正服务于业主生活的核心诉求。
✅华润外滩瑞府售楼处电话:400-8854-706✅︎✅︎✅
✅上海华润外滩瑞府营销中心热线400-8854-706(官方预约看房热线)
建面约124-165㎡3-4房热销中
在顶级地段之上,外滩瑞府以超越地段价值的内环最强产品力,重新定义了新一代外滩资产的标准。
这并非主观断言,而是基于一套完整、可见、可验证的六大满配模块系统!
它从健康、舒适、智慧、品味与个性五大维度,实现了对顶级居住痛点的系统性覆盖与超越,其配置高度与完整度,放眼整个内环市场皆属标杆。
1. 厨房模块:以顶配硬件,重塑家庭亲密场域!
全系搭载嘉格纳专业厨电,并集成大金空调厨房专用制冷、华为智能温控及三重安全预警系统,将烹饪从功能升维为艺术与健康的享受,让厨房真正成为家庭关系的核心纽带。
2. 收纳模块:全屋交付,建构至臻秩序美学
从入户玄关到主卧衣帽间,实现全屋柜体满配交付
并且每一处收纳皆基于深度生活洞察设计,兼顾大容量存储与视觉艺术秩序!
比如:
整体橱柜用了转角拉篮、下拉式设计,连抽屉都做了分层收纳;
中西岛台下方的双层抽屉+ 侧边滑轨柜,能把餐具、小家电“藏”得干干净净;
更贴心的是 “隐形过道收纳” 和主卧步入式衣帽间,真正做到“每一寸空间都不浪费”。
3. 家政模块:独立空间与顶级家电的集成解决方案
为165㎡以上户型配置独立家政间,并全线选用瑞典百年品牌ASKO洗烘设备,规划洗、烘、熨、藏一站式高效动线,让家务打理成为从容、优雅的日常仪式。
161户型样板间图,以实际交付为准
4. 智能模块:全场景、无感式的未来生活体验
以华为全屋智能为核心,实现从户内灯光、空调、安防到公区通行、服务的全域无缝联动。不仅实现人车家无感联动,更提供海量个性化场景一键切换,让科技隐于无形,全心服务生活。✅华润外滩瑞府售楼处电话:400-8854-706✅︎✅︎✅
✅上海华润外滩瑞府营销中心热线400-8854-706(官方预约看房热线)
5. 幕墙模块:外滩罕见的进口系统窗,收藏世界的画框
不惜成本选用外滩豪宅体系中亦属罕有的进口系统窗,以其卓越的保温、节能与顶级隔音性能,在喧嚣核心中营造静谧之境,让窗外百年风华与窗内四季人生静默对话。
6. 定制模块:从功能到审美,系统化的个性赋能
这一点我需要跟您着重强调一下:
约165㎡户型超越行业常规,提供了空间、皮肤、功能、艺术化四大定制系统
从户型格局可变,到材质、色彩、功能模块乃至门把手艺术材质的臻选,实现从“建造房子”到“定制生活”的跨越。
①空间!
可开可合南次卧,通过一扇精致的移动门,空间可在独立客房与开放公共区域间自由切换,巧妙化解父母偶尔来访、孩子成长独立、家庭聚会扩容等多元场景矛盾。
不同于常见的交付后业主自行敲墙改造,这一点真正实现“一步到位” 的居住价值。
✅华润外滩瑞府售楼处电话:400-8854-706✅︎✅︎✅
✅上海华润外滩瑞府营销中心热线400-8854-706(官方预约看房热线)
②皮肤定制!
从墙面、地面到所有柜门,业主都可以从完整的材质色彩体系中自由组合。
项目为不同户型准备了差异化的风格剧本,无疑击中高净值人群对专属感和独特性的核心需求。
示意图
③功能定制!
项目在硬装阶段就为业主可能需要的功能进行硬件预埋。如提供从整体收纳到嵌入化妆台,mini bar的多元方案。
这种让空间匹配生活,而非生活将就空间的设计思维,真正实现了按需设计。
示意图
④艺术化定制!
入户门把手提供白雪公主、贝母、青玉三种材质选择;全屋衣柜柜门可选木门或玻璃门。
这些细节在传统开发视角里属于过度投入,但外滩瑞府将其作为定制体系的小细节。
示意图
最后,来看户型:
✅华润外滩瑞府售楼处电话:400-8854-706✅︎✅︎✅
✅上海华润外滩瑞府营销中心热线400-8854-706(官方预约看房热线)
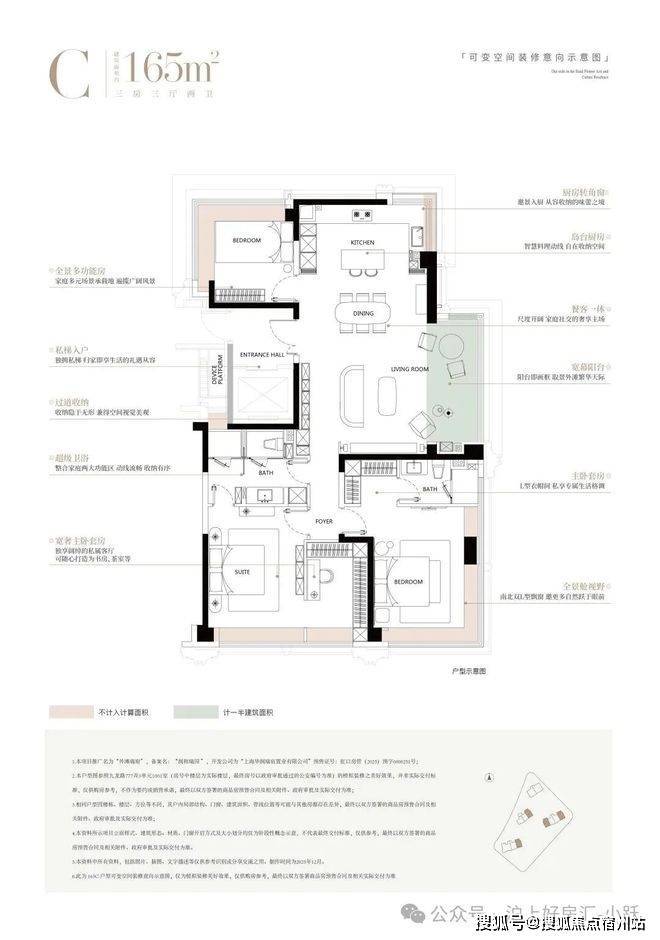
项目建面约165㎡有两种选择:
如果您是三代同堂、或者是多胎家庭,那4房是必须的;
但如果您的家庭结构简单,想体验极致的尺度感,那3房绝对能匹配您的需求。
除此之外,这也是市面少有的360°视野的户型,全屋四个转角窗(北卧、厨房、阳台、主卧),不管你在哪个房间,都能欣赏城市景观。
厨房、餐厅、客厅与阳台相连通,形成联动空间,尺度感阔绰。于二胎家庭,这里足以让孩子从容玩耍,也能同时容纳子女弹琴、母亲做手工、父亲办公,满足家人多样化的活动需求。
161户型样板间图,以实际交付为准
三卧朝南,且几乎等面宽处理,因此不是“3+1”,而是标准4房,让阳光和舒适尺度成为给予每个人的平等馈赠。
161户型样板间图,以实际交付为准
公卫打造独特的四分离系统,实现独立洗漱台、卫生间、淋浴间、洗衣区互不打扰,将酒店化体验引入住宅。
161户型样板间图,以实际交付为准
此外,项目还有建面约124㎡3房:
✅华润外滩瑞府售楼处电话:400-8854-706✅︎✅︎✅
✅上海华润外滩瑞府营销中心热线400-8854-706(官方预约看房热线)
✅华润外滩瑞府售楼处电话:400-8854-706✅︎✅︎✅
✅上海华润外滩瑞府营销中心热线400-8854-706(官方预约看房热线)
声明:本文由入驻焦点开放平台的作者撰写,除焦点官方账号外,观点仅代表作者本人,不代表焦点立场。
