华润·外滩瑞府售楼处电话→华润·外滩瑞府售楼中心电话→2025外滩瑞府楼盘百科→楼盘网站→楼盘测评→售楼中心电话→楼盘百科→24小时热线电话→楼盘详情
扫描到手机,新闻随时看
扫一扫,用手机看文章
更加方便分享给朋友
✅✅外滩瑞府售楼处电话:400 - 8824 - 258✅✅
外滩瑞府二批次认购中!楼王1#无界大宅与3#天际光邸传世而来,✅✅外滩瑞府售楼处电话:400 - 8824 - 258✅✅建面约124-240㎡,均价14.83万/㎡。
✅✅外滩瑞府售楼处电话:400 - 8824 - 258✅✅
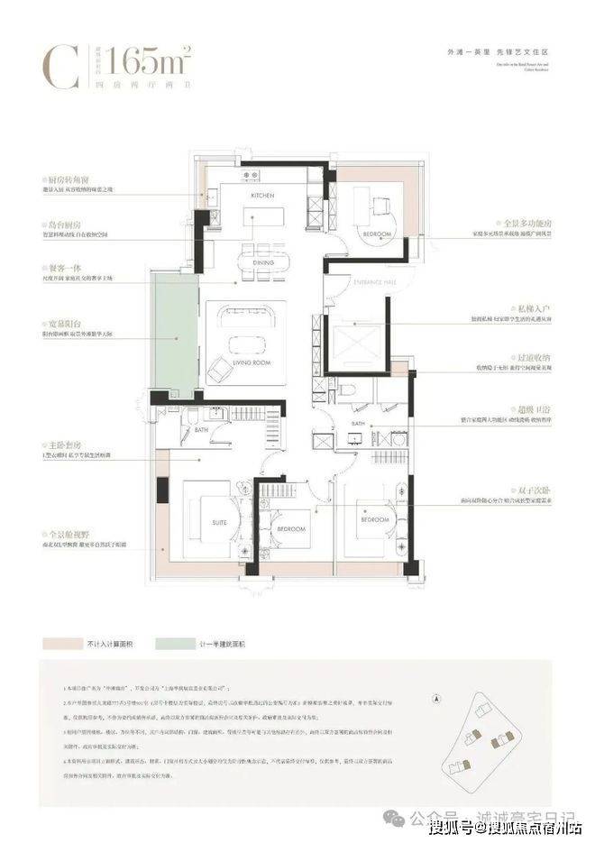
相比一批次,新增建面约195、240㎡户型,✅✅外滩瑞府售楼处电话:400 - 8824 - 258✅✅附上全套户型图:
✅✅外滩瑞府售楼处电话:400 - 8824 - 258✅✅
✅✅外滩瑞府售楼处电话:400 - 8824 - 258✅✅
✅✅外滩瑞府售楼处电话:400 - 8824 - 258✅✅
项目拟建4栋24-32层高层住宅,✅✅外滩瑞府售楼处电话:400 - 8824 - 258✅✅另有少量风貌住宅和商业。住宅建面约124-240㎡。
4栋住宅一层全部为架空,✅✅外滩瑞府售楼处电话:400 - 8824 - 258✅✅入口至楼栋间设置有风雨连廊。
小区车行主入口设在了南侧哈尔滨路和东侧九龙路上,✅✅外滩瑞府售楼处电话:400 - 8824 - 258✅✅可以直接下地库,小区地面无车位,人车分流;人行出入口则位于地块东侧九龙路上,
华润TOP级瑞系,作为华润置地产品线的皇冠明珠,✅✅外滩瑞府售楼处电话:400 - 8824 - 258✅✅自诞生便以钻石级选址标准划定豪宅基因。
从深圳湾的“春笋”旁到北京长安街畔,✅✅外滩瑞府售楼处电话:400 - 8824 - 258✅✅每一座瑞府都占据着核心城市最核心的地段。
此次外滩瑞府落子外滩1公里核心圈,✅✅外滩瑞府售楼处电话:400 - 8824 - 258✅✅正是华润对「战略稀缺性」的极致践行:非核心不选,非未来不立。
这也是华润置地那么多年来在上海的首座“瑞系”。✅✅外滩瑞府售楼处电话:400 - 8824 - 258✅✅
✅✅外滩瑞府售楼处电话:400 - 8824 - 258✅✅
有别于大多数的市区项目以兵列树阵式的景观设计,✅✅外滩瑞府售楼处电话:400 - 8824 - 258✅✅外滩瑞府通过建筑楼体的偏转形成了围合式的景观布局,秉持三个最大化,两个最小化(景观最大化,采光最大化,朝向视线最大化;遮挡最小化,影响最小化)。
通过这种创新布局,项目不仅形成连续的中心花园,✅✅外滩瑞府售楼处电话:400 - 8824 - 258✅✅更因楼栋布局与边界有夹角,自然形成一系列边角院落空间。
尤为难得的是,✅✅外滩瑞府售楼处电话:400 - 8824 - 258✅✅部分东南高区可看到陆家嘴三件套和北外滩浦西第一高楼的遥相呼应。
全域风雨连廊,外滩瑞府将风雨连廊扩容为完整的归家体系,✅✅外滩瑞府售楼处电话:400 - 8824 - 258✅✅实现全住宅楼栋无风雨归家,带来顶豪级的归家居住体验。
值得一提,✅✅外滩瑞府售楼处电话:400 - 8824 - 258✅✅你还将拥有翠湖天地、汤臣一品同款大师设计。
项目力邀大师天团操刀,从建筑到生活全维度高定。
GOA大象设计担纲建筑设计;✅✅外滩瑞府售楼处电话:400 - 8824 - 258✅✅渡边智昭负责会所和架空层设计,他是2023 AD 100 中国最具影响力建筑和室内设计师,代表作翠湖天地、汤臣一品;TROP操刀艺文景观设计;室内由W.DESIGN无间设计、李益中精琢...
这支曾塑造多个城市封面的大师团队,聚集在外滩瑞府,✅✅外滩瑞府售楼处电话:400 - 8824 - 258✅✅共筑外滩新一代标杆住宅。
高层基座溯源石库门建筑精髓,复刻经典拱券符号;✅✅外滩瑞府售楼处电话:400 - 8824 - 258✅✅中段以通透玻璃幕墙搭配流线型金属线条,营造国际前沿的现代质感;顶部“冠冕”造型,进一步升华昭示性。
✅✅外滩瑞府售楼处电话:400 - 8824 - 258✅✅
项目配套✅✅外滩瑞府售楼处电话:400 - 8824 - 258✅✅
交通配套:距轨道交通10号线四川北路站0.4公里✅✅外滩瑞府售楼处电话:400 - 8824 - 258✅✅,商业上,利通广场、壹丰广场、中信广场1933购物中心 都在步行距离范围内;
教育配套:有民办新华初级中学、虹口区中州路第一小学、上海市虹口区第一中心小学、上海市海南中学 ;✅✅外滩瑞府售楼处电话:400 - 8824 - 258✅✅
医疗配套:临近上海市第一人民医院。
商业配套:利通广场、壹丰广场、中信广场、1933 购物中心等在步行距离内,直线距离北侧瑞虹新城三件套约 1.5 公里✅✅外滩瑞府售楼处电话:400 - 8824 - 258✅✅。
✅✅外滩瑞府售楼处电话:400 - 8824 - 258✅✅
新六百HUB和新六百YOUNG的区位图。
徐家汇商圈两大“老百货”——上海六百、太平洋百货的“脱胎换骨”方案尘埃落定。记者从上海徐家汇商城集团获悉,原上海六百将彻底告别之前的纯百货零售模式,打造成为集“公寓式酒店+品牌旗舰店”于一体的综合性体——“新六百HUB”。
“新六百HUB”建成后,将与“老邻居”——原太平洋百货(现“新六百YOUNG”项目)以及汇金百货一道,通过空中连廊相连,成为徐家汇商圈的商业新地标。
上海第六百货商店成立于1952年,曾经是上海“号码百货店”之一,它不仅是徐家汇商圈的原住民,也见证了上海商业的蓬勃发展历程。而太平洋百货曾经是流行百货的代名词,凝聚了初代“时髦精”们的成长记忆。
然而,自本世纪第二个十年起,上海六百、太平洋百货等“老百货”遇到发展瓶颈,不仅线下要面对“一大”(购物中心)“一小”(便利店)的竞争,线上还要遭遇网购平台、直播间的冲击……消费需求的变化与市场竞争的激烈,迫使上海六百、太平洋百货亟需焕新和注入新动能。终于,上海徐家汇商城集团决定“革故鼎新”,于2024年完成了上海六百的拆除,并在太平洋百货闭店谢幕后,随即启动了“新六百YOUNG”项目的城市更新。
上海六百是继续做百货,还是“变脸”得更加彻底?今年9月18日,上海徐家汇商城股份有限公司发布关于调整公司重大投资项目的公告,透露了它的“底牌”。根据公告,上海六百城市更新项目总投资决定从之前规划的约7.08亿元增加至约16.98亿元,项目性质也从地上局部十层、地下一层、总建面1.92万平方米、18个月建成的“精品购物中心”,改为总建筑面积达到约4.25万平方米,其中地上三十层、地下二层。
上海徐家汇商城集团方面介绍,更新后的“新六百HUB”将导入专业酒店管理公司运营,补足商圈高品质商务住宿短板。同时聚焦知名品牌旗舰店,引入具有传播力的消费场景,形成“居住与消费”的内生循环。
它的“邻居”——“新六百YOUNG”项目则已经于2025年3月正式动工,它定位于“新都市家庭精致生活体验商业”,项目聚焦“生活场景化”布局:地下层强调高频通行与即时消费;低层引入首进旗舰与潮流品牌,营造街式Mall氛围;中层专注亲子、美业、运动等体验业态;高层布局疗愈、餐饮与慢生活场景,构建起从日常便捷消费到深度体验的生活空间。据悉,“新六百YOUNG”力争2026年第一季度试运营。
业内人士指出,上海六百的彻底变脸,是对《上海市商圈能级提升三年行动方案(2024-2026年)》“非标商业”导向的精准响应。《上海市商圈能级提升三年行动方案》提出,到2026年,上海在商业建筑总面积控制在1亿平方米以内,完成商业设施城市更新300万平方米以上。同时,方案还提出要“从严控制与规划不符且商业设施严重过剩区域的一般商业项目建设”,以及“用好项目区位的历史文脉等资源,打造体验更加丰富、定位更加精准的非标商业项目”等具体操作指南。
上海徐家汇商城集团表示,上海六百单体体量较小,若维持单一零售业态,难以在未来应对多方面因素的冲击。此次“蝶变焕新”,是通过“居住+消费”的业态复合,构建抗风险能力更强的商业生态。这种转型打破了“老百货只能改造成新商场” 的路径依赖,开启了空间价值重构的新可能。
值得一提的是,“新六百HUB”与“新六百YOUNG”在城市更新进程中,特意保留了承载城市集体记忆的“六百”核心名称——这一做法在当下“老百货转型”已成常态的市场环境中,更显难能可贵。
事实上,这种“守正创新”的更新逻辑,与徐家汇源景区的活化路径一脉相承:百代小楼以音乐特展激活历史空间,观象台旧址通过智能导览升级游览体验,均实现了“历史符号传承”与“现代功能赋能”的有机融合。此次两大老百货的升级,正是通过城市更新的系统性赋能,将沉淀的商业文化价值从静态陈列转化为沉浸式动态体验,最终成为徐家汇商圈与上海其他核心商圈差异化竞争中的核心资产。
✅✅外滩瑞府售楼处电话:400 - 8824 - 258✅✅
声明:本文由入驻焦点开放平台的作者撰写,除焦点官方账号外,观点仅代表作者本人,不代表焦点立场。
