☑️☑️静安里售楼处电话:400-8377-020☑️☑️静安西藏北路
【静安里】的新天地
苏河风貌区 城市节点作品
222席风貌街区里的原真纯墅
联动价21万/㎡,总价约5000万起
实景风貌示范区盛大开放,预约鉴赏
有天有地有腔调的海派墅居生活于此开启
☑️☑️静安里售楼处电话:400-8377-020☑️☑️

☑️☑️静安里售楼处电话:400-8377-020☑️☑️
【静安里】产品信息如下:
静安|苏河湾|纯粹风貌区
超大附赠|约9000㎡石库门里弄商业街区 另有7套商墅
开发商: 华发&招商
首开面积:约260-300㎡
风貌别墅: 总计222套
首开套数: 28套,楼王位置
其中22套面积260平+6套面积300平,52/58/63/57/62/68为边套300平,其余都为260平
项目总价: 约5000万-6500万
☑️☑️静安里售楼处电话:400-8377-020☑️☑️

☑️☑️静安里售楼处电话:400-8377-020☑️☑️
262平户型样板间实拍

☑️☑️静安里售楼处电话:400-8377-020☑️☑️

左右滑动查看更多


☑️☑️静安里售楼处电话:400-8377-020☑️☑️

左右滑动查看更多
示范区实景

☑️☑️静安里售楼处电话:400-8377-020☑️☑️


☑️☑️静安里售楼处电话:400-8377-020☑️☑️
☑️☑️静安里售楼处电话:400-8377-020☑️☑️

☑️☑️静安里售楼处电话:400-8377-020☑️☑️
左右滑动查看更多
别墅户型图
建面约 260㎡户型 示意图:

☑️☑️静安里售楼处电话:400-8377-020☑️☑️
建面约 300 ㎡户型 示意图:

☑️☑️静安里售楼处电话:400-8377-020☑️☑️
效果图参考



☑️☑️静安里售楼处电话:400-8377-020☑️☑️
☑️☑️静安里售楼处电话:400-8377-020☑️☑️
1
项目区位板块介绍
华发股份联袂招商蛇口,于苏河风貌区,成就城市风貌的深度共鸣。里市交织下,222席风貌大宅,原真上海风貌商业。以城市节点之姿,重新定义:风格之上,风貌之间。

◎历史源启老北站,焕新百年唐宅
上海静安里以160余载的老北站为源点,这里曾聚合唐绍仪、陈之佛等历史名流人物。如今以修缮百年唐宅为起点,不仅是物理修复,是对历史记忆的考古,从国务总理到宅邸主人,唐绍仪精神在静安里的时空延续,上海静安里演绎城市记忆的更新与再生。

繁盛递延,商脉永续当代应用
◎尚美图案馆 静安里续写中国设计史诗
中国首家独立设计事务所,1925 年,陈之佛在来安里创办尚美图案馆。静安里,是尚美图案馆精神的时空延续者,将百年设计精神转化为可触摸的生活场景。

☑️☑️静安里售楼处电话:400-8377-020☑️☑️
◎泰山大戏院 与静安里的文化对望
1940年迁往新民路开业,以越剧演出为特色。2025年静安里保留肌理,重塑空间营造智慧,焕新泰山大戏院,冠以「静安里·泰山剧场」之名,上海百年文化史诗的续写者。

◎海派博览 上海百年建筑赋新
优秀历史保护建筑、文保建筑
一条武进路,百年海派建筑的当代博览汇
南里2栋优秀历史保护建筑,1栋文保建筑
展现了上海海派建筑海纳百川的特色魅力


☑️☑️静安里售楼处电话:400-8377-020☑️☑️
☑️☑️静安里售楼处电话:400-8377-020☑️☑️
起笔一江一河,苏河风貌区崭新成就
“一江一河”两大世界级规划,黄浦江和苏州河皆被定义为蕞具全球影响力世界级滨水区。上海静安里,居于一江一河之上,享“一江一河”构建的世界级滨水资源,拥揽上海经济与文化的心脉。未来北外滩与外滩、陆家嘴将共同形成上海的核芯“黄金三角”,共同组成上海内环内封面地标。



苏河北卓越水岸,首段城市节点
2025年2月,《苏州河沿岸地区整体风貌与开发空间提升专项规划(2025-2035年)》政府批复文件中,静安里所处位置为总体布局中「都市经典段」头端位置,集合文化历史资源与城市公共功能空间的全面兑现,这里将成为展示江河交汇、中西合璧的海派都市风采。

☑️☑️静安里售楼处电话:400-8377-020☑️☑️
北外滩上位规划,国级的彼岸对话
2个陆家嘴规模的开发体量,超16座塔尖建筑,集合约1500家金融企业,与陆家嘴形成浦江门廊。苏河湾、北外滩、外滩、陆家嘴将形成上海的内环“黄金核心”,穿梭历史与未来的,成就下一个百年的繁荣盛景。


「苏河风貌区」
风貌街区集群,城市节点的崭新成就
放眼整个苏河湾,风貌保护建筑达50万㎡,是全市风貌建筑最密集的地区之一,上海静安里所属苏河湾北段,是风貌成片、格局完整、具有较高历史保护价值的风貌街坊
作为当下上海中心难得的成片整体更新的风貌片区,更串联起周边石库门里弄、街坊等文化地标,打造集历史保护、城市更新于一体的超级IP,为上海提供"风貌片区更新"的新样本

「成片风貌街区」
历史文化遗产集群,海派文化沪上标志
上海静安里,与周边弘安里、今潮8弄、安康苑、龙盛湾上连接成片,是上海城市历史文化遗产集群之大成,新海派文明里弄城市范式正在孕育

南侧——弘安里
由招商蛇口联袂绿城中国、上海地产联动开发,合著121席传世风貌大宅,打造市区约1.1容积率低密居住空间,为上海鼎级居住范式另起一行
东侧——崇邦综合体
1 8街坊,总商业体量预计达到10.9万方,商业首开区「今潮8弄」中,巴金图书馆、滨港商业中心,均已开业(信息来源于“今潮8弄”公众号)
西侧——安康苑、龙盛湾上
规划有超甲级办公,星级酒店,大型商场、石库门风貌建筑等附属配套的大型城市综合体

「里市交织风貌剧场」
上海风貌街区,苏河湾商业新名片
以苏河风貌区全新商业名片为规划定位,以百年前“西市东里、南市北里、外铺内里”的格局,营造在地记忆。上海静安里商业地块,整体规划延伸历史步行交通组织,以在地文化展示、体验、消费为核心,突显新旧融合的城市记忆,通过打造高端零售、高档餐饮、文化展览等丰富业态的格调商业,成为城市城区打卡坐标点、城市目的地。

☑️☑️静安里售楼处电话:400-8377-020☑️☑️


☑️☑️静安里售楼处电话:400-8377-020☑️☑️
南市北里静安里,下一个上海新天地
上海静安里,汲取新天地、张园等城市节点级风貌商业精髓,精心规划沿武进路历史风貌商业街区,展示体验在地文化,打造高端零售、高档餐饮、文化展览等丰富业态的商业格局。

六大摩登庭院,历史新潮交织的风貌商业
·回声剧场:海派记忆,一步一回声
·贝拉花园:老上海优雅,藏于转角
·舞步广场:铜韵光影,日常诗意交响
·瑰丽之境:推开即入,名流雅境
·尚美广场:百年设计,光影交织
·述学广场:水雾腾起,文脉跃千年


墅立天地,迭新想象的原真纯墅
上海静安里作为繁华核芯城区的纯墅区作品,规划222席风貌大宅。上海静安里以更奢阔的楼间、里弄尺境,多附赠空间,匠造藏天纳地的风貌街区别墅,诠释汇聚百年圈层人物的身份标识。

☑️☑️静安里售楼处电话:400-8377-020☑️☑️
☑️☑️静安里售楼处电话:400-8377-020☑️☑️
三重手法,再造一座海派石库门博物馆
保留改造:以石库门和南立面排窗样式为主要特征,传承原有风貌建筑立面韵律感
更新改建:以红砖青砖为立面主材,演绎兼具风貌厚重感及现代居住体验的立面风格
风貌新织:以当代建造技术和材料工艺,立面以石材及大面玻璃为主,创造有新时代感的当代建筑


六大花园,百年记忆的根植新生
上海静安里荟萃世界花园经典,融入六大景观花园节点,以每个独属于上海的百年场所记忆进行时空平移,微缩于一园。

·摩纳哥观星花园:当六尺仪遇见地中海风情
·英国悦享花园:鎏金草坪上的英式私语
·上海文华花园:海派风情的流动诗篇
·法国尚美花园:秩序与自然的艺术交响
·意大利英华园:桧柏与薰衣草的现代叙事
·德国美伦花园:理性与自然的完美协奏


☑️☑️静安里售楼处电话:400-8377-020☑️☑️
「成市」风貌,海派新檐的心动探索
这里,每一块石材都记得被匠人掌心摩挲的温度,每一片金属都凝结着跨越时空的巧思,每一寸草木都在续写着里弄的烟火传奇。身临上海静安里「成市」风貌示范区,让消逝的时光可触,让生长的故事可见。
◎社区大门:以珠宝级工艺筑造仪式感

☑️☑️静安里售楼处电话:400-8377-020☑️☑️
☑️☑️静安里售楼处电话:400-8377-020☑️☑️
◎社区入口:艺术融合的星级归家场域

◎社区巷弄:松风水月的归家秩序

泰山剧场 艺文新天地的上海地标
上海静安里的泰山剧场,褪去旧时戏院的帷幕,以“艺文新天地”的姿态焕新登场。以精工品质沉淀历史,现代玻璃幕墙勾勒未来,以四大VIP会客厅、约1000㎡地下会所、打造融合历史、艺术与生活的高奢空间。未来,这里将持续作为社区核芯配套,为居者打造永不落幕的精神主场。

☑️☑️静安里售楼处电话:400-8377-020☑️☑️
约1000㎡会所 跨越两个百年的鎏金岁月
上海静安里会所以泰山大剧院的历史场域为精神基底,将沪上名流百年风华解码为可触摸的生活艺术。
艺术水吧的自在雅奢:光影流转间,一器一物皆是鎏金岁月的诗意写照
风云人物VIP会客厅:自在奢阔的空间秩序,不动声色间传递尊崇仪式感
无界泳池的国际艺境:延承超星级酒店设计精粹,游弋恬淡岁月里的静谧
赋能身心的活力场域:高配瑜伽室、高压氧舱、桑拿房等多元场域

精奢车库 私属尊容的人生新境
上海静安里地下精奢车库,臻选米白色西伯利亚石材,搭配拉丝镀黑钛不锈钢,坡道地面渐变LED灯带、以安全为核芯导向,臻选天然防滑石材与金刚砂涂层等,每一处细节考究,营造雅奢感官,并在地库内配置专属洗车服务。

☑️☑️静安里售楼处电话:400-8377-020☑️☑️
铂金管家 全周期定制服务体系
上海静安里以“静安奢雅 铂金管家”为核心,打造铂金管家全周期物业服务体系,包括多重定制服务体系,30项服务体验,诠释高净值人群的鎏金日常。

华发&招商
华发擅时代的笔法,招商懂上海的风骨
百年央企招商蛇口「风貌专家」
遇见华发集团「城市更新国匠」
华发集团的“更新营造力”
对话百年招商的“风貌营城力”
以一座上海城市风貌节点作品
重译海派文化的当代叙事

3
项目周边综合配套

· 摩登生活璀璨演绎
约叁公里范围内,汇聚苏河湾万象天地、北外滩商圈、南京西路商圈、外滩商圈、陆家嘴商圈等

☑️☑️静安里售楼处电话:400-8377-020☑️☑️
· 无缝全城自由畅达
四轨三隧两快速,便捷出行。4条地铁线路:轨道交通:3、4、10、12号线;3条越江越河隧道:外滩隧道、新建路隧道、大连路隧道;2条快速交通:北横通道、南北通道(规划中)(信息来源于浦东发布)
· 屹立上海城市坐标
宝格丽酒店、苏宁宝丽嘉、海鸥丽晶、W酒店、上海外滩茂悦大酒店、外滩悦榕庄等环伺
· 出入优雅艺文高地
Ucca edge静安尤伦斯美术馆、Fotografiska展览馆、苏富比空间、Suhe haus等
· 漫步格调都会秘境
苏河湾中央公园、中兴公园、静安不夜城公园、静安雕塑公园、人民公园等
☑️☑️静安里售楼处电话:400-8377-020☑️☑️
· 健康护航便捷医疗
上海市第一人民医院、上海东方医院、上海市中医医院,上海交通大学医学院附属仁济医院等

【静安里】 即静安天目社区04-05、05-01历史风貌保护项目,由华发招商联合打造。整个项目南至武进路,西至宝山路、河南北路,北至规划04-03、04-04地块。由2个地块组成,项目总建面14.9万方,综合容积率1.44。

项目平面图
【静安里】 以约4.3万平方米土地精铸 222席风貌别墅 , 联动价21万/㎡ 。二期 加推建面约200-300㎡风貌大宅,总价约4200万起。

☑️☑️静安里售楼处电话:400-8377-020☑️☑️
示范区实景图,仅供参考
项目优势:
💎 超大规模风貌纯墅体量,并且不存在高低配等混搭问题;
💎 超级全面风貌街区配套。风貌商业街+风貌会所+风貌别墅,形成完整风貌城市界面与完善生活配套;
💎 超高浓度历史文化底蕴。四大历保建筑,见证上海政商经济文化变迁;
💎 超大附赠空间,露台、庭院和多层地下室都有。
我们从 地段价值、产品力与空间设计、自然资源与景观独占性、社区品质与圈层纯粹度、开发商品牌与物业保障、资产流动性与增值潜力 六大维度来详细测评。

☑️☑️静安里售楼处电话:400-8377-020☑️☑️
☑️☑️静安里售楼处电话:400-8377-020☑️☑️
以“高定”匠心
革新风貌别墅的居住想象
【静安里】 以“活态传承”为核心理念,既保留了海派建筑的精髓,又满足了当代顶豪的居住需求,重新定义了风貌别墅的“舒适标准”。

10种风貌风格,打造“海派建筑百科全书”
不同于多数风貌项目“单一风格”的局限, 静安里 通过“ 保护修缮、保留改造、更新改建、织补新建 ”四大手法,实现 10种风貌立面 的和谐共生。

效果示意图,仅供参考
为了还原海派建筑的质感,项目运用 八大定制级工艺 ,通过 定制级手工砖、定制级山花造型、定制级铁艺栏杆、定制级入户壁灯、定制级的风帽雨水斗 等部品部件,匠心打磨每一处细节。

☑️☑️静安里售楼处电话:400-8377-020☑️☑️
示意图,仅供参考
据悉,项目为建面约200-396㎡左右城市典藏作品 ,沿袭历史建筑格局,提高窗墙比,降低围墙高度,拓展地下空间, 打造历史风貌住宅里面少有的有社区大堂、会所、精装地库,进阶规格。

户型创新设计,突破传统里弄局限
https://wxa.wxs.qq.com/tmpl/ov/base_tmpl.html
☑️☑️静安里售楼处电话:400-8377-020☑️☑️
【静安里】 户型设计突破传统里弄建筑“窄开间”的桎梏, 以大开间+提高窗墙比引光入室 ,大大提升了室内的空间感和通透感。
满足 全卧室朝南 ,确保家庭成员都能享受阳光的温暖馈赠;
地下1层 约4.2-6米的灵动空间 ,可随心改造为私人博物馆、恒温酒窖、品茗茶室或IMAX级家庭影院……
建面约200㎡户型图:
(户型图仅供参考)


☑️☑️静安里售楼处电话:400-8377-020☑️☑️

☑️☑️静安里售楼处电话:400-8377-020☑️☑️

☑️☑️静安里售楼处电话:400-8377-020☑️☑️

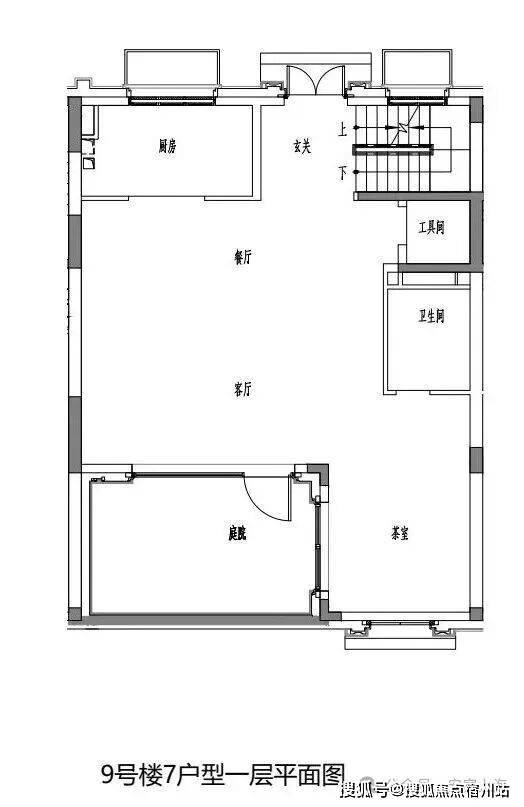
建面约260㎡户型图:
(户型图仅供参考)
✦
•
✦


☑️☑️静安里售楼处电话:400-8377-020☑️☑️

☑️☑️静安里售楼处电话:400-8377-020☑️☑️


☑️☑️静安里售楼处电话:400-8377-020☑️☑️
✦
左右滑动,查看更多
✦
户型图,仅供参考
建面约301㎡户型图:
(户型图仅供参考)
✦
•
✦

✦
•
✦
户型图,仅供参考
样板间奢华大气,演绎当代居住美学
☑️☑️静安里售楼处电话:400-8377-020☑️☑️
项目邀请到了 顶豪教父杜康生 执笔建面约260㎡「风格回响」样板间的设计,诠释当代塔尖居住美学。客餐厅,不仅是社交空间,更是光影与思想共舞的容器。

☑️☑️静安里售楼处电话:400-8377-020☑️☑️
二楼是家庭私域的温柔结界。
主卧套房通过挑空光影与优雅弧线,实现了私域与自由的完美和解;奢阔露台成为连接室内外的诗意过渡。
地库内还配置专属洗车服务,将尊崇体验延伸至每一个用车场景。
对于顶豪人群而言, 社区不仅是居住的场所,更是圈层社交的“私域空间” 。 静安里以“纯别墅社区+会所+风貌商业”的配置,实现了“圈层纯粹性”与“生活便利性”的双重满足 。

☑️☑️静安里售楼处电话:400-8377-020☑️☑️


☑️☑️静安里售楼处电话:400-8377-020☑️☑️

☑️☑️静安里售楼处电话:400-8377-020☑️☑️
项目区位配套
【静安里】 雄踞北外滩-苏河湾-外滩“黄金三角”,直线距苏州河约1公里,直线距外滩约1.4公里,直线距北外滩约1.7公里,区位优势明显。
项目所在的苏河湾风貌区已连片成势 ,步行范围内,已集聚UCCA Edge尤伦斯当代艺术中心、苏富比空间等艺术地标,未来将成为“海派文化新客厅”。

☑️☑️静安里售楼处电话:400-8377-020☑️☑️
对岸的 北外滩 ,正以2个陆家嘴核心规模的开发体量(超 840万方 )、 480米 新地标领衔的摩天建筑群,打造未来浦西新制高点。
静安里恰好处在这两大世纪规划的能量辐射交汇处,享受双核驱动带来的巨大红利。

北外滩实景图,图源网络,仅供参考
☑️☑️静安里售楼处电话:400-8377-020☑️☑️
轨道交通方面: 项目周边有 4条地铁动脉(3/4/10/12号线)织就高效路网 ,3条越江隧道(外滩/新建路/大连路)瞬间切换浦江两岸,2条城市快速路(北横通道已通车/南北通道规划中),立体交通畅达全城。(数据来源:浦东发布)

☑️☑️静安里售楼处电话:400-8377-020☑️☑️
区位图,仅供参考
商业配套方面: 静安里3公里范围内,汇聚了苏河湾万象天地、北外滩来福士、南京西路商圈、外滩商圈、陆家嘴商圈等,生活购物体验已是世界级。

除此之外, 静安里“南市北里” 商业新名片,也正 在静安里与弘安里连接处规划酝酿 ;

☑️☑️静安里售楼处电话:400-8377-020☑️☑️
规划示意图,仅供参考
项目南地块规划 约9000㎡石库门风貌商业 ,将沿武进路打造历史风貌商业街区,未来将涵盖 高端零售、高档餐饮、文化展览、宠物配套 等丰富业态。

效果图,仅供参考
教育资源方面: 周边有静安区闸北第一中心小学、宝山路小学、市北中学、上海市民办新华初级中学等学校。

☑️☑️静安里售楼处电话:400-8377-020☑️☑️
医疗资源资源: 附近有瑞金医院、曙光医院、中西医结合岳阳医院、第一人民医院、上海市中医院、上海市儿童医院等。

☑️☑️静安里售楼处电话:400-8377-020☑️☑️
静安内环内苏河湾板块
华发招商静安北站项目
【静安里】
加推建面约200-300㎡传世大宅
附赠花园 露台 阳台 阁楼 地下室
总价约:4200万~6300万
地下1000㎡泳池会所及9000㎡石库门商业
售楼处线上预约尊享团购优惠