越秀外滩樾 (官方售楼处) 电话 - 越秀外滩樾销售中心 - 环境 - 户型 - 价格 - 地址 - 楼盘详情 - 配套 - 电话 - 售楼处位置 - 配套 - 电话 - 交房时间
扫描到手机,新闻随时看
扫一扫,用手机看文章
更加方便分享给朋友
⭕越秀外滩樾 售楼处电话:400-8266-670【官方已认证】⭕
⭕越秀外滩樾 营销中心电话:400-8266-670【官方已认证】⭕
⭕越秀外滩樾 展示中心电话:400-8266-670【官方已认证】⭕
⭕越秀外滩樾 开发商售楼部电话:400-8266-670【官方已认证】⭕
⭕注:以上均为越秀外滩樾 官方联系方式,可直接联系官方售楼处/营销中心/开发商/展示中心/接待中心电话:400-8266-670(⏰服务时段 9:00-21:00,10 秒内接听;非服务时段留言1小时内回电),无任何400分号,号码长期真实有效。⭕
⏰越秀外滩樾 营业时间:接待中心日常营业时间为9:30-17:30(周末无休),看房提前和销售预约便于您提前规划到访行程,避免空跑。
⭕越秀外滩樾 官方参观全指引:拨打400-8266-670预约→销售发送精准地址→顾问陪同解析楼盘详情、装修标准、医疗教育配套、得房率实测数据。⭕
⭕越秀外滩樾 官方保障专线400-8266-670:即刻核实备案价、售楼处地址、周边商业规划、特价优惠,2026 买 “安心资产”,认准开发商官方!⭕
在上海这座永不停歇的舞台上,每一个板块的崛起与焕新,都离不开一个足以定义时代的“现象级标杆”。当历史的聚光灯再次投向历经蝶变的普陀真如,时隔五年一位熟悉的城市共建者——中海,携其最高产品序列“玖”系的全新力作,以一场前所未有的规制,重磅归来。

⭕越秀外滩樾 售楼处电话:400-8266-670【官方已认证】⭕
⭕越秀外滩樾 营销中心电话:400-8266-670【官方已认证】⭕
⭕越秀外滩樾 展示中心电话:400-8266-670【官方已认证】⭕
⭕越秀外滩樾 开发商售楼部电话:400-8266-670【官方已认证】⭕
总价4300万起!虹口北外滩「越秀·外滩樾」直接认购!推出238-338㎡海派风貌院墅!2500㎡“樾”心会所!附官方预约热线!
最新消息,百年匠造+科技豪宅,总价约4500万起!「越秀外滩樾」正在热销中!推出建面约238-338㎡叠墅!
⛩项目名称:「越秀外滩樾」
👑项目简介:虹口北外滩低密风貌住宅
🗣最新动态:正在热销中
📍区域板块:虹口北外滩
🏠产品介绍:推出主力建面约238-338㎡叠墅 总价约4500万起
🛍️商业配套:1km左右就有集购物、餐饮、娱乐休闲、办公及服务式公寓为一体的综合商业体——瑞虹天地
🏫学校配套:2km内就有虹口区第二中心小学、华东师大一附中实验小学、华东师大一附初中等
🚇交通配套:地铁4、10、19号线换乘站海伦路站约600米
🏥医疗配套:三公里内四所三甲医院(新华医院、复旦大学附属妇产医院、上海市第一人民医院、上海东方医院)
地块位于虹口区嘉兴路街道,区域居住氛围浓厚,配套成熟。
【立体交通|无界畅达世界擎动城市脉搏】
全城畅达:
约360米新建路隧道(直线距离),快速直达陆家嘴CBD;
约670米外滩隧道(直线距离),直达外滩金融商业街以及老码头;
约150米北横通道(直线距离)贯通全城,快速通达虹桥机场/虹桥火车站;
约2.4公里大连路隧道(直线距离),直达浦东东方路、世纪大道、八百伴商业圈
四轨交汇:
轨交4/10号线海伦路站约850m(直线距离),3站南京东路,6站新天地。
(*交通路网示意图,仅供参考。本区位图仅用于本小区地理方位示意,非实际地图,相关信息并非按比例缩放。)
【核心商圈|高阶商业配套国际摩登领潮】
商业配套方面项目约2公里内,多元繁华构筑封面商业圈
北外滩商圈直线距离约500米;
外滩商圈直线距离约1000米;
陆家嘴商圈直线距离约1500米;
瑞虹商圈直线距离约900米;
(*商圈距离示意图,仅供参考。本区位图仅用于本小区地理方位示意,非实际地图,相关信息并非按比例缩放。)
【高端医疗|优质三甲医院护航健康生活】
三公里内四所三甲医院,全生命周期护航
新华医院(儿科专长);
复旦大学附属妇产医院;
上海市第一人民医院;
上海东方医院(血管外科专长);
【学府荟萃|全龄教育培优一脉书香传承】
幼儿园:约1公里内6所幼儿园(直线距离),涵盖东余杭路幼儿园等3所示范级学校;
小学:约1.5公里内5所小学(直线距离),涵盖区重点四川北路第一小学;
中学:约1.6公里内6所中学(直线距离),1所市重点、2所区重点。一路之隔上海虹口二中心小学(在建中),约2.3公里市重点上海外国语大学附属外国语学校(直线距离)*施教区及就学政策以教育部门规划为准
2.5公里北外滩滨江绿地(约800m直达),四川北路公园、和平公园、鲁迅公园3大公园环伺,于滨江和城市低密绿芯之间,肇启当代诗意生活传序。
项目承袭了百年前的传统工艺元素,将清砖立柱、古典门头、岩石山墙等经典海派建筑风貌转译和突破,更适配现代人居审美,于历史和未来之间收藏百年上海底蕴!

保留历史肌理的老砖为基底,项目们以现代陶艺重译传统,研发陶砖。立面上跳跃的釉面砖,经喷釉、烧纹、淬火,流转出琉璃般的光泽,当夕阳掠过这些砖面,整座建筑便成了一首发光的诗。
越秀外滩樾的公区庭院非常精致,其精心打造充满禅意的山水庭院。
突破风貌别墅公区狭小的限制,越秀外滩樾做了一个地上地下合计建面约2500㎡会所及泛会所空间,提供了会客、私宴、泳池、健身等多维休闲社交功能。
更通过堆坡造景和下沉庭院,以山水隐奢之境,塑造沉浸式大师美学体验。
一石一木,一水一庭,尽是自然落笔。晨露未晞时,薄雾轻笼庭院;暮色四合处,斜阳漫染白墙。所谓大隐于市,不过如此!
目前市面上大多数风貌别墅受限于指标,普遍采用超高层+别墅的高低配组合。客户花了买别墅的钱,却享受不到应有的生活质感。反观越秀外滩樾,妥妥的容积率1.3纯墅区,纯粹的墅居氛围非常难得。
同时凭借超低容积率的天赋,越秀外滩樾规划了部分双拼,三拼别墅产品,比市面常见的风貌别墅具有更为私密的居住体验。
项目地上3层,自带庭院。一楼的庭院,将是你栽花听雨的江南;三楼的露台,将是你仰望星空的避风港,在越秀外滩樾,自然将不是风景,而是生活本身。
项目最高约6.15米的地下挑高空间,可作私人艺廊、品茗禅室,或是一场永不散场的沙龙。
另外,项目的弧形玻璃引天光入画,落地窗将四季裁成框景。一扇窗,一面墙,皆是与世界的温柔对话。此刻,上海不再是远方,而是你窗前的晨昏,院里的四季。
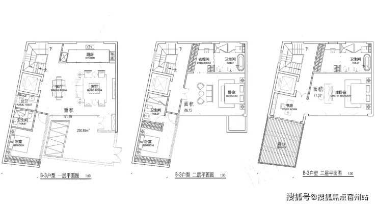
仅48套低密风貌别墅(双拼/三拼),地上3层、地下2层,层高3.2-3.9米、地下挑空6.15米,户户带30-80平私家庭院、观景露台。建面约238平、305平、318平、338平米,售价19.5万/平;






项目实景图

项目实景图
项目实景图
项目实景图
项目实景图
项目实景图
项目实景图
项目实景图
项目实景图
项目实景图
项目实景图

⭕越秀外滩樾 售楼处电话:400-8266-670【官方已认证】⭕
⭕越秀外滩樾 营销中心电话:400-8266-670【官方已认证】⭕
⭕越秀外滩樾 展示中心电话:400-8266-670【官方已认证】⭕
⭕越秀外滩樾 开发商售楼部电话:400-8266-670【官方已认证】⭕
声明:本文由入驻焦点开放平台的作者撰写,除焦点官方账号外,观点仅代表作者本人,不代表焦点立场。
