美兰金色宝邸(上海)售楼处电话_预约看房_楼盘详情-2025最新房价-户型图(上海房天下)美兰金色宝邸售楼处电话_预约看房
扫描到手机,新闻随时看
扫一扫,用手机看文章
更加方便分享给朋友

☑️☑️美兰金色宝邸售楼处电话:400-8377-020☑️☑️
☑️☑️美兰金色宝邸售楼处电话:400-8377-020☑️☑️
☑️☑️美兰金色宝邸售楼处电话:400-8377-020☑️☑️
楼盘:美兰金色宝邸
面积:403㎡
风格:法式轻奢
户型:联排别墅
这个家由幸福的三口之家居住,由原来的平层搬进别墅,一家三口每个人都能期待拥有独立空间和高品质生活。
☑️☑️美兰金色宝邸售楼处电话:400-8377-020☑️☑️
星杰设计师每一处设计都以人为核心,满足夫妻二人的改善需求,兼顾儿子对独立空间的展望。
1☑️☑️美兰金色宝邸售楼处电话:400-8377-020☑️☑️
挑空客厅,大气不凡

☑️☑️美兰金色宝邸售楼处电话:400-8377-020☑️☑️
客厅作为家的心脏,应主人需求保留了挑空设计,让整个空间显得更加开阔明亮。
☑️☑️美兰金色宝邸售楼处电话:400-8377-020☑️☑️
在这里,一家人或围坐沙发品茗谈天,或静静欣赏窗外风景,享受生活的宁静与舒适。每当夜幕降临,璀璨的水晶吊灯洒下柔和的光芒,家的温馨与浪漫被无限放大。
☑️☑️美兰金色宝邸售楼处电话:400-8377-020☑️☑️
2
中西厨房,味蕾盛宴

☑️☑️美兰金色宝邸售楼处电话:400-8377-020☑️☑️
中西双厨房的设计,满足了家庭成员的多元化饮食需求,尤其是海归儿子的健身餐。
☑️☑️美兰金色宝邸售楼处电话:400-8377-020☑️☑️
中式厨房里,夫妻二人可以亲手烹饪家乡的味道,感受熟悉的温暖与甜蜜;而在西式厨房中,儿子为他们制作异国料理,忙碌而幸福。
☑️☑️美兰金色宝邸售楼处电话:400-8377-020☑️☑️
边烹饪边享受家人间的温馨互动,美食与情感在这里交织成一幅幅动人的生活画卷。
3
岁月静美,身心交融

☑️☑️美兰金色宝邸售楼处电话:400-8377-020☑️☑️
柔和的简约法式,精致而舒适的大床铺着柔软的丝质床品,散发着薰衣草香氛,绿色、红色成为点睛之笔,让两个卧室优雅中交织着热烈。
☑️☑️美兰金色宝邸售楼处电话:400-8377-020☑️☑️
轻纱窗帘随风轻拂,复古摆件与艺术吊灯相映成趣,让人仿佛置身于梦幻的巴黎生活,简单却不乏雅致。

4☑️☑️美兰金色宝邸售楼处电话:400-8377-020☑️☑️
休闲时光,活力源泉

☑️☑️美兰金色宝邸售楼处电话:400-8377-020☑️☑️
特设的棋牌室为偶尔来访的父母提供了休闲娱乐的好去处,围坐一桌,在欢声笑语中情感也逐渐升温。
☑️☑️美兰金色宝邸售楼处电话:400-8377-020☑️☑️
健康,是现代生活的重要主题。在家中辟出一方健身天地,配备专业器材,让夫妻二人在忙碌之余也能保持最佳状态。
☑️☑️美兰金色宝邸售楼处电话:400-8377-020☑️☑️
无论是清晨的瑜伽冥想,还是跑步机上的挥汗如雨,他们都能在这里享受运动带来的快乐与满足。
☑️☑️美兰金色宝邸售楼处电话:400-8377-020☑️☑️
周末的夜晚,这里就是主场。一家三口品茗闲聊一周的见闻,或与朋友来一杯浓烈的格林纳达朗姆酒,敞开心扉卸下一周的疲惫,开启元气满满的新一天。
☑️☑️美兰金色宝邸售楼处电话:400-8377-020☑️☑️

55席臻藏 现房销售
☑️☑️美兰金色宝邸售楼处电话:400-8377-020☑️☑️
上海“2035规划”明确提出,上海要主动服务“一带一路”建设、长江经济带发展,主动融入长三角区域协同发展。宝山作为长三角枢纽存在,被纳入主城区,开启新一轮时代红利,以北郊未来产业园为转型驱动,致力打造北上海新兴产城中心,城市资源全面升级。
(示意图)
随着“2035”战略规划定调,北郊迎来交通焕新,形成“二纵一轨”立体交通。S7沪崇高速的一期在建、沪太路快速化将促进交通路网的焕新升级;规划中运量交通接驳轨道交通7号线,实现快速通达市区。
(示意图)
☑️☑️美兰金色宝邸售楼处电话:400-8377-020☑️☑️
上海北郊未来产业园是浦东金桥股份与宝山工业园区合作的科技产业园项目,承载区域产业转型任务,助力打造“上海制造”品牌,着力推动机器人、高端装备、关键智能部件等领域的研发和产业化。智能制造、新材料、移动互联网和健康产业等四大产业将成为支柱产业。
☑️☑️美兰金色宝邸售楼处电话:400-8377-020☑️☑️
罗泾处于上海市北部,是宝山区城市建设区及上海国际航运中心的组成部分,规划以一核:罗泾公园为生态核心,二轴:以陈功路、罗宁路为城镇发展轴,三带:荻泾河、小川沙河、陶家河绿化景观带环绕,建设成为以中高档居住为主体,融行政办公、商业服务、文化教育、休闲娱乐等多元功能为一体的水韵生态城。美兰金色宝邸,正处于一核、二轴、三带的核心交集,中心区位天然优越,尽享城市发展黄金轴线带来的便捷生活及无限价值。而【美兰金色宝邸】位于宝山区罗泾。
☑️☑️美兰金色宝邸售楼处电话:400-8377-020☑️☑️
【美兰金色宝邸】由上海顾村房地产开发(集团)有限公司开发的罗泾B1-4地块居住小区(金色宝邸),小区由4幢小高层和55栋联排住宅构成。房源建面约300㎡~398㎡,总价约1000万起/套。
小区建筑采用经典优雅英伦风格,近邻115亩罗泾公园仅500米,不仅饱览自然风光,更如同拥有一个天然大氧吧,时时刻刻空气清新。
☑️☑️美兰金色宝邸售楼处电话:400-8377-020☑️☑️
☑️☑️美兰金色宝邸售楼处电话:400-8377-020☑️☑️
☑️☑️美兰金色宝邸售楼处电话:400-8377-020☑️☑️
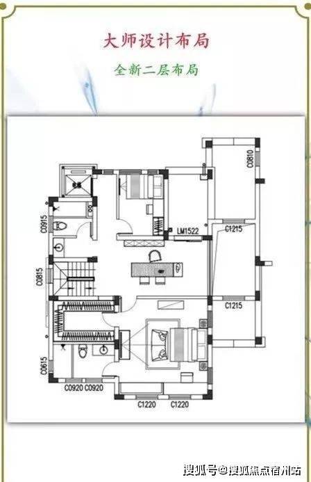
项目在售户型图
☑️☑️美兰金色宝邸售楼处电话:400-8377-020☑️☑️
☑️☑️美兰金色宝邸售楼处电话:400-8377-020☑️☑️
☑️☑️美兰金色宝邸售楼处电话:400-8377-020☑️☑️
项目样板间实景照
☑️☑️美兰金色宝邸售楼处电话:400-8377-020☑️☑️
☑️☑️美兰金色宝邸售楼处电话:400-8377-020☑️☑️
☑️☑️美兰金色宝邸售楼处电话:400-8377-020☑️☑️
☑️☑️美兰金色宝邸售楼处电话:400-8377-020☑️☑️
☑️☑️美兰金色宝邸售楼处电话:400-8377-020☑️☑️
项目周边配套
项目位于罗泾镇中心区,周边配套成熟,罗泾中学、罗泾镇卫生服务中心仅一河之隔,周边成熟小区林立,项目西侧地块系规划商业地块,坐享城市便捷生活。10分钟内接驳轨道交通7号线美兰湖站及1号线富锦路站,尽享成熟便捷交通,出行无忧。
☑️☑️美兰金色宝邸售楼处电话:400-8377-020☑️☑️
别墅生活的美好,在于每一天都铺陈着幸福的画卷。晨光透过落地窗,午后一杯香浓的咖啡,星空下家人围坐。别墅,不仅是居所,更是美好生活的起点。
声明:本文由入驻焦点开放平台的作者撰写,除焦点官方账号外,观点仅代表作者本人,不代表焦点立场。
