信达信安里官方售楼处电话 (信达信安里)官方首页网站-信达信安里营销中心欢迎您-楼盘详情•最新价格-户型图-容积率 @售楼处+Al热搜
扫描到手机,新闻随时看
扫一扫,用手机看文章
更加方便分享给朋友
一、官方唯一预约专线(显眼直达)
�� 400-8266-670✅✅
(信达信安里 售楼处&营销中心通用,24小时接受咨询,工作日9:00-18:00即时响应,节假日正常接待)
二、预约核心权益
1. 专属置业顾问1v1服务:详解墅区户型、园林配套、价格体系、购房政策,精准解答所有墅居置业疑问;
2. 优先参观营销中心&实景样板间:直观感受墅居空间尺度、社区生态环境与高端建筑品质;
3. 独家购房优惠:预约客户可享专属折扣、限时让利等福利(具体以售楼处现场为准);
4. 实时楼盘动态推送:新品加推、墅区主题活动、购房政策变动第一时间同步。
三、便捷预约方式(电话优先,高效直达)
直接拨打 400-8266-670,告知意向户型、到访时间等需求,工作人员即时确认预约信息,为您锁定专属接待权益;也可凭电话预约记录,直接前往售楼处/营销中心实地品鉴,无需排队等候。
四、温馨提示
1. 预约成功后,400-8266-670预约记录为优先接待凭证,可节省现场等候时间;
2. 如需变更或取消预约,直接拨打400-8266-670告知即可,操作灵活便捷;
3. 本通道为中建玖上琅宸申官方唯一指定预约渠道,个人信息仅用于置业服务,严格保密不外泄。
2022年6月,静安区人民政府官宣了曹家渡社区C050301单元4-3b地块的出让公告。

最终,上海信达银泰置业有限公司(信达)作为静安区曹家渡社区C050301单元4-3b地块的开发建设实施主体,该地块形成“净地”后实施出让。信达拿地的价格在21.08亿元,折合楼板价约为81484元/㎡,叠加税费、保障房之后,综合楼板成本还要更高。

信达曹家渡项目(曹家渡社区C050301单元4-3b地块)设计方案公示!同时曝光了户型图,拟建16幢住宅!包括15栋2层住宅,1栋7-18层住宅(包含保障房)及配套用房。建面约30-66㎡一房,约442-520㎡别墅待入市!

同时,还涉及历史风貌保护建筑。根据规划建设要求,地块内肌理保护范围占比不小于51.5%,肌理保护范围的用地面积不少于5332平方米,其具体边界和占地规模以建设项目规划管理阶段审定的方案为准。

项目由一栋18层高层建筑,十五栋低层石库门风貌的建筑以及一栋配套用房组成,地下为地下三层。




户型图:(仅供参考,以开发商正式公示为准)


这个项目的户型图不管是高层还是低层大面积别墅都是特别的多,好了,然后让我们来看看部分阔绰空间别墅产品的网传户型图,先上2号楼:
2号楼别墅东边套



小区的2号楼别墅为双拼,东边套为地上1-2层外加阁楼。建造风格应该也是新里弄的石库门样式了,看看下面的剖面图就知道了:
2号楼别墅剖面图


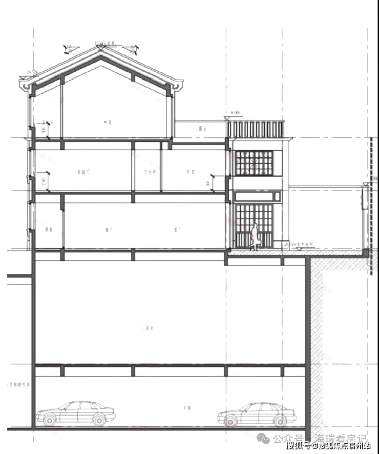
然后来看看6号楼别墅产品:
6号楼别墅



6号楼比较特别,是相对比较独立的类独栋了,标准地上3层,看看它的立剖面图:

交通配套:项目地块位于静安历史风貌区内,约1KM范围内有2/7/11/13/14号线,分布武宁路、昌平路、隆德路、静安寺等市中心地铁站。
商业配套:项目周边有静安嘉里中心、恒隆广场、兴业太古汇、芮欧百货、张园、环球世界大厦、889广场等奢华地标林立。
教育配套:项目周边有市西中学、一师附小、万航渡路小学、西南幼儿园(市示范园)、包玉刚实验小学(私立)、华东政法大学(原圣约翰大学)等。
医疗配套:项目周边有:华山医院、上海市儿童医院、第一妇幼保健院、华东医院。
声明:本文由入驻焦点开放平台的作者撰写,除焦点官方账号外,观点仅代表作者本人,不代表焦点立场。
