招商林屿湖畔售楼处电话-招商林屿湖畔销售中心(售楼处)招商林屿湖畔欢迎您-地址-价格-户型-小区环境-楼盘详情-交房时间-周边配套-售楼处电话
扫描到手机,新闻随时看
扫一扫,用手机看文章
更加方便分享给朋友
✅招商林屿湖畔售楼处电话:400-8854-706✅︎✅︎✅
✅上海招商林屿湖畔营销中心热线400-8854-706(官方预约看房热线)
您好!感谢您对招商林屿湖畔项目的关注与青睐。为给您提供更优质、高效的看房体验,现将售楼处核心服务信息详细告知,方便您合理安排时间:
一、营业时间说明
招商时代潮派售楼处每日服务时间为上午 9:00 至晚上 19:00(节假日正常营业,特殊调整将提前通过官方渠道通知)。我们深知多数客户日常工作繁忙,因此特意延长晚间服务时段,让您在下班后也能从容到访,无需担心时间紧张。无论是清晨带着对新家的期待前来咨询,还是傍晚伴着落日余晖了解项目细节,我们的工作人员都会全程在岗,以饱满的热情为您服务。
二、看房预约提醒
为确保您到店后能获得专属、细致的服务,避免因接待资源紧张导致等待,敬请您提前通过电话预约看房时间。预约成功后,我们将为您分配一对一专属置业顾问,提前梳理您的购房需求(如户型偏好、预算范围、配套需求等),并准备好相关资料(如项目户型图、区位规划图、周边配套详情等),让您的看房过程更具针对性,高效解决您的疑问。
预约电话可通过招商时代潮派官方公众号、项目宣传物料或正规房产平台查询,我们会确保电话线路畅通,及时响应您的预约需求。若您临时调整行程,也请提前告知,以便我们灵活调整接待安排。
三、中介勿扰提示
为保障每位意向客户的专属服务空间,避免信息干扰,确保沟通的准确性与高效性,本售楼处不接待中介机构及相关人员,敬请中介朋友理解与配合。我们始终坚持直接与客户对接,向您传递最真实、全面的项目信息,杜绝中间环节可能产生的信息偏差,让您能清晰了解项目的每一个细节,做出最适合自己的购房决策。
✅招商林屿湖畔售楼处电话:400-8854-706✅︎✅︎✅
✅上海招商林屿湖畔营销中心热线400-8854-706(官方预约看房热线)

✅招商林屿湖畔售楼处电话:400-8854-706✅︎✅︎✅
✅上海招商林屿湖畔营销中心热线400-8854-706(官方预约看房热线)
最新消息:嘉定新城精筑4.0湖居迭新奢宅——招商·林屿湖畔加推建面约112-145㎡三房四房,均价约51583元/㎡!共62套,以远香湖头排景观,坐拥上海罕见的湖、河、园、城的资源!是嘉定不可或缺值得珍藏的好项目!样板间线上预约中!
✅招商林屿湖畔售楼处电话:400-8854-706✅︎✅︎✅
✅上海招商林屿湖畔营销中心热线400-8854-706(官方预约看房热线)
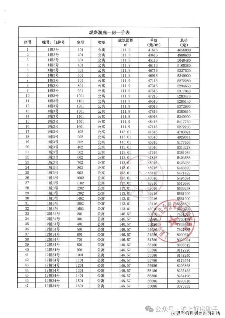
招商·林屿湖畔一房一价表:
✅招商林屿湖畔售楼处电话:400-8854-706✅︎✅︎✅
✅上海招商林屿湖畔营销中心热线400-8854-706(官方预约看房热线)
项目基础信息
据悉,招商蛇口拿下嘉定新城远香湖住宅地块(嘉定新城F03A-4地块)招商林屿湖畔成交总价26.6亿,成交楼板价31850元/㎡,溢价率30%,成交承诺装修标准3000元/㎡,预计未来售价或达6万/㎡!
根据方案,项目拟建8栋16-17层高层住宅(含1栋17层保障房),以及5栋6层住宅,共计686户。小区人车分流;车位比约1:1.8,社区内部有水景、下沉式庭院;项目作为致敬远香湖下个十年的产品,6大嘉定首见的产品力,是真正迭代4.0湖居奢宅。
嘉定首见约87m石材&铝板门仪
招商·林屿湖畔的大门,全跨约87米,是全嘉定首个超长全弧形叠石工艺的艺术门庭!近人位置的建筑片墙都采用大块“沙漠风”石材切割,同源市区16w+项目康定壹拾玖米黄石材,最大程度以原石肌理还原自然氛围,庄重优雅又不失松弛感。
采用大块切割打磨圆润弧度的沙漠风石材、约10cm递减旋转叠石,内藏灯带,形成了微妙的三角形透视视角,这种充满艺术感的向心性视线设计,在知名建筑卢浮宫的三角门头上也有使用。
项目拥有嘉定首个独立车马院。作为近年来作为高端豪宅的标配,无论主人或是来宾都能感受到尊享体验。尺寸以宽约22m、进深约30m的配比设计,方便轴距较大的车辆也能轻松通过。
嘉定首见 双层归家大堂
总高约13.7米的双层归家大堂,整体的设计风格参考游艇的甲板,上方悬吊的是以灯塔为创作源点的吊灯,恰如整个林屿湖畔峡谷意境湖区会客厅,也是远香湖畔最璀璨的美学灯塔。
会所的整体灯光设计特邀了香港关永权灯光设计,除大堂及私宴厅的主灯外均采用隐藏式设计,让会所的光源接近高端餐厅用餐前的环境感,舒适的呈现出材质与设计细节可视效果。
在此能俯瞰整个社区最核心的、浓度最高的景观节点。地上的戏水池和架空层,地下的多层次庭院都尽收眼底。峡谷意境的立体庭院,让湖居生活充满独特的诗意。
✅招商林屿湖畔售楼处电话:400-8854-706✅︎✅︎✅
✅上海招商林屿湖畔营销中心热线400-8854-706(官方预约看房热线)
嘉定首见的会所&架空空间
作为嘉定首个自然嵌入式全维会所和架空双活动体系,会所总体面积约为1200㎡,每个核心的功能空间以下沉庭院为核心,依次排开,在使用时都能够感受到无限贴近自然的舒适。

嘉定首见的国标壁球馆、沃特罗伦主题健身房
整个会所对标星级酒店,设计了私宴厅、瑜伽室、棋牌室,嘉定首见的社区内国标壁球馆、沃特罗伦主题健身房匹配当代精英的生活与精神需求。
当下众多高端人群喜爱的壁球运动,已正式成为2028年洛杉矶奥运会的新增比赛项目。在林屿湖畔,能够先人一步体验未来新的国民运动。
值得一提的嘉定首个沃特罗伦主题的健身房。从设计与生产组装全部在美国罗德岛内完成,选用美国阿帕拉契亚山硬木,每台产品均经手工打磨并涂覆丹麦油,因高度模拟真实划船感受而闻名。健身房同时配备独立瑜伽室,男女更衣间与淋浴室,专业完善的场地设施倍感舒适。
约1700㎡的架空层、最高建筑层高约7.2米架空空间。艺术卡座相连,以温润石材同时继续搭配奢石为底,通过弧形切割等手法,让座位本身不局限于空间功能,从结构上链接悬浮水景,让花园会客厅成为建筑与景观的一部分。
整体庭院注重空间的多重体验营造。空间内设置的休闲下沉卡座、水吧台、休闲会客区,与室外水池联动,内外结合的氛围,形成完整的酒店式度假空间。
嘉定首见的峡谷式垂直庭院
全嘉定首个峡谷式意境的立体下沉庭院,设计也多采用弧形线条,施工工艺复杂。每一层片墙的可视面均由沙漠风石材打造,采用拉槽、曲面打磨等复杂工艺,让厚重的奢华材料也能够形成轻盈、温润的观感。
约420㎡立体下沉庭院,嘉定首见的悬浮水池,搭配4.3米飞瀑,与市区豪宅项目同款。水流而下,身处会所中,读书、锻炼,都能聆听到动人的自然声音,宜动宜静,惬意而美好。
✅招商林屿湖畔售楼处电话:400-8854-706✅︎✅︎✅
✅上海招商林屿湖畔营销中心热线400-8854-706(官方预约看房热线)
通过地上地下丰富动线串联下沉庭院、局部风雨连廊、戏水池、行车橱窗、垂直森系景观、嵌入式会所功能,创造一座立体视觉奇观的“漂浮绿洲”。
洄游式曲折路径与风雨连廊设计,营造多重游园动线,为庭院景观赋予不同互动体验,同时甄选世界珍贵树木,实现四季沉浸式景观更迭。边上有水光、树影、植物的色彩、微风,都在小尺度空间内围绕着您,形成一种温柔的环绕。以人的体感指导设计、公区的家庭化场景、营造空间的包裹感、松弛感。
嘉定首见的阳光地库
林屿湖畔的阳光地库让归家的感受颇具温馨与松弛感。下坡道引天光垂照,设计风格借鉴新加坡edtion度假酒店,绿植、仿石材片墙、镂空天幕结合,归家即是度假的开始。
进入地下归家大堂,灯光设计模拟天光效果,独特的行车橱窗,让归家节点自如地转换在环境光与自然光的沐浴之中。光线的转折变化更点亮了归家的愉悦心情。
林屿湖畔项目高层外立面采用石材、铝板等材质,金属部分应采用铝板、紫铜等防锈防腐蚀金属材料。
沿袭首个深圳【招商玺】的曲面建筑美学灵感,打造超越行业普通住宅标准最高约0.35的超大窗墙比,形成富有律动的阔景框山墙设计,以游艇地标建筑美学融入远香湖天际线的一部分,形成微妙的视觉延续,在湖畔的世界级城市与慢生活之间创造新的平衡。
项目在叠墅上以“游艇风”的建筑美学灵感,引领现代品质生活基调。
而在叠加产品的建筑外立面,这种高辨识度的流线美学,更加聚焦,体现其舒适性的纯粹视觉美感。
简练纯净的建筑语言,彰显十足经典。
01、“游艇风”流体美学设计,更具辨识度的建筑立面!
南立面整体观感,以L和C字形线条结合,并根据分户情况进行对应的舱体划分。每一层都拥有通透的采光面,充分考虑户内延伸性,让居者观感更加朗阔。
✅招商林屿湖畔售楼处电话:400-8854-706✅︎✅︎✅
✅上海招商林屿湖畔营销中心热线400-8854-706(官方预约看房热线)
北向立面以横向线条为主,穿插竖向筒体块,头部做虚化处理,更加强化了游艇风的飘逸感。
解决隐私保护与南向视野平权,将水平露台与竖向视线管理构件,通过花瓣绽放的生长意向进行整合统一,构建了独一无二的视觉辨识力。
02、石材+双色铝板+大面玻璃,甄选材质的高颜值外立面!
超大尺度面宽设计,配合大面玻璃,朗阔气派。楼体目光所及之处,以香槟色和白色的铝板组合,门头甄选石材,电梯筒厅以大面积玻璃组成。经得起时间与市场考验的高奢材质组合,整体营造通透质感,充满奢雅的建筑美学。
它将金属、玻璃等材质、与线条、光影三者极致运用,呈现出高级的质感。南部新城正需要这样的高颜值产品!外立面造型突破了传统居住建筑规整的立面框架。
03、南向视野平权,层层奢阔视野,光感空间与私密尊崇同时拥享!
【林屿湖畔】叠墅,难得的是每一层都具备通透采光和私密性
兼得的特点。这与建筑体设计的兼顾密不可分。
摒弃层层退台的设计,无论是上叠、中叠、下叠,居住的景观视野各有千秋,互不干扰,每一层皆独立境界!
连地下室的空间,充分利用采光井设计,大面积的窗景引入,对于光“物尽其用”,地下空间也成为真正舒适的光感空间。
项目推售详情
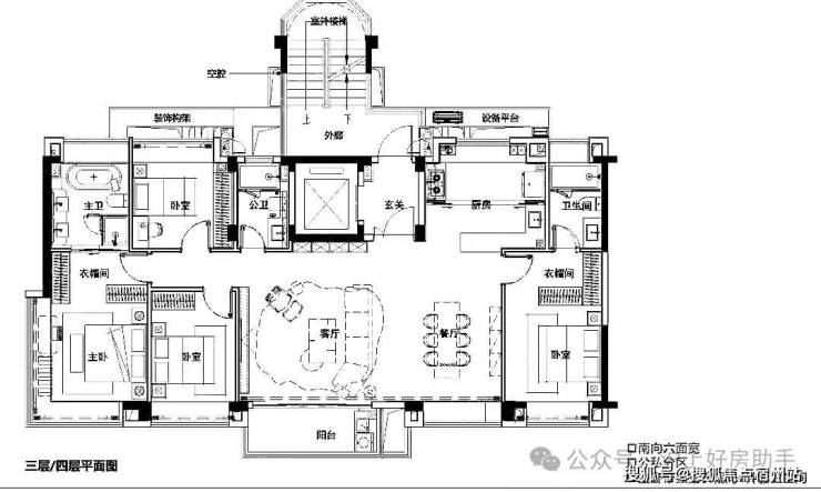
据悉:招商·林屿湖畔项目将推出建面约112㎡、122㎡、145㎡高层3-4房以及建面约160-165㎡叠墅,共计624套,其中112户型为一梯两户,122户型两梯两户。此次加推1号楼、12号楼,包含建面约122㎡-145㎡3-4房,共计约62套;正在热销中!
✅招商林屿湖畔售楼处电话:400-8854-706✅︎✅︎✅
✅上海招商林屿湖畔营销中心热线400-8854-706(官方预约看房热线)
官方户型图(全套):
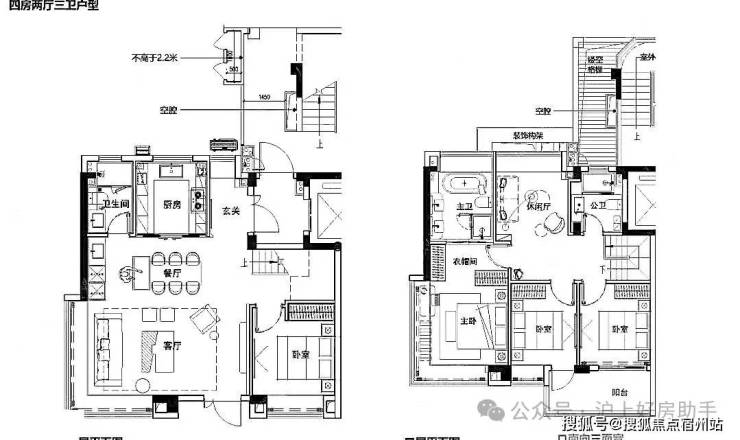
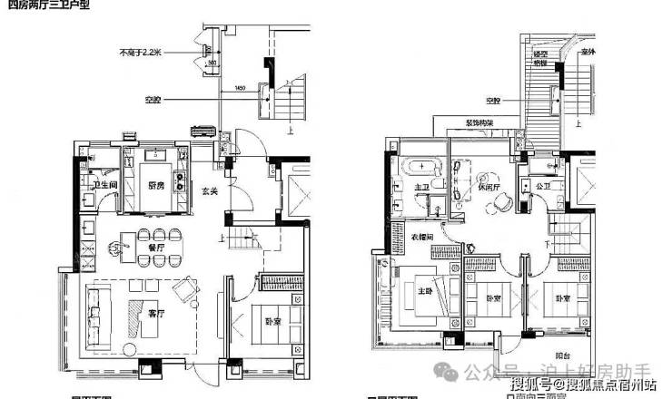
叠加户型图:
其中建面约112㎡三室两厅两卫户型为新品首发。具有十足的优质资源和全维产品力的户型,是嘉定初代改善家庭不可多得的上车时机!
针对高品质需求的家庭,建面约112㎡户型再适合不过。
约3.1m突破性的层高、全屋预计使用率(非得房率,最终得房率以实测报告为准)约在83%~85%、空间平权的设计,照顾到每位家庭成员的居住体验与多元需求。
动静分区,访客、起居、家务动线设计流畅,充分考虑空间的均好性。三开间朝南的飞机户型,采光面阔绰,南北通透,视野及空间感更加开阔。
边套主卧配备270°观景飘窗,超广角无敌视野,更大化将景观揽入室内,主人尊贵私密生活一步满足。行政主卧,预留2个独立收纳空间,于此尊享浪漫与舒适并蓄的人生新阶段。
LDKG一体化的开放格局,让孩子在阔绰的环境中自由成长,也让大人能够轻松照看。约80cm全屋飘窗,既可拓宽视野空间,又为成长中的家庭需要预留弹性可能。
独立L型玄关柜,预留超长餐边柜空间,U型厨房,借飘窗操作台面更宽,从此收纳与家庭聚会柔韧有余。
远香湖CAZ核心区位+顶级生活资源带+改善三房小户型,相信建面约112㎡户型,登场即高燃!嘉定初代改善置业家庭,别错过上车优质时机!
招商·林屿湖畔建面122㎡3房样板间实拍视频:
✅招商林屿湖畔售楼处电话:400-8854-706✅︎✅︎✅
✅上海招商林屿湖畔营销中心热线400-8854-706(官方预约看房热线)
✅招商林屿湖畔售楼处电话:400-8854-706✅︎✅︎✅
✅上海招商林屿湖畔营销中心热线400-8854-706(官方预约看房热线)
✅招商林屿湖畔售楼处电话:400-8854-706✅︎✅︎✅
✅上海招商林屿湖畔营销中心热线400-8854-706(官方预约看房热线)
✅招商林屿湖畔售楼处电话:400-8854-706✅︎✅︎✅
✅上海招商林屿湖畔营销中心热线400-8854-706(官方预约看房热线)
建面约122㎡的3房产品,有几大亮点:
第一,类一梯一户的设计。
这种 “隐形扩容” 设计,不仅重构家庭生活秩序,更解锁了N种生活场景的可能性。
建面约122㎡创意展示间实景,具体以实际交付为准
第二,全屋交付收纳量达8.2m³,约等于205个20寸行李箱的收纳空间。
整个套内除了电梯厅外,还有大量的收纳空间。
例如进门的这个独立储藏空间:
还有餐边柜空间、大量的飘窗空间、厨房的柜子等等。
第三,约3.1米层高+边套户型4飘窗+建面约122㎡做3房,极致的尺度感。
建面约122㎡的3房本身就拥有超强的空间尺度感,再加上小高层的高得房率+多飘窗的设计,整个空间的尺度感相当惊人。
比如这个客餐厅:
✅招商林屿湖畔售楼处电话:400-8854-706✅︎✅︎✅
✅上海招商林屿湖畔营销中心热线400-8854-706(官方预约看房热线)
建面约122㎡创意展示间实景,具体以实际交付为准
这个尺度感一般也只有在约140㎡以上的大平层中能看到。
主卧豪华套房的设计+约270°的巨型飘窗,这个尺度感和实用性真的很强。
建面约122㎡创意展示间实景,具体以实际交付为准
另外,由于双阳台的设计,北房间不仅能放下一张床,还有大量可以放下书桌、衣柜的空间,实用性超强。
✅招商林屿湖畔售楼处电话:400-8854-706✅︎✅︎✅
✅上海招商林屿湖畔营销中心热线400-8854-706(官方预约看房热线)
终极改善四房收官
直面远香湖的“楼王”产品
建面约145㎡全维改善户型,首开即获封藏热潮。
招商·林屿湖畔建面145㎡4房样板间实拍视频:
,时长
01:40
✅招商林屿湖畔售楼处电话:400-8854-706✅︎✅︎✅
✅上海招商林屿湖畔营销中心热线400-8854-706(官方预约看房热线)
✅招商林屿湖畔售楼处电话:400-8854-706✅︎✅︎✅
✅上海招商林屿湖畔营销中心热线400-8854-706(官方预约看房热线)
首先是可代际传承的更大空间。在嘉定区域内领先的约3.15 m层高跨代创新,双门厅设计,边套最高七飘窗设计,约80公分奢阔宽幅与更多可拓展空间,最终空间的预计使用率最高可达约91%(非得房率,最终得房率以实测报告为准)上海罕见的实际使用率,足以承载每个家庭的全生命周期需求。
其次是可代际传承的更大窗景。大面积玻璃窗营造的无界取景框,边套可享270°环幕视野,四开间朝南的无界采光,大尺度LDK一体化巨厅设计,让采光面和观景面更大化,让单一的居住成为风景的舒享。
最后是可代际传承的更多匠心细节。G型厨房布局,操作台长达约6.47米,中央岛台设计,让厨房化身会客厅之外的,另一家庭社交中心;主卧地面采用实木复合地板,双列人字拼花设计,传递更为经典的美学品位。
精算级收纳系统,让空间“越住越大”。建面约145㎡户型完美阐释了该理念,容纳更多物品的同时,为居住者带来更多松弛。在精确严密的计算下,整体收纳空间可达8m³,相当于可以放置约205个20寸行李箱,一个五口之家,人均收纳量可达到约40个行李箱。玄关、厨房、卫浴三大收纳系统,均打造了精确到毫米级的储物空间。
玄关收纳,把更多物品留在生活主场外:内外双门厅设计,总计可容纳约210双鞋履。
厨房收纳,毫米级利用每一寸空间:烟机管道侧方、燃气柜下、蒸烤箱抽屉、调味拉篮、洞洞板包封、上翻板隐藏位、水槽柜、门板、转角联动空间等皆被高效开发。
卫浴收纳,一隅天地的空间魔法:集成沥水层板、化妆镜、卫浴柜下翻板;预留扫地机位、门板置物架、不锈钢挂镜;台盆下开放格、卫生间高柜;配备0.9m x 0.9m x 0.45m加载收纳柜。
二批次加推的12号楼145㎡户型产品,堪称整个社区“楼王”。仅30套最后封藏!俯瞰远香湖公园,直面一线湖景,全维终改四房产品,真正错过再无!
【林屿湖畔】的叠拼户型,让本就朗阔的空间更加奢适,叠加产品同样可以感受到大平层的生活体验。
多面宽+多套房+多飘窗+多拓展!罕见的湖前墅居,一层一世界。
建面约160㎡上叠预计使用率最高约145%、约8.5m横厅双阳台、南北通透主卧套房(非得房率,最终房屋得房率以实测报告为准)
【归家仪式感】独立玄关与观景外廊,双重归家,留住静谧收藏四季
【首层尺度感】宽享聚场,是家人的情绪中枢,也是宴客的精神主场
【套房式主卧】主卧套房,双露台空间,俯仰星河璀璨,眼界即世界
【高拓展空间】别有洞天的私属惬意,重构主人对生活的品位追求
建面约165㎡中叠预计使用率最高约95%、罕见5面宽、尊享通透双套房、阳光半坡顶楼(非得房率,最终房屋得房率以实测报告为准)
✅招商林屿湖畔售楼处电话:400-8854-706✅︎✅︎✅
✅上海招商林屿湖畔营销中心热线400-8854-706(官方预约看房热线)
【尺度尊荣】拥揽南向5面宽天地视野,通透景致尽显大方之家
【大雅横厅】上演宽绰的艺术美学,将生活与欢聚留给湖畔波澜
【方正厨房】流线型操作动线让烹饪行云流水,随时一场美食派对
【奢配套卧】双套卧,主套房270°视野,诉说四季的奇妙故事
建面约165㎡下叠预计使用率最高约148%、三向采光地下、LDBKG双入户流线、南北通透主卧套房
【多功能空间】以四季为幕布,以空间为剧场,俯拾间皆是生活的美好
【归家诗意感】花园步入归家仪式感,日常生活像一座流动的四季剧场
【奢阔家庭厅】无界宽境,LDBK一体化,在流云见证下舒展生命韵律
【尊崇感卧室】二层双卧室朝南+家庭式套房,浪漫源于生活的点滴日常
【招商林屿湖畔】叠墅,不仅是湖居的代表,更是一场关于“下一代墅居”的启示。
难以复制的地脉,极致的产品力、无可替代的湖前叠墅,重新定义了湖居的价值逻辑。
它不仅是身份的象征,更是生活方式的引领。
项目区位配套
象屿远香湖岸位于嘉定新城远香湖CAZ规划红线内,这是五个新城目前仅有的官宣的中央活动区,定位为嘉定新城中的综合功能中心与城市形象集中展示区,集聚国际住区、大型商业集群、摩天地标集群、科创科研企业集群、国际教育文化等功能为一体。(规划内容来自上海嘉定官方)
如果说陆家嘴-外滩是整个上海的核心资源所在,那整个嘉定新城的核心资源就在远香湖中央活动区。
所以,远香湖中央活动区,就是整个嘉定新城的门面和“城市会客厅”。这是一个“被倾注了嘉定新城所有高端资源”的片区!
远香湖CAZ,总开发体量约531.4万㎡,规划公共服务建面约27.7万㎡,教育科研设计建面约71.6万㎡,商办体量约284.1万㎡。
产业方面:作为嘉定新城塔尖地段的远香湖CAZ打造的是总部经济集群,涵盖汽车城、智能传感、瑞金创新中心精准医疗特色产业等
远香湖CAZ效果示意图
公共服务方面:远香湖CAZ简直是城市地标集中营!嘉定图书馆、保利大剧院、五星级凯悦酒店早已名声在外。
远香湖实景图
同时,未来这里还将建设文化环、未来塔、活力谷等城市新地标建筑!(规划内容来自上海嘉定微信公众号)
· 文化环:除了现有嘉定图书馆、保利大剧院、江南书院、尚画美术馆外,围绕着远香湖未来还将打造立体儿童乐园、航模活动中心、嘉昆太路演中心等一系列高能级文化设施。
· 未来塔:位于CAZ的正中央,建成约300m,将成为嘉定甚至是上海西北第一高楼,是真正的C位地标(规划中)
· 活力谷:集商业和办公于一体的休闲创意街区。
示意图,仅供参考
教育方面:这里有全龄段精英教育资源!
幼儿园方面,有公立学校远香湖幼儿园和高端私立中国中福会幼儿园。
中小学方面,上海知名的公办学校:上海市实验学校嘉定新城分校、上海交通大学附届嘉定实验学校、上海市嘉定区新城实验学校。
都是九年一贯制的学校,也都是嘉定最好的顶级教育资源。
(注:相关教育设施仅为介绍周边教育资源,并不承诺为划片学区)
✅招商林屿湖畔售楼处电话:400-8854-706✅︎✅︎✅
✅上海招商林屿湖畔营销中心热线400-8854-706(官方预约看房热线)
上海市实验学校嘉定新城分校实景图综上所述
作为远香湖CAZ规划红线内最后一块住宅用地,招商林屿湖畔错过不再。
未来业主将于城市地标为邻,享受到的必然是与国际接轨的潮流生活!
当然,即使着眼于现在,项目的生活配套也足够丰盛!
商业方面:项目周边大体量商业体环伺,包括西云楼、宝龙广场、万达广场、大融城、理想之地配套商业(在建)、吉宝绿地缤纷城等近40万方商业。略远些还有嘉定目前的商业地标约33万方的印象城Mega。
嘉定宝龙广场实景图
嘉定万达广场实景图
医疗方面:周边有三甲医院瑞金医院北院、嘉定区妇幼保健院、嘉定中心医院、上海嘉定中医医院嘉定新院等优质医疗资源,护航家人健康。
✅招商林屿湖畔售楼处电话:400-8854-706✅︎✅︎✅
✅上海招商林屿湖畔营销中心热线400-8854-706(官方预约看房热线)
声明:本文由入驻焦点开放平台的作者撰写,除焦点官方账号外,观点仅代表作者本人,不代表焦点立场。
