中粮北外滩壹号官方售楼处电话→中粮北外滩壹号售楼中心电话→中粮北外滩壹号楼盘百科→楼盘网站→楼盘测评→售楼中心电话→楼盘百科→电话→楼盘详情
扫描到手机,新闻随时看
扫一扫,用手机看文章
更加方便分享给朋友
在上海一线滨江板块地图中✅✅中粮北外滩壹号售楼处电话:400 - 882 - 4258✅✅,陆家嘴,黄浦滨江、徐汇滨江等地新房单价都已突破19万/㎡。今年6批次,北外滩地块也紧随其上,溢价率46.3%,预计售价约19万/㎡左右,成为今年最炙手可热的滨江板块之一。
凭心而论,北外滩新房单价卖到19万我一点也不奇怪。
答案显而易见:北外滩一直都是时代的佼佼者,✅✅中粮北外滩壹号售楼处电话:400 - 882 - 4258✅✅它既是百年前海纳百川的港口,又是今日的世界会客厅,还是上海的未来发展引擎。
所以,当人们以为北外滩新房售价即将冲向19万/㎡、未来买入北外滩将付出巨大经济代价时,一个巨大的历史性机遇,✅✅中粮北外滩壹号售楼处电话:400 - 882 - 4258✅✅【中粮北外滩壹号】出现了!
均价14.38万,总价约3000万起,✅✅中粮北外滩壹号售楼处电话:400 - 882 - 4258✅✅这个价格无疑是北外滩错过再无的抄底机遇!
中粮大悦城上海第五座壹号系✅✅中粮北外滩壹号售楼处电话:400 - 882 - 4258✅✅,“世界S湾壹号作品”——【中粮·北外滩壹号】已过会,即将开启认购!
推售建面约185-228㎡天际大平层
过会均价143868元/m²✅✅中粮北外滩壹号售楼处电话:400 - 882 - 4258✅✅
顶层地段+顶层社区+稀缺天际大平层价值,仅90席,错过再无!
售楼处及样板间持续开放中!✅✅中粮北外滩壹号售楼处电话:400 - 882 - 4258✅✅
准1梯1户设计,私享电梯厅独立入户,✅✅中粮北外滩壹号售楼处电话:400 - 882 - 4258✅✅经典飞机户型,三开间朝南,南北通透,动静分区,通风采光俱佳。
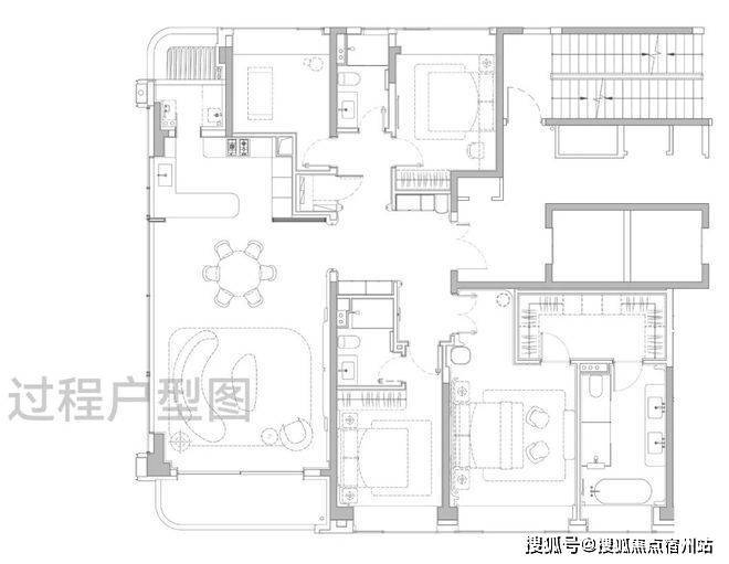
户型图赏鉴
185㎡四房奢阔大宅
独立玄关做足私密性和仪式感;✅✅中粮北外滩壹号售楼处电话:400 - 882 - 4258✅✅LDKB一体化设计的客餐厅面积达到约55㎡,方正大气。
主卧套房尺度豪奢,可供业主配置步入式衣帽间,✅✅中粮北外滩壹号售楼处电话:400 - 882 - 4258✅✅卫生间做到双台盆+大浴缸+独立淋浴的顶配,尊崇感十足!
228㎡四房天际大宅
准1梯1户设计,私享电梯厅独立入户,户型尺度进一步升级,当今顶豪新盘中极为稀缺的四开间朝南。
边厅面积超过50㎡,给一家人提供了阔绰的交流空间;✅✅中粮北外滩壹号售楼处电话:400 - 882 - 4258✅✅约270°环幕景观设计,带来极好的采光,并且高区可以直面陆家嘴城市天际线+黄浦江景观,视野相当震撼!
主卧大套房设计带超大主卫和衣帽间,面积约50㎡✅✅中粮北外滩壹号售楼处电话:400 - 882 - 4258✅✅尺度感与市面上近300㎡的顶豪拉平。
室内设计由中国现代室内设计领域的领军人物——梁志天亲自打造。
在材质选用上,延续了壹号系的高端标准,✅✅中粮北外滩壹号售楼处电话:400 - 882 - 4258✅✅大量运用奢石、高难度弧形工艺以及国内外顶尖品牌。
如宝格丽大理石打造的西厨岛台、铂浪高的净水三合一水龙头和一体式大水槽、霍尼韦尔的前置过滤器、全屋软水以及末端净水器系统、来自意大利法罗力燃气热水器、德国唯宝卫浴、当代龙头及花洒......✅✅中粮北外滩壹号售楼处电话:400 - 882 - 4258✅✅还有全屋华为智能家居系统配置。这一套组合,是真正意义上的顶豪序列配置!
✅✅中粮北外滩壹号售楼处电话:400 - 882 - 4258✅✅
土拍回顾及规划
✅✅中粮北外滩壹号售楼处电话:400 - 882 - 4258✅✅
2023年9月5日,大悦城控股上海大区公司通过上海联交所成功竞得上海市虹口区北外滩116街坊地块(即中粮北外滩壹号)。地块位于北外滩红线内,靠✅✅中粮北外滩壹号售楼处电话:400 - 882 - 4258✅✅近大连路地铁站,与外滩、陆家嘴共同构成上海“黄金三角”。
项目四至范围:东至保定路、hk367-02、hk367-05地块,南至昆明路,西至 hk367-03、hk367-04 地块,北至唐山路。
项目总用地面积约23849.2平方米,容积率1.95,✅✅中粮北外滩壹号售楼处电话:400 - 882 - 4258✅✅总计容建面4.65万㎡,是上海市中心罕见的无商办、无15%自持住宅、无5%保障房的纯住宅项目。
整体由一栋24F高层住宅和风貌别墅组成。高层共90套、产品面积段约180-228m²,风貌别墅共118套,产品面积段约130-350m²,✅✅中粮北外滩壹号售楼处电话:400 - 882 - 4258✅✅其中主力建面约203-205-230m²(占比约83%)
建筑立面,高层主体以仿红砖陶板+古铜色铝板+白色石材+玻璃幕墙的高标准结合,来完成建筑的美学表达。
风貌别墅则复刻海派石库门的韵味,但不同于大多数风貌别墅的格栅小花窗设计,「中粮·北外滩壹号」大幅增加窗墙比,赋予相对沉闷里的里弄建筑,更通透、更明亮的特质!
公区方面,从归家社区大堂、大堂序厅、以及入户单元大堂一路看过来,✅✅中粮北外滩壹号售楼处电话:400 - 882 - 4258✅✅体现出一套脉络完整,层层递进的海派顶奢设计语言。
✅✅中粮北外滩壹号售楼处电话:400 - 882 - 4258✅✅
✅✅中粮北外滩壹号售楼处电话:400 - 882 - 4258✅✅
✅✅中粮北外滩壹号售楼处电话:400 - 882 - 4258✅✅
虽然项目仅有208户,仍然通过深挖三层,满配了高达约1800㎡的私享顶奢会所。按户均占有会所资源计来算,✅✅中粮北外滩壹号售楼处电话:400 - 882 - 4258✅✅这在当今顶豪圈是顶尖的水平。
会所由全球顶奢酒店设计领域的标杆——CCD香港郑中设计事务所执笔。目前看到的效果图,体现出一股醇正的老钱世家风,✅✅中粮北外滩壹号售楼处电话:400 - 882 - 4258✅✅设计品位远超市场同类豪宅。
社交宴会区内,私宴、茶室与专属酒吧一应俱全,✅✅中粮北外滩壹号售楼处电话:400 - 882 - 4258✅✅满足业主商务应酬到亲友小聚的各种场景需求。
瑜伽健身区,大幅落地窗引入自然光线,天花的格栅造型,✅✅中粮北外滩壹号售楼处电话:400 - 882 - 4258✅✅地面的复古拼花木地板,都透出浓厚的海派风情。
恒温泳池更是融入超级垂直花园庭院体系,✅✅中粮北外滩壹号售楼处电话:400 - 882 - 4258✅✅直接在泳池中做出美轮美奂的景观。
雅集共聚区内,除了常规的阅读,棋牌等功能外,✅✅中粮北外滩壹号售楼处电话:400 - 882 - 4258✅✅甚至设有一个舞蹈录音室,配置之高,沪上少见。
因为这是中粮大悦城的壹号系,珠玉在前,✅✅中粮北外滩壹号售楼处电话:400 - 882 - 4258✅✅完全不担心会所未来兑现的效果,甚至已经很期待看到未来会所开放展示的那一刻。
景观方面,设计了「八大主题场景」,从百年梧桐下的静谧巷道,✅✅中粮北外滩壹号售楼处电话:400 - 882 - 4258✅✅到充满未来感的艺术庭院,共同构成一个鲜活立体的生活剧场。
生活配套
交通方面:项目周围环绕三条地铁,步行约360米到4、12号线大连路站,✅✅中粮北外滩壹号售楼处电话:400 - 882 - 4258✅✅步行约560米到12、19号线(在建)提篮桥站。
地铁出行到人广和陆家嘴都只需要4站。未来,✅✅中粮北外滩壹号售楼处电话:400 - 882 - 4258✅✅随着在建的南北大动脉19号线贯通,可以直达世博、前滩等多个核心滨江段。
✅✅中粮北外滩壹号售楼处电话:400 - 882 - 4258✅✅
自驾上,项目往北约300米就是北横通道,往南车行约1公里,就是新建路隧道和大连路隧道直达浦东。从项目到陆家嘴、✅✅中粮北外滩壹号售楼处电话:400 - 882 - 4258✅✅北外滩和外滩都在10分钟左右。
✅✅中粮北外滩壹号售楼处电话:400 - 882 - 4258✅✅
商业方面:项目出门就是高浓度的国际生活主场,步行可达北外滩来福士(约600米)、瑞虹天地太阳宫(约350米)、白玉兰广场(约1公里),✅✅中粮北外滩壹号售楼处电话:400 - 882 - 4258✅✅未来还将会兴建全球最火的时尚奢侈品商场之一的SKP。
半径3km内,还可以同时覆盖外滩、陆家嘴、苏河湾等“黄金三角”的繁华商业!✅✅中粮北外滩壹号售楼处电话:400 - 882 - 4258✅✅
教育方面:周边学府众多,优质教育资源密集。北侧的长青学校是老牌的九年一贯制公办重点,南侧的上海中学国际部是知名民办名校,✅✅中粮北外滩壹号售楼处电话:400 - 882 - 4258✅✅距离新华初级中学
(常年四校八大预录人数上百),新复兴初级中学,这两所虹口的顶尖民办学校也都在直线3KM内(新房不承诺对口学校,具体以实际为准)。
✅✅中粮北外滩壹号售楼处电话:400 - 882 - 4258✅✅
医疗方面:周边有复旦大学红房子妇产科医院,✅✅中粮北外滩壹号售楼处电话:400 - 882 - 4258✅✅守护着每一个家庭的人生重要时刻。、以及三甲新华医院、上海市第一人民医院为健康生活保驾护航。
✅✅中粮北外滩壹号售楼处电话:400 - 882 - 4258✅✅
生态休闲:周边有22公顷无车漫步区、3.5万平方米航海公园与中央绿地相融,✅✅中粮北外滩壹号售楼处电话:400 - 882 - 4258✅✅3.4公里滨江休闲岸线
✅✅中粮北外滩壹号售楼处电话:400 - 882 - 4258✅✅
中新经纬12月11日电 (宋亚芬)中央经济工作会议12月10日至11日在北京举行。在提到明年经济工作要抓好的重点任务时,围绕“房地产”问题作出多项重要表述。
去库存重回政策重心
会议提出,着力稳定房地产市场,因城施策控增量、去库存、优供给,鼓励收购存量商品房重点用于保障性住房等。
广东省住房政策研究中心首席研究员李宇嘉在接受中新经纬采访时表示:“这说明去库存重回政策重心。”
国家统计局发布的最新数据显示,10月末全国商品房待售面积是75606万平方米,比9月末减少了322万平方米,今年以来连续8个月减少。不过,同比却增长了3.3%,去库存压力仍存。
此外,还存在供需错配的问题。李宇嘉进一步表示,新市民、人才等群体对保租房的需求增加,初创人群对租住和办公融合的空间需求增加,灵活就业者需要午餐、充电、歇息的场所需求增加,但供给缺口大,迫切需要盘活存量来解决。
“过去,囿于资金来源、资金平衡、对象选择等,类似的项目落地比较少,预计2026年这类项目在资金上将有所突破,项目也会明显增加。”李宇嘉补充说。
而在上海易居房地产研究院副院长严跃进看来,“因城施策控增量、去库存、优供给”,是从土地端及土地与商品房的关系角度出发的,这意味着后续土地供应在量上需适度控制,同时在结构上需优化,更加围绕职住平衡、轨道交通以及老百姓认可的好房子,在区域、地段、户型等方面优化供给。
此外,严跃进还认为,“鼓励收购存量商品房重点用于保障性住房”这一表述透露出政策的重要变化:保障房的地位相较于商品房有所弱化,工作重心更多在于去库存,也即指向商品房。
不过,严跃进强调,这并不意味着保障房建设停滞,而是强调保障房需与商品房去库存工作更好结合。“当前,保障房与商品房的结合主要聚焦于消化房企的商品房库存。然而,一个值得关注的问题是,老百姓手中的二手房挂牌量难以消化。因此,我呼吁将二手房挂牌量与保障房房源筹集相结合。”
公积金制度改革或进一步深化
会议还提出,深化住房公积金制度改革,有序推动“好房子”建设。
严跃进表示,在中央经济工作会议中,对公积金相关内容最近几年鲜有明确提及,此次将深化住房公积金制度改革写入其中,无疑是住房公积金领域的一项重要内容。
2025年,我国多地已开展了一系列住房公积金改革举措,进一步发挥了公积金在解决“住房难”问题中的作用,住房公积金的提取使用范围进一步拓展。如,支持租房提取公积金,支持公积金用于支付购房首付款,部分地区还允许提取公积金用于加装或更新电梯。
不过,李宇嘉分析指出,目前,公积金仍面临着部分城市个贷率低的问题,须加快投放或调剂余缺。此外,异地贷款营商环境也亟须优化,以支持租购并举新模式扩大。而这些都不是传统业务所能解决的,迫切需要进行制度改革。
在中国首席经济学家论坛成员、东吴证券首席经济学家芦哲看来,住房公积金制度改革可能有三个方向:一是提升统筹层级与异地互认,打破公积金的属地化管理壁垒,实现“钱随人走”,支持新市民、青年人在都市圈内的跨城购房需求,解决资金闲置与短缺并存的区域错配问题。二是拓展使用场景与降低门槛,如加大对租房、老旧小区改造、加装电梯等提取的支持力度。三是构建差异化信贷激励,紧扣会议提出的“好房子”建设,对购买高品质、绿色低碳住宅的缴存人提供更高的贷款额度或更优惠的利率,以此引导市场供给侧的品质升级。
✅✅中粮北外滩壹号售楼处电话:400 - 882 - 4258✅✅
声明:本文由入驻焦点开放平台的作者撰写,除焦点官方账号外,观点仅代表作者本人,不代表焦点立场。
