上海虹口越秀外滩樾售楼处-越秀外滩樾(2025·越秀外滩樾最新)楼盘网站-房价-户型-图文介绍
扫描到手机,新闻随时看
扫一扫,用手机看文章
更加方便分享给朋友
4500万级虹口北外滩「越秀外滩樾」建面约238-338㎡海派风貌院墅丨纯别墅社区丨仅49席丨样板房开放中丨附线上预约通道!
☑️☑️越秀外滩越售楼处电话:400-1183-605☑️☑️
风貌之上世界堂前☑️☑️越秀外滩越售楼处电话:400-1183-605☑️☑️
展厅已开放,看房请提前预约☑️☑️越秀外滩越售楼处电话:400-1183-605☑️☑️
最新消息:虹口北外滩低密风貌别墅临港越秀北外滩项目定名「越秀·外滩樾」展厅开放!☑️☑️越秀外滩越售楼处电话:400-1183-605☑️☑️
「越秀·外滩樾」项目地块四至范围,东至:梧州路,隔壁是中皇广场;西至:hk270B-02,隔壁就是1933老场坊;南至:周家嘴路北至:柘皋路。☑️☑️越秀外滩越售楼处电话:400-1183-605☑️☑️
☑️☑️越秀外滩越售楼处电话:400-1183-605☑️☑️日前,上海市规划和自然资源局对上海漕越经济发展有限公司虹口区嘉兴街道hk270b-04地块历史风貌保护项目进行了设计方案公示,项目未来将呈现48套低密风貌里弄住宅,面积约238-338㎡。☑️☑️越秀外滩越售楼处电话:400-1183-605☑️☑️

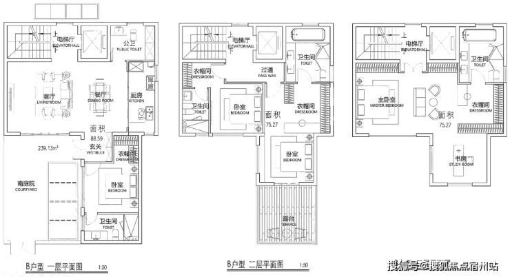
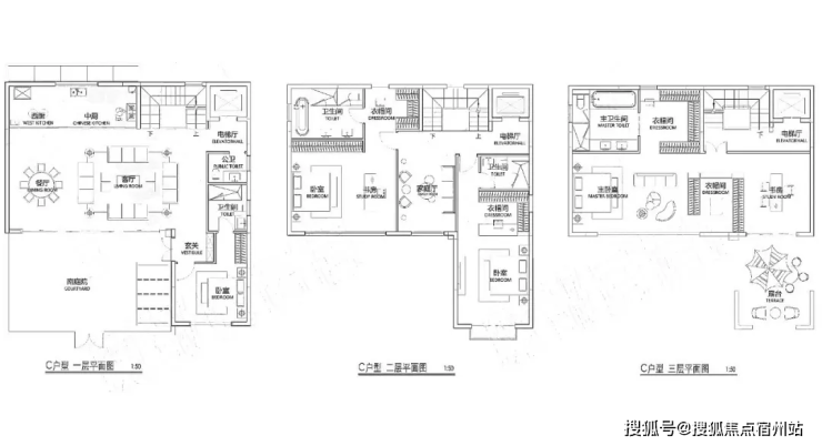
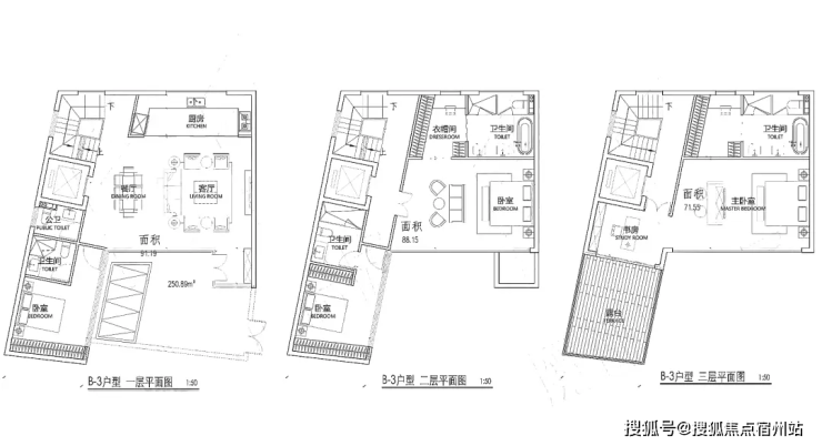
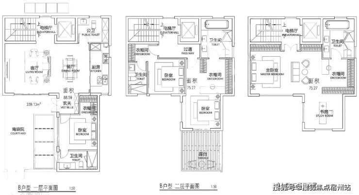
户型图如下:☑️☑️越秀外滩越售楼处电话:400-1183-605☑️☑️
(过程稿仅供参考,最终以实际为准)
236.25㎡A户型:☑️☑️越秀外滩越售楼处电话:400-1183-605☑️☑️

239.13㎡B户型:☑️☑️越秀外滩越售楼处电话:400-1183-605☑️☑️

250.89㎡B-3户型:☑️☑️越秀外滩越售楼处电话:400-1183-605☑️☑️

C户型:☑️☑️越秀外滩越售楼处电话:400-1183-605☑️☑️

291.42㎡D户型☑️☑️越秀外滩越售楼处电话:400-1183-605☑️☑️

基础信息☑️☑️越秀外滩越售楼处电话:400-1183-605☑️☑️
【项目名称】越秀·外滩樾
【开发商】上海漕越经济发展有限公司
【项目位置】上海市·虹口区·梧州路235弄
【项目类别】70年产权住宅
【项目类型】风貌别墅
【可售户数】48套(风貌)
【容积率】约1.3☑️☑️越秀外滩越售楼处电话:400-1183-605☑️☑️
☑️☑️越秀外滩越售楼处电话:400-1183-605☑️☑️

☑️☑️越秀外滩越售楼处电话:400-1183-605☑️☑️
☑️☑️越秀外滩越售楼处电话:400-1183-605☑️☑️
☑️☑️越秀外滩越售楼处电话:400-1183-605☑️☑️
☑️☑️越秀外滩越售楼处电话:400-1183-605☑️☑️

项目实景图☑️☑️越秀外滩越售楼处电话:400-1183-605☑️☑️
【一座码头启航外滩百年世界史】
项目所在地北外滩,是百年前上海的“下海”地。作为上海开埠后第一座码头的诞生地,北外滩率先“开眼看世界”,海纳万国文化风潮,众多此后影响中国的创举在此诞生,是上海最早的“十里洋场”☑️☑️越秀外滩越售楼处电话:400-1183-605☑️☑️
【一江一河再立世界上海新传】☑️☑️越秀外滩越售楼处电话:400-1183-605☑️☑️
傲立“一江一河”交汇处(直线距离约1.1KM),未来将打造成为彰显上海城市核心竞争力的黄金水岸和具有国际影响力的世界级城市会客厅,出入之间,相逢城市高阶未来☑️☑️越秀外滩越售楼处电话:400-1183-605☑️☑️
【北外滩面向世界的上海新封面】☑️☑️越秀外滩越售楼处电话:400-1183-605☑️☑️
北外滩,与外滩、陆家嘴并称为上海的“黄金三角”。将以2座陆家嘴的商务体量规划,新天地2.0生活圈打造,成为上海跃升世界舞台的“中心发力”新引擎
【中央商务区未来上海腾飞引擎】☑️☑️越秀外滩越售楼处电话:400-1183-605☑️☑️
区域能级:总开发面积约840万方,40栋甲级写字楼城市地标:480米浦西第一高楼,19栋摩天大楼集群金融产业:2100+家金融企业赋能,资产管理规模超8万亿元,位居全市第一航运格局:4500+家航运企业集聚(上港集团、中远海运等),打造国际航运中心全球贸易:2500+家贸易企业入驻(摩亚方舟、银联商务等)新兴产业:129家新增高新技术企业,113家市区科技小巨人企业(数据来源:上海市规划局《北外滩地区控制性详细规划》)☑️☑️越秀外滩越售楼处电话:400-1183-605☑️☑️
☑️☑️越秀外滩越售楼处电话:400-1183-605☑️☑️
【立体交通|无界畅达世界擎动城市脉搏】
全城畅达:☑️☑️越秀外滩越售楼处电话:400-1183-605☑️☑️
约360米新建路隧道(直线距离),快速直达陆家嘴CBD;
约670米外滩隧道(直线距离),直达外滩金融商业街以及老码头;
约150米北横通道(直线距离)贯通全城,快速通达虹桥机场/虹桥火车站;
约2.4公里大连路隧道(直线距离),直达浦东东方路、世纪大道、八百伴商业圈
☑️☑️越秀外滩越售楼处电话:400-1183-605☑️☑️四轨交汇:
轨交4/10号线海伦路站约850m(直线距离),3站南京东路,6站新天地。☑️☑️越秀外滩越售楼处电话:400-1183-605☑️☑️
【核心商圈|高阶商业配套国际摩登领潮】☑️☑️越秀外滩越售楼处电话:400-1183-605☑️☑️
商业配套方面项目约2公里内,多元繁华构筑封面商业圈
北外滩商圈直线距离约500米;☑️☑️越秀外滩越售楼处电话:400-1183-605☑️☑️
外滩商圈直线距离约1000米;
陆家嘴商圈直线距离约1500米;
瑞虹商圈直线距离约900米;☑️☑️越秀外滩越售楼处电话:400-1183-605☑️☑️
(*商圈距离示意图,仅供参考。本区位图仅用于本小区地理方位示意,非实际地图,相关信息并非按比例缩放。)
【高端医疗|优质三甲医院护航健康生活】☑️☑️越秀外滩越售楼处电话:400-1183-605☑️☑️
三公里内四所三甲医院,全生命周期护航
新华医院(儿科专长);
复旦大学附属妇产医院;
上海市第一人民医院;
☑️☑️越秀外滩越售楼处电话:400-1183-605☑️☑️上海东方医院(血管外科专长);
【学府荟萃|全龄教育培优一脉书香传承】
幼儿园:约1公里内6所幼儿园(直线距离),涵盖东余杭路幼儿园等3所示范级学校;☑️☑️越秀外滩越售楼处电话:400-1183-605☑️☑️
小学:约1.5公里内5所小学(直线距离),涵盖区重点四川北路第一小学;
中学:约1.6公里内6所中学(直线距离),1所市重点、2所区重点。一路之隔上海虹口二中心小学(在建中),约2.3公里市重点上海外国语大学附属外国语学校(直线距离)*施教区及就学政策以教育部门规划为准☑️☑️越秀外滩越售楼处电话:400-1183-605☑️☑️
【滨江低密|丰盈自然绿地城市诗意回归】☑️☑️越秀外滩越售楼处电话:400-1183-605☑️☑️
2.5公里北外滩滨江绿地(约800m直达),四川北路公园、和平公园、鲁迅公园3大公园环伺,于滨江和城市低密绿芯之间,肇启当代诗意生活传序。
☑️☑️越秀外滩越售楼处电话:400-1183-605☑️☑️
☑️☑️越秀外滩越售楼处电话:400-1183-605☑️☑️
程绍正韬,建筑室内设计之东方主义集大成者,致力于东方文化的坚守与创新。他打破惯常的职业思维,将生活方式化作一种哲学态度,融入空间设计,让设计不止于作品。☑️☑️越秀外滩越售楼处电话:400-1183-605☑️☑️
李玮珉,撑起中国豪宅设计半壁江山,擅长为城市塑造文化符号建筑作品。他的作品更多用极简的方式来表明态度,崇尚简而高效的现代生活方式。庄重的建筑语汇,适时注入艺术、自然与美学,让空间充满想象力。☑️☑️越秀外滩越售楼处电话:400-1183-605☑️☑️
复刻百年前的高端工艺元素,让海派造诣世纪传承。清砖立柱、古典门头、封闭门窗、岩石山墙等经典海派建筑风貌转译,于历史和未来之间收藏百年上海。☑️☑️越秀外滩越售楼处电话:400-1183-605☑️☑️
☑️☑️越秀外滩越售楼处电话:400-1183-605☑️☑️
☑️☑️越秀外滩越售楼处电话:400-1183-605☑️☑️巷弄新生:内环内难得双拼别墅,超越风貌建筑的尺度感;
建筑新生:创新风貌规制,致微而筑的建筑腔调赏新;
美学新生:转译远东第一豪宅立面美学,收藏名门望族生活;
☑️☑️越秀外滩越售楼处电话:400-1183-605☑️☑️材质新生:豪宅同款奢砖、大面积奢石运用,定制家族排场;
【41载越秀|万亿级开发商与上海共卓越】☑️☑️越秀外滩越售楼处电话:400-1183-605☑️☑️
国内资产规模最大的地方驻港企业之一越秀地产,中国第一代商品房缔造者。41年越秀,30城300+项目,服务超100万业主;2023年销售额行业排名12,2023年TOP20销售业绩增长率最高房企。2024中国房企综合实力TOP9。入席北外滩世界会客厅,与上海共生长。(数据来源:克而瑞地产研究发布榜单《2023年1-12月.中国房地产企业销售榜top200》)☑️☑️越秀外滩越售楼处电话:400-1183-605☑️☑️
由越秀地产+临港集团联合打造☑️☑️越秀外滩越售楼处电话:400-1183-605☑️☑️
风貌之上世界堂前☑️☑️越秀外滩越售楼处电话:400-1183-605☑️☑️
☑️☑️越秀外滩越售楼处电话:400-1183-605☑️☑️
为更好满足居民刚性住房需求和多样化改善性住房需求,促进房地产市场平稳健康发展,8月25日,上海市住房城乡建设管理委、市房屋管理局、市财政局、市税务局、人民银行上海市分行、市公积金管理中心等六部门联合印发《关于优化调整本市房地产政策措施的通知》(以下简称《通知》),包括调减住房限购、优化住房公积金、优化个人住房信贷以及完善个人住房房产税等政策。《通知》自2025年8月26日起施行。
一、调减住房限购政策
为更好满足居民改善性需求,促进宜居安居、职住平衡,《通知》明确进一步调减住房限购政策。一是符合条件居民家庭在外环外购房不限套数。对符合本市住房购买条件的居民家庭,包括本市户籍居民家庭、在本市连续缴纳社会保险或个人所得税满1年及以上的非本市户籍居民家庭,在外环外购买住房不限套数,包括新建商品住房和二手住房。二是成年单身人士按照居民家庭执行住房限购政策。
按照上述规定,沪籍居民家庭和沪籍成年单身人士,在外环外购买住房不限套数;在外环内限购2套住房。非沪籍居民家庭和非沪籍成年单身人士,自购房之日前在本市连续缴纳社会保险或个人所得税满1年及以上的,在外环外购买住房不限套数;自购房之日前在本市连续缴纳社会保险或个人所得税满3年及以上的,在外环内限购1套住房。
关于住房限购政策相关业务,可拨打房地产交易行业服务热线“962269”具体咨询。
二、优化住房公积金政策
为加大公积金支持住房消费力度,《通知》规定优化住房公积金政策。一是提高个人住房公积金贷款额度。对缴存人购买二星级及以上新建绿色建筑住房的,住房公积金(含补充公积金)最高贷款额度上浮15%。首套最高贷款额度从160万元提高至184万元,多子女家庭首套上浮比例可叠加计算,从192万元提高至216万元;二套最高贷款额度从130万元提高至149.5万元。二是支持提取住房公积金支付购房首付款。对缴存人购买我市新建预售商品住房的,可以按规定申请提取本人及配偶的住房公积金支付购房首付款。三是支持住房公积金“又提又贷”。对缴存人提取住房公积金支付购房首付款的,不影响其住房公积金贷款额度计算。
关于住房公积金贷款和提取业务的具体办理方式及材料,可查询上海住房公积金官网或拨打住房公积金热线“12329”具体咨询。
三、优化调整商业性个人住房贷款利率定价机制
为减轻居民购房利息负担,《通知》明确优化个人住房信贷政策。银行业金融机构根据上海市市场利率定价自律机制要求和本机构经营状况、客户风险状况等因素,在利率定价机制安排方面不再区分首套住房和二套住房,合理确定每笔商业性个人住房贷款的具体利率水平。
关于住房贷款相关业务,可向经办银行具体咨询。
四、完善个人住房房产税政策
为衔接优化住房限购政策,《通知》规定对符合条件的非本市户籍居民家庭购买的第一套住房暂免征收房产税;购买的第二套及以上住房在合并计算家庭全部住房面积后,给予人均60平方米的免税面积扣除。由于个人住房房产税按年征收,因此2025年1月1日起符合条件的购房者可享受本条政策。
声明:本文由入驻焦点开放平台的作者撰写,除焦点官方账号外,观点仅代表作者本人,不代表焦点立场。
