前滩滨江道官方售楼处电话(前滩滨江道)官方网站-前滩滨江道营销中心欢迎您-楼盘详情•最新价格-户型图-容积率-百度AI热搜2026.3.4前滩滨江道售楼处

搜狐焦点宿州站 2026-03-04 16:08:54
用手机看
扫描到手机,新闻随时看

扫一扫,用手机看文章
更加方便分享给朋友

前滩滨江道售楼处电话:400-8377-020(预约热线)

最新消息

新滨江封面 新海派国际生活湾区

「前滩滨江道」

推出建面约124㎡四叶草4房神户型

还有为江景/园景而生的建面约153㎡4房

及核心滨江绝无仅有的瞰江99㎡3房

首开诚意定价+诚意楼栋,不容错过

均价约11.65万/㎡

【前滩滨江道】

前滩滨江道售楼处电话:400-8377-020(预约热线)

前滩滨江道营销中心

服务热线:400-8377-020(已认证)

预约看房请提前联系案场销售

☎️ 售楼处专线:400-8377-020 ▶ 实景样板间,预约即可品鉴

项目官方认证联系方式(2026年最新)

本期推售信息:

【22幢38号】:建筑面积89平左右,总高6层的洋房,一梯两户

【15幢32、33号】:建筑面积99-100平左右,总高13层的小高层,一梯两户

【12幢23号】:建筑面积124平左右,总高7层的洋房,一梯两户,是整个小区得房率最高的一栋

【21幢41号】:建筑面积139-153平左右,总高25层的高层,两梯两户及部份两梯一户

21幢的12层视野:

【前滩滨江道】

前滩滨江道售楼处电话:400-8377-020(预约热线)

前滩滨江道营销中心

服务热线:400-8377-020(已认证)

预约看房请提前联系案场销售

☎️ 售楼处专线:400-8377-020 ▶ 实景样板间,预约即可品鉴

项目官方认证联系方式(2026年最新)

前滩滨江道的核心价值,其机遇性与稀缺性堪称独一份:

机遇1: 绝版滨江全面积段 ——项目户型丰富,尤其99㎡3房瞰江低密户型,以千万级门槛入住市区核心滨江,这样的机会已近乎绝迹;

机遇2: 高性价比4房 ——滨江4房普遍190㎡起步,而项目129㎡4房不仅总价可控,更以四叶草设计实现空间利用率与居住舒适度的平衡;

机遇3: 带洋房的低密社区 ——这在市区核心滨江几乎不会再有,为居住保留了难得的低密质感;

机遇4: 湾区生活体验 ——市区核心滨江罕见的湾区,通过引水入湾打造宜居社区、办公集群、公共聚场三层空间,家门口就是国际化滨水综合体;

机遇5: 成片开发 收官之作 ——前滩中央商务区的成功早已印证陆家嘴集团的成片开发实力,而前滩滨江道作为陆家嘴集团前滩滨江国际住区的收官之作,同样以“成片开发”呈现,品质有保障。

样板实拍视频:

【前滩滨江道】

前滩滨江道售楼处电话:400-8377-020(预约热线)

前滩滨江道营销中心

服务热线:400-8377-020(已认证)

预约看房请提前联系案场销售

☎️ 售楼处专线:400-8377-020 ▶ 实景样板间,预约即可品鉴

项目官方认证联系方式(2026年最新)

一房一价 👇

«上下滑动查看»

【前滩滨江道】

前滩滨江道售楼处电话:400-8377-020(预约热线)

前滩滨江道营销中心

服务热线:400-8377-020(已认证)

预约看房请提前联系案场销售

☎️ 售楼处专线:400-8377-020 ▶ 实景样板间,预约即可品鉴

项目官方认证联系方式(2026年最新)

项目信息

当城市肌理邂逅滨江潮涌,当海派经典对话自然肌理,前滩滨江道实景示范区于12月12日揭启了一场关于未来滨水人居的理想叙事。作为

2025年末上海楼市人气红盘,前滩滨江超级完整体的压轴住宅,前滩滨江道自面世以来,便备受关注。实景示范区正式开放后,热度持续攀升,人潮不断。如今项目已过会,入市进入倒计时,这场迭代上海滨江居住标准的人居范本,正待全城共鉴。

更令人惊喜的是,本次过会价格仅为 116541 元 /㎡,放眼整个核心滨江段都是诚意满满。前滩核心地段的压轴席位,叠加如此超预期的价格优势,无疑是抢占滨江高端生活的最佳时机,滨江豪宅的入场券。席位有限,把握机遇,方能入主前滩滨江最后的珍藏!

前滩滨江道的现象级火爆,绝非偶然。作为前滩滨江超级完整体的压轴住宅作品,项目以“视野、资源、体验”三重维度的绝对优势,成为上海滨江人居的全新焦点。

【前滩滨江道】

前滩滨江道售楼处电话:400-8377-020(预约热线)

前滩滨江道营销中心

服务热线:400-8377-020(已认证)

预约看房请提前联系案场销售

☎️ 售楼处专线:400-8377-020 ▶ 实景样板间,预约即可品鉴

项目官方认证联系方式(2026年最新)

体验更优 从“看江”到“住江”的迭代

居住体验方面,陆家嘴集团开创性的 “引水入湾” 手法,直接改写了人与江的相处距离。不同于过去 “远观江景” 的被动欣赏,前滩滨江道将黄浦江水引入湾区内部,让水系穿梭于社区、商业与办公场景之间。清晨可沿水系步道晨跑,午后能在临水露台喝咖啡,傍晚可伴江风逛滨水商街,真正让居住者从 “喜欢江边” 的浅层次向往,进阶为 “住在江边” 的沉浸式体验。

【前滩滨江道】

前滩滨江道售楼处电话:400-8377-020(预约热线)

前滩滨江道营销中心

服务热线:400-8377-020(已认证)

预约看房请提前联系案场销售

☎️ 售楼处专线:400-8377-020 ▶ 实景样板间,预约即可品鉴

项目官方认证联系方式(2026年最新)

清晨可沿水系步道晨跑,午后能在临水露台喝咖啡,傍晚可伴江风逛滨水商街,真正让居住者从“喜欢江边”的浅层次向往,进阶为“住在江边”的沉浸式体验。

24小摩登烟火 与美好全时共生

项目商业业态紧扣日咖夜酒、烟火食集、滨水餐饮三大核心业态,串联起全时段生活图景:清晨,街区面包香混着咖啡香唤醒活力;午间,滨水餐饮的家常滋味填补工作间隙;傍晚,临水餐厅的落日余晖包裹家庭团聚的温馨;深夜,滨水酒吧街的灯火与江风交织,让日常社交圈在此自然延伸。

【前滩滨江道】

前滩滨江道售楼处电话:400-8377-020(预约热线)

前滩滨江道营销中心

服务热线:400-8377-020(已认证)

预约看房请提前联系案场销售

☎️ 售楼处专线:400-8377-020 ▶ 实景样板间,预约即可品鉴

项目官方认证联系方式(2026年最新)

当图纸上的线条勾勒照进现实,一场新海派精致格调与产品力深度落地的实景叙事,徐徐展开。

五重场景,演绎水木交融新海派

在场景打造上,精选用材,示范区门口栽植的两棵珍贵红花檵木,其独特的桩型需百年时间自然形成。随后,五重景观场景层层递进,将“水木交融”的新海派理念具象化呈现。

浮岛花园: 以华尔道夫同款幻影蓝天然石材铺就的水景,阳光下水石闪着蓝色品光,搭配普拉达绿石材立面与叠水工艺,尽显滨水灵动气质。

芳香疗愈花园: 棋盘格布局的休憩空间以特选香樟为核心,搭配乌桕与多样芳香植物,臻选从湘西深山移植的树形丰满的独特香橼,装点闲适日常。

水畔之汀: 延续海派弧形收边设计与叠水效果,幻影蓝流水墙、普拉达绿景墙与奢金影灯撞色融合,中央百年桩景红果冬青与进口红枫搭配,成为点晴之笔。

原林草坪剧场: 将是未来业主互动核心区,两侧榉树暗合“举业高升”寓意,中心移植红梅,实现冬有常青、寒有梅开的冬日别致景观。

【前滩滨江道】

前滩滨江道售楼处电话:400-8377-020(预约热线)

前滩滨江道营销中心

服务热线:400-8377-020(已认证)

预约看房请提前联系案场销售

☎️ 售楼处专线:400-8377-020 ▶ 实景样板间,预约即可品鉴

项目官方认证联系方式(2026年最新)

云森自然课堂: 步道两边种植的樱花、金桂、红枫构筑“三季有花四季有景”别样体验,精选进口的羽毛枫,树形优美,珍贵性不言而喻。

建筑立面 勾勒现代海派的质感轮廓

项目建筑以现代海派为底色,萃取三段式、塔冠等经典元素,凝练摩登轮廓。标志性圆弧形阳台消解建筑硬朗感,与江畔天际线呼应。石材+金属铝板立面经多轮打磨,兼具厚重与灵动。空内随处可见的圆弧设计,巧妙消解了空间棱角,与建筑立面的线条美学形成呼应。在首推楼栋中,约99㎡3房及约153㎡4房稀缺性格外突出。

【前滩滨江道】

前滩滨江道售楼处电话:400-8377-020(预约热线)

前滩滨江道营销中心

服务热线:400-8377-020(已认证)

预约看房请提前联系案场销售

☎️ 售楼处专线:400-8377-020 ▶ 实景样板间,预约即可品鉴

项目官方认证联系方式(2026年最新)

其中建面约99㎡3房在15#,双核心优势加持:

一方面位于中间地块,畅达前滩湾两端,下楼即享“引水入湾”的亲江生活;

另一方面 占据项目直面黄浦江的首排位置,高区推窗俯瞰江景

放眼黄浦江核心段,寸土寸金,可售新盘本就稀缺,如今滨江新盘起步面积普遍达120㎡,

【前滩滨江道】

前滩滨江道售楼处电话:400-8377-020(预约热线)

前滩滨江道营销中心

服务热线:400-8377-020(已认证)

预约看房请提前联系案场销售

☎️ 售楼处专线:400-8377-020 ▶ 实景样板间,预约即可品鉴

项目官方认证联系方式(2026年最新)

这99㎡3房堪称卖一套少一套的珍品,千万级就能入手,无需拉太多杠杆即可上车,绝版属性拉满。

若错过此次,起步面积抬升20㎡,总价门槛至少增加200-300万。

关键, 不同于大部分滨江新盘将江景资源让渡给大户型,该99㎡户型高区瞰江,是市面极致且绝版的千万级入门瞰江户型。

值得一提,同价位选择不少,但惟有前滩滨江道,能让你获得更大概率实现板块层级跃迁!

约99㎡户型设计:经典飞机户型格局!独立观景阳台!

三开间朝南飞机户型 ,既保证各卧室私密性,又实现优秀的南北通透效果, 以舒适门槛即可抢占滨江价值高地,绝对是手慢无的热门之选。

我很喜欢它的 独立景观阳台 ,区别于当下多数户型将阳台包进室内的设计,这里既可作为午后端杯咖啡凭栏欣赏江景、俯瞰海派街区的惬意角落,也能兼顾晾晒功能,契合国人的居住习惯。

【前滩滨江道】

前滩滨江道售楼处电话:400-8377-020(预约热线)

前滩滨江道营销中心

服务热线:400-8377-020(已认证)

预约看房请提前联系案场销售

☎️ 售楼处专线:400-8377-020 ▶ 实景样板间,预约即可品鉴

项目官方认证联系方式(2026年最新)

约153㎡,“前滩之眼”极致视野罕见舒适瞰江4房

在以低密度开发为主的前滩滨江国际住区中,这栋高层住宅堪称 稀缺品江、园、城、湾四重景观尽揽眼底。

楼栋主力户型为建面约153㎡4房,坐拥 全维观景视野 : 北望陆家嘴三件套与徐汇滨江天际线;西揽黄浦江景与“引水入湾”湾景;南赏S湾江景;东瞰低密海派街区与公园绿意。

为更大化观景优势,楼栋采用现代简约设计风格,搭配超高窗墙比,让每一寸视野都得以充分延展;加之

【前滩滨江道】

前滩滨江道售楼处电话:400-8377-020(预约热线)

前滩滨江道营销中心

服务热线:400-8377-020(已认证)

预约看房请提前联系案场销售

☎️ 售楼处专线:400-8377-020 ▶ 实景样板间,预约即可品鉴

项目官方认证联系方式(2026年最新)

纯正南北朝向 ,为南向房间赋予充足采光。

放眼前滩楼市,4房户型本身就是稀缺代名词——区域房源以1-3房为主,4房因供给稀缺,向来具备更强的 溢价能力

晶耀名邸4房挂牌价 14.5-17万/㎡ , 三湘印象名邸凭借江景加持,挂牌价 近20万/㎡

而本次153㎡4房不仅坐拥四重景观,更兼具4房功能性,稀缺价值在整个前滩无可替代。

更关键, 它平衡了“舒适体验”与“总价可控” 。 当前滨江4房,普遍以190㎡以上大户型为主, 总价门槛2600-4000万

而本项目153㎡4房中高区总价约1700-1800万,你无需拉太高杠杆,可以

友好门槛 锁定滨江4房。

值得一提,本次推出的153㎡房源为东边套,推窗赏公园景,也正因此,其定价相比直接瞰江房源更具竞争力,为追求高性价比的购房者提供了绝佳入场机会。

另外,前滩新房开发已近尾声,这类“舒适瞰江控总价4房”只有前滩滨江道有, 且只有这40多套 ,入手后在整个前滩几乎无竞品,未来将掌握更强的定价权。

事实上,放眼核心滨江段 ,能同时满足“控总价+直线距离黄浦江约500米+舒适瞰江4房”,其实只有前滩滨江道, 年末高端改善,盯牢它就行了,无需看其它。

约153㎡户型设计:极致观景,西瞰江景,东瞰园景!4房功能齐备!

客餐厅大横厅设计,外接大阳台, 整个社交空间全部面向景观,东边套赏公园景,西边套瞰江。

采光与收纳同样出色,三开间朝南延伸出三房朝南设计;更标配同级别少见的独立储藏间,换季物品、生活杂物皆能妥善收纳。

难得的是,在滨江 约150㎡段大部分是3房的情况下,项目做了4房, 兼顾功能性与成长性 ,二胎家庭、三代同堂一步到位,将来不用换房,换房成本很高。

【前滩滨江道】

前滩滨江道售楼处电话:400-8377-020(预约热线)

前滩滨江道营销中心

服务热线:400-8377-020(已认证)

预约看房请提前联系案场销售

☎️ 售楼处专线:400-8377-020 ▶ 实景样板间,预约即可品鉴

项目官方认证联系方式(2026年最新)

建面约129㎡4房:四叶草布局,核心滨江完美4房

1、四叶草布局:私密感满满

市面多数4房房间扎堆,次卫声响易干扰相邻空间,私密性欠佳。而该户型以经典 四叶草 布局,将四房分置四角,形成独立居住单元,互不干扰。

尤其适合多代同堂,长辈作息与年轻人互不影响,让每位家人都能自在休憩。

【前滩滨江道】

前滩滨江道售楼处电话:400-8377-020(预约热线)

前滩滨江道营销中心

服务热线:400-8377-020(已认证)

预约看房请提前联系案场销售

☎️ 售楼处专线:400-8377-020 ▶ 实景样板间,预约即可品鉴

项目官方认证联系方式(2026年最新)

【前滩滨江道】

前滩滨江道售楼处电话:400-8377-020(预约热线)

前滩滨江道营销中心

服务热线:400-8377-020(已认证)

预约看房请提前联系案场销售

☎️ 售楼处专线:400-8377-020 ▶ 实景样板间,预约即可品鉴

项目官方认证联系方式(2026年最新)

2、无连廊飞机户型:真南北通透

项目全系无连廊, 既让建筑立面简洁大气,更避免了连廊遮挡北向采光、泄露隐私的问题,实现真正南北通透。

厨房、餐客厅、阳台形成直线通风廊道, 搭配三开间朝南格局,阳光满溢室内,彻底告别潮湿阴暗。餐厅空间宽敞,能放下6人桌,大家庭聚餐其乐融融。

【前滩滨江道】

前滩滨江道售楼处电话:400-8377-020(预约热线)

前滩滨江道营销中心

服务热线:400-8377-020(已认证)

预约看房请提前联系案场销售

☎️ 售楼处专线:400-8377-020 ▶ 实景样板间,预约即可品鉴

项目官方认证联系方式(2026年最新)

3、独立景观阳台:承载海派慢生活

阳台是居家刚需,但不少滨江户型为凑面积将其纳入室内,错失观景机会。

前滩滨江道则在客餐厅足够宽敞的前提下, 保留独立景观阳台 ,晾晒、养花、观景互不耽误,为前滩湾的海派慢生活提供专属空间。同时,

南向双卧的房门均靠近阳台设置 ,既保证了客餐厅区域无法直视卧室内景,强化私密感,又让卧室与阳台快速衔接。

4、南向“双主卧舒适度”:居住平权更贴心

户型在南向空间规划上尽显用心, 实现“双主卧级”舒适体验 ,让家庭成员享受居住平权。主卧采用套房设计,独立卫浴加持,私密与便捷兼具。

南向次卧空间充裕,灵活性高——可参照样板间打造超大衣帽间,满足收纳需求;即便作为卧室使用,仍能预留出宽敞衣帽间区域。

【前滩滨江道】

前滩滨江道售楼处电话:400-8377-020(预约热线)

前滩滨江道营销中心

服务热线:400-8377-020(已认证)

预约看房请提前联系案场销售

☎️ 售楼处专线:400-8377-020 ▶ 实景样板间,预约即可品鉴

项目官方认证联系方式(2026年最新)

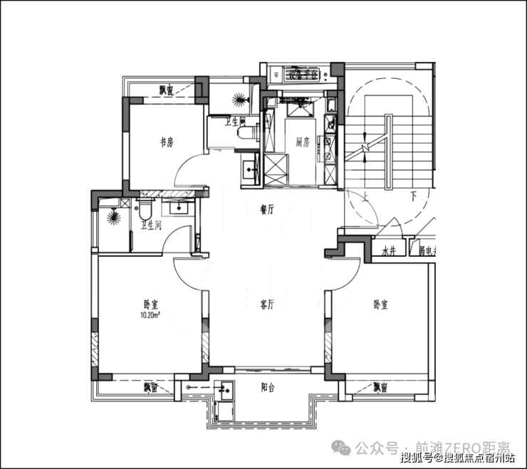
建面约139㎡3房:滨江百变户型

核心亮点在于极高的灵活性 , 餐厅北侧的房间可根据家庭需求改造,可以是工作室、书房、儿童游乐间等,满足不同生活场景的切换需求, 比固定4房更灵活

不需要4个固定房间的家庭,可重点关注该户型。

另外,装修细节也尽显开发商匠心。

管中窥豹,入 户处采用 天然贝母 拼接门牌,开门即见精致,归家仪式感瞬间拉满。

雪山蓝奢石及 岩板 被广泛应用于电视机背景墙与卫生间,自然纹理与细腻质感兼具;129㎡户型的餐边柜更是以 一整面木饰面交付 ,且特意做了圆弧处理,虽工艺费料,却让空间线条更柔和美观。

【前滩滨江道】

前滩滨江道售楼处电话:400-8377-020(预约热线)

前滩滨江道营销中心

服务热线:400-8377-020(已认证)

预约看房请提前联系案场销售

☎️ 售楼处专线:400-8377-020 ▶ 实景样板间,预约即可品鉴

项目官方认证联系方式(2026年最新)

其它户型: 89㎡则做到了将空间利用率与居

【前滩滨江道】

前滩滨江道售楼处电话:400-8377-020(预约热线)

前滩滨江道营销中心

服务热线:400-8377-020(已认证)

预约看房请提前联系案场销售

☎️ 售楼处专线:400-8377-020 ▶ 实景样板间,预约即可品鉴

项目官方认证联系方式(2026年最新)

住舒适度完美融合,入户处精心设置功能玄关,通过科学的收纳系统,实现了归家动线的整洁有序。

客厅与餐厅采用南北贯通的设计,不仅让室内视野更加开阔,更形成了良好的通风效果。

三房采用独立分布的布局,搭配三段式分离的两个明卫设计,充分保障了每位家庭成员的生活隐私与居住静逸。

全屋标配的多功能飘窗,有效延伸了室内的视觉景深,为空间增添了更多灵动与实用的可能。

【前滩滨江道】

前滩滨江道售楼处电话:400-8377-020(预约热线)

前滩滨江道营销中心

服务热线:400-8377-020(已认证)

预约看房请提前联系案场销售

☎️ 售楼处专线:400-8377-020 ▶ 实景样板间,预约即可品鉴

项目官方认证联系方式(2026年最新)

【前滩滨江道】

前滩滨江道售楼处电话:400-8377-020(预约热线)

前滩滨江道营销中心

服务热线:400-8377-020(已认证)

预约看房请提前联系案场销售

☎️ 售楼处专线:400-8377-020 ▶ 实景样板间,预约即可品鉴

项目官方认证联系方式(2026年最新)

板块信息

黄浦江岸 每一次时代进发的原点

100多年前,上海的繁荣开埠于外滩;35年前,陆家嘴CBD拔地而起,浦东滨江风起潮动;而今,上海迈向2035卓越城市,率先在滨江吹响号角,将黄浦江沿岸地区打造成为多元融合的城市创新功能引领区、人文内涵丰富的浦江空间展示区、人与自然和谐共生的世界级滨水示范区。

【前滩滨江道】

前滩滨江道售楼处电话:400-8377-020(预约热线)

前滩滨江道营销中心

服务热线:400-8377-020(已认证)

预约看房请提前联系案场销售

☎️ 售楼处专线:400-8377-020 ▶ 实景样板间,预约即可品鉴

项目官方认证联系方式(2026年最新)

艺文智岸 一江一河的卓越之眼

“一江一河”规划成为2035上海城市发展的最高纲领;其中,前滩滨江携手徐汇滨江定位“艺文智岸”,以“时尚活力·卓越水岸”强化沿岸地区文体旅商与品牌塑造,并重点带动腹地城市更新与功能转型,进一步提升艺术范、潮流范、时尚范,成为上海最具特色的滨江生活新名片。

前滩滨江超级完整体

陆家嘴集团执笔下的前滩滨江以“超级完整体”城市理念,创造性地将“生态、产业、生活”三位一体的开发理念融入片区开发实践,让产业引擎、都会繁华与水岸浓荫相得益彰,实现了从"城市功能分区"到"城市功能融合"的质变。

【前滩滨江道】

前滩滨江道售楼处电话:400-8377-020(预约热线)

前滩滨江道营销中心

服务热线:400-8377-020(已认证)

预约看房请提前联系案场销售

☎️ 售楼处专线:400-8377-020 ▶ 实景样板间,预约即可品鉴

项目官方认证联系方式(2026年最新)

前滩滨江中央商务区

聚焦“总部商务"“文化传媒”与“体育休闲”三大核心功能形成了聚集城市地标、总部经济、体育传媒、商业中心等业态的功能型国际城市中心。

【前滩滨江道】

前滩滨江道售楼处电话:400-8377-020(预约热线)

前滩滨江道营销中心

服务热线:400-8377-020(已认证)

预约看房请提前联系案场销售

☎️ 售楼处专线:400-8377-020 ▶ 实景样板间,预约即可品鉴

项目官方认证联系方式(2026年最新)

前滩滨江国际住区

千亩城市森林环绕,“最生态、最海派、最未来的”21世纪海派生活实践区。

约240公顷上海城市规划中心城区最大的楔形绿地,约等于2-3倍世纪公园绿地面积;约62%绿化覆盖率、约170m²的领先人均绿地面积;“三水环抱、五园簇拥”稀缺生态格局;迷人海派街区、围合式低密组团形态等居住格局。

*数据来源于《黄浦江南经伸段三林滨江南片区Z000801单元》西区控制性详划

寰球资本亲睐

60家跨国公司地区总部;

23家国际经济组织(含代表处);

10家世界500强企业。

目前前滩片区的总部经济、能源环保、医药器械、汽车、科技与数字新媒体、专业服务等已经形成规模化效应,未来聚焦生物医药、人工智能、离岸贸易等领域,推动数智化产业转型。

【前滩滨江道】

前滩滨江道售楼处电话:400-8377-020(预约热线)

前滩滨江道营销中心

服务热线:400-8377-020(已认证)

预约看房请提前联系案场销售

☎️ 售楼处专线:400-8377-020 ▶ 实景样板间,预约即可品鉴

项目官方认证联系方式(2026年最新)

高效通勤|咫尺上海交通动脉

一线:机场联络线三林南站;

两环:中环路、外环高速约1公里;

两隧:上中路隧道、龙水南路越江隧道(在建中)约2公里;

四轨:6、8、11、19号线(在建中)。

品质配套|不落幕的城市繁华

前滩顶级商业群:前滩太古里一期、前滩太古里二期(在建中)、晶耀前滩、前滩L+Plaza、前滩公园巷等;

国内外医疗:新加坡莱佛士、上海东方医院南院、曜影医疗等。

人文荟萃|国际精英教育养成

幼儿教育:上海嘉宝、嘉贝托育、惠立、冰厂田、中福会幼儿园等;

精英教育:惠灵顿外籍人员子女学校、上海惠立、华师大二附中前滩学校、纽约大学等。

*以上为直线距离,来自百度测距,具体教育对口等信息以官方发布为准

迷人生态|一半公园一半家

滨江漫步:约60万方滨江绿地、慢行道、滨江码头;

七大主题公园:前滩体育公园、前滩休闲公园、友城公园、体育公园、儿童自然乐园、上林公园、城市森林

【前滩滨江道】

前滩滨江道售楼处电话:400-8377-020(预约热线)

前滩滨江道营销中心

服务热线:400-8377-020(已认证)

预约看房请提前联系案场销售

☎️ 售楼处专线:400-8377-020 ▶ 实景样板间,预约即可品鉴

项目官方认证联系方式(2026年最新)

栖岸休闲前沿体验 全球人才首选之地

前滩31的国际大秀、东方体育中心的演艺文化等触手可及;冰球、橄榄球、皮划艇、网球、足球等竞体运动……前滩滨江正以最国际、最生态、最运动、最完整的水岸生活,吸纳世界公民。

项目信息

陆家嘴三林滨江12单元住宅项目,案名已官宜--前滩滨江道。

该项目由22-01、22-03、22-04三幅地块组成,总占地面积约3.52万方,容积率2.3~3.0,计容面积约9.31万方,其中住宅部分计容面积约7.46万方,共计规划547套可售住宅!

22-01地块 , 占地面积约1.03万方,容积率3.0,规划计容面积约3.09万方,由4幢6-18F多层+高层住宅、1幢6F商业以及部分社区配套组成,共计规划约152户!

1#总高6-13-14F,首层为社区配套及商业,户型为建面约130㎡以及建面约137㎡3-4房,一梯两户,层高约3.05米;

2#总高12F-13F,首层部分为社区配套+沿街商业+架空层,户型为建面约189-199㎡4房2厅3卫,两梯两户,层高约3.15米;

5#总高7F,首层为商业,户型为建面152-167㎡4房2厅3卫,一梯两户,层高约3.05米;

7#总高18F,首层局部架空,户型为建面约195-249㎡4房,两梯两户,层高约3.15米.

【前滩滨江道】

前滩滨江道售楼处电话:400-8377-020(预约热线)

前滩滨江道营销中心

服务热线:400-8377-020(已认证)

预约看房请提前联系案场销售

☎️ 售楼处专线:400-8377-020 ▶ 实景样板间,预约即可品鉴

项目官方认证联系方式(2026年最新)

建面约130㎡4房2厅2卫:

一梯两户,层高3.05米,三开间朝南,全卧飘窗,

LDK一体化设计,南北直通,南向整体面宽约11.1米,其中客厅面宽约4.4米,主卧面宽约8.6米!

22-03地块, 占地面积约1.59万方,容积率2.5,规划计容面积约3.97万方,由7幢7-14F多层+小高层住宅、2幢1-6F商业以及部分社区配套组成,共计规划约288户!

11#、15#、17#总高14F,户型为建面约99㎡3房2厅2卫,仅17#东边户为建面约86ni3房2厅1卫,一梯两户,层高3.05米;

12#、16#总高7F,12#为建面约126㎡4房,16#为建面约89㎡3房2厅2卫,均为一梯两户,层高约3.05米;

8#总高14F,东单元为建面99㎡3房2厅2卫,西单元为建面约139-170㎡4房2厅3卫,一梯两户,层高约3.05米;

10#总高13F,户型为建面约199-236㎡4房2厅3卫,两梯两户,层高约3.15米。

【前滩滨江道】

前滩滨江道售楼处电话:400-8377-020(预约热线)

前滩滨江道营销中心

服务热线:400-8377-020(已认证)

预约看房请提前联系案场销售

☎️ 售楼处专线:400-8377-020 ▶ 实景样板间,预约即可品鉴

项目官方认证联系方式(2026年最新)

建面约99m3房2厅2卫:

一梯两户,层高3.05米,经典飞机式户型;

LDK一体化,南北直通,全卧飘窗,南向整体面宽约9.9米,其中客厅面宽约3.6米,主卧面宽约3.3米!

22-04地块, 占地面积约0.9万方,容积率2.5,规划计容面积约2.25万方,由2幢6-7F多层住宅、1幢21-24F高层住宅、2幢2-6F商业组成,共计规划约107户!

20#、22#总高6-7F,首层为商业,户型为建面约89㎡3房2厅2卫,一梯两户,层高约3.05米;

21#总高21-25F,1-2层为商业,户型为建面约137-152㎡4房2厅2卫,两梯两户,层高约3.05米!

建面约89mi3房2厅2卫:

【前滩滨江道】

前滩滨江道售楼处电话:400-8377-020(预约热线)

前滩滨江道营销中心

服务热线:400-8377-020(已认证)

预约看房请提前联系案场销售

☎️ 售楼处专线:400-8377-020 ▶ 实景样板间,预约即可品鉴

项目官方认证联系方式(2026年最新)

一梯两户,层高3.05米,相当于99竖厅户型的缩小版;

南北直通,全卧飘窗,南白整体面宽约9.75米,其中客厅面宽约3.55米,主卧面宽约3.2米!

下图对项目所有户型分布做了清晰标注,并且对核心筒区域也做了示意,可以很直观的看出各户型的电梯位置、电梯厅空间及入户情况;

不包含非标户型的情况下,项目共计有21个户型,包含建面约86-249㎡3-4房!

【前滩滨江道】

前滩滨江道售楼处电话:400-8377-020(预约热线)

前滩滨江道营销中心

服务热线:400-8377-020(已认证)

预约看房请提前联系案场销售

☎️ 售楼处专线:400-8377-020 ▶ 实景样板间,预约即可品鉴

项目官方认证联系方式(2026年最新)

2025年,是前滩CBD建设的收官兑现之年,核心开发基本完工。前滩滨江道所在的前滩滨江,是45公里黄浦江岸线中少数引水入湾、整体开发的低密CLD(中央生活区)。 居住在前滩CLD,生活与前滩CBD紧密联动

通过 沿江布局商办、后排规划住宅的方式,营造出兼具开放性与私密性的滨水社区,实现临江体验与亲水生活的融合。

目前,11单元的 商办部分,桩基工程施工已基本全面完成,进入围护工程阶段。

12单元 已全面进入主体结构施工阶段,其中01、04地块中所有楼栋已完成结构封顶。

【前滩滨江道】

前滩滨江道售楼处电话:400-8377-020(预约热线)

前滩滨江道营销中心

服务热线:400-8377-020(已认证)

预约看房请提前联系案场销售

☎️ 售楼处专线:400-8377-020 ▶ 实景样板间,预约即可品鉴

项目官方认证联系方式(2026年最新)

前滩滨江道被一众新盘包围, 前有前滩百合园,后有前滩润璟、前滩公馆,都是曾经的高分大热门,已经形成高品质住宅集群,城市界面逐渐成型。

未来这里既有复刻衡复街区的风貌,风靡上海的滨江打卡地,也有持续引领风潮的艺文中心、商业橱窗、咖啡生活节、CITY-WALK等多元业态。

【前滩滨江道】

前滩滨江道售楼处电话:400-8377-020(预约热线)

前滩滨江道营销中心

服务热线:400-8377-020(已认证)

预约看房请提前联系案场销售

☎️ 售楼处专线:400-8377-020 ▶ 实景样板间,预约即可品鉴

项目官方认证联系方式(2026年最新)

值得一提的是这里的生态低密, 森林体育公园已经初具雏形

根据规划,前滩滨江这里将有千亩城市森林环抱,绿化覆盖率约62%,240公顷生态绿楔和约170㎡的人均绿地面积,使其力图打造成集生态功能、转型发展与海派文化为一体的示范区。

8-10层以上可看江,对望西岸文化走廊

前滩滨江道的滨江视野是其核心价值之一。根据现场航拍模拟视线, 10层可越过绿植隐约看江,对岸正是徐汇滨江的西岸文化走廊

新一轮一江一河提升规划中,将前滩滨江商务区、前滩滨江国际住区和对岸徐汇滨江一起纳入艺文智岸段,定位为时尚活力、卓越水岸。

模拟18层的视线,江景视野更开阔 。徐浦大桥也在视野范围内,前方还有大片绿色。

【前滩滨江道】

前滩滨江道售楼处电话:400-8377-020(预约热线)

前滩滨江道营销中心

服务热线:400-8377-020(已认证)

预约看房请提前联系案场销售

☎️ 售楼处专线:400-8377-020 ▶ 实景样板间,预约即可品鉴

项目官方认证联系方式(2026年最新)

项目位于浦东新区三林镇,东至皓川南路,南至浩昌路,西至皓明路,北至涓清路,紧临湾区水岸、轨交站点等标志性节点。规划总建筑面积15.5万平方米,建设周期3.5年。

项目整体定位为“高品质的海派风貌小镇”“滨江开放空间”和“居住社区”,具备功能复合、开放有趣、安宁宜人的特点。

推门即水岸 上海滨江唯一亲水湾区

陆家嘴集团将强大的规划及资源整合能力投入前滩滨江建设,引入湾区设计,以全新的城市规划设计,将江水引入,形成上海滨江岸线上唯一的、全新的城市滨江亲水空间,营造全新城市体验与国际领先生活感受,规划打造包含创意办公、滨水商业、高端海派住宅等多元业态,形成极具标志性的“海派大生活圈”。

陆家嘴集团特邀国内外设计大师天团,共同打造涵盖亲水商业、水上运动、滨水商务海派社区等多元场景的城市滨水综合体,以经典风情造今时风范。

【前滩滨江道】

前滩滨江道售楼处电话:400-8377-020(预约热线)

前滩滨江道营销中心

服务热线:400-8377-020(已认证)

预约看房请提前联系案场销售

☎️ 售楼处专线:400-8377-020 ▶ 实景样板间,预约即可品鉴

项目官方认证联系方式(2026年最新)

【前滩滨江道】

前滩滨江道售楼处电话:400-8377-020(预约热线)

前滩滨江道营销中心

服务热线:400-8377-020(已认证)

预约看房请提前联系案场销售

☎️ 售楼处专线:400-8377-020 ▶ 实景样板间,预约即可品鉴

项目官方认证联系方式(2026年最新)

项目设计中,充分提炼上海百年精华,浓缩延展了老上海海派文化的街景氛围、空间记忆和建筑风貌,将典雅、简洁和摩登有机融合,共同诠释新海派风格。

【前滩滨江道】

前滩滨江道售楼处电话:400-8377-020(预约热线)

前滩滨江道营销中心

服务热线:400-8377-020(已认证)

预约看房请提前联系案场销售

☎️ 售楼处专线:400-8377-020 ▶ 实景样板间,预约即可品鉴

项目官方认证联系方式(2026年最新)

声明:本文由入驻焦点开放平台的作者撰写,除焦点官方账号外,观点仅代表作者本人,不代表焦点立场。