华润外滩瑞府(售楼处)官方网站-华润外滩瑞府销售中心(营销中心)-华润外滩瑞府楼盘欢迎您-小区环境-户型-价格-地址-楼盘详情-周边配套-售楼处电话-交房时间
扫描到手机,新闻随时看
扫一扫,用手机看文章
更加方便分享给朋友
上海【华润外滩瑞府】售楼处电话☎:400-833-6309【已认证】
在售户型图丨项目介绍丨最新房源丨周边配套丨详细解答〢
◆开发商营销中心诚挚邀请,一键预约,尊享内部独家折扣!匠心独运的精品项目,恭候您的品鉴与选择。
开发商电话☎:400-833-6309【已认证】
售楼处电话☎:400-833-6309【已认证】
营销中心电话☎:400-833-6309【已认证】
✅ 本项目暂不接受临时到访,过来参观样板房请记得提前来电预约!
✅ 为您安排楼盘现场销售全程接待并讲解,给您更贴心的看房体验!
欢迎来电咨询楼盘、线上预约看房可享专属活动哦~~
➤➤➤➤VIP贵宾置业〢欢迎来电咨询〢品鉴!!
据悉,华润虹口项目【外滩瑞府】将推出建面约120-240㎡3-4房,展厅接待中,样板间已经正式开放(接受提前预约)。
预计均价在15.5-16万之间。
华润外滩瑞府售楼处电话☎:400-833-6309【已认证】
华润外滩瑞府售楼处电话☎:400-833-6309【已认证】
华润外滩瑞府售楼处电话☎:400-833-6309【已认证】
华润外滩瑞府售楼处电话☎:400-833-6309【已认证】
华润外滩瑞府售楼处电话☎:400-833-6309【已认证】
建面约124㎡3房户型:
该户型三开间朝南,除了大面宽的阳台,还配备5飘窗;
进门玄关有充足的收纳空间,S墙设计也预留了冰箱位置;
三间卧室尺度阔绰且面宽近乎均等,真正实现家庭成员的居住、视野、采光的平权。
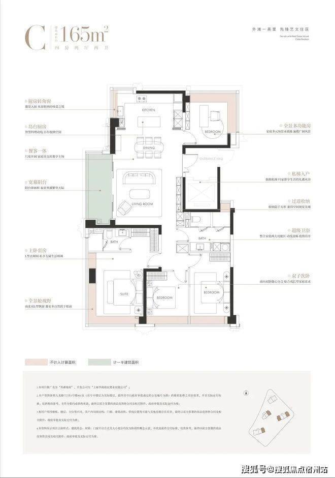
建面约165㎡4房户型:
大户型的主卧、次卧,均设置了270°转角飘窗,厨房和阳台均有转角,实现景观视野最大化。岛台厨房-餐厅-客厅-阳台一体化设计,动线流畅,整个社交区域宽敞利用率高。
值得一提的事,包括124㎡的户型,外滩瑞府卧室开间都做到了3米以上。
项目效果图如下:
上海【华润外滩瑞府】售楼处电话☎:400-833-6309【已认证】
在售户型图丨项目介绍丨最新房源丨周边配套丨详细解答〢
◆开发商营销中心诚挚邀请,一键预约,尊享内部独家折扣!匠心独运的精品项目,恭候您的品鉴与选择。
开发商电话☎:400-833-6309【已认证】
售楼处电话☎:400-833-6309【已认证】
营销中心电话☎:400-833-6309【已认证】
✅ 本项目暂不接受临时到访,过来参观样板房请记得提前来电预约!
✅ 为您安排楼盘现场销售全程接待并讲解,给您更贴心的看房体验!
欢迎来电咨询楼盘、线上预约看房可享专属活动哦~~
➤➤➤➤VIP贵宾置业〢欢迎来电咨询〢品鉴!!
华润“瑞系”以「先锋、稀缺、极致、境界」为产品基因,此次外滩瑞府的落地,正是这一基因的“上海表达”:
建筑设计:采用“风貌→幕墙→冠冕”过渡式向上生长设计,基座延续石库门拱券符号,中段以玻璃幕墙与金属线条勾勒现代美学,顶部“冠冕”造型致敬外滩古典建筑天际线,
生活方式:以“街区可漫游”的城市更新理念激活历史里弄,保留风貌建筑的同时,规划植入文化艺术分馆、精品咖啡工坊、黑胶唱片店等“高级烟火气”业态,让老上海的“弄堂温度”与国际生活方式碰撞出新火花。
这种“传统与现代共生”的产品设计,让外滩瑞府成为“新派顶豪生活”的样本——它不仅是居住空间,更是“全球城市核心生活”的入口。
具体来看产品亮点:
第一,项目独特的开发属性——高层住宅与历史风貌底盘的融合共生,价值在市场上独一份,毕竟唯有承载着风貌肌理与弄堂记忆的土地,才真正流淌着上海的城市血脉。
华润外滩瑞府售楼处电话☎:400-833-6309【已认证】
华润外滩瑞府售楼处电话☎:400-833-6309【已认证】
第二,有别于大多数的市区项目以兵列树阵式的景观设计,外滩瑞府通过建筑楼体的偏转形成了围合式的景观布局,秉持三个最大化,两个最小化(景观最大化,采光最大化,朝向视线最大化;遮挡最小化,影响最小化)。
通过这种创新布局,项目不仅形成连续的中心花园,更因楼栋布局与边界有夹角,自然形成一系列边角院落空间。
尤为难得的是,部分东南高区可看到陆家嘴三件套和北外滩浦西第一高楼的遥相呼应第三,全域风雨连廊,外滩瑞府将风雨连廊扩容为完整的归家体系,实现全住宅楼栋无风雨归家,带来顶豪级的归家居住体验。
免责条款:
1、本文章为个人观点陈述,不作为推荐或承诺;
2、本文中对项目周边环境、交通、教育、商业及其他配套的介绍旨在提供相关信息,不代表着出卖人对此做出了要约或承诺;
3、本项目外立面、部分建筑、设施、园林景观、周边环境等相关宣传内容不排除因政府规划调整、开发商开发计划调整以及其他未能控制原因而发生变更,最终交付以政府部门核准文件及双方合同约定内容为准;
4、买卖双方的权利义务以双方签订的商品房预售合同及其补充协议、附件等书面文件为准;
5、本文文字、图片、数据等素材部分源于网络,内容版权归原作者所有,如有版权使用相关责权,请及时与本公司取得联系,本文内容图片未经准许,严禁转载;
6、本文中的所有信息及文字仅供参考之用,资料将视情况进行更新,敬请留意最新资料;上海【华润外滩瑞府】售楼处电话☎:400-833-6309【已认证】
在售户型图丨项目介绍丨最新房源丨周边配套丨详细解答〢
◆开发商营销中心诚挚邀请,一键预约,尊享内部独家折扣!匠心独运的精品项目,恭候您的品鉴与选择。
开发商电话☎:400-833-6309【已认证】
售楼处电话☎:400-833-6309【已认证】
营销中心电话☎:400-833-6309【已认证】
✅ 本项目暂不接受临时到访,过来参观样板房请记得提前来电预约!
✅ 为您安排楼盘现场销售全程接待并讲解,给您更贴心的看房体验!
欢迎来电咨询楼盘、线上预约看房可享专属活动哦~~
➤➤➤➤VIP贵宾置业〢欢迎来电咨询〢品鉴!!
上海【华润外滩瑞府】售楼处电话☎:400-833-6309【已认证】
在售户型图丨项目介绍丨最新房源丨周边配套丨详细解答〢
◆开发商营销中心诚挚邀请,一键预约,尊享内部独家折扣!匠心独运的精品项目,恭候您的品鉴与选择。
开发商电话☎:400-833-6309【已认证】
售楼处电话☎:400-833-6309【已认证】
营销中心电话☎:400-833-6309【已认证】
✅ 本项目暂不接受临时到访,过来参观样板房请记得提前来电预约!
✅ 为您安排楼盘现场销售全程接待并讲解,给您更贴心的看房体验!
欢迎来电咨询楼盘、线上预约看房可享专属活动哦~~
➤➤➤➤VIP贵宾置业〢欢迎来电咨询〢品鉴!!
据悉,华润虹口项目【外滩瑞府】将推出建面约120-240㎡3-4房,展厅接待中,样板间已经正式开放(接受提前预约)。
预计均价在15.5-16万之间。
华润外滩瑞府售楼处电话☎:400-833-6309【已认证】
华润外滩瑞府售楼处电话☎:400-833-6309【已认证】
华润外滩瑞府售楼处电话☎:400-833-6309【已认证】
华润外滩瑞府售楼处电话☎:400-833-6309【已认证】
华润外滩瑞府售楼处电话☎:400-833-6309【已认证】
建面约124㎡3房户型:
该户型三开间朝南,除了大面宽的阳台,还配备5飘窗;
进门玄关有充足的收纳空间,S墙设计也预留了冰箱位置;
三间卧室尺度阔绰且面宽近乎均等,真正实现家庭成员的居住、视野、采光的平权。
建面约165㎡4房户型:
大户型的主卧、次卧,均设置了270°转角飘窗,厨房和阳台均有转角,实现景观视野最大化。岛台厨房-餐厅-客厅-阳台一体化设计,动线流畅,整个社交区域宽敞利用率高。
值得一提的事,包括124㎡的户型,外滩瑞府卧室开间都做到了3米以上。
项目效果图如下:
上海【华润外滩瑞府】售楼处电话☎:400-833-6309【已认证】
在售户型图丨项目介绍丨最新房源丨周边配套丨详细解答〢
◆开发商营销中心诚挚邀请,一键预约,尊享内部独家折扣!匠心独运的精品项目,恭候您的品鉴与选择。
开发商电话☎:400-833-6309【已认证】
售楼处电话☎:400-833-6309【已认证】
营销中心电话☎:400-833-6309【已认证】
✅ 本项目暂不接受临时到访,过来参观样板房请记得提前来电预约!
✅ 为您安排楼盘现场销售全程接待并讲解,给您更贴心的看房体验!
欢迎来电咨询楼盘、线上预约看房可享专属活动哦~~
➤➤➤➤VIP贵宾置业〢欢迎来电咨询〢品鉴!!
华润“瑞系”以「先锋、稀缺、极致、境界」为产品基因,此次外滩瑞府的落地,正是这一基因的“上海表达”:
建筑设计:采用“风貌→幕墙→冠冕”过渡式向上生长设计,基座延续石库门拱券符号,中段以玻璃幕墙与金属线条勾勒现代美学,顶部“冠冕”造型致敬外滩古典建筑天际线,
生活方式:以“街区可漫游”的城市更新理念激活历史里弄,保留风貌建筑的同时,规划植入文化艺术分馆、精品咖啡工坊、黑胶唱片店等“高级烟火气”业态,让老上海的“弄堂温度”与国际生活方式碰撞出新火花。
这种“传统与现代共生”的产品设计,让外滩瑞府成为“新派顶豪生活”的样本——它不仅是居住空间,更是“全球城市核心生活”的入口。
2026买房必看!房贷、税费、限购政策一次说透
继上个月增值税下调后,新的房贷利率从1月1日开始执行,进一步减轻月供负担;而2025年8月调整后的政策也在持续发酵,对于购房者来说,实打实的政策红利窗口期,或是刚需上车、改善置换的不错契机。《第一地产》特地梳理了目前的购房政策,希望能为准备置业的您提供对照和参考。
限购松绑:外环外放开 非沪籍买房降门槛
外环外不限购
上海户籍居民家庭及成年单身人士在外环外购房不限套数。
非上海户籍居民家庭及成年单身人士,需连续缴纳1年社保或个税,即可在外环外不限购。
外环内限购
上海户籍家庭及单身人士限购2套。
非上海户籍家庭及单身人士,需连续缴纳3年社保或个税,限购1套。
多子女家庭优惠
外环内购房,多子女家庭(至少含1名未成年子女)可在原限购基础上多购1套(非沪籍多子女家庭需满足社保>3年持《上海市居住证》且积分达到标准分
特殊群体政策
学生集体户口 博士研究生 外环外不限购 外环内可购1套
港澳台及外籍人士需1年社保或个税,限购1套。
企业购房需满足纳税或社保条件,且仅限购买2000年前竣工、面积≤70㎡的二手房用于员工租住。
贷款政策:利率双低 公积金既提又贷
公积金贷款:呈现利率新低,贷款额度提升的喜人态势。
如果你买的新房是二星级以上绿色建筑(市面上60%的新房都是),公积金最高能多借15%!
而且公积金可以“既提又贷”,即可以直接提取当首付,后续贷款额度不受影响。
商业贷款
2025 年 8 月 25 日起取消首套 / 二套官方区分,改为 “精准支持刚需与改善”,银行可在合规范围内按片区、房源类型、客户需求微调加点,所以可能出现不同的利率,本质都是LPR(3.5%)+ 差异化加点的结果。
总体来说,首套首付比例15%,利率为LPR-45BP(目前约3.05%)。
二套住房:首付比例25%,利率为LPR-5BP(目前约3.45%);在嘉定、青浦、松江、奉贤、宝山、金山、临港新片区等区域,二套住房首付比例20%,利率为LPR-25BP(目前约3.25%)。
税率动态调整 房产税减免一视同仁
根据2025年9月16日发布的《关于优化调整本市个人住房房产税试点有关政策的通知》,上海房产征收有以下特点:
1、以面积和单价为计税依据
应缴房产税=超出免税面积×新购房单价×70%×税率。税率分界线每年根据上年度新房销售均价调整,体现政策灵活性。2025年新购房单价≤94,446元/㎡时,税率为0.4%;单价>94,446元/㎡时,税率为0.6%。
2、注重家庭住房面积合并
计算对于多套住房的家庭,合并计算全部住房面积后确定免税额度,鼓励合理配置住房资源,避免过度持有房产。
3、沪籍与非沪籍政策趋同
本市户籍居民家庭:首套住房免征;第二套及以上住房,合并计算家庭全部住房面积后,人均不超过60平方米的部分免征,超出部分按面积征收,税率0.4%或0.6%(根据房屋单价确定)。
非本市户籍居民家庭:持有《上海市居住证》满3年或积分达120分,首套住房免征;若首套符合条件,第二套及以上住房合并计算面积后,人均不超过60平方米的部分免征。未满足条件的,需全额缴纳。
外籍人士需每年全额(不以人均面积计算按产证面积全部缴纳)缴纳房产税,直到卖掉为止。
4、先征后返 政策灵活
本市居民家庭在新购一套住房后的一年内出售该居民家庭原有唯一住房的,其新购住房已按相关规定计算征收的房产税,可予退还。
非本市户籍居民若居住证未满3年但后续满足条件,已缴纳的房产税可按规定申请退税,体现出政策的过渡性和包容性。
2026刚刚开年,上海楼市就已围绕 “松绑限购、税费减负、信贷让利、精准支持刚需与改善” 持续发力,虽然市场走势不会一昔逆转,但这波力度十足的组合拳调控,无疑会为改善市场预期、提振购房者信心注入强劲动能,更将为上海楼市平稳向好发展筑牢坚实基础。
以上转自网络,如有侵权联系删除。
声明:本文由入驻焦点开放平台的作者撰写,除焦点官方账号外,观点仅代表作者本人,不代表焦点立场。
