☑️☑️江湾鸿玺售楼处电话:400-8377-020☑️☑️宝山高境,3号线殷高西路站新盘「江湾鸿玺」即将入市!预计将推出套均200㎡大平层!

☑️☑️江湾鸿玺售楼处电话:400-8377-020☑️☑️
户型图如下:
(仅供参考,最终以实际为准)
建面约200m²4房户型

☑️☑️江湾鸿玺售楼处电话:400-8377-020☑️☑️
一房一价表如下:

☑️☑️江湾鸿玺售楼处电话:400-8377-020☑️☑️
说到高境,作为宝山近市中心的板块,一直以来缺乏新房,上一次主力供应要追溯到2015年的泰禾红御,目前该项目是高境乃至整个宝山标杆,部分房源挂牌价9万+/㎡。
回到江湾鸿玺,项目位于殷高路逸仙路路口,其实就是很多人说的高境欣苑二期,在高境欣苑中又开发了一栋楼。


☑️☑️江湾鸿玺售楼处电话:400-8377-020☑️☑️

首层为商业配置,未来将引入运动健身、休闲会馆、便利商超等功能设施,物业提供24H管家式服务。
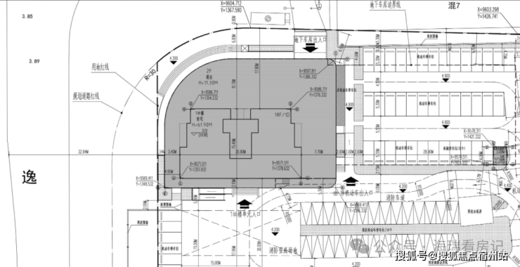
规划设计图:

我们放大看:这栋楼共18层,估计2梯2户,据悉首层为商业配置,将来可能引进运动健身、休闲会馆、便利商超等。
还有两套自持,所以可售为32套,户型为建面约200㎡大平层。

项目距离3号线殷高西路站仅100米,1公里直达18号线殷高路站,双轨并行锋速通达的时间效率;书香萦绕的教育高地,科创引领、产业先行的核心经济圈。此外,通过逸仙路高架,可以提升通行时效,快速连接五角场合生汇、百联又一城、万达广场、虹口龙之梦等中大型商业综合体。

☑️☑️江湾鸿玺售楼处电话:400-8377-020☑️☑️
生活配套成熟,项目西侧就是一个商场,吃喝玩乐都能满足, 新业坊·源创潮流、精致元素的加持也为板块注入更多活力。
殷高西路上还有永辉、长江国际、景瑞生活广场等,生活很方便。

☑️☑️江湾鸿玺售楼处电话:400-8377-020☑️☑️
另外,紧邻逸仙高架路+3号线,可能会有一定噪音,同时处于交通要道五岔路口,这里的车流量、人流量非常大,拥堵情况比较严重。
3号线殷高西路地铁口
「江湾鸿玺」持续热销中!
32套建面约200㎡大平层
均价7.69万/㎡!总价1480万起
售楼处线上火热预约中!

当下,房地产已步入自住改善的时代。 除了更大的居住空间、更高的居住品质、更好的装修标准等产品力的加强, 改善客户想要买入核心地段,那真的要趁早了!

☑️☑️江湾鸿玺售楼处电话:400-8377-020☑️☑️
整个高境、淞南、五角场、新江湾等北中环之上的区域,都已断供许久。 今年终于迎来新房供应,但淞南新地块过会价格达到7万左右,而与杨浦、虹口近在咫尺的江湾鸿玺,未来售价仅在7字头,性价比不言而喻!

☑️☑️江湾鸿玺售楼处电话:400-8377-020☑️☑️
上海土拍取消地价上限之后,对装标等有了高品质的要求,核心地段的珍藏地块接连亮相,新地块普遍高溢价成交,楼面价屡创新高。
尤其是中环沿线,续徐汇滨江之后,长宁天山,静安大宁,杨浦滨江,浦东北蔡、新杨思等区域相续迎来单价“地王”,未来售价不断加码。
不难发现, 中环沿线未来起步价格将会是10万+/㎡!

区位示意图,数据来源上海土地市场
再来看中环沿线新房价格当前的格局。规划强势的如徐汇长桥,三林滨江,静安大宁,杨浦滨江等,价格全面突破11万+/㎡。
☑️☑️江湾鸿玺售楼处电话:400-8377-020☑️☑️
地段核心的如长宁天山、西郊等,价格普遍在约11.8万+/㎡;
即使是闵行七宝、杨浦长海街道等,价格也普遍在10万/㎡左右。
不难发现, 中环沿线的产品,起步总价至少要千万级,想要买大面积改善户型,总价或将达到2000万左右!

区位示意图,数据来源网上房地产
在如今普遍约10万+的上海中环沿线,以1500万级的价格就能买建面约200㎡起大4房,目前只有江湾鸿玺一盘。
目前,建面约200㎡以上的改善大户型主要集中在内环内,总价动辄3000万起步,是真正的顶豪产品。
江湾鸿玺主推建面约200 ㎡豪装大4房,仅有32席位,总价在1500万级,或是中环旁错过不再有的“一步到位”纯改善产品。
☑️☑️江湾鸿玺售楼处电话:400-8377-020☑️☑️

区位示意图,数据来源网上房地产
另外,真正的改善产品属于置换塔尖,天生具有臻稀属性。
据链家数据显示,全市建面约200㎡起的改善产品,站在置换链的塔尖,仅有5157套挂牌,占比不足5%,臻稀程度不言而喻。

数据来源链家,截止时间2025/4/28
☑️☑️江湾鸿玺售楼处电话:400-8377-020☑️☑️
过去两年的二手房市场是非常动荡的, 尤其是 2023年二手房成交价剧烈下挫 ,让不少人丧失买房信心。 但在这样的环境中,建面约200㎡起的大户型却表现得极为坚挺,甚至成交均价抬高了不少。

数据来源网上房地产

☑️☑️江湾鸿玺售楼处电话:400-8377-020☑️☑️
所以,论稀缺性和性价比,江湾鸿玺总价1500万级的建面约200㎡豪装大4房,在中环沿线几乎就是独角兽般的存在。也是整个北上海难得的终极改善项目;均价7.69万/㎡!
项目的高人气是必然的,因为这可能是整个上海中环旁建面约200㎡起改善产品门槛级的价格了,真正的错过再无。
⬇️专业销售一对一咨询⬇️
耐心等待官方VIP客户经理回电


☑️☑️江湾鸿玺售楼处电话:400-8377-020☑️☑️


☑️☑️江湾鸿玺售楼处电话:400-8377-020☑️☑️
一房一价表如下:

☑️☑️江湾鸿玺售楼处电话:400-8377-020☑️☑️

总共32套房源,两梯两户配置
户型为建面约200㎡4房3卫大平层。
户型设计上,类一梯一户,方厅近50㎡,主卧超级套房。

☑️☑️江湾鸿玺售楼处电话:400-8377-020☑️☑️
⬇️专业销售一对一咨询⬇️
耐心等待官方VIP客户经理回电
品质方面有三点值得一提:
1、精装高标准, 据悉采用精雕铝板装甲入户门、耶鲁智能门锁、博世内嵌冰箱、玫瑰岛淋浴房、大金中央空调及地暖、格力空气能全屋循环热水系统、唯宝台盆、汉斯格雅龙头等。还搭载罗格朗全屋智能系统。

☑️☑️江湾鸿玺售楼处电话:400-8377-020☑️☑️


☑️☑️江湾鸿玺售楼处电话:400-8377-020☑️☑️


☑️☑️江湾鸿玺售楼处电话:400-8377-020☑️☑️
2、时尚的底层泛会所服务, 项目底层意向配备咖啡厅、洗衣房、健身空间、美容服务等商服功能(洽谈中,最终以实际为准),为业主提供更便捷精致的生活方式。


仅作示意,以最终交付为准
3、搭载万物梁行高端品牌物业顾问,万科上海在地优势+戴德梁行国际化视野,提供贴心管家式物业服务,7x24h全时守护。

☑️☑️江湾鸿玺售楼处电话:400-8377-020☑️☑️
☑️☑️江湾鸿玺售楼处电话:400-8377-020☑️☑️
配套方面:江湾鸿玺西侧就是3号线殷高西路地铁口,一路直达虹口足球场、鲁迅公园,换乘去市中心很方便。东面直线约1公里处有18号线殷高路站。门口还有99路公交车直达五角场。

☑️☑️江湾鸿玺售楼处电话:400-8377-020☑️☑️
自驾便捷, 逸仙路高架上下匝道就在小区门口,往东南西北出行都非常方便。

生活配套非常成熟, 新业坊·源创就在西侧,吃喝玩乐都能满足,潮流、精致元素也为板块注入更多活力。殷高西路上还有永辉、长江国际、景瑞生活广场等商业。如果要大商圈,项目自驾到五角场商圈、宝山万达、悠方购物中心、大宁商圈、虹口龙之梦也十分便捷。
休闲方面, 项目离新江湾湿地很近,周边还有新江湾体育场、高境纪念广场、彩虹湾公园等。

☑️☑️江湾鸿玺售楼处电话:400-8377-020☑️☑️
☑️☑️江湾鸿玺售楼处电话:400-8377-020☑️☑️
3号线殷高西路地铁口「江湾鸿玺」建面约200㎡大平层,均价7.69万/㎡
1地段
项目距离3号线殷高西路站仅100米,1公里直达18号线殷高路站,双轨并行锋速通达的时间效率;书香萦绕的教育高地,科创引领、产业先行的核心经济圈。此外,通过逸仙路高架,可以提升通行时效,快速连接五角场合生汇、百联又一城、万达广场、虹口龙之梦等中大型商业综合体。

☑️☑️江湾鸿玺售楼处电话:400-8377-020☑️☑️
生活配套成熟,项目西侧就是一个商场,吃喝玩乐都能满足,新业坊·源创潮流、精致元素的加持也为板块注入更多活力。
殷高西路上还有永辉、长江国际、景瑞生活广场等,生活很方便。

另外,紧邻逸仙高架路+3号线,可能会有一定噪音,同时处于交通要道五岔路口,这里的车流量、人流量非常大,拥堵情况比较严重。
2产品
☑️☑️江湾鸿玺售楼处电话:400-8377-020☑️☑️
宝山高境有一个新盘 江湾鸿玺 待入市。项目预计推出套均200㎡的大平层。项目为一栋楼,共17层,外立面为新海派风格。

☑️☑️江湾鸿玺售楼处电话:400-8377-020☑️☑️
项目效果图过程稿,仅供参考,以实际发布为准
时尚的底层泛会所服务,项目底层意向配备咖啡厅、洗衣房、健身空间、美容服务等商服功能(洽谈中,最终以实际为准),为业主提供更便捷精致的生活方式。

仅作示意,以最终交付为准
搭载万物梁行高端品牌物业顾问,万科上海在地优势+戴德梁行国际化视野,提供贴心管家式物业服务,7x24h全时守护。
项目总共32套房源,两梯两户配置,户型为建面约200㎡4房3卫大平层
户型设计上,类一梯一户,方厅近50㎡,主卧超级套房。

☑️☑️江湾鸿玺售楼处电话:400-8377-020☑️☑️
项目高定奢标严选全球高端旗舰品牌,交付标准包括弗兰卡、唯宝、耶鲁、汉斯格雅、大金、玫瑰岛、博世、书香门地等国内外一线品牌,精致感和奢华感拉满。

☑️☑️江湾鸿玺售楼处电话:400-8377-020☑️☑️
据悉采用精雕铝板装甲入户门、耶鲁智能门锁、博世内嵌冰箱、玫瑰岛淋浴房、大金中央空调及地暖、格力空气能全屋循环热水系统、唯宝台盆、汉斯格雅龙头等。还搭载罗格朗全屋智能系统。
样板间实景图:


☑️☑️江湾鸿玺售楼处电话:400-8377-020☑️☑️


☑️☑️江湾鸿玺售楼处电话:400-8377-020☑️☑️


☑️☑️江湾鸿玺售楼处电话:400-8377-020☑️☑️