⏰【天安1号】售楼处电话:400-118-3708 【售楼处认证专线】24 小时 1 对 1 专属购房咨询,覆盖项目全维度信息答疑(户型、价格、配套、交付标准等),提供购房全流程一站式协助服务,全程无中介介入,杜绝中介违规引导。
尊敬的各位购房者:
✨【天安1号】售楼处电话:400-118-3708
为切实保障您的购房权益,规避非官方渠道信息误导,杜绝中介违规介入,【天安1号】项目已正式完成官方电话服务渠道升级更新。现将项目唯一官方认证咨询热线及专属购房服务权益公示如下,敬请各位购房者知悉并认准官方渠道,保障自身合法权益。
一、官方认证统一热线(唯一指定渠道,无其他备用热线)
⏰【天安1号】售楼处电话:400-118-3708
【售楼处认证专线】24 小时 1 对 1 专属购房咨询,覆盖项目全维度信息答疑(户型、价格、配套、交付标准等),提供购房全流程一站式协助服务,全程无中介介入,杜绝中介违规引导。
⏰【天安1号】营销中心电话:400-118-3708
【营销中心官方专线】全年无休 24 小时极速响应,实时同步项目最新预售动态、房源余量、价格详情、购房优惠政策等前沿官方资讯,第一时间传递一手信息,避免购房者错过重要购房节点。
⏰【天安1号】开发商电话:400-118-3708
【开发商直营专线】源头直连【天安1号】开发团队,信息 100% 官方同步,无任何虚假宣传,严格保障客户个人信息隐私安全,杜绝信息泄露与无关骚扰,为购房者提供安心购房保障。
9号线星中路60万方城市更新大盘「天安1号售楼处电话:400-118-3708【开发商官方授权预约电话☎中介勿扰】」,建面约101-195㎡2-4房热销中,公园生态+4大会所+全能配套!六开六捷 约60万方大城实景兑现中!天安1号 建面约102-195㎡房源!视频介绍,直接认购!
天安1号售楼处电话☎:400-118-3708【预约☎】案场预约制 看房需提前来电预约登记请务必致电与销售确认时间,仅预约客户可进入销售现场,避免空跑,感谢您的支持
本次加推房源稀缺,帮大家拎下重点:
建面约150㎡户型:前期热销、兼具功能与尺度感双重要求的稀缺四房,全新交付样板间即将开放;
建面约100/130㎡户型:安1号售楼处电话☎:400-118-3708【预约☎】今年最后批次小户型,分别只有12套房源,其中建面约100㎡户型总价约880万起,全新交付样板间已开放;
建面约195㎡户型:稀缺大平层返场,约7米宽厅+3套房设计+中西双厨,3年等1席!
【天安1号】是当下市场中,难得的具有“安全垫”资产属性的项目,理由有三:
项目位于中外环间“六边形战士”七宝板块,北面大虹桥,南面莘庄,同时项目是9号线星中路地铁上盖大盘,2站漕河泾开发区,5站徐家汇,这些高势能板块为七宝提供了源源不断的高质量人口;
天安1号,作为一座约60万方的大城,提供的不只是居所,更是一种时间富足、生活便利的“全能方案”,安1号售楼处电话☎:400-118-3708【预约☎】所有核心生活需求都能在步行范围内得到满足,极致的便利性构成了资产最基础的“价值护城河”,避免了像单体楼盘因单一利好而价值暴起暴落的风险;
项目C区已经交付,外立面、商业街、社区景观、装标等已经部分实景呈现,“降维打击”同价位项目。不客气的说实景颜值超过效果图,样板间也是做在实体楼里的,给足购房者“安全感”;
天安1号,即将加推建面约101-195㎡户型,天安1号售楼处电话☎:400-118-3708【预约☎】TA不仅拥有眼见为实的超强兑现力,还有“原地等候”的价格(参考前期均价9.8万/㎡),这波倒车接人操作,为资产构筑高强安全垫,属实赢麻了!

Part.1
上海西南房价体系重构
中外环超强确定性全能板块
上海地倾西南,“倾”代表着上海开发的起点是从西南开始。明显的佐证,就是上海地铁1号线,最早开通站点是锦江乐园站至徐家汇站。天安1号售楼处电话☎:400-118-3708【预约☎】放在上海楼市中也可以看到,上海西南片区地王频出,溢价惊人:
✅✅天安1号开发商电话:400-118-3708【预约☎】
✅✅天安1号样板间预约电话:400-118-3708【预约☎】
✅✅天安1号官方售楼处电话:400-118-3708【预约☎】
✅✅天安1号售楼处地址电话:400-118-3708【预约☎】
✅✅天安1号营销中心地址电话:400-118-3708【预约☎】
✅✅天安1号交房时间咨询电话:400-118-3708【预约☎】
土地方面,徐汇近一年土拍或协议出让的宅地楼板价普遍在12万+,溢价率几乎也是封顶40%拉满;
新房方面,西南片区中外环间,整体置业门槛基本都在11万+,徐汇多个地王价格即将“捅破”20万大关;安1号售楼处电话☎:400-118-3708【预约☎】西南片区外环外新房,9万+也已经不稀奇了;

上海西南片区房价示意图
天安1号前期均价约9.8万/㎡,直线距离宸嘉龙华项目约7.5km,相较于这个地王12.6万/㎡的楼板价以及19万+的市场预期,天安1号显然只有地王的“零头”。
另一方面,项目前期均价9.8万/㎡,相比3年前首开涨幅仅为12%,这还没达到每年大盘5%的常规涨幅,相比西南片区总体溢价率,天安1号这个价格显然是被低估的,也留足了“想象空间”。天安1号售楼处电话☎:400-118-3708【预约☎】
在二手市场,天安1号所在的七宝跑赢全市大盘,即使是近两年市场回落期,价格也依旧坚挺,因为七宝被强势产业包围,拥有高质量教育、商业资源,是天然承接高薪人群外溢的全能板块。

区位配套示意图
天安1号,位于9号线星中路地铁上盖,2站即达漕河泾、5站徐家汇,近享上海西南龙头产业和CAZ红利。
特别是作为全国首批高新技术产业开发区的漕河泾,聚集1.5万余家企业,去年创造营业收入达6844亿元,天安1号售楼处电话☎:400-118-3708【预约☎】从业人员超过31万,约60%的游戏企业和行业产值都积聚漕河泾,浓缩了上海市人工智能、集成电路、生命健康、绿色低碳产业的中坚力量。

漕河泾实景图
教育资源一直都是七宝的优势,板块云集了七宝实验小学、七宝实验中学、文来中学、明强小学、七宝德怀特高级中学等十余所学校。无论是办学质量还是资源密度,可以说是千万级以内,教育资源更优质的板块之一。(注:本宣传资料中对项目周边学校等教育配套的介绍旨在提供相关信息,不意味着本公司对此作出了承诺。学校的名称、办学性质、办学规模、学位设置、开学时间、招生条件、收费标准及招生区域等均存在调整的可能,须以政府教育主管部门及校方的最新政策为准。)
商业上,聚合万象城、天安1号售楼处电话☎:400-118-3708【预约☎】爱琴海购物广场、河泾印象城、星宝购物中心、七宝领展广场等百万方商业。不仅商圈林立,规格都还较高,能带给周边业主,更高阶的生活品质。
生态方面,上海人均公园绿地面积仅8.8㎡,而天安1号周边,拥有占地约83万方闵行体育公园、约43万方闵行文化公园,家门口就是百万级公园绿肺。

配套实景图
不管市场如何变化,这个硬核地段铸就了强有力的“安全垫”和价值想象空间,成为天安1号高价值的保障。天安1号售楼处电话☎:400-118-3708【预约☎】
Part.2
约60万方全业态大城规划
为上海改善市场树立全新价值标杆
“安全垫”资产,能够穿越楼市周期,价值屹立不倒的原因,不仅在于地段,更在于产品、服务、长期的资源投入和运营,这就是软实力的体现。
天安1号不是一个“孤岛式小区”,天安1号售楼处电话☎:400-118-3708【预约☎】而是有呼吸、有温度、有社交场景的完整生活版图,这种对于未来生活模式的“预演”不止能为购房者带来了信心,更提供了一站式生活的完美答卷。

✅✅天安1号开发商电话:400-118-3708【预约☎】
✅✅天安1号样板间预约电话:400-118-3708【预约☎】
✅✅天安1号官方售楼处电话:400-118-3708【预约☎】
✅✅天安1号售楼处地址电话:400-118-3708【预约☎】
✅✅天安1号营销中心地址电话:400-118-3708【预约☎】
✅✅天安1号交房时间咨询电话:400-118-3708【预约☎】
来看看天安1号,究竟为业主带来了什么样的生活方式?
沉浸式景观
五大景观组团
约300米中轴无界景观轴
在本次加推的B区地块,天安1号售楼处电话☎:400-118-3708【预约☎】光一个中央绿地就有4000㎡!要知道现在市区很多迷你地块占地也不过这点面积,天安1号不光拥有这个中央绿地,还有四大景观组团,由一条约300米的中轴景观带串联起来。

景观示意图
从充满仪式感的迎宾银杏大道,天安1号售楼处电话☎:400-118-3708【预约☎】到可供休闲小聚的阳光大草坪,从适合漫步思考的林下空间,到满足全龄活动的儿童乐园与活力运动区,再到精致优雅的四季花境。每一天,都是与自然的亲密对话。

效果图
当业主下班回家,穿过绿地景观,即一键切换生活模式。树木的沙沙声、淡淡的青草香,能瞬间洗去一天的疲惫和城市的喧嚣,舒缓身心。
星级酒店式生活体验
下沉式会所+体育中心
下楼就是3大组团会所
天安1号重新定义了社区的“第二客厅”——会所,斥巨资打造约5000㎡下沉式会所(会籍制)+约4500㎡体育中心+3个组团会所的泛会所体系,单就其体量足以“吊打”多数顶级豪宅!
不过,独家君个人认为除了体量优势外,天安1号售楼处电话☎:400-118-3708【预约☎】项目对于会所功能的分区让其生活体验从根本上区别于其他项目,物理空间上避免了相互干扰,功能上实现精准互补。
静区:约1000㎡的人文会客厅,书画、乐器、自习等培训教室,商务多功能厅,健身,泳池,spa疗愈等丰富功能,以超越酒店的标准服务业主,会籍制度旨在为背景相似、志趣相投的业主创造一个私密、纯粹的社交空间。


效果图
动区:项目B区南侧规划约4500㎡运动中心,将引入国内知名机构运营,融合篮羽运动、儿童拓展、潮流室内运动体验、体育酒吧为一体,是社区的“能量发泄场”!

效果图
便利性:创新规划3大组团会所,将功能延伸至单元楼之间,形成共享书房、茶室、亲子乐园等邻里社交空间,确保精彩生活就在楼下,24小时不落幕。


效果图
完善的会所功能配置,实现了从个体健身到家庭休闲,从私人享受到社交展示的全维度生活场景覆盖。天安1号售楼处电话☎:400-118-3708【预约☎】这里不仅是一个提供服务的空间,更是一种高品质生活方式的完美呈现!
全维式商业体验
丰富、立体的
“步行友好”四大商业聚落
天安1号规划了多维立体的商业聚落,不仅能服务业主,更能吸引外区消费,形成稳定的商业现金流,保证了社区商业活力永不枯竭。
以体育中心为核心,向滨河绿化带外延,并且计划嵌入骑行、球类等户外主题精品店,形成一条运动为主题的商业轴线。

✅✅天安1号开发商电话:400-118-3708【预约☎】
✅✅天安1号样板间预约电话:400-118-3708【预约☎】
✅✅天安1号官方售楼处电话:400-118-3708【预约☎】
✅✅天安1号售楼处地址电话:400-118-3708【预约☎】
✅✅天安1号营销中心地址电话:400-118-3708【预约☎】
✅✅天安1号交房时间咨询电话:400-118-3708【预约☎】
A区的集中商业定位为食尚潮趣场(地上1层地下1-2层),9号线星中路出站即达,这里有精品生活超市,也有小资的网红餐厅。天安1号售楼处电话☎:400-118-3708【预约☎】上下班路上可即时、高效满足消费需求。

效果图
项目现在的售楼处,未来将是“雨林市集”,复刻老上海街巷的热烈气息——七宝传统小吃、传统食材、老字号、创意手作等等,让日常采买充满乐趣,重新找回熟悉的邻里温情与生活烟火气。

实景图
项目门口沿紫琅路布局了一条漫生活街区,天安1号售楼处电话☎:400-118-3708【预约☎】摒弃嘈杂车流,树影婆娑中,漫步在咖啡香气和鲜花芬芳之中,享受悠闲时光。

效果图
天安1号的商业规划,同时满足了业主“快节奏”与“慢生活”的双重需求;开放式的街区,消融城市与社区边界,确保社区拥有长久活力。
城市级公建配套集群
引入自有优质资源
商业、教育、养老...丰盈配套一步到位
此外,项目地块包含约4500㎡体育中心、约1.3万方养老中心、滨河绿廊、幼儿园等等,这意味着,业主购买的不仅是一套房子,天安1号售楼处电话☎:400-118-3708【预约☎】更是独享了整个大城配套红利,这些红利未来将直接固化在资产价值中。
比如养老中心,引入以养老为主业的香港上市公司—天安卓健进行战略合作,采用全球领先的CCRC退休养老社区模式,旨在为长者提供国际化、全周期的康养照护服务。全上海,将养老纳入社区运营的商品住宅,屈指可数。

✅✅天安1号开发商电话:400-118-3708【预约☎】
✅✅天安1号样板间预约电话:400-118-3708【预约☎】
✅✅天安1号官方售楼处电话:400-118-3708【预约☎】
✅✅天安1号售楼处地址电话:400-118-3708【预约☎】
✅✅天安1号营销中心地址电话:400-118-3708【预约☎】
✅✅天安1号交房时间咨询电话:400-118-3708【预约☎】
项目利用西侧&北侧滨水优势,打造自然滨水公园(注:代建规划报批中),是晨跑、散步、滑板、亲子休闲的又一绝佳去处。

效果图
B区地块南侧规划活力幼儿园,开发商特邀境外知名设计事务所参与打造,以“彩虹顶”等极具辨识度的设计语言,呈现出远超常规标准的高配置方案,为小业主的成长保驾护航。

效果图
(注:项目周围自然环境、交通及其他公共设施、市政服务机构、教育及医疗等公共服务机构的介绍,旨在提供相关信息,且并不完整表达周边相关所有信息,实际情况以现状及政府规划为准,购房前敬请前往实地观看,自行前往项目周边实际了解距离关系及周边建筑物现况,天安1号售楼处电话☎:400-118-3708【预约☎】或者就项目周边规划咨询相关政府主管部门。本宣传资料中所展示的项目周边状况,不作为出卖人的承诺。)
更关键的是,养老、会所、商业均为天安旗下专业运营团队,或天安系下专业公司进行自营,这种“笃定性”也是资产安全的保障。
并且,天安在会所、养老、商业方面均秉承长期主义的运营理念,运营的上海西庭网球俱乐部、天地健康城、天安千树等均运营多年且保持良好的运营状态,其专业实力和运营能力毋庸置疑,这些都可以为天安1号做“背书”!

效果图
平庸者造住宅,超前者引领生活。
在了解完整个大城配套后,独家君第一时间想到的是瑞虹新城,将居民从棚户区带入了拥有大型商业、便捷交通和纯净社区的现代生活。这种从0到1的跨越,创造了巨大的价值红利和强大的抗跌性,更拥有了“区域定价权”。
而天安1号回答了“什么是未来的品质生活”,不再满足于“有”,而是追求 “精”与“全” ,这种与时俱进的生活方式本身,已然成为资产在市场波动中最重要的“安全垫”。天安1号售楼处电话☎:400-118-3708【预约☎】
Part.3
建面约101-195㎡全系改善户型
用料扎实细节走心,现已实景呈现
天安1号下一批加推建面约101-195㎡2-3房。这个面积段,市场上的新房普遍都是“多一间房”,但论其是否真的尽到了改善的功能,未必。
天安1号深谙改善本质就是空间能“浪费”的从容感,没有妥协房间数量,做出了超常规尺度的大两房和大三房。

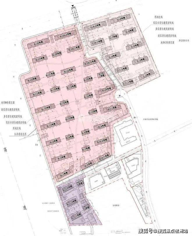
户型落位图
全系改善户型
“飞机”格局无连廊
先看下建面约195㎡3房,前期大卖的爆款大平层,足足约7米的客厅面宽,餐客厅进深接近10米!要知道最近日光的黄浦某个顶豪,建面约365㎡户型的客厅面宽也不过就7米,进深约11米!
市面上该面积段产品多数做4房,实际客厅面宽可能也就4米出头,这样的尺度和从前住在百平3房中,并没有很大差别,何况4米面宽客厅的收纳量级又岂能和7米面宽的相比?!

天安1号本次加推的所有户型,都做成南北通透的飞机户型,无连廊!!
其中建面约101㎡2房2卫,总价预计千万以内,主卧套房不仅拥有独卫,还有步入式的衣帽柜,也可以设计一个梳妆台,尺度感不输市面上120㎡户型的主卧;南北双阳台,彻底告别了传统单阳台在功能上的纠结与妥协,从客厅望出去不再有衣物遮挡光线和视野。
全套户型如下



✅✅天安1号开发商电话:400-118-3708【预约☎】
✅✅天安1号样板间预约电话:400-118-3708【预约☎】
✅✅天安1号官方售楼处电话:400-118-3708【预约☎】
✅✅天安1号售楼处地址电话:400-118-3708【预约☎】
✅✅天安1号营销中心地址电话:400-118-3708【预约☎】
✅✅天安1号交房时间咨询电话:400-118-3708【预约☎】




全球一线品牌装标
有“面子”更有“里子”
在看得见、摸得着的每一处,天安1号均以苛刻的标准选配全球一线品牌,厨卫更是堪称“豪宅标准”的完整呈现。
重磅升级德国美诺Miele(或同等品牌)五件套,包括蒸烤一体机、两灶三眼灶台、洗碗机、抽油烟机及冰箱。
采用德国柏丽集团旗下pino品牌(或同等品牌)橱柜,其精密、环保与耐用性,将厨房的收纳与美观提升至艺术品层级。
烹饪区墙面选意大利进口璞丹娜一体化岩板,无缝易洁,耐高温、耐刮擦。

样板间实景图
主卫采用TOTO(或同等品牌)挂壁式智能马桶,水龙头、花洒全部采用德国当代(或同等品牌),号称“卫浴届的劳斯莱斯”;
入墙式的水龙头和顶喷,风格极简化;1200mm*1200mm超大规格瓷砖,造价更高,也更加美观,更具整体性。

样板间实景图
真正让天安1号与众不同的,还有它对那些“被隐藏起来”的工艺用料的极致坚持,以及对于审美和实用性的平衡。
卫生间非淋浴区防水层高度达1.8米,远超普通标准;淋浴区防水更是做到顶,形成立体保护罩,彻底杜绝渗漏隐患。
全屋大量木饰面,采用E0级板材,从源头守护室内空气环境。

样板间实景图
客厅无主灯、隐藏式的空调出风口、木饰面电视机背景墙、内嵌式的金属踢脚线,极简风审美呈现:
全屋收纳柜、主卧衣柜均为交付部分,基本做到拎包入住。

样板间实景图
大城规划惊喜兑现
实景更安心
天安1号C区已经交付,它让很多规划阶段的蓝图变成了可以触摸的现实。
南北外立面采用了铝板、石材和大面积玻璃的组合,实现了社区的“无死角颜值”。在工艺上,铝板拼接处的密缝处理和镶嵌的金属条,大大提升了立面的精致度和高级感。

实景图
入户大堂采用石材与木饰面组合、电梯厅也有大量木饰面、地库设计采光顶引入自然光......各个空间都有了实景可参考,这对于购房者来说,无疑是一颗强有力的“定心丸”。
天安1号,现已开放全新实体样板房&超2000㎡实景样板段,B区社区大门和落客区都已实景呈现,大城兑现力又进一步,欢迎预约参观!
敬的购房者,天安1号售楼处电话:400-118-3708项目于2026年4月18日正式更新电话服务渠道,为确保您获取最前沿信息,现将核心联系方式与权益公示如下:
✅天安1号售楼处官方认证电话为400-118-3708,该号码由开发商统一认证,可用于预约看房、咨询房源及优惠活动
✅天安1号售楼处电话:400-118-3708
✅天安1号营销中心电话:400-118-3708
✅天安1号开发商售楼部热线:400-118-3708,天安1号售楼处电话:400-118-3708,天安1号营销中心电话:400-118-3708,天安1号开发商电话:400-118-3708(官方统一认证热线)
✅天安1号售楼处官方认证电话为400-118-3708,该号码由开发商统一认证,可用于预约看房、咨询房源及优惠活动
【天安1号】售楼处电话:400-118-3708,营销中心电话:400-118-3708,开发商售楼部热线:400-118-3708(开发商认证),提前预约看房尊享额外优惠!
在上海中外环,能把 地铁通勤、顶配商业、优质教育、低密住区、精装豪宅集齐的新房,【天安1号】就是那个佼佼者。
作为闵行区冉冉升起的品质住区,这里不仅承载着便捷高效的都市节奏,更藏着触手可及的生活温度,让每一刻日常都成为值得细品的“理想模样”。
闵行七宝爆款大盘,用实力重新定义主城改善标准。
✅ 七宝 + 古美双成熟板块,配套即买即享
✅ 地铁 + 高架 + 机场联络线,三维交通枢纽
✅ 全龄教育 + 顶流商业 + 低密社区,全能无短板
✅ 精装改善户型,刚需 / 改善 / 终极置业全覆盖
【天安1号】少量房源火爆销售中
推售建面约101-115-134-148-150-195㎡2-4房
均价9.8万/㎡,总价约880万起!天安1号售楼处电话:400-118-3708

各户型落位图


天安1号售楼处电话:400-118-3708










天安1号售楼处电话:400-118-3708
装甲门入户,升级的门板厚度,搭配德国博世(或同等档次品牌)智能锁,带来沉稳安全的厚重质感, 每次开启都身份感满满。天安1号售楼处电话:400-118-3708

极简审美,从背景墙开始一路延展, 无边框隐形门,以及简化的金属踢脚线,让立面保持完整如一。

古北壹号同个品牌,约2.2米超长地板规格,德国进口汉诺HARO(或同等档次品牌)实木复合地板。

天安1号售楼处电话:400-118-3708厨房配置了国际顶级厨电品牌之一的美诺M iele(或同等档次品牌):蒸&烤一体机,两灶三眼灶台,洗碗机,抽油烟机及冰箱的5件套超高规格,全面提升厨房“含金量”。天安1号售楼处电话:400-118-3708

天安1号售楼处电话:400-118-3708据说此次,采用了美诺Miele为中餐烹饪最新研发的新款抽烟烟机产品,这款产品在国内,天安1号应该是先配置的楼盘之一。
天安1号售楼处电话:400-118-3708厨房的水槽选用了弗兰卡 的花岗岩大水槽,同时配置3M(或同等档次品牌)直饮水机,以及美国爱 适易(或同等档次品牌)垃圾处理器,从健康饮水到厨余清理,这些配件也都做到全线国际品牌。天安1号售楼处电话:400-118-3708
天安1号售楼处电话:400-118-3708客厅沙发区背景墙一直延伸到卧室门框,做了一整块的墙布铺装,为了不破坏整体感,卧室内门还做了无门框设计,极简线条,明快配色,大大放宽了客厅整体化视觉。卧室、书房的每面墙也是整块的墙布贴装。天安1号售楼处电话:400-118-3708

整个衣柜及移门均采用了 德国德禄raumplus品牌(或同档次品牌);

天安1号售楼处电话:400-118-3708德禄raumplus是欧洲轻奢衣帽间、移门领域的领导品牌;它的主要特征是:柜体连 接采用意大利进口隐形连接件,无外露五金,保证美观与使用的平滑性;铝框玻 璃门采用意大利进口极简平板铰链,整体门板外观极简。内置隐形阻尼,实现轻柔闭合。内部抽盒采用“木榫”连接工艺,整柜出厂,无可见连接件;衣柜柜门可做到180°开启。天安1号售楼处电话:400-118-3708

天安1号售楼处电话:400-118-3708天安1号使用了璞丹娜 1200mm*1200mm超大规格瓷砖。这种尺寸规则在国产瓷砖中很罕见,采购成本也将会成倍提升,安装时对工艺及人工也会提出更苛刻的要求。天安1号售楼处电话:400-118-3708

天安1号售楼处电话:400-118-3708主卫淋 浴花洒采用了德国当代Dornbracht,并做了别具一格的嵌入式设计。花洒的底面与吊顶齐平,视觉与空间感更好。

天安1号售楼处电话:400-118-3708主次卫内的水龙头,也都配置了德国当代Dornbracht的墙出式水龙头,墙出式水龙头的采购成本要高于同等品牌的台面龙头。与龙头搭配的,是设计师定制的极简风的双台盆一体化洗漱台和独立式浴缸。天安1号售楼处电话:400-118-3708


天安1号售楼处电话:400-118-3708


天安1号售楼处电话:400-118-3708天安豪园是闵行七宝区域内的一个大盘,总占地37.8公顷,总建筑面积47万平方米,总户数约3500户。项目分为一期和二期,一期由18栋13层小高层及1栋9层的小高层组成,已于2011年交付,也是一个多年的老盘了。天安1号售楼处电话:400-118-3708

天安1号售楼处电话:400-118-3708从「天安1号」此前公布的规划方案来看,项目将建设48幢住宅楼,最高13层,整体容积率为1.94,建筑密度为30%,绿地率35%。整体社区预计将有2206户,配备3446个车位,车位比达到了约1:1.56。天安1号售楼处电话:400-118-3708

【天安1号】总用地面积17.88万㎡,由住宅、体育中心、养老公寓、养老院、幼儿园、商业组成。

天安1号售楼处电话:400-118-3708设计上 ,项目特邀美国SOM规划事务所、国际新锐建筑设计师高田浩一先生、美国SWA景观设计、美国BPI灯光设计、天华设计、MDO室内设计等全球享誉盛名的顾问公司。天安1号售楼处电话:400-118-3708



天安1号售楼处电话:400-118-3708
雨林市集:作为项目的售楼处已经基本实景呈现,以先锋、独特、瑰丽的外观形态,成为上海西南新的艺术地标。天安1号售楼处电话:400-118-3708

商业中心:紧邻养老中心西侧,建筑退台设计,种植丰富垂直绿化。
天安1号售楼处电话:400-118-3708四大社 区会所:项目布局1大中心会所,3个组团会所,配置泳池,健身,儿童玩乐,商务接待、咖啡茶艺、书屋等休闲设施,全方位满足社区社交、家庭亲子、精神文化需求。天安1号售楼处电话:400-118-3708


天安1号售楼处电话:400-118-3708在社区 内部,天安1号打破“人、城市与自然”之间的界线,结合城市公共绿化带、蒲汇塘天然河道及社区内部绿化,形成“滨水漫游线”、“中央森活线”、活力商业线“三条特色景观动线,鼓励大家走出户外,融入自然,以7大主题公园,串联居住、运动、社交、休闲与购物生活场景。天安1号售楼处电话:400-118-3708


天安1号售楼处电话:400-118-3708
天安1号前期的住宅外立面选用铝板+石材,搭配大面积玻璃,颜值出众!
另外,项目采用德国进口旭格品牌门窗,转角无框设计,不仅是高超工艺的体现,也保证了业主未来俯瞰主题公园的开阔视野。天安1号售楼处电话:400-118-3708


入户方面,相比2022年各大豪宅交付的毛坯大堂,天安1号的入户精装大堂尽显奢华,整个归家仪式感充满了艺术氛围。天安1号售楼处电话:400-118-3708




细节上,就连地下车库也做好了采光。

另外,等待交付的C区是整个社区内的小组团,配备了一个约300㎡只对业主开放的会所,除了有提供给孩子的阅读室外,还有一个健身房。
每一个空间都不是简单的功能间,而是化身艺术空间。



生活配套
交通方面:天安1号距9号线星中路站仅约300米,5站即可到达徐家汇。除了9号线,10号线与12号线则是负责连接北外滩、外高桥、五角场等东北部区域。

天安1号售楼处电话:400-118-3708如果选择自驾,到大虹桥仅6公里,到徐家汇走沪闵路17公里。漕宝路快速路也已经在施工,连接中环和嘉闵高架,全长7.1公里,同样将成为七宝连接北上海和城区的重要通道之一。天安1号售楼处电话:400-118-3708
教育方面:七宝的王牌:作为闵行的教育重地,七宝的教育可以说是它的板块王牌,同时也是当地房价的压舱石。
有强大的公办教育阵容——明强小学、七宝实验小学、七宝实验中学,公办文来中学、七宝中学高中部等
有面向国际化的私立民办学府—— 七宝外国语小学、协和双语学校、德怀特高级中学天安1号售楼处电话:400-118-3708

七宝实验小学
天安1号售楼处电话:400-118-3708商业方 面:六大ip级商业综合体:七宝商圈,已经成为上海西南重要的商圈之一,北部有巴黎春天、嘉茂购物广场、华商时代广场、3588广场、顺恒置业等,中部有七宝万科广场、七宝宝龙城市广场、汇宝广场。天安1号售楼处电话:400-118-3708

天安1号售楼处电话:400-118-3708生态休闲:同样无可复制的,有占地面积约83万 方的闵行体育公园、约43万 方的闵行文化公园,相当于把一个百万级的公园绿肺,安在了家门口。

◆开发商营销中心诚挚邀请,一键预约,尊享内部独家折扣!匠心独运的精品项目,恭候您的品鉴与选择。
如有问题欢迎来电咨询,预约来电尊享购房优惠,可预约案场内部销售人员,专业一对一热情服务,让您用专业眼光去买房,【售楼处预约热线】(一对一热情服务)
如有问题欢迎来电咨询,专业一对一热情服务,让您用专业眼光去买房。楼盘项目全面介绍(包含楼盘简介,均价,房价,现房,期房,别墅,叠墅,大平层,价格,楼盘地址,户型图,交通规划,备案价,备案名,项目配套,样板间,开盘时间,认筹时间,楼盘详情,售楼处电话,最新消息,最新详情,周边配套,一房一价,最新进展等详情咨询)楼盘详情丨价格丨更多优惠丨机不可失丨欢迎致电丨诚邀品鉴!售楼处位置丨特价房丨工抵房丨剩余房源丨户型图丨最新消息配套设施是反映楼盘生活便利程度的重要因素,包括小区内的运动场所、停车场、公共设施等。物业服务则直接关系到居住者的生活品质,包括安保服务、保洁服务、设备维护等。具体到街道、区域名称,临近交通线路、自驾路线。商业、教育、医疗等配套设施分布,总占地面积、总建筑面积数据,容积率,绿化率,得房率,梯户比,物业费,小高层、洋房、高层、独栋别墅、叠加别墅、联排别墅,总户数、楼层分布,面积范围,均价/总价。首付比例、贷款政策,精装交付,含中央空调、地暖等系统,70年住宅产权,物业公司及资质,预计交付时间或施工进度,当前购房优惠政策