☑️☑️中粮北外滩壹号售楼处电话:400-8377-020☑️☑️上海高端市场哪里最卷?四大天王齐上阵的北外滩不遑多让。
首开16.6万的金茂璞元,首开14.78万的华润外滩瑞府,装X要卖20万的绿城·潮鸣外滩, 但最便宜的14.38万的 中粮·北外滩壹号, 最便宜却人气最差?
这里距离黄浦江直线不到一公里, 低容积率+高端圈层+超高装标,也有人会吐槽得房率低+一栋孤楼+朝南不正,前期铺天盖地广告打了水漂, 但给出的几十万佣金+送车位倒是很有诚意。
☑️☑️中粮北外滩壹号售楼处电话:400-8377-020☑️☑️
小房弟为大家带来实地探房, 揭秘中粮·北外滩壹号的楼盘真相。

☑️☑️中粮北外滩壹号售楼处电话:400-8377-020☑️☑️

☑️☑️中粮北外滩壹号售楼处电话:400-8377-020☑️☑️
中粮·北外滩壹号位于北外滩提篮桥风貌区,大家关心的监狱已经搬到青浦, 步行到4号线12号线大连路站只要400米。

☑️☑️中粮北外滩壹号售楼处电话:400-8377-020☑️☑️
周边有宝地广场、北外滩来福士等综合体, 周边生活氛围浓厚,板块成长性也不错。

☑️☑️中粮北外滩壹号售楼处电话:400-8377-020☑️☑️

☑️☑️中粮北外滩壹号售楼处电话:400-8377-020☑️☑️
产品方面,中粮·北外滩壹号容积率1.95,相比金茂华润都要低, 项目规划90套高层与118套海派风貌别墅,所有高层都集中在一栋楼,意味着大部分资源被风貌给吃掉。


☑️☑️中粮北外滩壹号售楼处电话:400-8377-020☑️☑️
首开将90套大平层一次性推出,其中包含185平46套,228平44套,均价14.38万,最高价也只有16.6万,定价并不算离谱。

☑️☑️中粮北外滩壹号售楼处电话:400-8377-020☑️☑️
孤零零一栋楼很难有社区环境, 中粮·北外滩壹号还是努力规划了1800平天际会所,包含露天花园、泳池、健身房等功能,也没有像华润一样搞不少小户型, 会更偏纯粹豪宅定位。

☑️☑️中粮北外滩壹号售楼处电话:400-8377-020☑️☑️

☑️☑️中粮北外滩壹号售楼处电话:400-8377-020☑️☑️
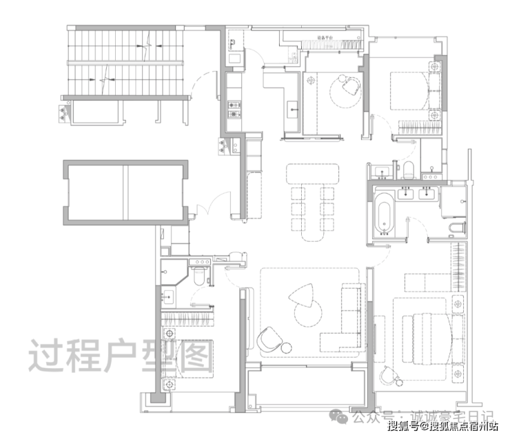
中间套185平4房3卫,总价2188—2804万,采用四叶草布局,空间没有太多过道浪费,两个南向套房设计也比较实用。

☑️☑️中粮北外滩壹号售楼处电话:400-8377-020☑️☑️
边套228平4房3卫,总价2677—3794万,空间感要强不少。

客餐厅有17米转角景观面, 需要注意只有东边套部分房源能看陆家嘴三件套。

☑️☑️中粮北外滩壹号售楼处电话:400-8377-020☑️☑️
主卧是拥有独立玄关的超大套间,包含步入式的衣帽空间,卫生间还有南向观景浴缸。


☑️☑️中粮北外滩壹号售楼处电话:400-8377-020☑️☑️

☑️☑️中粮北外滩壹号售楼处电话:400-8377-020☑️☑️
因为没赶上住宅新规,所以整体得房率会低于最新产品。 整体是4梯4户设计,每户都有独立电梯厅。
交付标准方面,厨房嘉格纳厨电,利勃海尔双冰箱,霍尼韦尔全屋净水;卫生间唯宝浴缸、马桶,以及当代的龙头,全屋配置华为鸿蒙智能系统。

☑️☑️中粮北外滩壹号售楼处电话:400-8377-020☑️☑️
总结
北外滩四大天王日子不好过,都在靠渠道强行续命, 相比之下小房弟觉得中粮·北外滩壹号单价最低,其实性价比还蛮突出的。
如果你追求更好的位置、更好的视野、更纯的圈层,不太在意社区内部景观,那么这个项目值得一看, 提前联系小房弟还能省几十万。
《中粮北外滩壹号》
项目卖点
💎区位价值:占据北外滩核心,发展潜力巨大
位于北外滩核心区,处于“外滩-陆家嘴-北外滩”黄金三角核心位置,是上海“一江一河”战略的核心承载区,与陆家嘴隔江相望,可直面黄浦江及陆家嘴天际线,北外滩作为上海未来发展引擎,规划超840万方建筑体量,将打造成为世界级商务会客厅,项目紧邻480米浦西第一高楼等超高层建筑群,共享区域发展红利。
💎产品定位:纯粹豪宅圈层,稀缺江景资源
项目是上海市中心极为稀缺的“纯住宅”地块,无商办、无保障房,业主圈层纯粹。整个项目高层住宅仅规划84户,首批推出的90套高层大平层产品(主力面积185㎡与228㎡)均为纯4房设计,部分楼栋可直接俯瞰黄浦江与3件套城市景观尽收眼底。
https://wxa.wxs.qq.com/tmpl/ov/base_tmpl.html
☑️☑️中粮北外滩壹号售楼处电话:400-8377-020☑️☑️
💎顶级城市配套,央企品质保障
项目周边配套成熟,3公里内覆盖陆家嘴、外滩、南京东路三大顶级商圈,步行10分钟可达北外滩来福士广场。交通上,紧邻地铁12号线提篮桥站,未来19号线也将带来便利。教育、医疗资源同样丰富,虹口区继光高级中学(市重点)等名校环绕,新华医院等三甲医院为家人健康提供保障。项目由中粮集团开发,提供24小时管家服务和1800㎡私享会所,从建筑到服务全面保障居住品质。
中粮北外滩壹号
🔥基础信息🔥
【区位板块】虹口区
【开发商】北外滩
【占地面积】约2.38万㎡
【建筑面积】4.65万㎡
【产权年限】70年
【绿化率】35%
【容积率】1.95
【物业公司】大悦城物业
☑️☑️中粮北外滩壹号售楼处电话:400-8377-020☑️☑️
【物业费】物业费13.9元/平/月(包含所有费用,泳池健身房等)
【楼栋数】1栋24层高层 37栋风貌别墅
【户型面积】185/228平
【总套数】208户(90套高层、118套别墅)
【层高】层高3.15米
【梯户】类1梯1户
【车位配比】1:1.25
【拿地时间】2023年9月5日
【交房时间】2028年12月底
【交付标准】精装
【会所】1900平
【均价】14.38万/平 2500-3900万
北外滩年末大作中粮品质12月即将入市
首推90套建面约185-228㎡大平层,样板间开放中,预约可看!
总价仅约3000万级,北外滩高品质抄底机遇!
☑️☑️中粮北外滩壹号售楼处电话:400-8377-020☑️☑️

☑️☑️中粮北外滩壹号售楼处电话:400-8377-020☑️☑️

☑️☑️中粮北外滩壹号售楼处电话:400-8377-020☑️☑️
整体的规划能级MAX
上海的发展就是沿着“一江一河”的脉络展开,“一江一河”就是上海的顶流规划,尤其是黄浦江。 在上海如果要买房,跟着黄浦江沿岸走一定没错!
而北外滩又是黄浦江上的璀璨明珠,是“一江一河”战略的核心承载区,它与外滩、陆家嘴并列,形成“外滩-陆家嘴-北外滩”黄金三角,共同构成上海的世界级城市封面。

☑️☑️中粮北外滩壹号售楼处电话:400-8377-020☑️☑️
以北外滩正在打造的“ 总部经济港 ”为例,
数据显示,“十四五”期间,虹口已集聚了国内最密集的航运服务企业,前50家班轮公司中有17家在此设立总部或分支机构,区域船舶运力占全市近七成,水运周转量占比约80%,高端航运人才密度全国领先,产业链完备、总部特征显著!

☑️☑️中粮北外滩壹号售楼处电话:400-8377-020☑️☑️
超大体量布局未来
北外滩的开发体量超过840万方,是陆家嘴核心区的2倍,伦敦CAZ的7倍。
但本案不仅占位北外滩,还在北外滩核心区!核心区土地仅占全部的1/5,在这1/5的土地上,将承载北外滩超四成的建筑体量。
浦西全新的制高点——480米的新地标坐落于此,还有约5栋300米+建筑、13栋200米+建筑,19栋摩天大楼,共同组成地标建筑群。

☑️☑️中粮北外滩壹号售楼处电话:400-8377-020☑️☑️
【项目简介】
占地面积:约2.38万㎡
建筑面积:4.65万㎡
容积率:1.95
面积:185-228㎡
均价:14.38万/㎡
体量:118套风貌,90套大平层
配套:会所1800㎡
车位配比:1:2.5

北外滩少有大户型社区+低总价入手
项目距离黄浦江岸线仅约900米,与陆家嘴一江之隔。
低区推窗即见绿意葱葱;中区尽揽园林叠翠,海派里弄相映成趣;部分高楼层户型推窗即可俯瞰黄浦江景与陆家嘴天际线。
90套云端大宅以及118套风貌别墅中,在红砖、木色、石材等建筑肌理上,所有人都能充分感受到海派文化与现代居所的完美融合。

☑️☑️中粮北外滩壹号售楼处电话:400-8377-020☑️☑️
顶级会所体验
约1800㎡高奢会所——精英圈层的社交场域。
位置在高层的地下空间,由国际知名设计院CCD设计,提取并运用石库门过街楼、巴洛克雕花门楣等经典符号,碰撞现代奢石、金属格栅材质,搭建“新旧共生”的时空美学。
配备全维功能场景,包含恒温泳池,健身瑜伽,舞蹈录音,私宴红酒,学习阅读等众多功能,展现社交、休闲、运动、 艺术等多维礼遇生活。

☑️☑️中粮北外滩壹号售楼处电话:400-8377-020☑️☑️
超强户型设计能力
高层185㎡户型中,可以看到超强玄关系统。
“独立私梯入户+独立门厅+室内玄关+储物空间”共同组成入户、居家收纳的完整功能!这种设计让住宅的安全性和私密性得到了充分保障。
南向双套房+北向类套房设计,使三个房间分散于房子的三个方位,内部私密性十足。
https://wxa.wxs.qq.com/tmpl/ov/base_tmpl.html
☑️☑️中粮北外滩壹号售楼处电话:400-8377-020☑️☑️
同时,北向卧室外配置卫生间,按照现代中国人的家庭成员配置,三代同堂5口人计算,北卧被当作套房使用的概率更大。

☑️☑️中粮北外滩壹号售楼处电话:400-8377-020☑️☑️
在228㎡户型中,尺度将成为关键词
超豪华主卧套房是第一大吸睛点!这是一个将五星级度假体验融入日常的私密领域, 旨在为居住者提供全方位的身心修复与精神重启。
在主卧配置了睡眠区、休闲区、收纳区以及夜间会客厅私享Minibar,四大功能共同构筑了一个功能完备、无须外求的私享世界,真正实现了“主卧即度假”的顶级生活愿景。
家庭公共空间——客餐厨+阳台空间是又一大吸睛点!
在这个空间融合了客餐厅社交区、阳台瞰景区、中厨料理生活区以及西餐岛台互动区,开放的格局让家人无论在烹饪、阅读或工作时,都能无缝交流。
阳台与客餐厅落地窗形成的总长约17米的连续观景面是对滨江住宅的最大尊重,绝不放弃对顶级江景的私家收藏!
新房 · 目录
☑️☑️中粮北外滩壹号售楼处电话:400-8377-020☑️☑️
上一篇【官宣新房】弘安里新组团【传颂300】家族典藏【致敬风貌别墅】下一篇【官宣新房】静安里的新天地【262-301平】首开28席【限量222席】风貌别墅
☑️☑️中粮北外滩壹号售楼处电话:400-8377-020☑️☑️
最新消息:中粮大悦城上海第五座壹号系「中粮·北外滩壹号」过会,均价约14.38万/㎡,建面约185-228㎡天际大平层,样板房已开放,预约可看!


☑️☑️中粮北外滩壹号售楼处电话:400-8377-020☑️☑️
样板间实景:

☑️☑️中粮北外滩壹号售楼处电话:400-8377-020☑️☑️

☑️☑️中粮北外滩壹号售楼处电话:400-8377-020☑️☑️


☑️☑️中粮北外滩壹号售楼处电话:400-8377-020☑️☑️



☑️☑️中粮北外滩壹号售楼处电话:400-8377-020☑️☑️
☑️☑️中粮北外滩壹号售楼处电话:400-8377-020☑️☑️
【建面约185㎡4房】
双套房设计的飞机户型,居住舒适度较高
2梯2户设计,私享电梯厅独立入户;
入户玄关设计隐私性更强,独立玄关收纳空间;
LDKB一体化设计,大面宽阳台+客厅,尺度感十足!
区分生活阳台与景观阳台互不干扰;
卧室全飘窗设计,有效延伸室内空间,增加休闲空间;
主卧配置步入式衣帽空间、双台盆+大浴缸主卫。

【建面约228㎡4房】
☑️☑️中粮北外滩壹号售楼处电话:400-8377-020☑️☑️
户型动静分离、居住舒适度拉满!
独立电梯厅面积约7.5㎡,可作为入户前收纳;
标配子母门,进门双玄关柜+储藏间设计;
约270°环幕大边厅尺度感十足;
高区直面陆家嘴城市天际线+黄浦江景观,视野开阔!
中厨+西厨岛台、客餐厅+阳台面积近约53㎡,尺度阔绰!
主卧大套房设计带超大主卫和独立衣帽空间,面积约50㎡,妥妥顶豪水平!
次卧套房也有充足收纳空间和独立卫浴空间;
北向双次卧可作为儿童房和书房使用,功能性满分。


☑️☑️中粮北外滩壹号售楼处电话:400-8377-020☑️☑️
地段:不止是北外滩正C位,更是梧桐遍地的风貌区!
很多人认为,滨江黄金三角:外滩、陆家嘴和北外滩不是同一量级。
但其实 北外滩超越前两者几乎是时间问题!
三大支撑让你不得不承认:
丨支撑一:恢弘巨制,北外滩的开发体量是陆家嘴核心区的2倍!
从规划的角度来看,北外滩的开发体量超过 840万方 ,是陆家嘴核心区的2倍,伦敦CAZ的7倍。
项目南侧的北外滩核心区,更是发展的重中之重。 1/5的土地上,将承载了北外滩超四成的建筑体量 。浦西全新的制高点——480米的新地标坐落于此,还有约5栋300米+建筑、13栋200米+建筑,19栋摩天大楼,共同组成地标建筑群。

☑️☑️中粮北外滩壹号售楼处电话:400-8377-020☑️☑️
丨支撑二:北外滩是站在巨人肩膀上的再超越!
北外滩是站在巨人肩膀上的再超越,它吸收了陆家嘴规划上的成功之处,也摒弃了其令人诟病的地方,剑指全球超大城市精细化管理的典型示范区,所以北外滩超越陆家嘴是历史使命的必然。
具体来看,北外滩将比陆家嘴具备更深的历史文化底蕴,有更休闲的滨江路网和生态环境,也有更具城市温度的人文关怀。

☑️☑️中粮北外滩壹号售楼处电话:400-8377-020☑️☑️
丨支撑三:世纪规划北外滩的兑现速度全球领先!
陆家嘴成为上海金融之巅花了30年,而留给北外滩的时间只有10年!所以你会看到北外滩规划兑现的速度简直史无前例!
2023年,北外滩开发建设重大工程项目22个,投资超过800亿元,实现开竣工面积141.9万㎡。
2024年,北外滩将推动开建重大工程项目48个,投资1890亿元,计划实现开竣工面积超140万㎡。
那些前几年还停留在图纸上的城市地标,如今已经屹立江边,成为上海新的天际线!


☑️☑️中粮北外滩壹号售楼处电话:400-8377-020☑️☑️
综上所述,未来的北外滩在规模、业态、发展速度方面都会超越外滩、陆家嘴,说它是当下最炙手可热的滨江板块,没有任何问题。
而作为北外滩红线内屈指可数的住宅项目,中粮北外滩壹号无疑能尽享这份世纪红利!

更难得的是,中粮北外滩壹号所在区域,恰恰是北外滩核心商务区与提篮桥风貌区交汇地。
意味着,住在中粮北外滩壹号,信步可达黄金三角的汹涌澎湃与商务区的现代繁华。转身即入,梧桐树下被时光浸润的静谧街区和里弄肌理。

☑️☑️中粮北外滩壹号售楼处电话:400-8377-020☑️☑️
这并非简单的区位叠加,而是一种稀缺的生活范式——在世界的舞台上奔涌向前,亦能在历史的脉络里安顿身心。
项目带来的,不止是一处居所,更是一种“出则掌控全局,入则栖心桃源”的从容境界。
而且深入了解了提篮桥风貌区的规划,发现几乎全部都是低密产品,中粮北外滩壹号即将入市的是片区唯一一幢高层!采光与视野可想而知!


☑️☑️中粮北外滩壹号售楼处电话:400-8377-020☑️☑️
产品:北外滩“壹号”作品,重新定义了滨江国际豪宅生活!
在上海豪宅圈,中粮的“壹号”系作品已然成为身份与地位的象征,其 超强的保值能力也让入手它的业主资产一再进阶。
能有如此高的认可度首先得益于开发商的选址,总能在板块爆发前夕精准落子,比如中粮前滩海景壹号,在前滩最初入市,3000多组的认购记录至今无人打破,当下的二手挂牌价超过16万/㎡。
再比如瑞虹海景壹号,北外滩早期作品,四开四罄热销185亿,当时新房11万多/㎡,现在瑞虹新房16.6万/㎡,中粮的二手房更是稳定在17万元/㎡左右。
可以说, 跟着中粮买准没错,选择“壹号”系作品,就是选择了最好的资产压舱石!

除了选址,壹号系成功的另一个秘诀则是超越时代的品质。
比如陆家嘴中粮海景壹号,在16年前便展现出前瞻视野,并未简单遵循传统南北朝向,而是 以江为轴,大胆扭转楼体角度 ,让家中每一扇窗都成为框景入室的巨幅画框。这一“为景让位”的创举,不仅是产品力的大胆革新,更是远见与胆识的体现,至今仍为业主资产提供着坚实的价值支撑。
作为壹号系最新力作的中粮北外滩壹号,品质自然无可挑剔。
丨首先是无比纯粹、统一的圈层!
据悉,中粮北外滩壹号是上海市中心罕见的 无商办、无自持住宅、无保障房 的纯住宅项目。而且不是单一高层或别墅,是把俯瞰天际的现代大宅与承载文脉的风貌别墅放在一起,实现互相成就的稀缺性。
高层面积起步建面约185㎡天际大平层,整体圈层能级相对统一,打造出一道真正属于高净值人群的身份门槛。

☑️☑️中粮北外滩壹号售楼处电话:400-8377-020☑️☑️
丨其次,是超越时代的建筑审美!
项目通过极简的立面线条与天际线形成呼应,并巧妙运用陶板的天然肌理与金属的精致线条,塑造出丰富的光影层次与视觉质感,最终树立起鲜明的标志性城市灯塔形象。


☑️☑️中粮北外滩壹号售楼处电话:400-8377-020☑️☑️
丨全市独一档的会所高占有率!
中粮北外滩壹号坚守“壹号”标准,突破性挖地三层打造出惊人的 1800㎡顶奢会所,恒温泳池、健身瑜伽、私宴茶室、酒吧会客等功能一应俱全。
折算本就稀少的户数,会所空间的高占有率、高使用频率,全市可能是独一份!


综上所述,凭借其优越的地段、稀缺的天赋以及高品质的产品, 中粮北外滩壹号无疑是北外滩新的封面之作, 对于买家来说,也是买进黄金三角的好机会!

☑️☑️中粮北外滩壹号售楼处电话:400-8377-020☑️☑️
☑️☑️中粮北外滩壹号售楼处电话:400-8377-020☑️☑️
北外滩豪宅大平层
中粮“壹号”系全新力作
「中粮北外滩壹号」
推出建面约185-228㎡高层住宅
均价 约14.38万/㎡
目前“样板间”已开放
— 恭迎品鉴 —