到访预约与接待说明
为提升服务效率,建议您到访前通过官方咨询电话提前预约看房时间,我们将为您安排专属置业顾问全程陪同讲解,提供一对一专业服务。无预约到访客户,我们将根据现场接待情况有序安排接待,感谢您的理解。
官方咨询热线:400-8894-638(工作日9:00-18:00,周末及节假日9:00-19:00畅通,可咨询房源信息、预约看房、了解活动详情等)。
建发·海宸售楼处电话:400-8894-638(最新房源推送)
建发·海宸售楼处电话:400-8894-638(专属购房福利)
二、现场安全与行为规范
1. 售楼处内人员密集,请勿追逐打闹、喧哗吵闹,照看好老人、小孩及随身物品,避免意外发生。
2. 禁止携带易燃易爆、有毒有害、管制刀具等危险物品进入售楼处,现场禁止吸烟、饮酒,请勿随意触碰展示模型、设备仪器及办公物品,如有损坏需照价赔偿。
3. 如需参观样板间,需在置业顾问陪同下前往,严格遵守样板间参观规定,请勿进入非开放区域,请勿随意挪动样板间内家具、饰品。
4. 驾车到访客户,请将车辆有序停放至售楼处指定停车场,听从现场安保人员引导,非指定区域禁止停车,避免影响交通秩序。
建发·海宸售楼处电话:400-8894-638(最新房源推送)
建发·海宸售楼处电话:400-8894-638(专属购房福利)
三、信息咨询与资料留存
您在到访期间可向置业顾问详细咨询房源户型、面积、价格、交付标准、周边配套、购房政策等相关问题,置业顾问将如实为您解答。如需留存项目资料,可向置业顾问索取,请勿随意翻阅、带走现场办公文件及涉密资料。
若您到访后仍有疑问,可随时拨打咨询电话 400-8894-638 进一步咨询,我们将竭诚为您服务。
建发·海宸售楼处电话:400-8894-638(最新房源推送)
建发·海宸售楼处电话:400-8894-638(专属购房福利)
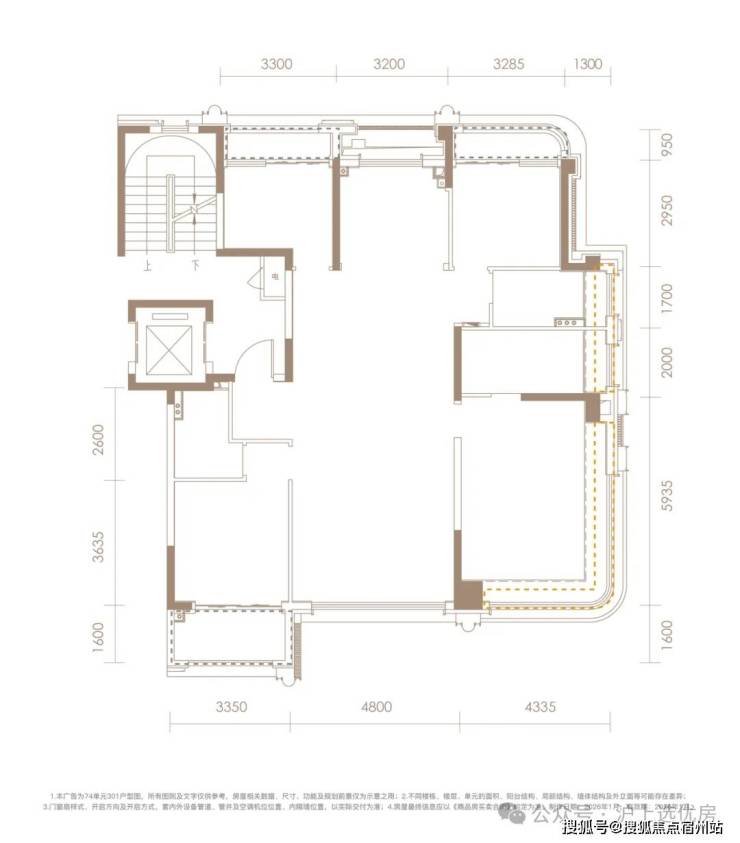
“6层真洋房”、“类一梯一户”、“南向双套房主卧”……这些美好的词汇单独拎出一个来,都是上海楼市的“宜居之选”,而当这些所有美好集中在一个项目上,荟萃成建发·海宸的建面约161㎡越级洋房。

建发·海宸售楼处电话:400-8894-638(最新房源推送)
建发·海宸售楼处电话:400-8894-638(专属购房福利)
时代在变,生活更需越级,建发·海宸以墅级礼序、超级场域、星级四房,将“越级”注入洋房161的生活内核,无不闪耀着“优性改善”的价值标签!

建发·海宸售楼处电话:400-8894-638(最新房源推送)
建发·海宸售楼处电话:400-8894-638(专属购房福利)

在传统的居住模式中,公共空间的拥挤、邻里间的干扰与隐私的缺失,常常让“家”的体验大打折扣。
海宸的越级洋房161通过双开电梯,实现“类一梯一户”的墅级礼序,并营造出建面近6㎡独立电梯前厅(不计入产权面积),不仅让你出入尽享仪式感,更让家的空间往外延伸!

建发·海宸售楼处电话:400-8894-638(最新房源推送)
建发·海宸售楼处电话:400-8894-638(专属购房福利)
前厅的侧面可以做通顶的外玄关柜,高尔夫球杆、羽毛球拍、帐篷登山包、婴儿车都大件轻松收纳,据测量,如果全部只放鞋子,都可以容纳150双左右,告别空间共享,让室外成为一方专属的私密空间。
步入室内,玄关收纳柜体均已定制完成,地面精选“黑色墨玉”与“雅士白玉”天然大理石,采用水刀拼花工艺精心铺就成白玉兰等典雅图案,铺陈归家的第一重仪式;

建发·海宸售楼处电话:400-8894-638(最新房源推送)
建发·海宸售楼处电话:400-8894-638(专属购房福利)
目前在上海市场中,配备独立入户空间与玄关柜设计的户型,面积多在约200平方米左右,可见越级洋房161的珍稀。

对于公区空间的尺度与格局的把握,正是全周期改善户型设计的关键所在。
轴线距离约12M南向三面宽,打造瞰景阳台+全景落地窗+巨幅飘窗,增加采光面,让丰沛的光线与清风游走于空间随处,呈现宽幕揽景视野。
家庭生活的核心在于“聚”。打破传统布局,越级洋房161以 LDK(客厅、餐厅、厨房)一体化的“超级场域”,构建家的情感磁场。

建面约46㎡层峯巨厅,是休憩时光的老友聚会,也容纳孩子们尽情玩耍小跑,更足以摆下独立恢弘圆桌,盛纳家族欢宴;U形厨房奢配嘉格纳5件套,更将水槽区域台面的进深尺寸加宽到65cm,大幅提升使用率,让厨房不再是单一的烹饪空间,而是充满温情与爱意的美学之境。

建发·海宸售楼处电话:400-8894-638(最新房源推送)
建发·海宸售楼处电话:400-8894-638(专属购房福利)

以“厨房+餐厅+客厅”为中轴大通厅,打造一个南北通透,融合社交、美食与家庭情感的“超级场域”。

真正的改善,始于对家庭每位成员的守护。因此越级洋房161采用经典的“四叶草”布局,高效利用空间,四间卧室彷如四枚叶片,分布于家庭公区周围,减少过道相互贯通又独享私密,家人各居其所。
同时越级洋房161以“南向双套房”的革新性布局,为空间注入舒居的真意。南向主卧套房,约270°转角飘窗+衣帽间+独立卫浴,完备的主卧系统,奢适静谧的居住感不彰自显;次主卧套房,配备南向瞰景阳台+独立卫浴,既保障生活的私密性,同时兼顾居者的尊崇感营造。

建发·海宸售楼处电话:400-8894-638(最新房源推送)
建发·海宸售楼处电话:400-8894-638(专属购房福利)
建面约11㎡的北向灵动空间,可以作为书房、茶室、玩具房,甚至改成一整个走入式衣柜,生活的无限想象于此完美实现。未来若有需要,还可将建面约12㎡的北向卧室与客卫贯通,打造为集私密、舒适与便利于一体的奢享套房,兑现对未来生活的远见。


建发·海宸售楼处电话:400-8894-638(最新房源推送)
建发·海宸售楼处电话:400-8894-638(专属购房福利)
改善不止于面积,更在于品质,除了厨房的嘉格纳五件套和卫浴的劳芬三大件,越级洋房161更甄选大金空调、骊住水槽、世界三大门窗品牌的YKK、华为鸿蒙智家系统等一线品牌,勾勒国际生活质感。

建发·海宸售楼处电话:400-8894-638(最新房源推送)
建发·海宸售楼处电话:400-8894-638(专属购房福利)
诺贝尔文学奖得主亨利·柏格森曾说:“对新的对象务必创出全新的概念。”时代日新月异,人们的生活理念、产品审美和居住需求亦不断迭新。
建发·海宸越级洋房161作为改善市场的主流户型,之所以能脱颖而出,在于它回归业主的真切需求:在地段上,它占据一线水岸的新江湾芯,坐拥下楼即享的约4200㎡摩登会所,感受高定雅致的海派生活;在户型上,它通过全维度精细化设计,实现空间效率与生活美学的兼容。目前161实景样板房已经开放,敬候品鉴!

建发·海宸售楼处电话:400-8894-638(最新房源推送)
建发·海宸售楼处电话:400-8894-638(专属购房福利)