大华公园柏翠(营销中心)网站-大华公园柏翠销售中心(售楼处)-大华公园柏翠欢迎您-电话地址-价格-户型-小区环境-楼盘详情-交房时间-周边配套-售楼处电话

搜狐焦点宿州站 2025-10-02 17:11:08
用手机看
扫描到手机,新闻随时看

扫一扫,用手机看文章
更加方便分享给朋友

大华公园柏翠售楼处热线400-1183-605

上海宝山「大华公园柏翠」推出建面约101-142㎡三房四房!总价约650万起!一文读懂大华·公园柏翠在售户型和价格!

☑️☑️大华公园柏翠售楼处电话:400-1183-605☑️☑️

距中环约3公里大宁北 宝山·共康

双轨交1/18号线 中环公园大盘

【大华·公园柏翠】开始认购

加推约101-142㎡3-4房

均价66,589元/㎡

项目基本信息☑️☑️大华公园柏翠售楼处电话:400-1183-605☑️☑️

#大华公园柏翠项目为大华公园城市的四期,东至15-06地块(公共绿地)、南至15-04地块、西至大康路、北至共康路,占地面积43500㎡,总建筑面积140051.13㎡,容积率2.20,总户数957户。☑️☑️大华公园柏翠售楼处电话:400-1183-605☑️☑️

☑️☑️大华公园柏翠售楼处电话:400-1183-605☑️☑️

根据项目规划设计方案,拟建15幢16-18F住宅(含1幢保障房)以及配套用房等建筑。

☑️☑️大华公园柏翠售楼处电话:400-1183-605☑️☑️

☑️☑️大华公园柏翠售楼处电话:400-1183-605☑️☑️

超宽楼距:低密小高层,采光、视野无遮挡,保证了清风阳光对流。

☑️☑️大华公园柏翠售楼处电话:400-1183-605☑️☑️

(效果示意图)

约80米气派门面:非凡界面昭示,彰显大家门风。

☑️☑️大华公园柏翠售楼处电话:400-1183-605☑️☑️

(效果示意图)

高感车库:引光入径,指引回家方向,营造明亮温馨的仪式感。

☑️☑️大华公园柏翠售楼处电话:400-1183-605☑️☑️

(示意图)

星级酒店大堂:全T2设计,出入从容,悦享私密尊崇。

☑️☑️大华公园柏翠售楼处电话:400-1183-605☑️☑️

项目整个社区由4栋16层、10栋17层小高层组成,是纯粹的低密小高层住宅

一方面,小高层在近期的上海市场中非常稀缺,尤其是在中环线上的位置上,小高层住宅凤毛麟角。

但另外一方面,小高层天然的高得房率、私密性和居住舒适度也保证了这个产品的受欢迎程度

换句话说,大华公园柏翠的产品力,从天赋上就已经与其他项目拉开了差距。

其次,产品上:项目建面约101-124㎡房源一梯两户、建面约142㎡两梯两户☑️☑️大华公园柏翠售楼处电话:400-1183-605☑️☑️

而这意味着,大部分的房源均是无连廊的设计,将带来更高的采光通透度、更好的通风以及更高的得房率。

再加上项目飞机户型的设计,室内几乎0空间浪费,即使是小户型也有超高的尺度感。

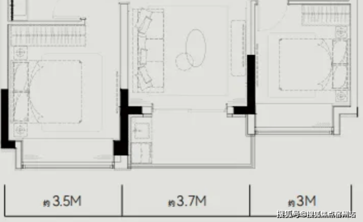
具体来看:☑️☑️大华公园柏翠售楼处电话:400-1183-605☑️☑️

☑️☑️大华公园柏翠售楼处电话:400-1183-605☑️☑️

建面约101㎡3房2卫户型,非常标准的飞机户型。

三开间朝南整体约11.5米的面宽。什么概念呢?

上海这些年其实也有不少三开间朝南的飞机户型,但都不如了大华公园柏翠。☑️☑️大华公园柏翠售楼处电话:400-1183-605☑️☑️

例如以下这个:总价约千万左右,建面约104㎡的房源。

这个项目凭借着出色的户型,获得了不少高净值人群的青睐,但他约104㎡的户型南向面宽只有10.2米,比大华公园柏翠约101㎡的户型还小了约1.3米。☑️☑️大华公园柏翠售楼处电话:400-1183-605☑️☑️

别小看这约1.3米,整体的尺度感完全不同。

☑️☑️大华公园柏翠售楼处电话:400-1183-605☑️☑️

更重要的是,项目是大横厅+超大阳台的设计。撑起气场的同时,也能为家庭带来更多的生活想象。

另外,南北通透+3房5飘窗的设计,保证了户型的通风以及视野。

超大的U型厨房十分宽绰,让切配煮更加合理从容。

细节方面,次卫的干湿分离也能保证室内的干燥,入户的玄关、主卧的套房,保证了主人的私密空间。

这个户型拥有一个“好户型”的所有特质,上车必看的首选户型!☑️☑️大华公园柏翠售楼处电话:400-1183-605☑️☑️

☑️☑️大华公园柏翠售楼处电话:400-1183-605☑️☑️

建面约124㎡的4房2卫户型,通常来说是紧凑型的户型。

但得益于无连廊+飞机户型带来的高得房率,这个户型的尺度感非常惊人。

就拿餐厅而言,这个户型可以放下一个5-6人的圆桌,可以满足一大家子围坐大圆桌吃饭的需求。

另外,项目是4房中少有的4开间朝南、3房朝南的设计,采光度十分出色。☑️☑️大华公园柏翠售楼处电话:400-1183-605☑️☑️

☑️☑️大华公园柏翠售楼处电话:400-1183-605☑️☑️

真正一步到位的改善型4房产品,大横厅的设计,

四开间朝南+大横厅,约15.4米的南向面宽堪比别墅。

大横厅也可以灵活运用在各种生活场景,例如作为妈妈的瑜伽室、孩子的游乐天地等,都是很好的选择。

这样的户型,能满足各个家庭成员的需求!☑️☑️大华公园柏翠售楼处电话:400-1183-605☑️☑️

最后,还有一点:项目将标配国际家装大牌、臻选精奢材质、把关精细施工,悉心规划4大定制系统、100+精工细节,精琢非凡空间。

03 比肩千万级豪宅的公区

约80米门头、星级酒店大堂、内外双公园...☑️☑️大华公园柏翠售楼处电话:400-1183-605☑️☑️

大华公园柏翠是大华公园城市的四期地块,该地块为协议出让用地,就在大华公园城市三期的南侧。

☑️☑️大华公园柏翠售楼处电话:400-1183-605☑️☑️

项目区位配套

【大华·公园柏翠】位于宝山区康宁路长江西路,属中外环间,项目距离1号线通河新村站约1.4公里,可一线直达人民广场、淮海路、徐家汇、莘庄等CBD;距离“换乘王”之称的18号线康宁路站(规划中)仅约500米☑️☑️大华公园柏翠售楼处电话:400-1183-605☑️☑️

☑️☑️大华公园柏翠售楼处电话:400-1183-605☑️☑️

同时,经中环线、外环线、南北高架、共和新路、长江西路、康宁路等城市快速通道,可迅捷通达城市各个方向

【大华·公园柏翠】作为人居升级之作,将“繁华+繁花”的氧居模式带入城市;项目紧邻庙行公园和千亩绿地(规划),共计约63万㎡绿化环抱(相当于4个世纪公园);社区内约35%绿化率,自然生态景观组团丰富,东西双绿境与社区园林内外呼应,造就北上海难觅的氧居共生体,沉浸式醉氧艺术生活。☑️☑️大华公园柏翠售楼处电话:400-1183-605☑️☑️

☑️☑️大华公园柏翠售楼处电话:400-1183-605☑️☑️

交通配套方面:地铁1、18号线,自驾中环、南北高架等可达市区各个方位。

☑️☑️大华公园柏翠售楼处电话:400-1183-605☑️☑️

商业配套方面:项目周边有宝山万达、家乐福、宝山购物广场等商业中心。

☑️☑️大华公园柏翠售楼处电话:400-1183-605☑️☑️

教育资源方面:项目周边有陈伯吹实验幼儿园(市一级园)、华师大宝山实验学校(公办九年制),还有大华代建的一所幼儿园和学校,真正实现了幼小初的全龄化教育配套!☑️☑️大华公园柏翠售楼处电话:400-1183-605☑️☑️

☑️☑️大华公园柏翠售楼处电话:400-1183-605☑️☑️

为更好满足居民刚性住房需求和多样化改善性住房需求,促进房地产市场平稳健康发展,8月25日,上海市住房城乡建设管理委、市房屋管理局、市财政局、市税务局、人民银行上海市分行、市公积金管理中心等六部门联合印发《关于优化调整本市房地产政策措施的通知》(以下简称《通知》),包括调减住房限购、优化住房公积金、优化个人住房信贷以及完善个人住房房产税等政策。《通知》自2025年8月26日起施行。

一、调减住房限购政策

为更好满足居民改善性需求,促进宜居安居、职住平衡,《通知》明确进一步调减住房限购政策。一是符合条件居民家庭在外环外购房不限套数。对符合本市住房购买条件的居民家庭,包括本市户籍居民家庭、在本市连续缴纳社会保险或个人所得税满1年及以上的非本市户籍居民家庭,在外环外购买住房不限套数,包括新建商品住房和二手住房。二是成年单身人士按照居民家庭执行住房限购政策。

按照上述规定,沪籍居民家庭和沪籍成年单身人士,在外环外购买住房不限套数;在外环内限购2套住房。非沪籍居民家庭和非沪籍成年单身人士,自购房之日前在本市连续缴纳社会保险或个人所得税满1年及以上的,在外环外购买住房不限套数;自购房之日前在本市连续缴纳社会保险或个人所得税满3年及以上的,在外环内限购1套住房。

关于住房限购政策相关业务,可拨打房地产交易行业服务热线“962269”具体咨询。

二、优化住房公积金政策

为加大公积金支持住房消费力度,《通知》规定优化住房公积金政策。一是提高个人住房公积金贷款额度。对缴存人购买二星级及以上新建绿色建筑住房的,住房公积金(含补充公积金)最高贷款额度上浮15%。首套最高贷款额度从160万元提高至184万元,多子女家庭首套上浮比例可叠加计算,从192万元提高至216万元;二套最高贷款额度从130万元提高至149.5万元。二是支持提取住房公积金支付购房首付款。对缴存人购买我市新建预售商品住房的,可以按规定申请提取本人及配偶的住房公积金支付购房首付款。三是支持住房公积金“又提又贷”。对缴存人提取住房公积金支付购房首付款的,不影响其住房公积金贷款额度计算。

关于住房公积金贷款和提取业务的具体办理方式及材料,可查询上海住房公积金官网或拨打住房公积金热线“12329”具体咨询。

三、优化调整商业性个人住房贷款利率定价机制

为减轻居民购房利息负担,《通知》明确优化个人住房信贷政策。银行业金融机构根据上海市市场利率定价自律机制要求和本机构经营状况、客户风险状况等因素,在利率定价机制安排方面不再区分首套住房和二套住房,合理确定每笔商业性个人住房贷款的具体利率水平。

关于住房贷款相关业务,可向经办银行具体咨询。

四、完善个人住房房产税政策

为衔接优化住房限购政策,《通知》规定对符合条件的非本市户籍居民家庭购买的第一套住房暂免征收房产税;购买的第二套及以上住房在合并计算家庭全部住房面积后,给予人均60平方米的免税面积扣除。由于个人住房房产税按年征收,因此2025年1月1日起符合条件的购房者可享受本条政策。

大华公园柏翠售楼处热线400-1183-605

【预约电话】售楼处电话400-1183-605

【预约电话】如有问题欢迎来电咨询,专业一对一热情服务,GOGOGO

看房前请提前拨打售楼处热线进行电话预约,进行预约的客户可享受开放商提供的内部优惠,一对一的;vip服务让您更舒心更方便。

样板房开放中

项目线上预约看房

现在预约看房,可享「专属服务」:在线一对一销售服务,还能优先锁定小区中心位置房源。拨打售楼处专线 400-1183-605 ,可以安排专车上门接送,带您实地看实体样板间,还能帮您算专属购房优惠,避免买贵、买错!,让您花最少的钱,选到最满意的房!

仅预约客户可实体参观!

请务必报名后静待销售电话确认,确认后再行前往现场 !仅预约客户可进入销售现场,感谢您的理解和支持!

声明:本文由入驻焦点开放平台的作者撰写,除焦点官方账号外,观点仅代表作者本人,不代表焦点立场。